ᐅ Kalkulation und Planung, eure Meinung
Erstellt am: 08.04.19 17:53
Hallo zusammen.
Meine Frau (41) und ich (47) wollen bauen.
Region:
Kreis Kaiserslautern (20km), RLP
Haus:
Bungalow massiv, ca. 125qm mit Teilkeller (inkl. Garage), Fußbodenheizung, Luftwärmepumpe mit Kontrollierte-Wohnraumlüftung.
Einfache Bauform. Schlüsselfertig.
Grundstück:
800qm, am Südhang, Straße parallel zum Hang.
Neigung: ca. 19% Gefälle. Auf 35m fällt es 7m nach Süden.
Grundstück ist bereits vorhanden und bezahlt (30.000.-). Bodengutachten liegt vor.
Erschließung:
Baulücke, Ver- und Entsorgungsleitungen liegen in Straße neben Grundstücksgrenze (ca. 2-5m).
Bebauungsplan:
Baulücke, kein Bebauungsplan. Bauvoranfrage hat ergeben: Bebauung nach §34.
"Eine Bebauung ist zulässig wenn sie sich nach Art und Maß der Bebauung, der Bauweise und der
überbauten Grundstücksfläche in die umliegende Bebauung einfügt."
Finanzen:
Gemeinsames monatl. Nettoeinkommen: 4000.-
Kinder: 1, schon 17 Jahre alt (kein weiteres geplant).
Eigenkapital: 50.000.- vorhanden, weitere 100.000.- noch bis Ende 2021 fest angelegt, Baugrundstück (s.o.)
Wir leben mietfrei im eigenen 3-Familienhaus in der Stadt.
Mieteinnahmen: EG: Keine (lebt meine Mutter), 1.OG: 600.- Kaltmiete, 2.OG: leben wir selbst (wird bei Auszug vermietet. ca. 650.- Kaltmiete).
Gemeinsame monatl. Ausgaben (Gesamt): ca. 2900.-
Monatliche Ersparnis also 1100.- plus Mieteinnahmen s.o.
Also wären für eine Finanzierung ca. 1100.- plus Mieteinnahmen vorhanden.
Wir haben jetzt mal eine grobe Kostenaufrechnung gemacht.
Bitte korrigiert hier eventuelle Fehleinschätzungen meinerseits!
Grundstückskosten inkl. Nebenkosten 30.000.- (bereits bezahlt)
Hauskosten (Bungalow): 125qm * 2000.- = 250.000.-
Teilkeller mit integr. Doppelgarage: 50.000.-
Baunebenkosten: 80.000.-
Außenanlagen: 20.000.-
Puffer: 20.000.-
Gesamtbudget also 450.000.- brutto
Kommen wir damit hin ?
Im Anhang ein Flurstücksplan, sowie (angedachte) grobe Außenansicht von Straße aus gesehen.
(in grüner Farbe der aktuelle Verlauf des Hanges)
Für jedwede Vorschläge bin ich empfänglich. Danke.


Meine Frau (41) und ich (47) wollen bauen.
Region:
Kreis Kaiserslautern (20km), RLP
Haus:
Bungalow massiv, ca. 125qm mit Teilkeller (inkl. Garage), Fußbodenheizung, Luftwärmepumpe mit Kontrollierte-Wohnraumlüftung.
Einfache Bauform. Schlüsselfertig.
Grundstück:
800qm, am Südhang, Straße parallel zum Hang.
Neigung: ca. 19% Gefälle. Auf 35m fällt es 7m nach Süden.
Grundstück ist bereits vorhanden und bezahlt (30.000.-). Bodengutachten liegt vor.
Erschließung:
Baulücke, Ver- und Entsorgungsleitungen liegen in Straße neben Grundstücksgrenze (ca. 2-5m).
Bebauungsplan:
Baulücke, kein Bebauungsplan. Bauvoranfrage hat ergeben: Bebauung nach §34.
"Eine Bebauung ist zulässig wenn sie sich nach Art und Maß der Bebauung, der Bauweise und der
überbauten Grundstücksfläche in die umliegende Bebauung einfügt."
Finanzen:
Gemeinsames monatl. Nettoeinkommen: 4000.-
Kinder: 1, schon 17 Jahre alt (kein weiteres geplant).
Eigenkapital: 50.000.- vorhanden, weitere 100.000.- noch bis Ende 2021 fest angelegt, Baugrundstück (s.o.)
Wir leben mietfrei im eigenen 3-Familienhaus in der Stadt.
Mieteinnahmen: EG: Keine (lebt meine Mutter), 1.OG: 600.- Kaltmiete, 2.OG: leben wir selbst (wird bei Auszug vermietet. ca. 650.- Kaltmiete).
Gemeinsame monatl. Ausgaben (Gesamt): ca. 2900.-
Monatliche Ersparnis also 1100.- plus Mieteinnahmen s.o.
Also wären für eine Finanzierung ca. 1100.- plus Mieteinnahmen vorhanden.
Wir haben jetzt mal eine grobe Kostenaufrechnung gemacht.
Bitte korrigiert hier eventuelle Fehleinschätzungen meinerseits!
Grundstückskosten inkl. Nebenkosten 30.000.- (bereits bezahlt)
Hauskosten (Bungalow): 125qm * 2000.- = 250.000.-
Teilkeller mit integr. Doppelgarage: 50.000.-
Baunebenkosten: 80.000.-
Außenanlagen: 20.000.-
Puffer: 20.000.-
Gesamtbudget also 450.000.- brutto
Kommen wir damit hin ?
Im Anhang ein Flurstücksplan, sowie (angedachte) grobe Außenansicht von Straße aus gesehen.
(in grüner Farbe der aktuelle Verlauf des Hanges)
Für jedwede Vorschläge bin ich empfänglich. Danke.
M
Mottenhausen08.04.19 20:58Gesamtpuffer für alle unvorhergesehenen Kosten und Aufmusterungen haben wir in Summe ca. 10% des Projektvolumens. Hier reichen euch 20.000€ ggf. nicht unbedingt, kommt darauf an, wie man sein Haus ausstatten und aufrüsten will. Wobei dein Baunebenkosten-Posten relativ üppig ist und einiges Unvorhergesehenes mit abfangen wird.
Georgie schrieb:
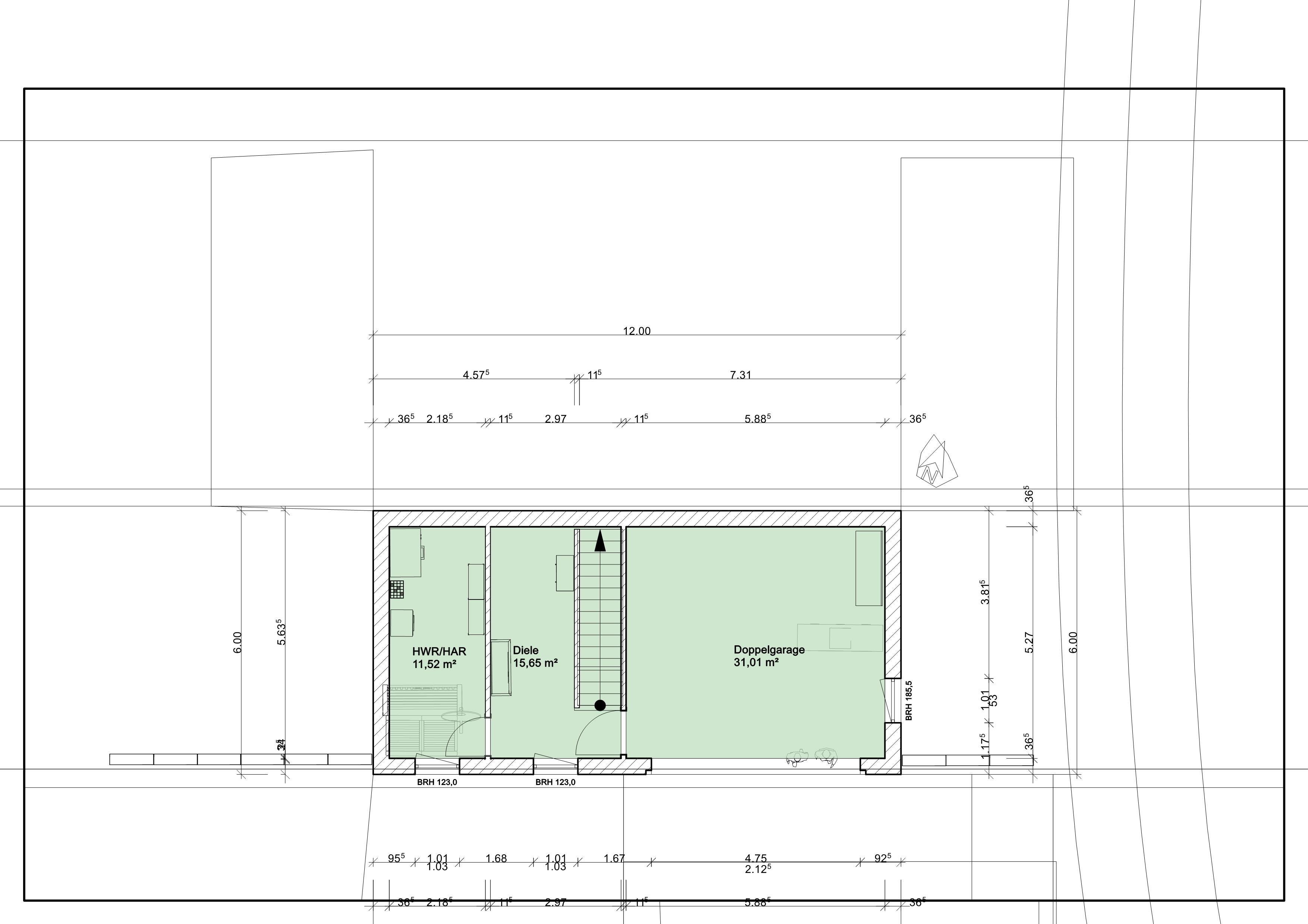
Teilkeller mit integr. Doppelgarage: 50.000.-Ich bin jetzt kein Kellerkenner, aber das kommt mir etwas zu wenig vor. Nun denn, den Rest übernimmt der Überschuss Baunebenkosten
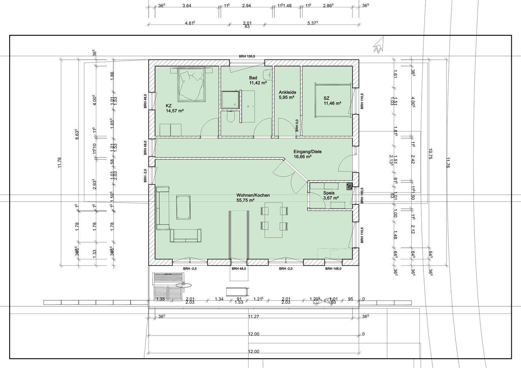
Terrasse in Richtung Hofeinfahrt? Soll das so sein?
Danke schon mal für eure Antworten.
@Mottenhausen
Der Baunebenkosten-Posten ist üppig, ja. Ist aber dem Hanggrundstück geschuldet, was für mich die momentan größte Ungewissheit darstellt.
Erdarbeiten und Gründung....mmh
Der Puffer von 20.000.- fällt daher etwas kleiner aus, wächst dann aber hoffentlich, wenn ich die Kosten der Erdarbeiten genauer abschätzen kann
@ypg
Kellerkosten kann ich momentan auch nicht so richtig abschätzen. Fällt allerdings nicht so groß aus, da wir versetzt zum Bungalow "mit dem Hang" bauen wollen. Um möglichst wenig zu buddeln/abzutragen.
Kellergröße mit Doppelgarage zusammen knapp 60qm.
Terrasse bzw. Balkon in Richtung Hofeinfahrt, ja weil dass der Blick hinunter ins Tal ist (Südseite). Eine weitere Terrasse zum Garten ist südwestlich geplant.
Anbei zum besseren Verständnis ein paar Screenshots.
Guckt mal bitte drüber und übt Kritik...


@Mottenhausen
Der Baunebenkosten-Posten ist üppig, ja. Ist aber dem Hanggrundstück geschuldet, was für mich die momentan größte Ungewissheit darstellt.
Erdarbeiten und Gründung....mmh
Der Puffer von 20.000.- fällt daher etwas kleiner aus, wächst dann aber hoffentlich, wenn ich die Kosten der Erdarbeiten genauer abschätzen kann
@ypg
Kellerkosten kann ich momentan auch nicht so richtig abschätzen. Fällt allerdings nicht so groß aus, da wir versetzt zum Bungalow "mit dem Hang" bauen wollen. Um möglichst wenig zu buddeln/abzutragen.
Kellergröße mit Doppelgarage zusammen knapp 60qm.
Terrasse bzw. Balkon in Richtung Hofeinfahrt, ja weil dass der Blick hinunter ins Tal ist (Südseite). Eine weitere Terrasse zum Garten ist südwestlich geplant.
Anbei zum besseren Verständnis ein paar Screenshots.
Guckt mal bitte drüber und übt Kritik...
Ähnliche Themen