Haustür mit oder ohne seitlichem Licht

4,80 Stern(e) 4 Votes
Zuletzt aktualisiert 21.11.2025
Sie befinden sich auf der Seite 2 der Diskussion zum Thema: Haustür mit oder ohne seitlichem Licht
>> Zum 1. Beitrag <<

H

hampshire

Lasse die Türe breiter und integriere das Fenster in die Türe. Neben etwas mehr Licht im Flur hast Du dann auch Sichtkontakt zu Besuchern. Den Votrwil einer so schmalen feststehenden Fenstereinheit kann ich nicht erkennen.
 
M

Mateo84

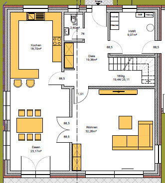
Ja der Flur hat keine Fenster, nur eine Glastür ins Wohnzimmer:

Grundriss eines Einfamilienhauses mit Küche, Essbereich und Wohnzimmer.


Das habe ich befürchtet, dass der beste Weg nun eine Breitere Tür sein wird mit größeren Fenstern(Ornament Glass).

Glaube dann müsste ich die Tür um 10 cm verbreitern, würde das mit dem dicken seinenrahmen noch gut aussehen?
 
A

Alessandro

das einzige was mir einfallen würde, wäre die Treppe einzukoffern und in dem entsandenen Raum das Gäste-WC unterzubringen.
Dann hättest du eine größere Garderobe und könntest die Tür+Seitenfenster vergrößern.
 
M

Mateo84

Das verstehst du falsch, der Rohbau steht schon und Fenster wurden nun auf gemessen :)
Treppe wird ausgekoffert und als "Abstellkammer" benutzt.

Ich habe nur diese 2 Möglichkeiten nun, Tür verbreitern mit etwas dickeren Rahmen und Fenster in der Tür oder ein Seitenlicht 15-20cm...
Licht wird sowieso rein kommen egal ob durch die Tür oder durch das Seitenlicht. Anscheinend war es aber vom Installateur eine berechtigte Anmerkung, dass das Seitenlicht zu klein ist um effektiv zu sein und sieht bescheiden aus. Teilweise kriege ich die Anmerkung hier ja auch bestätigt im Forum.
 
N

Nice-Nofret

mhh, also mich überteugen die Oeffnungen im ganzen Grundriss nicht wirklich.

Die Türe zum WC sollte nach außen öffnen. WC verlegen ist natürlich auch ne option, kommt aber auf die Fallleitungen im Haus drauf an.

Die Türen im Hauswirtschaftsraum sollten von der Treppenwand abgerückt werden, so dass die Wand besser genutzt werden kann; je nach vorgesehenen Installationen 40- 70cm Platz hinter den Türen vorsehen.

Die Küche, als wichtigster Arbeitsraum im Haus, ist seltsam unterbelichtet - ansonsten wird mit Fenster grosszügig umgegangen. Warum gönnt ihr der Küche nicht planlinks noch ein Fenster? oder verbreitert zumindest das Fenster planoben maximal?

Die Türe zum Wohnzimmere würde ich verbreitern und 2-flüglig gestalten.

Auch dem Esszimmer würde ich eine Schiebetüre gönnen - da nutzt sie mehr, da es der direkte Durchgang von der Küche nach draußen werden wird.
 
Zuletzt aktualisiert 21.11.2025
Im Forum Fenster / Türen gibt es 1364 Themen mit insgesamt 15526 Beiträgen


Ähnliche Themen zu Haustür mit oder ohne seitlichem Licht
Nr.ErgebnisBeiträge
1Fenster / Türen / Garderobe 13
2Grundrissfrage, Treppe, Fenster, Ausrichtung 12
3Grundriss Zugang von Küche in Speis / Abstellraum - Seite 329
4Wohin mit der Treppe? Dachausbau Walmdachbungalow - Seite 219
5Stadtvilla mit gerader Treppe, offene moderne Bauweise, 140m² 18
6 Küchenplanung mit tiefen Fenster - Seite 243
7Grundriss-Optimierung Einfamilienhaus 2 Vollgeschosse ca. 180 qm - Seite 250
8Fliesen oder Vinyl in Küche und Flur 19
9Treppe im Flur, Grundriss steht eigentlich schon :o( - Seite 320
10Hilfe bei der Anordnung der Fenster benötigt! 32
11Treppe im Wohnzimmer als Hype - Pro & Contra? - Seite 426
12Grundriss Einfamilienhaus geplant, Fenster gefallen uns 43
13Erker in der Küche - Umsetzungsvorschläge - Seite 247
14Stumpfeinschlagende Türen - Anschlag links oder rechts!? 32
15OG Stadtville optimieren. Fenster Bodentief - Seite 8104
16Grundrissfrage: Tausch gerader Treppe durch L-Treppe 31
17Müssen Heizkörper im Neubau immer unter die Fenster? 41
18Offene Küche bereut oder doch das Non plus Ultra? - Seite 18104
19Fenster Brüstungshöhe 130 im Schlafzimmer / Arbeitszimmer? - Seite 893
20REH - Grundrissplanung - Küche zu klein - Seite 430

Oben