ᐅ Hausplatzierung und Grundrissplanung in zweiter Reihe
Erstellt am: 23.05.24 21:46
Guten Abend,
zunächst möchte ich mich herzlich für die Aufnahme in das Forum bedanken. Wir sind eine junge Familie und möchten gerne ein Haus bauen/kaufen.
Aktuell haben wir ein Grundstück im Blick, das über einen bekannten deutschen Fertighaus-Hersteller verkauft (und dann auch bebaut) wird und uns von der Lage her sehr gut gefällt.
Wir befinden uns noch ganz am Anfang der Planung, möchten jedoch von Beginn an so konkret wie möglich vorgehen. Besonders interessieren uns Ideen und Anregungen zur optimalen Platzierung des Hauses und der Garage auf dem Grundstück. Dies ist auch der Hauptgrund für meinen Beitrag. Ich habe mal eine ganz grobe Skizze angefertigt wie ich es mir aktuell vorstelle, gerne könnt Ihr sagen ob das so Sinn macht.
Idealerweise sollte die Terrasse nach Süden und Westen ausgerichtet sein. Ich bin mir jedoch unsicher, wie der Hauseingang am besten platziert werden kann, damit er nicht direkt neben der Terrasse liegt (ist nicht üblich oder?). Generell hätte ich auch so viel sonnige Fläche wie möglich.
Einen Standardgrundriss, der uns vom Aufbau her gut gefällt, habe ich beigefügt. Wir möchten einen möglichst großen Wohn-Ess-Bereich im EG, das zusätzliche Zimmer kann auch sehr klein sein. Würde sich dieser Grundriss eurer Meinung nach für das Grundstück eignen?
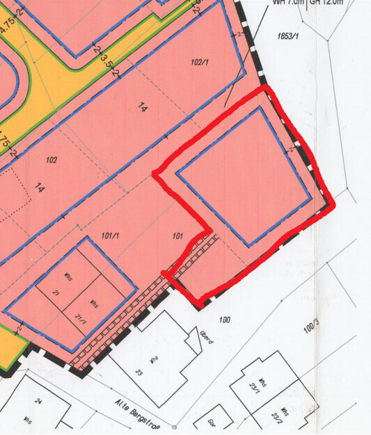
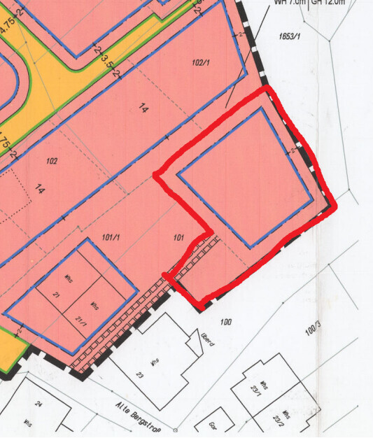
Ein Nachteil des Grundstücks ist, dass es in zweiter Reihe liegt und nur teilweise erschlossen ist. Der Weg zur Straße ist relativ weit, was die Erdarbeiten vermutlich kostspieliger machen wird. Wenn jemand Erfahrungen mit ähnlich langen Wegen zur Straße hat, wären konkrete Zahlen sehr hilfreich.
Ich hoffe dieser Beitrag entspricht den Forumsrichtlinien und bedanke mich im Voraus für eure Antworten!
Bebauungsplan/Einschränkungen
Größe des Grundstücks: 640 qm
Hang: -
Grundflächenzahl: 0,4
Geschossflächenzahl 0,8
Baufenster, Baulinie und -grenze: siehe Anhang
Randbebauung
Anzahl Stellplatz: Garage/Carport
Geschossigkeit: 1.5 - 2
Dachform: Satteldach
Maximale Höhen/Begrenzungen: Wandhöhe 7m über Bezugspunkt, max. Gebäudehöhe 12m OK Straße
Anforderungen der Bauherren
Stilrichtung, Dachform, Gebäudetyp: Satteldach, 150-170qm Wohnfläche
Keller, Geschosse: kein Keller, 1.5-2 Geschosse
Anzahl der Personen, Alter: 3, (28,25,0)
Raumbedarf im EG, OG:
EG -> Wohn-Essbereich, zusätzliches kleines Zimmer, Gäste-WC
OG -> 4 Schlafzimmer, ein Bad
offene oder geschlossene Architektur: offen
offene Küche, Kochinsel: ja
Anzahl Essplätze: 8
Kamin: optional
Musik/Stereowand: nein
Terrasse: ja
Garage, Carport: Gerne Doppelgarage
Nutzgarten, Treibhaus: nein
Hausentwurf
Von wem stammt die Planung:
akuell Standardgrundriss eines FH-Hersteller
Persönliches Preislimit fürs Haus, inkl. Ausstattung: 700.000
favorisierte Heiztechnik: Luft-Wasser-Wärmepumpe mit Photovoltaikanlage
Baufenster (das Grundstück habe ich rot umrahmt):

Grobe Skizze, erste Vorstellungen (Verzeiht mir die Unprofessionalität):

Grundriss Erdgeschoss:

Grundriss Obergeschoss:

zunächst möchte ich mich herzlich für die Aufnahme in das Forum bedanken. Wir sind eine junge Familie und möchten gerne ein Haus bauen/kaufen.
Aktuell haben wir ein Grundstück im Blick, das über einen bekannten deutschen Fertighaus-Hersteller verkauft (und dann auch bebaut) wird und uns von der Lage her sehr gut gefällt.
Wir befinden uns noch ganz am Anfang der Planung, möchten jedoch von Beginn an so konkret wie möglich vorgehen. Besonders interessieren uns Ideen und Anregungen zur optimalen Platzierung des Hauses und der Garage auf dem Grundstück. Dies ist auch der Hauptgrund für meinen Beitrag. Ich habe mal eine ganz grobe Skizze angefertigt wie ich es mir aktuell vorstelle, gerne könnt Ihr sagen ob das so Sinn macht.
Idealerweise sollte die Terrasse nach Süden und Westen ausgerichtet sein. Ich bin mir jedoch unsicher, wie der Hauseingang am besten platziert werden kann, damit er nicht direkt neben der Terrasse liegt (ist nicht üblich oder?). Generell hätte ich auch so viel sonnige Fläche wie möglich.
Einen Standardgrundriss, der uns vom Aufbau her gut gefällt, habe ich beigefügt. Wir möchten einen möglichst großen Wohn-Ess-Bereich im EG, das zusätzliche Zimmer kann auch sehr klein sein. Würde sich dieser Grundriss eurer Meinung nach für das Grundstück eignen?
Ein Nachteil des Grundstücks ist, dass es in zweiter Reihe liegt und nur teilweise erschlossen ist. Der Weg zur Straße ist relativ weit, was die Erdarbeiten vermutlich kostspieliger machen wird. Wenn jemand Erfahrungen mit ähnlich langen Wegen zur Straße hat, wären konkrete Zahlen sehr hilfreich.
Ich hoffe dieser Beitrag entspricht den Forumsrichtlinien und bedanke mich im Voraus für eure Antworten!
Bebauungsplan/Einschränkungen
Größe des Grundstücks: 640 qm
Hang: -
Grundflächenzahl: 0,4
Geschossflächenzahl 0,8
Baufenster, Baulinie und -grenze: siehe Anhang
Randbebauung
Anzahl Stellplatz: Garage/Carport
Geschossigkeit: 1.5 - 2
Dachform: Satteldach
Maximale Höhen/Begrenzungen: Wandhöhe 7m über Bezugspunkt, max. Gebäudehöhe 12m OK Straße
Anforderungen der Bauherren
Stilrichtung, Dachform, Gebäudetyp: Satteldach, 150-170qm Wohnfläche
Keller, Geschosse: kein Keller, 1.5-2 Geschosse
Anzahl der Personen, Alter: 3, (28,25,0)
Raumbedarf im EG, OG:
EG -> Wohn-Essbereich, zusätzliches kleines Zimmer, Gäste-WC
OG -> 4 Schlafzimmer, ein Bad
offene oder geschlossene Architektur: offen
offene Küche, Kochinsel: ja
Anzahl Essplätze: 8
Kamin: optional
Musik/Stereowand: nein
Terrasse: ja
Garage, Carport: Gerne Doppelgarage
Nutzgarten, Treibhaus: nein
Hausentwurf
Von wem stammt die Planung:
akuell Standardgrundriss eines FH-Hersteller
Persönliches Preislimit fürs Haus, inkl. Ausstattung: 700.000
favorisierte Heiztechnik: Luft-Wasser-Wärmepumpe mit Photovoltaikanlage
Baufenster (das Grundstück habe ich rot umrahmt):
Grobe Skizze, erste Vorstellungen (Verzeiht mir die Unprofessionalität):
Grundriss Erdgeschoss:
Grundriss Obergeschoss:
slonnols schrieb:
Der Weg zur Straße ist relativ weit, was die Erdarbeiten vermutlich kostspieliger machen wird.Die Versorger haben oft Pauschalen bzw. Meterpreise und kann man bei den Versorgungsämtern erfragen.slonnols schrieb:
und nur teilweise erschlossen ist.Was heißt teilweise?slonnols schrieb:
Ein Nachteil des Grundstücks ist, dass es in zweiter Reihe liegtDas hat auch Vorteile, gerade in Eurer Gartenausrichtung: ihr braucht Euch nicht sorgen, dass man mit Vorgarten und Tiefe das Fußvolk abgrenzen muss.slonnols schrieb:
ist nicht üblich oder?).25% haben diese NordSüd-Ausrichtung. Straßen werden beidseitig bebaut.slonnols schrieb:
bekannten deutschen Fertighaus-HerstellerWelcher?slonnols schrieb:
akuell Standardgrundriss eines FH-HerstellerIch hoffe doch, ein Typenhaus dieses Herstellers?slonnols schrieb:
Einen Standardgrundriss, der uns vom Aufbau her gut gefällt, habe ich beigefügt.Die kann man übrigen modifizieren: Technik sollte nahe der Versorgung liegen. In diesem Fall Grundriss kontern bzw. TK und Büro tauschen und Eingang modifizieren.aber: so prall ist der nicht. Wenn man sich die Sofawand anschaut, ist sie sehr ..kurz..
slonnols schrieb:
OG -> 4 Schlafzimmer, ein BadFür 3 Personen? Erzähl!slonnols schrieb:
Ich hoffe dieser Beitrag entspricht den Forumsrichtlinien …..M
MachsSelbst24.05.24 01:20ypg schrieb:
(...)
Für 3 Personen? Erzähl!Manche Menschen wünschen sich mehr als ein oder gar kein Kind. Und wenn man erst Mitte 20 ist, macht es erst recht Sinn ein Haus lieber für 3 Kinder zu planen, als für eins...
Ähnliche Themen