Hausbau - Ratgeber
Bauherrenhilfe
- Bauherrenhilfe vor Vertragsabschluss
-- Warum einen unabhängigen Baubetreuer?
-- Vertragsgrundlagen
-- Bausumme
-- Zahlungsplan zur Kostenkontrolle
-- Pflichten des Bauherren vor Vertragsabschluss
-- Unterlagen beim Hausbau vor Vertragsabschluss
- Bauherrenhilfe nach Vertragsabschluss
-- Bauantrag bei Behörden
-- Bau-Genehmigungsverfahren bei Baubehörden
-- Bauspezifische Versicherungen
-- Bauzeitenplan
-- Baubeginn - die Letzten Pflichten der Bauherrschaft
- Bauherrenhilfe während der Bauzeit
- Gewährleistungsansprüche
- Bauabnahme
Baufinanzierung
- Baufinanzierung - Allgemeine Fragen
- Kreditarten
- Kredit-Konditionen
- Bausparen
- Staatliche Förderungen
- Verkehrswert
- Haushaltsrechnung und Bonität
Hausbau Planung
- Haustypen
- Hausbau Vorbereitungsarbeiten
- Das Baugrundstück
- Baugrund beim Hausbau
- Baurecht
- Gebäudeschutz
- Erdarbeiten und Wasserhaltung
- Stützmauern
- Einfriedung
- Untergeschoss
- Kanalisation
- Tragende Elemente
- Nichttragende Innenwände
- Fundation / Fundament
- Deckenkonstruktionen
- Dächer
- Kaminanlagen
- Treppen Rampen Leitern
- Dachbeläge und Spengler
- Fenster
- Sonnen und Wetterschutz
- Aussenputze
- Einbauten, Küchen, Türen
- Bodenbeläge und Unterlagsböden
- Parkett
- Gips, Wand, Decke
Haustechnik und Energie
- Heiztechnik
- Lüftung und Klimatechnik
- Sanitärtechnik
- Elektrotechnik
- Erneuerbare Energie
Whirlpools / Jacuzzi
Hausbau Magazin
- Baufinanzierung trotz Krise?
- Das Blockhaus
- Moderne Dämmstoffe im Vergleich
- Erker Vor- und Nachteile
- Glasflächen beim Hausbau
- Günstig ein Haus Bauen
- Mediterraner Hausbaustil
- Mehrgenerationenhaus
- Moderne Architektur
- Gartengestaltung leicht gemacht
- Traditioneller Ziegelbau
- Villa als höchster Traum
- Im Eigenheim Ruhestand geniessen
- Altbau sanieren
- Kauf einer Holzgarage
- Immobilienmakler
- Arbeitshandschuhe für den Winter
- Zuhause verschönern
- Outdoor-Plissees
- Schlafzimmer planen
- Terrassenüberdachung
- Wohngebäudeversicherung
- Zaunarten und Eigenschaften
- Hauseingang gestalten
- Der perfekte Grundriss
- Sparsamer heizen im Altbau
- Einfamilienhaus smart finanzieren
- Planung einer PV-Anlage
- Neues Haus
- Immobilienfinanzierung
- Installation einer Photovoltaikanlage
- Asbest erkennen und entfernen
- Gartenpflege im Frühling – worauf achten
- Sauna im Fokus - Wellness zuhause
- Erfolgreich vermieten
- Die perfekte Winterbekleidung
- Das Niedrigenergiehaus
- Der April und seine Stürme
- Architektonische Vielfalt
- Ökologisch und nachhaltig bauen
- Das perfekte Schlafzimmer
- Nachhaltige Energieversorgung
- Zukunftsorientiert bauen
- Nachhaltigkeit beim Hausbau
- Tiny Houses
- Wärmepumpen als nachhaltige Heizvariante
- Maßgeschneiderten Kleiderschrank
- Der richtige Baukredit
- Ratgeber für erfolgreichen Hausbau
- Haus als Altersvorsorge
Do-it-yourself Anleitungen
- Verlegeanleitung für Bodenbeläge und Parkett
- Bodenbeläge und Parkett reinigen und pflegen
- Malerarbeiten am Haus
- Garten Tipps
- Umzug und Reinigung

ᐅ Hauseinordnung inkl. oder exkl. Garage im Grundstück mit Gefälle

Erstellt am: 27.07.25 15:35
H
HeinzBosslauch
H
HeinzBosslauch
27.07.25 15:35
Hallo zusammen,

wir haben ursprünglich mit einem Architekten ein Massivhaus geplant. Aufgrund der unsicheren Marktlage und möglicher Kostensteigerungen bei Einzelvergaben haben wir uns nun für einen Fertighausanbieter entschieden und wechseln daher zur Holzständerbauweise. Der Grundriss bleibt weitgehend unverändert, jedoch erfordert die neue Bauweise eine Anpassung:

Der Architekt plante im Nebengebäude zwei bzw. drei Treppenstufen sowie eine Bodenplatte mit Aufkantung. Der Fertighausanbieter lehnt das ab mit der Begründung, beide Gebäude müssten auf gleicher Höhe liegen. Ein direkter Kontakt zwischen Außenwand und Fundament/Stahlbetonwand führe zu Feuchtigkeit und langfristigen Schäden. Der Höhenunterschied sei gering und besser über das Fundament auszugleichen.

Im Schnitt erkennt man jedoch einen kritischen Höhenversatz. Lösungsmöglichkeiten wären:
  • Haus tiefer setzen (ggf. Nachteile bei Entwässerung, Tageslicht und Optik),
  • Garage abtrennen und den Übergang per Stufen gestalten,
  • oder die Höhen vorne bereits angleichen und die Garage höher setzen (steile Einfahrt)
Was meint ihr: Ist die Tieferlegung problematisch? Wäre ein getrennter Aufbau mit Verbindung sinnvoller? Habt ihr alternative Ideen?

Ansichten, Schnitte und Grundrisse sind angehängt – bei Rückfragen freue ich mich auf den Austausch!

Vielen Dank vorab!
Nordostansicht eines zweistöckigen Hauses mit Terrasse, Fenstern und Tür

Nordwestansicht eines Wohnhauses mit zwei Etagen links, Garagenanbau rechts, Terrasse sichtbar.

Südwestansicht eines zweigeschossigen Hauses mit Eingang, Fenstern und Backsteinmauer.

Grundriss eines Hauses mit Wohnzimmer, Küche, Essbereich, Schlafzimmern, Bad, Treppe und Garage.

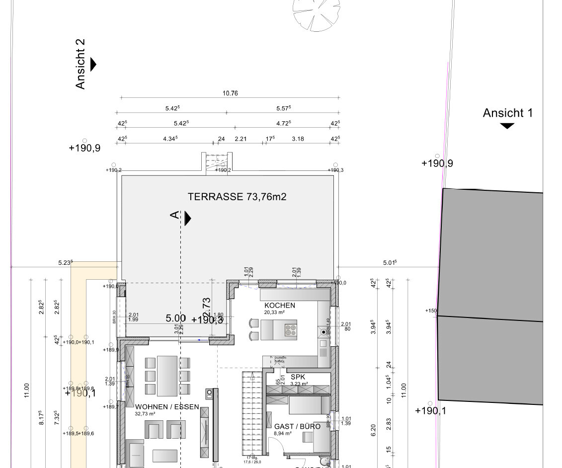
Grundriss eines Hauses: Terrasse, WOHNEN/ESSEN, KOCHEN, GAST/BÜRO

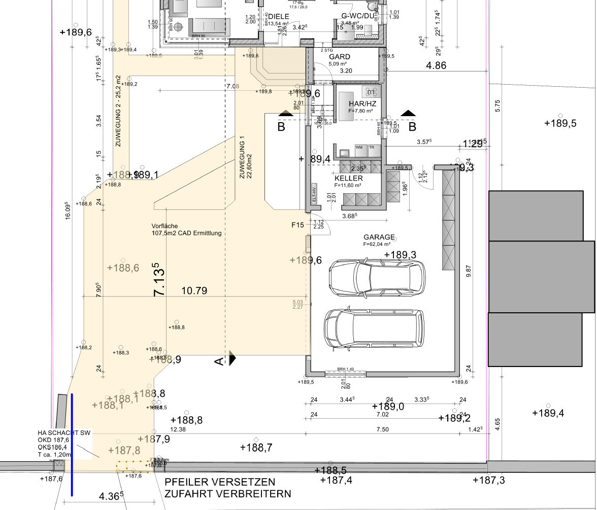
Grundrissplan eines Gebäudes mit Garage für zwei Pkw, Keller und Zufahrt.
N
nordanney
27.07.25 17:32
Bin kein Mensch für Grundrisse.

Aber wie kommst du auf die Idee, dass ein Fertighaus günstig ist? Das ist ein Irrglaube. Genauso wie der Zitronenfalter keine Zitronen faltet
Y
ypg
27.07.25 17:43
nordanney schrieb:

Aber wie kommst du auf die Idee, dass ein Fertighaus günstig ist? Das ist ein Irrglaube. Genauso wie der Zitronenfalter keine Zitronen faltet
Ich denke mal, dass der Fokus des Wechsels hier nicht Massivhaus/Holzständerbauweise sein wird, sondern Architekt/Generalunternehmer, sodass man die schlüsselfertige Sicherheit gegenüber unsichere Einzelvergabe hat
Y
ypg
27.07.25 17:46
nordanney schrieb:

Bin kein Mensch für Grundrisse.
Der ist hier wohl auch nicht gefragt.
HeinzBosslauch schrieb:

Haus tiefer setzen (ggf. Nachteile bei Entwässerung, Tageslicht und Optik),
Wie meinst Du das? Kannst Du die von Dir genannten Nachteile erklären?
N
nordanney
27.07.25 18:13
ypg schrieb:

Ich denke mal, dass der Fokus des Wechsels hier nicht Massivhaus/Holzständerbauweise sein wird, sondern Architekt/Generalunternehmer, sodass man die schlüsselfertige Sicherheit gegenüber unsichere Einzelvergabe hat
Vielleicht sollte man dem TE auch sagen, dass man auch mit Architekt und GU massiv bauen kann. Ebenso mit Festpreis.
Y
ypg
27.07.25 18:26
nordanney schrieb:

Vielleicht sollte man dem TE auch sagen, dass man auch mit Architekt und GU massiv bauen kann. Ebenso mit Festpreis.
Das wäre sicherlich eine gute Option. Sag ihm das mal 😉
architektmassivhausfertighausanbieterholzständerbauweisefundamentgaragegrundrisse