Hm ich weis auch net so recht. irgendwie gefallen mir diese Stadtvilla - Block - Grundrisse überhaupt nicht. Was natürlich Geschmackssache ist. Aber es scheint doch so als ob sie letzten Endes doch alle gleich aufgebaut sind. Deshalb versuche doch einen bestehenden und funktionierenden Blockhaus- Grundriss als Grundlage zu nehmen und nicht selbst herum zu basteln. Es wurden einige Dinge angesprochen, die dir jeder vernünftige Architekt um die Ohren hauen würde. Aber dem GU ist es doch am Ende herzlich egal, was er da für dich hinzaubert. Hauptsache du bist zufrieden und er bekommt sein Geld. Hast dir mal ein paar Musterhäuser angeschaut ? Ich finde das bringt sehr viel Erkenntnis !
lg
lg
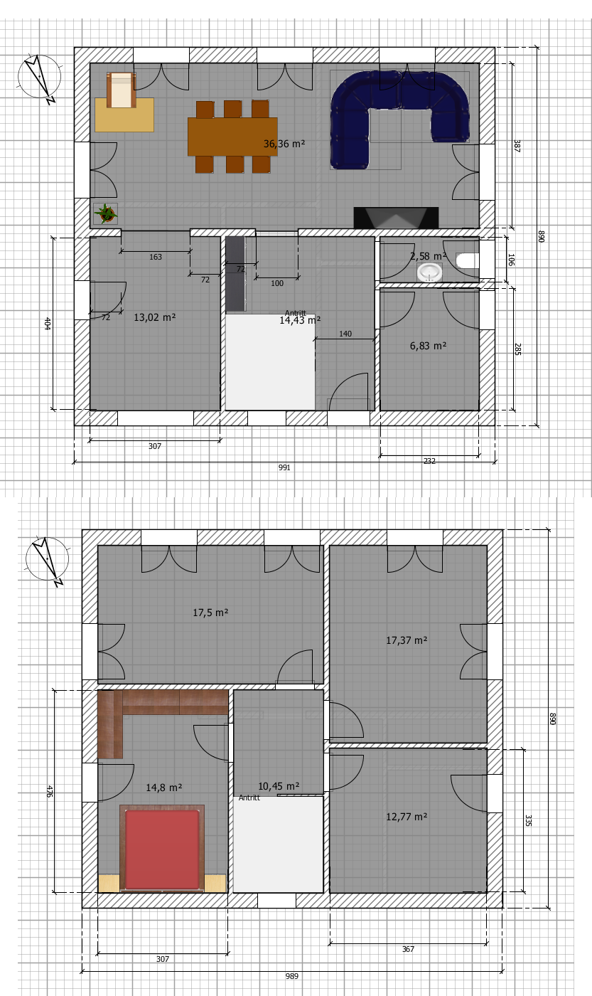
Es soll keine Stadtvilla mehr werden, sondern ein eher breites Haus mit irgendwas zwischen 140 und 200 cm Kniestock und Satteldach. Optisch zB wie ein Kampa Oslo.
Musterhäuser schauen wir uns noch und noecher an, nicht nur den Musterhauspark Dresden, waren in Chemnitz und werden auch nach Leipzig und evtl. Berlin fahren in den nächsten Wochen.
Musterhäuser schauen wir uns noch und noecher an, nicht nur den Musterhauspark Dresden, waren in Chemnitz und werden auch nach Leipzig und evtl. Berlin fahren in den nächsten Wochen.
Warum das OG nicht einfach etwas aufräumen? Nur damit die beiden Kinderzimmer identisch groß sind, schaffst du 3 tote Ecken, die weder den Kinderzimmern noch dem Flur gut tun.
Der Flur im EG geht übrigens gar nicht. Stell dir vor du kommst ins Haus und rechts wirst du von der Wand bedrängt und links von der Treppe.

Der Flur im EG geht übrigens gar nicht. Stell dir vor du kommst ins Haus und rechts wirst du von der Wand bedrängt und links von der Treppe.
so, jetzt aber:
Statt der Flurschränke könnte dort natürlich noch eine Tür hin, aber ist die wirklich, wirklich notwendig?
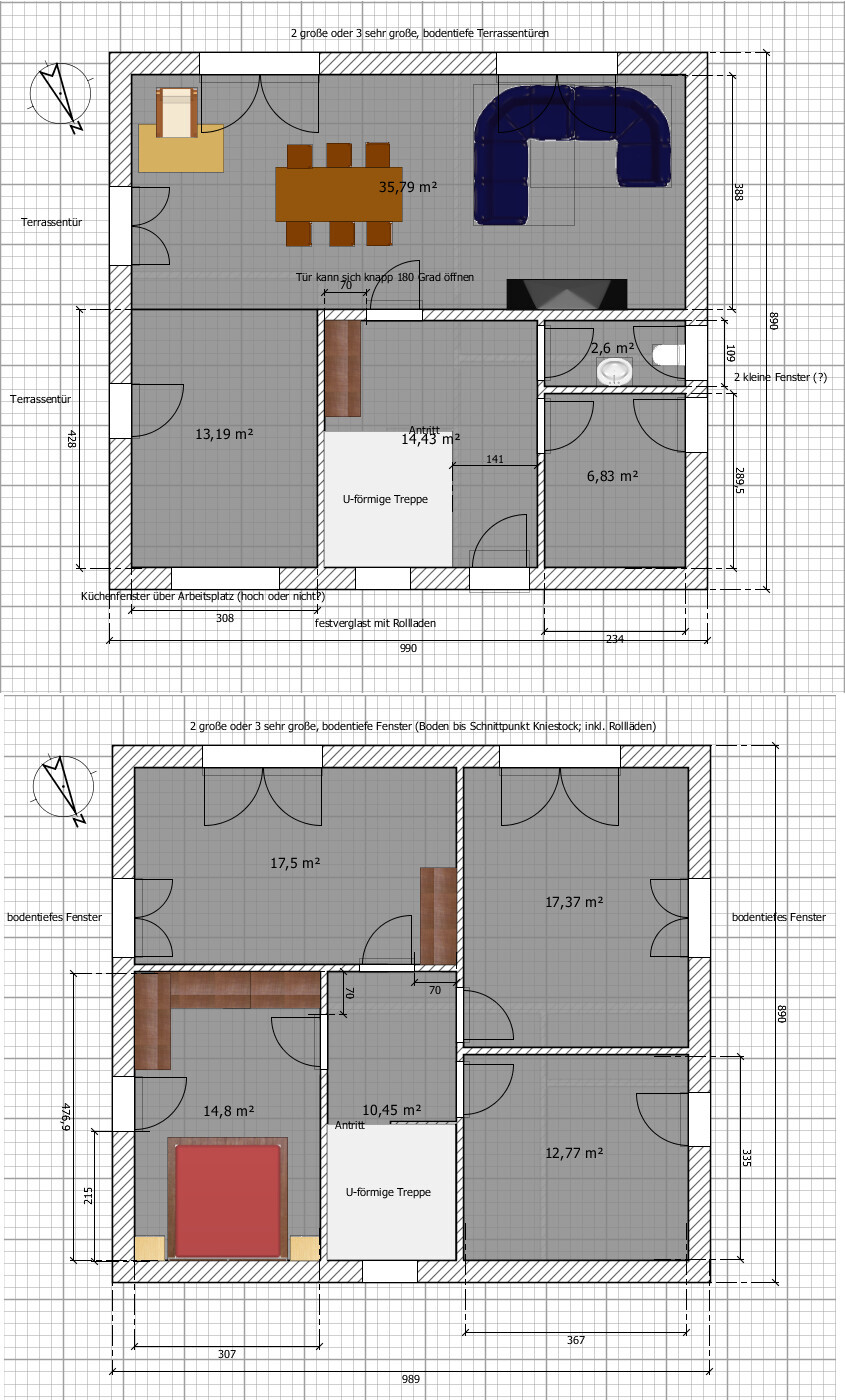
Die Fenster sind vielleicht sogar zu viele bzw. könnten einige davon auch festverglast werden. Der Terrassenzugang etwa sollte mittig im Wohnzimmer erfolgen, die anderen Fenster könnten halt trotzdem normale Fenster bleiben, falls wir doch mal den Möbelplan ändern.
Anstatt der Öffnung zum Wohnbereich ist dort eigentlich aber auch Platz für eine Tür.
Statt der Flurschränke könnte dort natürlich noch eine Tür hin, aber ist die wirklich, wirklich notwendig?
Die Fenster sind vielleicht sogar zu viele bzw. könnten einige davon auch festverglast werden. Der Terrassenzugang etwa sollte mittig im Wohnzimmer erfolgen, die anderen Fenster könnten halt trotzdem normale Fenster bleiben, falls wir doch mal den Möbelplan ändern.
Anstatt der Öffnung zum Wohnbereich ist dort eigentlich aber auch Platz für eine Tür.
Ähnliche Themen