Hallo,
ich hoffe, dass ich hier Hilfe finde und auch in dem richtigen Bereich frage.
Ich muss mein Haus auf dem Grundstück platzieren und bin damit total überfordert.
Größe des Grundstücks: 599 qm, BxL 18,96m x 26.04m
Hang: Keine Hanglage
Grundstück hat kein Hang und keine Verschattungen.
Grundflächenzahl: 0,4 Geschossflächenzahl 0,8
Doppelcarport mit 5 x 5m soll rauf.
Satteldach 45°
1 Geschoss, Dachgeschoss ausgebaut
Dachhälfte soll mit 9 kWp Anlage bestückt werden.
3 Personen, geplant 4
Erdwärmepumpe
Ich hoffe ich habe alle nötigen Informationen, habe mal 2 Probe Skizzen gemacht.
Liebe Grüße
David





ich hoffe, dass ich hier Hilfe finde und auch in dem richtigen Bereich frage.
Ich muss mein Haus auf dem Grundstück platzieren und bin damit total überfordert.
Größe des Grundstücks: 599 qm, BxL 18,96m x 26.04m
Hang: Keine Hanglage
Grundstück hat kein Hang und keine Verschattungen.
Grundflächenzahl: 0,4 Geschossflächenzahl 0,8
Doppelcarport mit 5 x 5m soll rauf.
Satteldach 45°
1 Geschoss, Dachgeschoss ausgebaut
Dachhälfte soll mit 9 kWp Anlage bestückt werden.
3 Personen, geplant 4
Erdwärmepumpe
Ich hoffe ich habe alle nötigen Informationen, habe mal 2 Probe Skizzen gemacht.
Liebe Grüße
David
J
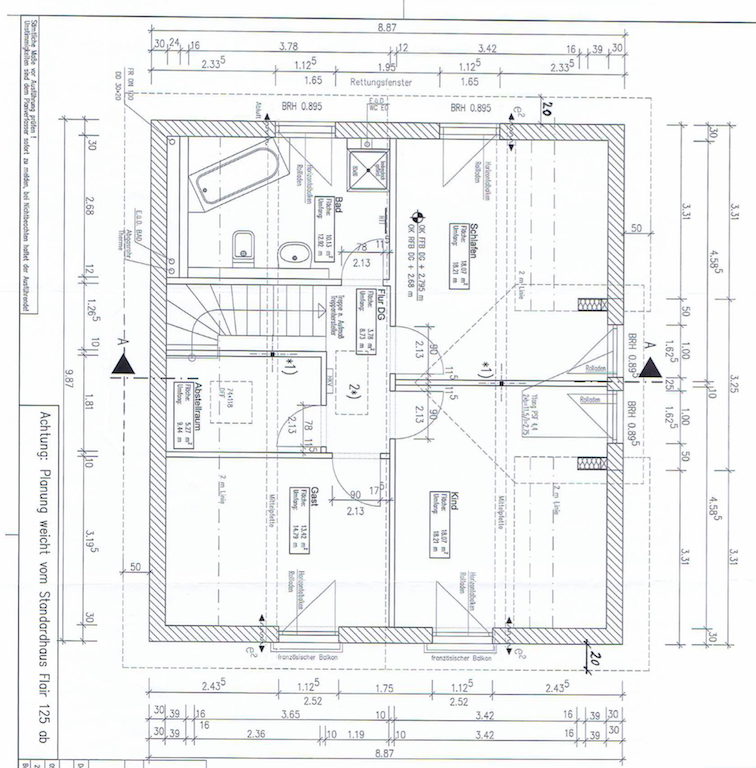
j.bautsch13.12.16 15:38Ich bin auf dem sprung deshalb nur schnell das was mir ins auge gesprungen ist: warum ist das esszimmer so weit weg von der Küche geplant und nicht direkt an der küche? ich würde wohnen nach oben schieben und das esszimmer neben die küche setzen
Es ist kein Wunder, dass Du das Haus ohne Resultat drehst und wendest - es ist nicht auf das Grundstück zugeschnitten! Die Raumanordnungen und auch die Fensterpositionen passen überhaupt nicht zur SW-Lage.
Wo befindet sich denn die Erschließung? Oder könnt Ihr noch wählen, ob S oder W?
Man kann das Haus drehen und wenden, sodass der Eingang entweder Ost, Süd oder West ist. Süd würde ich eh ausschließen, aber auch bei O oder W hast Du keine Fenster im Wohnbereich, wo mal Sonne reinscheinen kann.
Grüsse
Wo befindet sich denn die Erschließung? Oder könnt Ihr noch wählen, ob S oder W?
Man kann das Haus drehen und wenden, sodass der Eingang entweder Ost, Süd oder West ist. Süd würde ich eh ausschließen, aber auch bei O oder W hast Du keine Fenster im Wohnbereich, wo mal Sonne reinscheinen kann.
Grüsse
Also wir können das Haus noch drehen wie wir wollen und auch spiegeln.
Wir wissen eben nicht was da am besten ist.
Ich denke wenn die Dachfläche 30 grad Südwest wäre am besten die alternative wäre Haus um 90 grad drehen. Dann wäre das Dach 50 grad Südost. Ich denke mal zum Nachbarn oben hin und Carport dazwischen wäre gut, damit wenig Verschattung nach norden ist.
Wir wissen eben nicht was da am besten ist.
Ich denke wenn die Dachfläche 30 grad Südwest wäre am besten die alternative wäre Haus um 90 grad drehen. Dann wäre das Dach 50 grad Südost. Ich denke mal zum Nachbarn oben hin und Carport dazwischen wäre gut, damit wenig Verschattung nach norden ist.
bitninja schrieb:
Ich denke mal zum Nachbarn oben hin und Carport dazwischen wäre gut, damit wenig Verschattung nach norden ist.Bevor du dir überlegst, wieviel Schatten dein Haus zum Nachbarn wirft (sehr nobel von dir 😉), denk mal lieber über den wichtigen Hinweis von ypg nach: Das Haus passt nicht zum Grundstück. Da kannst du viermal dran drehen und bist so schlau wie vorher, hast im besten Fall das kleinste Übel gefunden.
Die Fenster können wir noch anpassen, dass ist kein Problem.
Mit Anpassung der Fenster ist es machbar oder?
Ich habe noch mal 2 Skizzen erstellt.
Die Raumordnung lässt sich auch ändern nur ist die Küche immer gegenüber vom Wohnzimmer und der HAR gegenüber vom Gästezimmer.
Ansonsten steh ich gerade auf dem Schlauch.


Mit Anpassung der Fenster ist es machbar oder?
Ich habe noch mal 2 Skizzen erstellt.
Die Raumordnung lässt sich auch ändern nur ist die Küche immer gegenüber vom Wohnzimmer und der HAR gegenüber vom Gästezimmer.
Ansonsten steh ich gerade auf dem Schlauch.
Ähnliche Themen