Wir stehen kurz vor der Antragstellung unseres Hauses. Es ist von einem Architekten auf einem bereits vorhandenen 624qm großen Grundstück geplant worden.
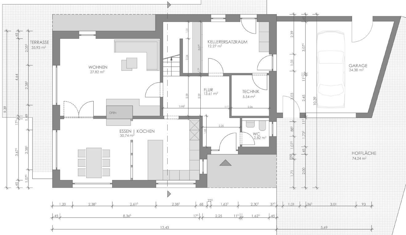
Anbei der Lageplan und Grundriss unseres Hauses. Wir planen ohne Keller, aber mit 2 Vollgeschossen. Besonders gut gefällt uns der großzügige Wohnbereich mit dem Ofen als zentrales Element sowohl in Wohnzimmer als auch in Küche/Esszimmer. Auch das offene Fachwerk als luftiger Raumtrenner (aus dem Bauernhof der verstorbenen Großeltern meiner Frau) zwischen Küche und Essgruppe gefällt uns wirklich sehr gut. Direkte Kritikpunkte im EG haben wir nicht.
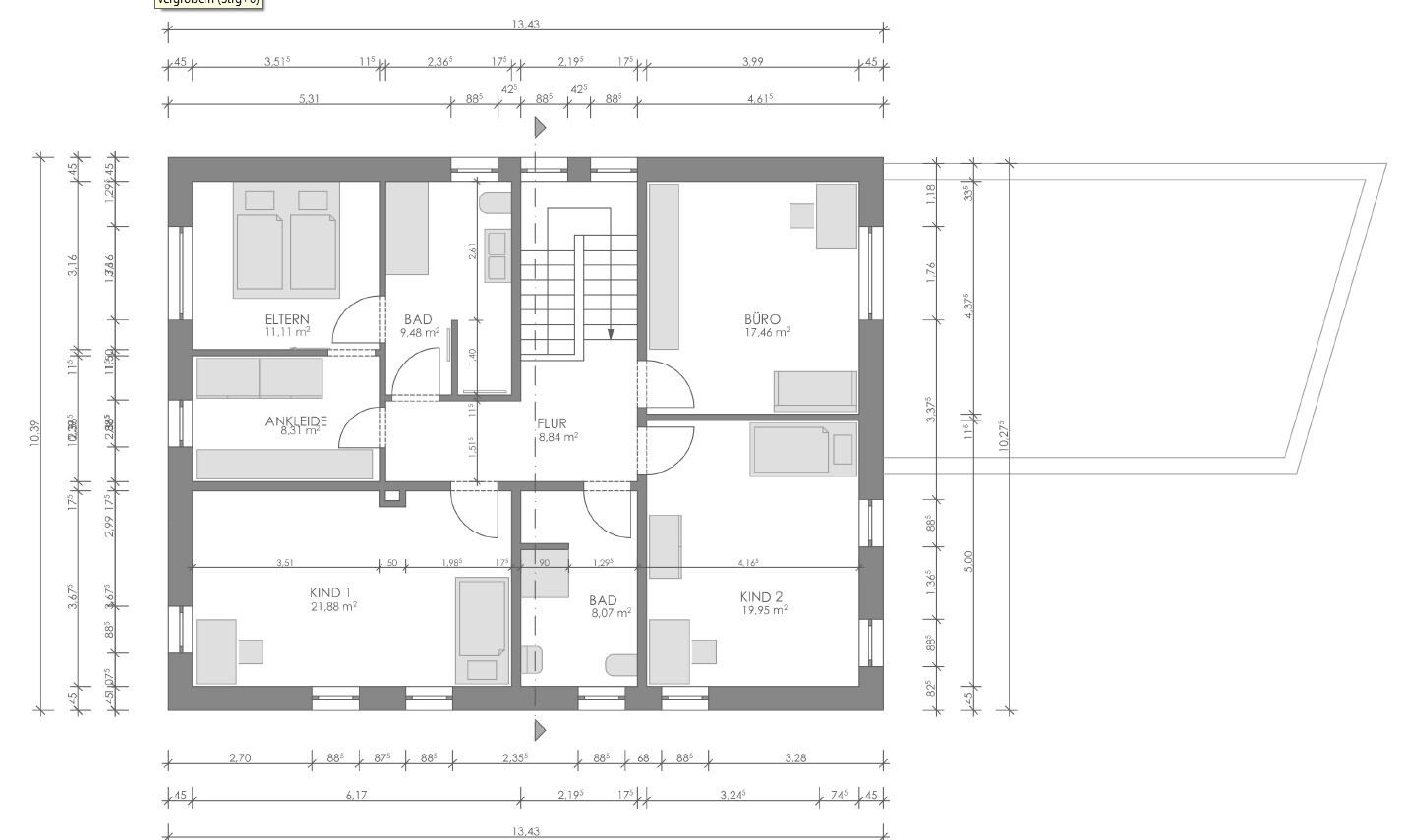
Am OG gefallen uns die großen Kinderzimmer und die Lage des Elternschlafzimmers im Norden. Etwas schade finden wir, dass die Ankleide nicht direkt vom Elternbad begehbar ist. Entwürfe in diese Richtung sagten uns aber alle nicht zu bzw. wären sie mit der Lage der Treppe bzw. mit der Lage des Schlafzimmers im Norden kollidiert.
Ich hoffe Ihr habt noch hilfreiche Tipps, Ideen oder Hinweise.



Anbei der Lageplan und Grundriss unseres Hauses. Wir planen ohne Keller, aber mit 2 Vollgeschossen. Besonders gut gefällt uns der großzügige Wohnbereich mit dem Ofen als zentrales Element sowohl in Wohnzimmer als auch in Küche/Esszimmer. Auch das offene Fachwerk als luftiger Raumtrenner (aus dem Bauernhof der verstorbenen Großeltern meiner Frau) zwischen Küche und Essgruppe gefällt uns wirklich sehr gut. Direkte Kritikpunkte im EG haben wir nicht.
Am OG gefallen uns die großen Kinderzimmer und die Lage des Elternschlafzimmers im Norden. Etwas schade finden wir, dass die Ankleide nicht direkt vom Elternbad begehbar ist. Entwürfe in diese Richtung sagten uns aber alle nicht zu bzw. wären sie mit der Lage der Treppe bzw. mit der Lage des Schlafzimmers im Norden kollidiert.
Ich hoffe Ihr habt noch hilfreiche Tipps, Ideen oder Hinweise.
Tii86 schrieb:
Wir stehen kurz vor der Antragstellung unseres Hauses.Na, dann tretet da mal auf die Bremse, hier werden einige Kritikpunkte kommen.Tii86 schrieb:
Am OG gefallen uns die großen KinderzimmerIch als Kind 1 hätte lieber das Büro. Generell sitzen mir da die Türen zu nah an den Wänden, d.h. ohne Schrankplatz dahinter.Wozu soll im Wohnzimmer der Rücksprung gut sein ?
Elternbadabflüsse über dem Wohnzimmer sind auch nicht der wahre Jakob.
https://www.instagram.com/11antgmxde/
https://www.linkedin.com/company/bauen-jetzt/
Ich find den Entwurf schon ziemlich gut. Besonders gefällt mir der Wohnbereich mit dem Kamin - klasse! Kritik hab ich auch:
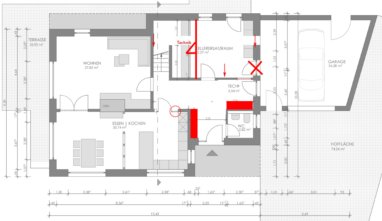
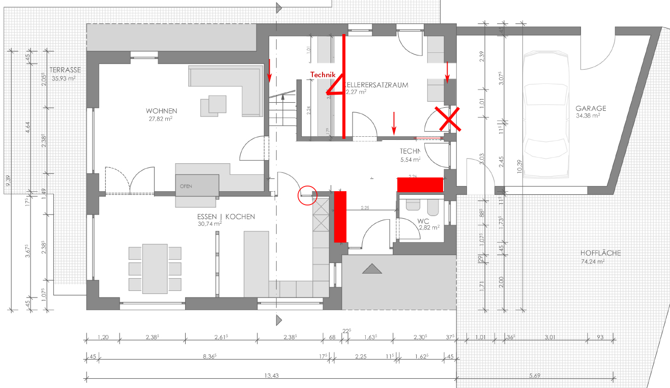
Im EG find ich den Eingangsbereich nicht gelungen. Man fühlt sich beengt und läuft gegen eine blöde Ecke des Technikraums. Garderobe geht eigentlich nur links vom Eingang - dann wird es noch enger. Das reicht zwar zum durchgehen aber es wirkt alles etwas liliput-mäßig. Stellflächen sind eher knapp. Außerdem find ich die Tür aus der Garage in den Kellerraum blöd. Besser wär doch, man landet im Flur, wo man seine Schuhe abwerfen kann.
Von daher hab ich mal diesen kleinen Technikraum gestrichen und den Flur verbreitert. Dafür zieh ich den Kellerraum insgesamt etwas größer und trenne einen neuen schmalen Technikraum unter der Treppe ab. Die Treppe selbst würde ich vermutlich auf der einen Seite auch etwas nach vorn ziehen.
Dazu die Tür aus der Garage versetzt, und gleich mal 2 Schränke für Klimbim eingezeichnet.

Das OG gefällt mir insgesamt leider gar nicht. Die Kinder in den Süden - ja das ist schön. Das hat dann aber irgendwie zu einem Mäusestall für das Schlafzimmer + Ankleide geführt. Die Bäder sind doch auch voll daneben - schmal und eng und wenn man in das Elternbad kommt ist es einfach nur ungemütlich.
Anbei mal eine Alternative skizziert. Das Büro schien mir doch mächtig groß. Wenn das wirklich sein muss, kann man die Wand vom Kinderbad noch verschieben.
Allerdings müsste man jetzt mal schauen, wo der Schornstein landet - das sollte aber zu machen sein.

Im EG find ich den Eingangsbereich nicht gelungen. Man fühlt sich beengt und läuft gegen eine blöde Ecke des Technikraums. Garderobe geht eigentlich nur links vom Eingang - dann wird es noch enger. Das reicht zwar zum durchgehen aber es wirkt alles etwas liliput-mäßig. Stellflächen sind eher knapp. Außerdem find ich die Tür aus der Garage in den Kellerraum blöd. Besser wär doch, man landet im Flur, wo man seine Schuhe abwerfen kann.
Von daher hab ich mal diesen kleinen Technikraum gestrichen und den Flur verbreitert. Dafür zieh ich den Kellerraum insgesamt etwas größer und trenne einen neuen schmalen Technikraum unter der Treppe ab. Die Treppe selbst würde ich vermutlich auf der einen Seite auch etwas nach vorn ziehen.
Dazu die Tür aus der Garage versetzt, und gleich mal 2 Schränke für Klimbim eingezeichnet.
Das OG gefällt mir insgesamt leider gar nicht. Die Kinder in den Süden - ja das ist schön. Das hat dann aber irgendwie zu einem Mäusestall für das Schlafzimmer + Ankleide geführt. Die Bäder sind doch auch voll daneben - schmal und eng und wenn man in das Elternbad kommt ist es einfach nur ungemütlich.
Anbei mal eine Alternative skizziert. Das Büro schien mir doch mächtig groß. Wenn das wirklich sein muss, kann man die Wand vom Kinderbad noch verschieben.
Allerdings müsste man jetzt mal schauen, wo der Schornstein landet - das sollte aber zu machen sein.
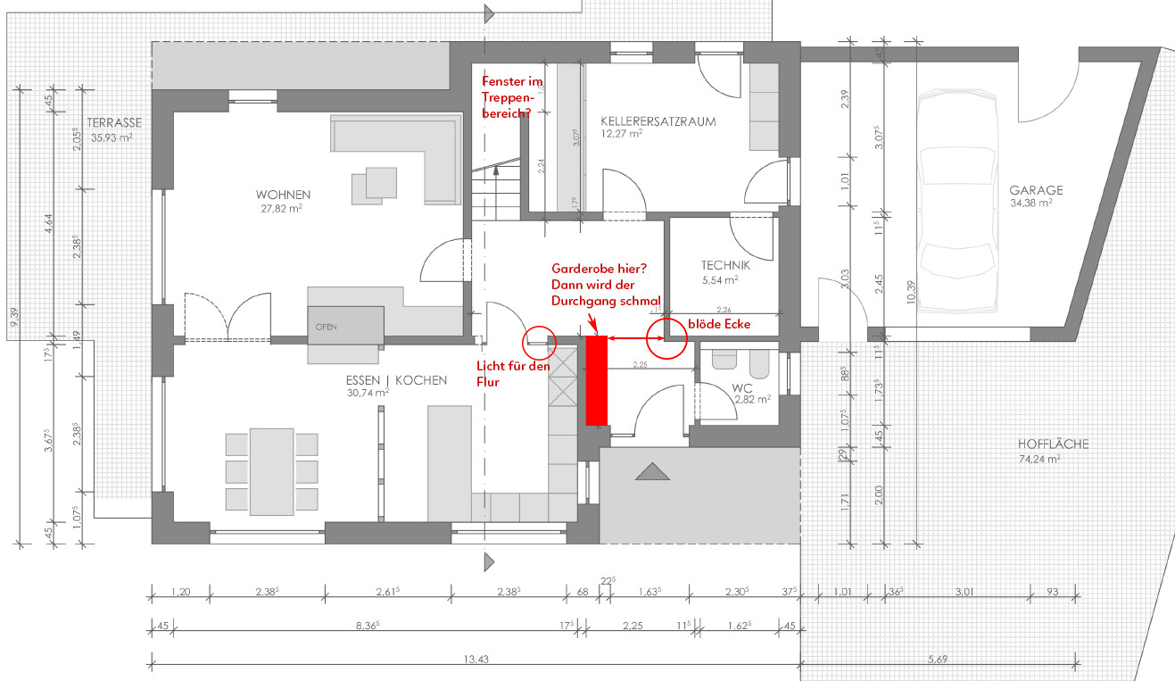
Edit: Ach ja, als Küchentür würde ich eine Standardtür mit Glaseinsatz nehmen. Sie müßte in den Flur aufschlagen, damit sie nicht im Weg ist. Das find ich aber besser, als wenn der Essensgeruch direkt gegenüber die Treppe hoch zieht. Grundsätzlich wäre der Geruch zwar kein Problem für mich - eine ordentliche Abluftanlage schafft das schon - aber wenn ich die Sache mit so einer einfachen Tür viel effektiver hin bekomme, dann mach ich die Tür rein.
Daneben noch einen Glaseinsatz in die Wand für mehr Licht im Flur. 🙂
Daneben noch einen Glaseinsatz in die Wand für mehr Licht im Flur. 🙂
Tii86 schrieb:
Auch das offene Fachwerk als luftiger Raumtrenner (aus dem Bauernhof der verstorbenen Großeltern meiner Frau) zwischen Küche und Essgruppe gefällt uns wirklich sehr gutDas ist wirklich eine schöne Erinnerung, nur finde ich den Platz mehr als nicht gelungen. Ihr verbaut Euch damit doch Bewegungsfläch wie auch mal die Vergrößerung der Esstafel.
Ich würde sie eher woanders sehen.. wo, weiss ich nicht genau. Vlt zw Wohn und Ess und halb gefüllt oder aber einfach nur an einer Wand dran.
Im OG könnte man ganz einfach den Flur etwas einkürzen und diese Fläche der Ankleide/Bad zuschlagen, zumindest alles verbinden.
Und was ist hier mit? https://www.hausbau-forum.de/threads/grundrissplanung-unbedingt-vor-beitrag-erstellung-lesen.11714/
Als erste einmal vielen Dank für das Feedback. Sehr konstruktiv alles, wirklich toll. Ich versuche mich mal etwas zu erklären...
Die Rohrleitung durch das Wohnzimmer sind uns auch aufgefallen, aber laut befreundetem Sanitär kein Problem, werden wir uns aber nochmal erkundigen...
Der Tausch Kind1 und Büro macht schon irgendwie Sinn, unsere Intention war es, den Kindern die größten Zimmer zu geben.
Kaho, deine Ideen zum Erdgeschoss bzgl. Flur und Kellerersatz gefallen mir ziemlich gut. Da werden wir wohl nochmal Hand anlegen. Der Flur ist so geworden wie er ist, weil wir zuerst einen Windfang geplant hatten, die Wand des Windfangs dann aber ersatzlos gestrichen wurde. Die Idee eines Windfangs gefällt uns aber grundsätzlich schon, und in dem vorhandenem EG könnte man ihn relativ einfach als Glastrennwand "nachrüsten". Da ist das letzte Wort aber noch nicht gesprochen...
Deinen OG-Entwurf kenn ich . :-D den haben wir genauso von unsere Architektin auch bekommen, uns gefällt das gerade durchlaufen Bad-Ankleide-Schlafzimmer nicht. Das Büro ist tatsächlich etwas groß. Hier soll es eventuell irgendwie einen Raumtrenner samt Schlafcouch für Gäste geben...
ypg, bzgl. der Bewegungsfläche gebe ich dir Recht, werde mich da aber nicht umstimmen lassen. Das Fachwerk gefällt uns da richtig gut. Es kommt schön zur Geltung und man hat vom Esstisch keinen direkten blick auf das "Küchenchaos" nach dem kochen. Vergrößerung der Esstafel geht evtl. Richtung Wohnzimmer durch die Doppeltür. Trotzdem ein guter Hinweis.
Um den Fragebogen werde ich mich mal im Laufe des Wochenendes kümmern.
Die Rohrleitung durch das Wohnzimmer sind uns auch aufgefallen, aber laut befreundetem Sanitär kein Problem, werden wir uns aber nochmal erkundigen...
Der Tausch Kind1 und Büro macht schon irgendwie Sinn, unsere Intention war es, den Kindern die größten Zimmer zu geben.
Kaho, deine Ideen zum Erdgeschoss bzgl. Flur und Kellerersatz gefallen mir ziemlich gut. Da werden wir wohl nochmal Hand anlegen. Der Flur ist so geworden wie er ist, weil wir zuerst einen Windfang geplant hatten, die Wand des Windfangs dann aber ersatzlos gestrichen wurde. Die Idee eines Windfangs gefällt uns aber grundsätzlich schon, und in dem vorhandenem EG könnte man ihn relativ einfach als Glastrennwand "nachrüsten". Da ist das letzte Wort aber noch nicht gesprochen...
Deinen OG-Entwurf kenn ich . :-D den haben wir genauso von unsere Architektin auch bekommen, uns gefällt das gerade durchlaufen Bad-Ankleide-Schlafzimmer nicht. Das Büro ist tatsächlich etwas groß. Hier soll es eventuell irgendwie einen Raumtrenner samt Schlafcouch für Gäste geben...
ypg, bzgl. der Bewegungsfläche gebe ich dir Recht, werde mich da aber nicht umstimmen lassen. Das Fachwerk gefällt uns da richtig gut. Es kommt schön zur Geltung und man hat vom Esstisch keinen direkten blick auf das "Küchenchaos" nach dem kochen. Vergrößerung der Esstafel geht evtl. Richtung Wohnzimmer durch die Doppeltür. Trotzdem ein guter Hinweis.
Um den Fragebogen werde ich mich mal im Laufe des Wochenendes kümmern.
Ähnliche Themen