ᐅ Grundstück mit Einschnitt Stromstation / L-Form- Ideensuche
Erstellt am: 22.10.19 22:42
T
TraufgängerT
Traufgänger22.10.19 22:42Hallo zusammen,
wir haben ein Grundstück erhalten an dessen Ecke eine Trafostation (Häuschen) steht. Wir sind diverse
Möglichkeiten durchgegangen und wir können uns zu keinem Ding richtig bekennen. Wir bauen das erste
Mal und vielleicht sehen andere Augen andere Möglichkeiten oder Ideen.
Bebauungsplan/Einschränkungen
Größe des Grundstücks
ca. 21m Breite x 30m Länge -Trafsostation = 570 m²
Hang
sehr eben, ca. 1m Unterschied auf dem ganzen Gelände,
Strasse höchster Punkt dann sanft Senkung auf -1m
Grundflächenzahl
siehe Plan
Geschossflächenzahl
siehe Plan
Baufenster, Baulinie und -grenze
Ist im Plan eingezeichnet, Abstände nach Landesbauordnung BW
Randbebauung
Nichtwohngebäude, auf der Seite rechts von uns ist das
geplante Wohnhaus mit 3m Garage auf Grenze vom Nachbar eingezeichnet
Anzahl Stellplatz
2 je Wohneinheit
Geschossigkeit
2
TH 6,00m
Dachform
frei, soweit ich das nachgelesen habe alles möglich mit den entspr. Winkeln
Stilrichtung
nichts vorgegeben
Ausrichtung
frei innerhalb des Baufensters
Maximale Höhen/Begrenzungen
TH 6,00m,
FH 8,50m
Max. 0,50 m Abweichung von der Einfamilienhaus zulässig
Sonstiges:
Trafostation Bestand oben links im Eck.
Abstandsflächen auf unserem Grundstück eingezeichnet,
aktuell ist dort ein Erdwall drumrum, den der Netzbetreiber
kurzfristig wegen Renovierung angefüllt hat auf unserem
Grundstück- kommt weg.
Anforderungen der Bauherren
Stilrichtung, Dachform, Gebäudetyp
Wir sind hin und hergerissen. Stadtvilla wäre toll, ich mag es großzügig und hell, Flachdach aus
Wasserdichtigkeitsgründen eher nicht. Was ist geplant: Wir wollen ein Wohngebäude Einfamilienhaus, denkbar
sind 2 Wohneinheiten für spätere Vermietung oder so oder gleich Einliegerwohnung fürs Homeoffice.
Keller, Geschosse
1 Keller für Hobby und Homeoffice geplant, 2 Vollgeschosse bei TH 6,00m möglich?
Anzahl der Personen, Alter
4 Mann, (evtl. bei einem Trefferl ein 5. möglich), 2x 40 + 2 und 5 Jahre
Raumbedarf im EG, OG
EG Wohnzimmer offen mit Esszimmer + Küche + Homeofficebüro oder alt. Schlafzimmer im Alter?
Dusche im EG.
Büro: Homeoffice, echte Nutzung als Arbeitsplatz.
Schlafgäste pro Jahr ca. 5-6
offene oder geschlossene Architektur
gerne offen, gerne Licht, ich mag bodentiefe Fenster, ich bin noch auf der Suche
nach Anregungen. Nach Dingen die ihr seht und die ihr heute so machen würdet,
die wir hier verschlafen.
moderne Bauweise, weiß helle Räume, Licht, Sonne, gerne gewagt, außergewöhnlich.
Bisher sind wir da vielleicht etwas simpel gestrickt.
Echte Küche, meine Frau kocht und backt, Kochinsel mit Theke zum Frühstücken
oder für die Pizza to go.
Anzahl Essplätze 6 daily use- 10 für Festle.
Kamin
ja, integrierter wäre uns aber ausreichend
Musik/Stereowand
im Moment keine Gedanken daran gemacht
Balkon, Dachterrasse
Balkon nach Süden geplant mit der Idee, dass es ein Sonnenschutz ist.
Garage, Carport
Doppelgarage 6x6 m mind. oder sogar größer für Fahrräder und Kinderspielzeugs
Wie würdet ihr die Garage anbauen, wo platzieren. Ich bin da nicht ganz
zufrieden, eine große Garage wäre fein, vielleicht doch sogar mit 8m Länge
für Wohnwagen? Nur die passt wohl nicht rein.
Rasengarten zum Fussballspielen und für die Kinder zum toben.
Hausentwurf
Planer eines Bauunternehmens
Was gefällt besonders? Warum?
Praktischer Zuschnitt mit ebenem Übergang nach draußen
im Wohnzimmer, offenes Dach, Gebälk sichtbar wäre heute
aber kompliziert und aufwendig wegen doppeltem Aufbau.
Was gefällt nicht? Warum?
Südansicht oben, Balkonausführung, Fenstertiefen und Anordnungen,
wir sind unschlüssig. Mir fehlt etwas der Pepp am Zuschnitt.
Wir freuen uns über Ideen oder Anregungen, seht ihr Sachen und
Wege die wir nicht sehen, neue Ansätze oder Dinge die wir voll
vergessen haben oder überbewerten?
Preisschätzung lt Architekt/Planer:
offen, Angebot ausstehend
Persönliches Preislimit fürs Haus, inkl Ausstattung:
sind noch in der Budgetfindung und können das noch nicht ganz überblicken
favorisierte Heiztechnik:
offen für alles - Fußbodenheizung obligatorisch
Wenn Ihr verzichten müsst, auf welche Details/Ausbauten
-könnt Ihr verzichten:
Studio
-könnt Ihr nicht verzichten:
Büro Homeoffice
Warum ist der Entwurf so geworden, wie er jetzt ist? ZB
Anzahl der Räume und Funktion, Mitbewerberangebot als Basis,
notwendigkeit der Anordnung wegen Grundstück
Was ist die wichtigste/grundlegende Frage zum Grundriss in 130 Zeichen zusammengefasst?
Was gibt es für Ideen der Umsetzung die uns nicht im Auge liegen und die eine optimale
Grundstücknutzung ermöglichen. Ideen zum Wohnhaus die uns inspirieren oder erden sind
willkommen. Wir bauen das erste Mal
Grundstücksplan:

Umgebung und Dachformen etc.

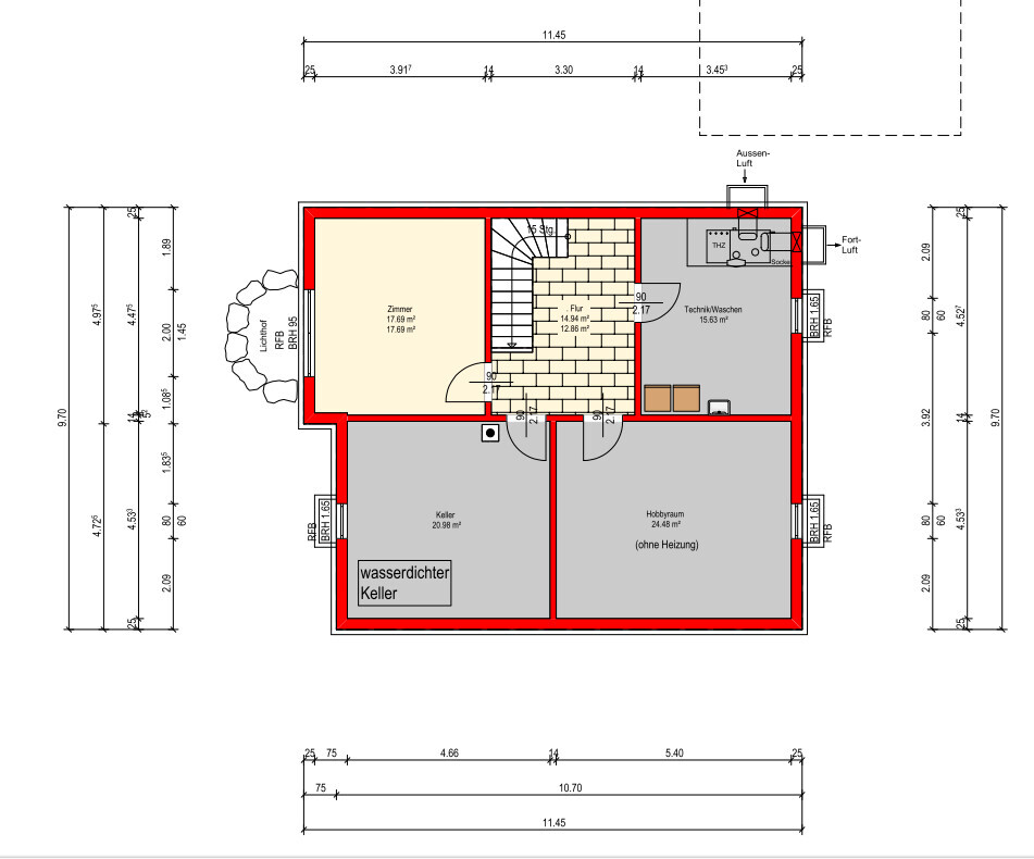
Grundriss UG

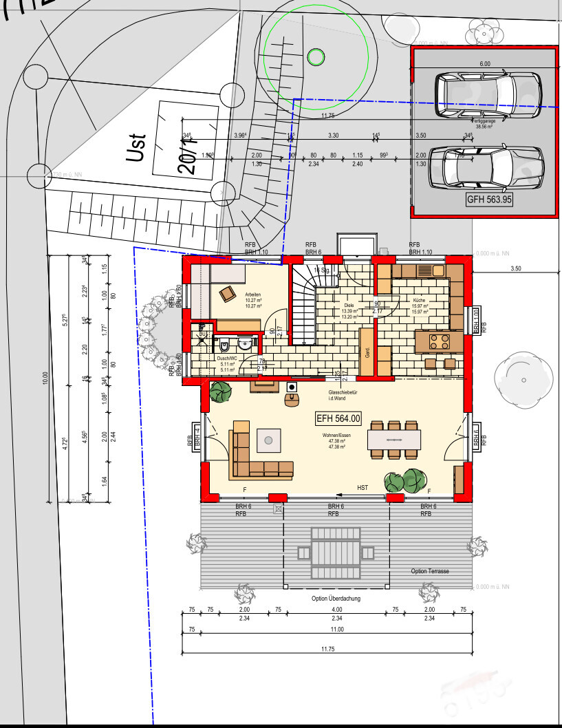
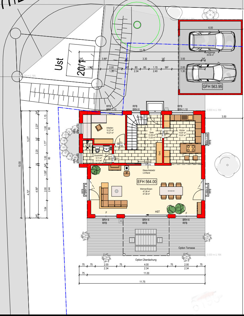
Grundriss EG

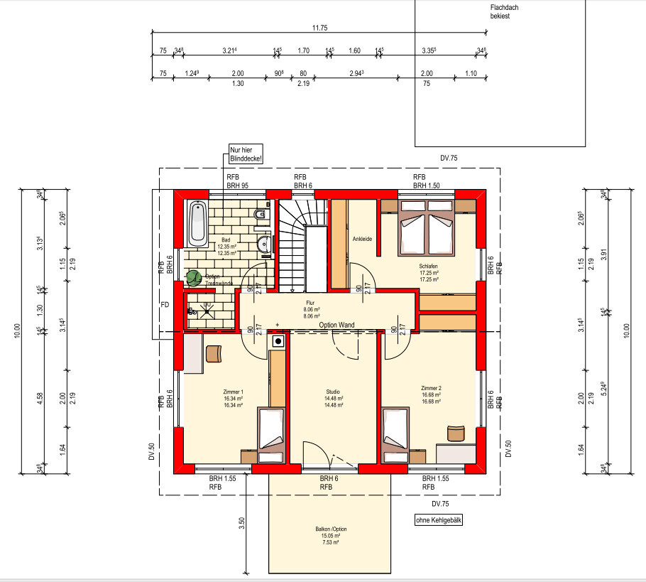
Grundriss DG

Schnitt

Mögliche 3D Darstellung


danke für alle Meinungen und Ideen
Gruss ausm schwäbischen
Traufgäger
wir haben ein Grundstück erhalten an dessen Ecke eine Trafostation (Häuschen) steht. Wir sind diverse
Möglichkeiten durchgegangen und wir können uns zu keinem Ding richtig bekennen. Wir bauen das erste
Mal und vielleicht sehen andere Augen andere Möglichkeiten oder Ideen.
Bebauungsplan/Einschränkungen
Größe des Grundstücks
ca. 21m Breite x 30m Länge -Trafsostation = 570 m²
Hang
sehr eben, ca. 1m Unterschied auf dem ganzen Gelände,
Strasse höchster Punkt dann sanft Senkung auf -1m
Grundflächenzahl
siehe Plan
Geschossflächenzahl
siehe Plan
Baufenster, Baulinie und -grenze
Ist im Plan eingezeichnet, Abstände nach Landesbauordnung BW
Randbebauung
Nichtwohngebäude, auf der Seite rechts von uns ist das
geplante Wohnhaus mit 3m Garage auf Grenze vom Nachbar eingezeichnet
Anzahl Stellplatz
2 je Wohneinheit
Geschossigkeit
2
TH 6,00m
Dachform
frei, soweit ich das nachgelesen habe alles möglich mit den entspr. Winkeln
Stilrichtung
nichts vorgegeben
Ausrichtung
frei innerhalb des Baufensters
Maximale Höhen/Begrenzungen
TH 6,00m,
FH 8,50m
Max. 0,50 m Abweichung von der Einfamilienhaus zulässig
Sonstiges:
Trafostation Bestand oben links im Eck.
Abstandsflächen auf unserem Grundstück eingezeichnet,
aktuell ist dort ein Erdwall drumrum, den der Netzbetreiber
kurzfristig wegen Renovierung angefüllt hat auf unserem
Grundstück- kommt weg.
Anforderungen der Bauherren
Stilrichtung, Dachform, Gebäudetyp
Wir sind hin und hergerissen. Stadtvilla wäre toll, ich mag es großzügig und hell, Flachdach aus
Wasserdichtigkeitsgründen eher nicht. Was ist geplant: Wir wollen ein Wohngebäude Einfamilienhaus, denkbar
sind 2 Wohneinheiten für spätere Vermietung oder so oder gleich Einliegerwohnung fürs Homeoffice.
Keller, Geschosse
1 Keller für Hobby und Homeoffice geplant, 2 Vollgeschosse bei TH 6,00m möglich?
Anzahl der Personen, Alter
4 Mann, (evtl. bei einem Trefferl ein 5. möglich), 2x 40 + 2 und 5 Jahre
Raumbedarf im EG, OG
EG Wohnzimmer offen mit Esszimmer + Küche + Homeofficebüro oder alt. Schlafzimmer im Alter?
Dusche im EG.
Büro: Homeoffice, echte Nutzung als Arbeitsplatz.
Schlafgäste pro Jahr ca. 5-6
offene oder geschlossene Architektur
gerne offen, gerne Licht, ich mag bodentiefe Fenster, ich bin noch auf der Suche
nach Anregungen. Nach Dingen die ihr seht und die ihr heute so machen würdet,
die wir hier verschlafen.
moderne Bauweise, weiß helle Räume, Licht, Sonne, gerne gewagt, außergewöhnlich.
Bisher sind wir da vielleicht etwas simpel gestrickt.
Echte Küche, meine Frau kocht und backt, Kochinsel mit Theke zum Frühstücken
oder für die Pizza to go.
Anzahl Essplätze 6 daily use- 10 für Festle.
Kamin
ja, integrierter wäre uns aber ausreichend
Musik/Stereowand
im Moment keine Gedanken daran gemacht
Balkon, Dachterrasse
Balkon nach Süden geplant mit der Idee, dass es ein Sonnenschutz ist.
Garage, Carport
Doppelgarage 6x6 m mind. oder sogar größer für Fahrräder und Kinderspielzeugs
Wie würdet ihr die Garage anbauen, wo platzieren. Ich bin da nicht ganz
zufrieden, eine große Garage wäre fein, vielleicht doch sogar mit 8m Länge
für Wohnwagen? Nur die passt wohl nicht rein.
Rasengarten zum Fussballspielen und für die Kinder zum toben.
Hausentwurf
Planer eines Bauunternehmens
Was gefällt besonders? Warum?
Praktischer Zuschnitt mit ebenem Übergang nach draußen
im Wohnzimmer, offenes Dach, Gebälk sichtbar wäre heute
aber kompliziert und aufwendig wegen doppeltem Aufbau.
Was gefällt nicht? Warum?
Südansicht oben, Balkonausführung, Fenstertiefen und Anordnungen,
wir sind unschlüssig. Mir fehlt etwas der Pepp am Zuschnitt.
Wir freuen uns über Ideen oder Anregungen, seht ihr Sachen und
Wege die wir nicht sehen, neue Ansätze oder Dinge die wir voll
vergessen haben oder überbewerten?
Preisschätzung lt Architekt/Planer:
offen, Angebot ausstehend
Persönliches Preislimit fürs Haus, inkl Ausstattung:
sind noch in der Budgetfindung und können das noch nicht ganz überblicken
favorisierte Heiztechnik:
offen für alles - Fußbodenheizung obligatorisch
Wenn Ihr verzichten müsst, auf welche Details/Ausbauten
-könnt Ihr verzichten:
Studio
-könnt Ihr nicht verzichten:
Büro Homeoffice
Warum ist der Entwurf so geworden, wie er jetzt ist? ZB
Anzahl der Räume und Funktion, Mitbewerberangebot als Basis,
notwendigkeit der Anordnung wegen Grundstück
Was ist die wichtigste/grundlegende Frage zum Grundriss in 130 Zeichen zusammengefasst?
Was gibt es für Ideen der Umsetzung die uns nicht im Auge liegen und die eine optimale
Grundstücknutzung ermöglichen. Ideen zum Wohnhaus die uns inspirieren oder erden sind
willkommen. Wir bauen das erste Mal
Grundstücksplan:
Umgebung und Dachformen etc.
Grundriss UG
Grundriss EG
Grundriss DG
Schnitt
Mögliche 3D Darstellung
danke für alle Meinungen und Ideen
Gruss ausm schwäbischen
Traufgäger
"Dachformen frei, aber ZD 20 bis 38° oder PD 10 bis 20°" - das erinnert mich an den Spruch Henry Fords, man könne sein Auto in allen Farben kaufen, es müsse nur schwarz sein. Wieso vermißt / kartiert man einen Erdwall, der nur temporär sein soll ?
https://www.instagram.com/11antgmxde/
https://www.linkedin.com/company/bauen-jetzt/
https://www.instagram.com/11antgmxde/
https://www.linkedin.com/company/bauen-jetzt/
T
Traufgänger23.10.19 09:03Hallo 11ant, der Erdhügel war vor der Beauftragung des Vermessers nicht da und ist mir erst aufegfallen, als er damit zurück kam. Der Rückbau ist beim Energieversorger angemahnt, die haben ihren Aushub bei mir verteilt.
Bezgl. der Dachformen ist es tatsächlich so, viel Freiheit herrscht. Die meisten Häuser die jetzt gebaut werden sind 2 Vollgeschosse als Cityvilla mit Zeltdach heisst das glaub oder? Also wie Würfel mit Dächle
Gruss Traufgänger
Bezgl. der Dachformen ist es tatsächlich so, viel Freiheit herrscht. Die meisten Häuser die jetzt gebaut werden sind 2 Vollgeschosse als Cityvilla mit Zeltdach heisst das glaub oder? Also wie Würfel mit Dächle
Gruss Traufgänger
Ich find das noch ok. So ein paar Kleinigkeiten:
1. der Balkon. Was wollt Ihr damit? Wenn man Garten hat, sitzt da niemand. Weg damit.
2. Die Ecke im EG. Was soll die bringen? Geld spart man damit garantiert nicht. Also auch weg damit.
3. Garage 90° drehen, damit man gerade rein fährt von der Straße. Das Gekurve vor der Haustür bei der Enge nervt auf Dauer voll. Ob die so nah an die Straße darf, ist m.E. sowieso fraglich. Eventuell muss man noch etwas in den Süden rutschen. Oder man baut besser gleich nur ein Carport - das hat mehr Optionen.
4. Das Küchenfenster nördlich hat ja durch die Garage auch ne Megaaussicht. So kann man es fast weglassen.
5. Die Trennwand zwischen Schlafzimmer und Ankleide kann auch wegfallen. Macht das Zimmer nur klein und dunkel und hat sonst null Wert.
Ich würde mal so sagen: ein solider Grundriss mit ein paar kleinen Macken, die man noch beseitigen kann.
Aber ist es das, was Ihr wollt? Deine Frau kocht gern? Das wär für mich z.B. ein Grund eine Traumküche mit optimierten Arbeitsbereich (frag mal @kbt09 wie sowas geht), Kochinsel, viel Licht und direktem Zugang zur Terrasse zu planen.
1. der Balkon. Was wollt Ihr damit? Wenn man Garten hat, sitzt da niemand. Weg damit.
2. Die Ecke im EG. Was soll die bringen? Geld spart man damit garantiert nicht. Also auch weg damit.
3. Garage 90° drehen, damit man gerade rein fährt von der Straße. Das Gekurve vor der Haustür bei der Enge nervt auf Dauer voll. Ob die so nah an die Straße darf, ist m.E. sowieso fraglich. Eventuell muss man noch etwas in den Süden rutschen. Oder man baut besser gleich nur ein Carport - das hat mehr Optionen.
4. Das Küchenfenster nördlich hat ja durch die Garage auch ne Megaaussicht. So kann man es fast weglassen.
5. Die Trennwand zwischen Schlafzimmer und Ankleide kann auch wegfallen. Macht das Zimmer nur klein und dunkel und hat sonst null Wert.
Ich würde mal so sagen: ein solider Grundriss mit ein paar kleinen Macken, die man noch beseitigen kann.
Aber ist es das, was Ihr wollt? Deine Frau kocht gern? Das wär für mich z.B. ein Grund eine Traumküche mit optimierten Arbeitsbereich (frag mal @kbt09 wie sowas geht), Kochinsel, viel Licht und direktem Zugang zur Terrasse zu planen.
M
Mottenhausen23.10.19 12:13Ich bin mal frech: Ich empfinde das Haus-Garagen-Enseble schön, aber für das Grundstück unpassend. Zumal die Garage außerhalb der Baugrenze äußerst fraglich ist, Nebenanlagen sind oft nur innerhalb der Baugrenzen zulässig (Bebauungsplan!).
Schau mal welche zusammenhängende Gartengröße übrig bleibt, wenn man kein universelles, sondern ein aufs Grundstück zugeschnittenes Objekt platzieren würde und zudem mit einer Einzelgarage klarkommen würde:

Grundfläche vom Haus ist bei 7,5x14m identisch zu deinem Entwurf.
Am schlimmsten im aktuellen Entwurf ist die Küche: aus dem einen Fenster schaut man auf die eigene Garage, aus dem anderen Fenster auf die Garage des Nachbarn. Ok: für Garagenfans sicher toll.
Schau mal welche zusammenhängende Gartengröße übrig bleibt, wenn man kein universelles, sondern ein aufs Grundstück zugeschnittenes Objekt platzieren würde und zudem mit einer Einzelgarage klarkommen würde:
Grundfläche vom Haus ist bei 7,5x14m identisch zu deinem Entwurf.
Am schlimmsten im aktuellen Entwurf ist die Küche: aus dem einen Fenster schaut man auf die eigene Garage, aus dem anderen Fenster auf die Garage des Nachbarn. Ok: für Garagenfans sicher toll.
T
Traufgänger27.10.19 18:25hallo, danke für eure Rückmeldungen.
@kaho674 :
Wegen den gedrehten Garagen: Wenn wir die Garagen gerade stellen, dann müssen wir 5,00m Parkraum vor der Garage + 6,00 m Gargaenlänge
reinrutsche nach Süden. Ich will versuchen so weit wie möglich im Norden zu bleiben um den Garten maximal zu bekommen.
Wegen dem Balkon: Wir haben überlegt vor dem Wohnzimmer im EG gleich einen Balkon zu machen als Sonnenschutz. Das mittlere Zimmer Studio wäre gedacht für die Kleinen als Spiel/Freundezimmer oder als Notzimmer für Gäste.
Die Ecke im EG war ein Gag von einem Schnitt vom Rensch-Haus, das ist drin geblieben als optische Auflockerung, ich bin auch am überlegen ob das rausfliegt.
Wege dem Küchenfenster: Ja die Aussicht ist nicht mega. Klar die Garage des Nachbarn steht da auch. Die Küche auf die andere Seite nach Nord-West wäre aber auch nichts, weil da das Trafohäuschen rumsteht. Die Küche in Süden wollten wir nicht, damit wir ein schönes großes Wohnzimmer haben, ich tendiere eher zu Küche nicht direkt einsehbar vom sofa aus... man hat immer das Zeug herumstehen und glotzt da darauf.
@Mottenhausen :
Die Idee war, dass wir auf dem Dach eine schöne Photovoltaikanlage installeiren können und ein schönes großes nach Süden gerichtetes Wohnzimmer haben. Leider brauchen wir eine breite Garage mind. 6x6 mit 2 Stellplätzen.
Das Baufenster ist zu eng in Richtung Trafohäuschen :/
Weitere Rückmeldungen gerne
@kaho674 :
Wegen den gedrehten Garagen: Wenn wir die Garagen gerade stellen, dann müssen wir 5,00m Parkraum vor der Garage + 6,00 m Gargaenlänge
reinrutsche nach Süden. Ich will versuchen so weit wie möglich im Norden zu bleiben um den Garten maximal zu bekommen.
Wegen dem Balkon: Wir haben überlegt vor dem Wohnzimmer im EG gleich einen Balkon zu machen als Sonnenschutz. Das mittlere Zimmer Studio wäre gedacht für die Kleinen als Spiel/Freundezimmer oder als Notzimmer für Gäste.
Die Ecke im EG war ein Gag von einem Schnitt vom Rensch-Haus, das ist drin geblieben als optische Auflockerung, ich bin auch am überlegen ob das rausfliegt.
Wege dem Küchenfenster: Ja die Aussicht ist nicht mega. Klar die Garage des Nachbarn steht da auch. Die Küche auf die andere Seite nach Nord-West wäre aber auch nichts, weil da das Trafohäuschen rumsteht. Die Küche in Süden wollten wir nicht, damit wir ein schönes großes Wohnzimmer haben, ich tendiere eher zu Küche nicht direkt einsehbar vom sofa aus... man hat immer das Zeug herumstehen und glotzt da darauf.
@Mottenhausen :
Die Idee war, dass wir auf dem Dach eine schöne Photovoltaikanlage installeiren können und ein schönes großes nach Süden gerichtetes Wohnzimmer haben. Leider brauchen wir eine breite Garage mind. 6x6 mit 2 Stellplätzen.
Das Baufenster ist zu eng in Richtung Trafohäuschen :/
Weitere Rückmeldungen gerne
Ähnliche Themen