Hallo liebe Bauherrenkollegen,
nach stillem Mitlesen wird es nun endlich ernst bei uns!
Wir haben ein Baugrundstück erworben und sind jetzt fleißig am Planen.
Es gibt auch schon den Entwurf eines Architekten und unseren Eigenentwurf.
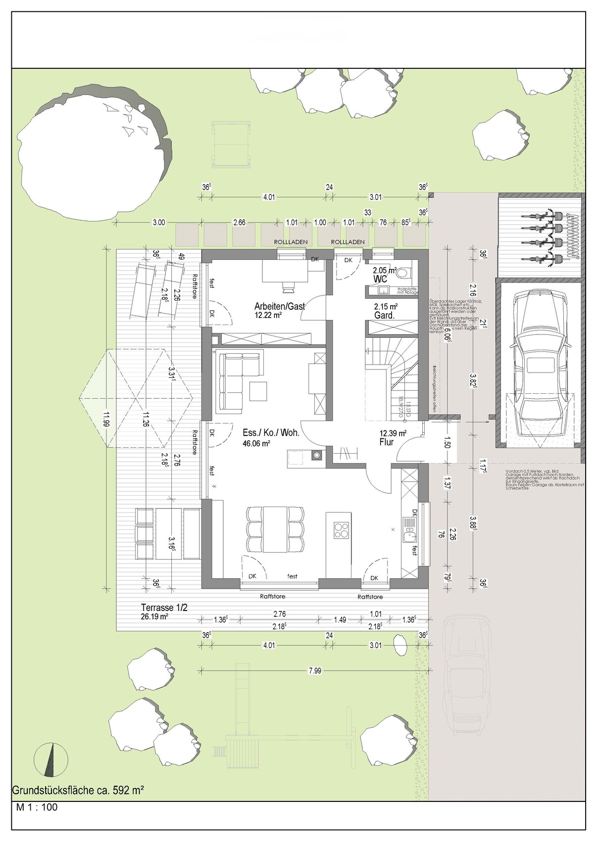
Ich hänge hier beides mal an, wobei der Architektenentwurf mehr zur Grundstücksansicht und für die Garagenplanung dient!
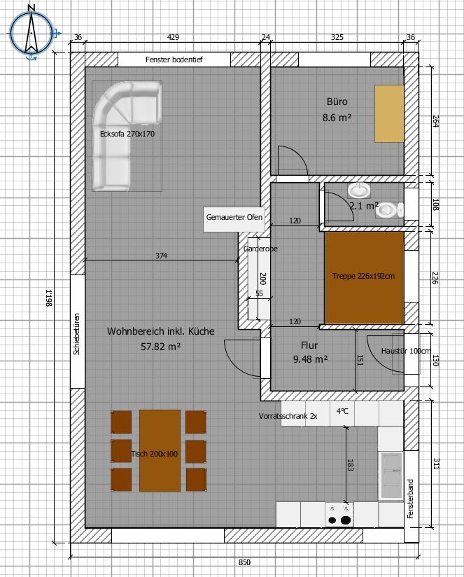
Wir haben in unserem eigenen Entwurf etliches geändert und zwar den offenen Küchen-Ess-Wohnbereich vergrößert, da wir im Norden oben ein großes freies Feld haben und den Ausblick auch im EG geniessen wollen. Geplante Bauweise ist Ziegel-Massivbau.
Mit dem OG sind wir schon sehr zufrieden, nur im EG sind wir uns nicht schlüssig ob das alles so gut aufgeht!
Würde mich sehr freuen von euch erfahrenen Bauherren noch ein paar Tipps zu bekommen.
Ich hoffe die Pläne sind verständlich ;-)
Vielen Dank schon mal und Grüße
aus Bayern!
Hier noch die Eckdaten zum Fragenkatalog:
Bebauungsplan/Einschränkungen
Größe des Grundstücks -> 595qm
Hang ->Nein
Grundflächenzahl -> 0.4
Geschossflächenzahl -> ?
Baufenster,Baulinieund –grenze -> blaue Linie begrenzt das Baufenster, siehe Grundstücksplan
Randbebauung -> nur Garage
Anzahl Stellplatz -> min. 2
Geschossigkeit -> 2
Dachform -> Satteldach
Stilrichtung -> modern
Ausrichtung -> siehe Plan
Maximale Höhen/Begrenzungen -> max. traufseitige Wandhöhe 6,40m
weitere Vorgaben -
Anforderungen der Bauherren
Stilrichtung, Dachform, Gebäudetyp
Keller, Geschosse -> Keller, EG und OG mit offenem Dachstuhl
Anzahl der Personen, Alter -> 4 -> 2 Erwachsene + 2 Kleinkinder
Raumbedarf im EG, OG -> siehe Plan
Büro: Familiennutzung oder Homeoffice? -> nur Familiennutzung
Schlafgäste pro Jahr -> nicht geplant
offene oder geschlossene Architektur -> offen
konservativ oder moderne Bauweise -> modern
offene Küche, Kochinsel -> offen
Anzahl Essplätze -> min. 6 Personen
Kamin -> ja
Musik/Stereowand -> kein Muß
Balkon, Dachterrasse -> nein
Garage, Carport -> min. Einzelgarage mit angebautem Stauraum für Fahrrad
Nutzgarten, Treibhaus -> evtl kleiner Nutzgarten
weitere Wünsche/Besonderheiten/Tagesablauf
Hausentwurf
Von wem stammt die Planung:
-Planer eines Bauunternehmens -> nein
-Architekt -> Erstentwurf
-Do-it-Yourself von Euch -> Zweitentwurf
Was gefällt besonders? -> Aufteilung OG
Was gefällt nicht? -> unsicher ob Eingangsbereich und Treppe zu eng oder drückend wirken?!
Preisschätzung lt Architekt/Planer: -> noch keine
Persönliches Preislimit fürs Haus, inkl Ausstattung: -> 400.000€
favorisierte Heiztechnik: -> Luftwärmepumpe mit Innenaufstellung
Wenn Ihr verzichten müsst,auf welche Details/Ausbauten
-könnt Ihr verzichten: -
-könnt Ihr nicht verzichten: -




nach stillem Mitlesen wird es nun endlich ernst bei uns!
Wir haben ein Baugrundstück erworben und sind jetzt fleißig am Planen.
Es gibt auch schon den Entwurf eines Architekten und unseren Eigenentwurf.
Ich hänge hier beides mal an, wobei der Architektenentwurf mehr zur Grundstücksansicht und für die Garagenplanung dient!
Wir haben in unserem eigenen Entwurf etliches geändert und zwar den offenen Küchen-Ess-Wohnbereich vergrößert, da wir im Norden oben ein großes freies Feld haben und den Ausblick auch im EG geniessen wollen. Geplante Bauweise ist Ziegel-Massivbau.
Mit dem OG sind wir schon sehr zufrieden, nur im EG sind wir uns nicht schlüssig ob das alles so gut aufgeht!
Würde mich sehr freuen von euch erfahrenen Bauherren noch ein paar Tipps zu bekommen.
Ich hoffe die Pläne sind verständlich ;-)
Vielen Dank schon mal und Grüße
aus Bayern!
Hier noch die Eckdaten zum Fragenkatalog:
Bebauungsplan/Einschränkungen
Größe des Grundstücks -> 595qm
Hang ->Nein
Grundflächenzahl -> 0.4
Geschossflächenzahl -> ?
Baufenster,Baulinieund –grenze -> blaue Linie begrenzt das Baufenster, siehe Grundstücksplan
Randbebauung -> nur Garage
Anzahl Stellplatz -> min. 2
Geschossigkeit -> 2
Dachform -> Satteldach
Stilrichtung -> modern
Ausrichtung -> siehe Plan
Maximale Höhen/Begrenzungen -> max. traufseitige Wandhöhe 6,40m
weitere Vorgaben -
Anforderungen der Bauherren
Stilrichtung, Dachform, Gebäudetyp
Keller, Geschosse -> Keller, EG und OG mit offenem Dachstuhl
Anzahl der Personen, Alter -> 4 -> 2 Erwachsene + 2 Kleinkinder
Raumbedarf im EG, OG -> siehe Plan
Büro: Familiennutzung oder Homeoffice? -> nur Familiennutzung
Schlafgäste pro Jahr -> nicht geplant
offene oder geschlossene Architektur -> offen
konservativ oder moderne Bauweise -> modern
offene Küche, Kochinsel -> offen
Anzahl Essplätze -> min. 6 Personen
Kamin -> ja
Musik/Stereowand -> kein Muß
Balkon, Dachterrasse -> nein
Garage, Carport -> min. Einzelgarage mit angebautem Stauraum für Fahrrad
Nutzgarten, Treibhaus -> evtl kleiner Nutzgarten
weitere Wünsche/Besonderheiten/Tagesablauf
Hausentwurf
Von wem stammt die Planung:
-Planer eines Bauunternehmens -> nein
-Architekt -> Erstentwurf
-Do-it-Yourself von Euch -> Zweitentwurf
Was gefällt besonders? -> Aufteilung OG
Was gefällt nicht? -> unsicher ob Eingangsbereich und Treppe zu eng oder drückend wirken?!
Preisschätzung lt Architekt/Planer: -> noch keine
Persönliches Preislimit fürs Haus, inkl Ausstattung: -> 400.000€
favorisierte Heiztechnik: -> Luftwärmepumpe mit Innenaufstellung
Wenn Ihr verzichten müsst,auf welche Details/Ausbauten
-könnt Ihr verzichten: -
-könnt Ihr nicht verzichten: -
Hallo kbt09,
ja OG = Vollgeschoss, also wir liegen hier bei 250cm Wandhöhe plus offenem Dachstuhl. In den Kinderzimmern planen wir noch Emporen ein.
Und ja die Treppenfrage....Gruß an BeHaElJa ;-) mit ihm habe auch auch schon deswegen geschrieben!
Ich habe mir diverse Treppengrundrisse angeschaut, siehe Anhänge!
Habe mich dann für diese Variante entschieden, da ich diese noch gut rein bekomme.
Bin mir aber eben auch unsicher ob sie gut funktioniert.
BeHaElJa du hast ja eine ähnliche Treppe und bist ja ganz zufrieden?!
Am liebsten wäre uns eine viertel-gewendelte, die benötigt mir aber zu viel Platz und dann wird es eben mit dem Grundriss schwierig!
Was denkt ihr sonst, ist der Eingangsbereich zu schmal geplant?
Zu den Fenster noch, da sind wir uns auch noch nicht 100% sicher, werden uns das jetzt bei Bekannten noch anschauen. Schlafzimmer hast du Recht...da wird es eher kein bodentiefes werden!
Danke für euren Input ;-)
ja OG = Vollgeschoss, also wir liegen hier bei 250cm Wandhöhe plus offenem Dachstuhl. In den Kinderzimmern planen wir noch Emporen ein.
Und ja die Treppenfrage....Gruß an BeHaElJa ;-) mit ihm habe auch auch schon deswegen geschrieben!
Ich habe mir diverse Treppengrundrisse angeschaut, siehe Anhänge!
Habe mich dann für diese Variante entschieden, da ich diese noch gut rein bekomme.
Bin mir aber eben auch unsicher ob sie gut funktioniert.
BeHaElJa du hast ja eine ähnliche Treppe und bist ja ganz zufrieden?!
Am liebsten wäre uns eine viertel-gewendelte, die benötigt mir aber zu viel Platz und dann wird es eben mit dem Grundriss schwierig!
Was denkt ihr sonst, ist der Eingangsbereich zu schmal geplant?
Zu den Fenster noch, da sind wir uns auch noch nicht 100% sicher, werden uns das jetzt bei Bekannten noch anschauen. Schlafzimmer hast du Recht...da wird es eher kein bodentiefes werden!
Danke für euren Input ;-)
Ähnliche Themen