Hallo liebes Forum,
ich bin schon länger Mitleser im Hintergrund und habe bereits oft von euren Tipps und Empfehlungen profitiert. Danke dafür!!
Nun ist es soweit und ich bitte aktiv um eure Unterstützung.
Aktuell sind wir in der Planungsphase für ein Ferienhaus in Kroatien und möchten gerne eure Tipps zum Thema Grundriss und Hausplanung mit einbeziehen.
Es handelt sich um ein Grundstück an der Randlage einer kleineren Stadt. Das Grundstück ist am Hang und in Richtung Süden abschüssig. Ein großteil des Grundstücks ist bereits eben, den noch verbliebenen Hang werden wir über Stützmauern abfangen und somit ein mögl. ebenes Grundstück für den Hausbau erzeugen.
Bebauungsplan/Einschränkungen
Größe des Grundstücks: 980qm
Hanglage, Stützmauer wird errichtet um Gelände einzuebnen
Baufenster, Baulinie und -grenze: 3m Abstand von der Grenze rundherum
Randbebauung nicht möglich
Anzahl Stellplatz: 4 inkl. garage
Geschossigkeit: EG + OG möglich
Dachform: beliebeig
Stilrichtung: beliebeig
Ausrichtung: beliebig
Anforderungen der Bauherren
Stilrichtung, Dachform, Gebäudetyp: Modern, Flachdach
Keller, Geschosse: Kein Keller, Erdgeschoss und ein Obergeschoss
Anzahl der Personen, Alter: 2 Erwachsene, 2 Kinder (2J und 5J)
Raumbedarf im EG, OG
Schlafgäste pro Jahr: Unterschiedlich, max. 4
offene oder geschlossene Architektur: offen
konservativ oder moderne Bauweise: mögl. modern (Kosten im Blick behalten)
offene Küche, Kochinsel: Kochinsel
Anzahl Essplätze: 8 min.
Kamin: Ja
Musik/Stereowand: nicht wichtig
Balkon, Dachterrasse: Terrasse im EG mögl. mit überdachtem Anteil, Balkon / Terrasse im OG am Eltern-Schlafzimmer
Garage, Carport: Garage und ausreichend Stellplätze für 3-4 Fahrzeuge
Hausentwurf
Von wem stammt die Planung:
-Architekt
Was gefällt besonders? Warum?
Was gefällt nicht? Warum?
Preisschätzung laut Architekt/Planer: >500t€
Persönliches Preislimit fürs Haus, inkl. Ausstattung: Nicht fixiert bisher (<750t€)
favorisierte Heiztechnik: Wärmepumpe ( Fußbodenheizung )
Warum ist der Entwurf so geworden, wie er jetzt ist? ZB
Der Entwurf wurde auf unsere Anforderungen hin vom Architekten erstellt. Es gab einige Optimierungsschleifen um möglichst alle Wünsche umzusetzen.
Wir haben wenig Vorgaben bzgl. Anordnung und Design gemacht.
Was macht ihn in Euren Augen besonders gut oder schlecht?
Der Entwurf gefällt uns gut, da wir aber bisher noch nicht gebaut haben möchten wir gern mehrere Meinungen einholen und von ERfahrungen des Forums profitieren.
Themen wie Fenstergrößen, Anordnung der Räume, Positionen der Türen etc. möchten wir gern möglicht gut gestalten.
Wir bitte um eure Hilfe und euer Feedback zum aktuellen Entwurfsstand.
Vielen Dank vorab und viele Grüße.
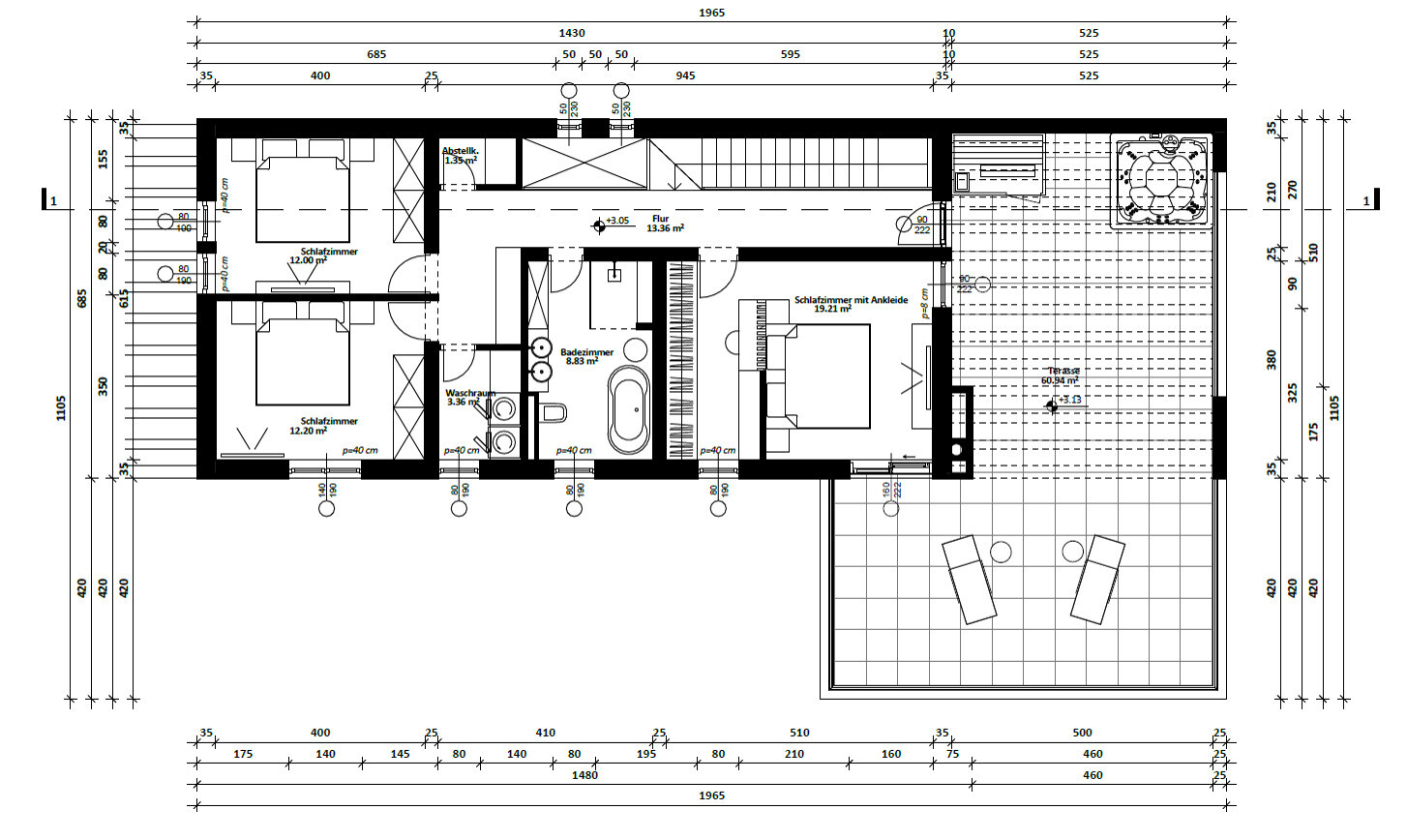
Erdgeschoss:
![EG.png"]93924[/ATTACH]<br />
<br />
<b>Obergeschoss: </b><br />
<br />
[ATTACH type="full](https://www.hausbau-forum.de/attachments/93925/)
3D-Ansicht:


ich bin schon länger Mitleser im Hintergrund und habe bereits oft von euren Tipps und Empfehlungen profitiert. Danke dafür!!
Nun ist es soweit und ich bitte aktiv um eure Unterstützung.
Aktuell sind wir in der Planungsphase für ein Ferienhaus in Kroatien und möchten gerne eure Tipps zum Thema Grundriss und Hausplanung mit einbeziehen.
Es handelt sich um ein Grundstück an der Randlage einer kleineren Stadt. Das Grundstück ist am Hang und in Richtung Süden abschüssig. Ein großteil des Grundstücks ist bereits eben, den noch verbliebenen Hang werden wir über Stützmauern abfangen und somit ein mögl. ebenes Grundstück für den Hausbau erzeugen.
Bebauungsplan/Einschränkungen
Größe des Grundstücks: 980qm
Hanglage, Stützmauer wird errichtet um Gelände einzuebnen
Baufenster, Baulinie und -grenze: 3m Abstand von der Grenze rundherum
Randbebauung nicht möglich
Anzahl Stellplatz: 4 inkl. garage
Geschossigkeit: EG + OG möglich
Dachform: beliebeig
Stilrichtung: beliebeig
Ausrichtung: beliebig
Anforderungen der Bauherren
Stilrichtung, Dachform, Gebäudetyp: Modern, Flachdach
Keller, Geschosse: Kein Keller, Erdgeschoss und ein Obergeschoss
Anzahl der Personen, Alter: 2 Erwachsene, 2 Kinder (2J und 5J)
Raumbedarf im EG, OG
Schlafgäste pro Jahr: Unterschiedlich, max. 4
offene oder geschlossene Architektur: offen
konservativ oder moderne Bauweise: mögl. modern (Kosten im Blick behalten)
offene Küche, Kochinsel: Kochinsel
Anzahl Essplätze: 8 min.
Kamin: Ja
Musik/Stereowand: nicht wichtig
Balkon, Dachterrasse: Terrasse im EG mögl. mit überdachtem Anteil, Balkon / Terrasse im OG am Eltern-Schlafzimmer
Garage, Carport: Garage und ausreichend Stellplätze für 3-4 Fahrzeuge
Hausentwurf
Von wem stammt die Planung:
-Architekt
Was gefällt besonders? Warum?
Was gefällt nicht? Warum?
Preisschätzung laut Architekt/Planer: >500t€
Persönliches Preislimit fürs Haus, inkl. Ausstattung: Nicht fixiert bisher (<750t€)
favorisierte Heiztechnik: Wärmepumpe ( Fußbodenheizung )
Warum ist der Entwurf so geworden, wie er jetzt ist? ZB
Der Entwurf wurde auf unsere Anforderungen hin vom Architekten erstellt. Es gab einige Optimierungsschleifen um möglichst alle Wünsche umzusetzen.
Wir haben wenig Vorgaben bzgl. Anordnung und Design gemacht.
Was macht ihn in Euren Augen besonders gut oder schlecht?
Der Entwurf gefällt uns gut, da wir aber bisher noch nicht gebaut haben möchten wir gern mehrere Meinungen einholen und von ERfahrungen des Forums profitieren.
Themen wie Fenstergrößen, Anordnung der Räume, Positionen der Türen etc. möchten wir gern möglicht gut gestalten.
Wir bitte um eure Hilfe und euer Feedback zum aktuellen Entwurfsstand.
Vielen Dank vorab und viele Grüße.
Erdgeschoss:
3D-Ansicht:
H
hanghaus202330.11.25 11:09Was steht denn da unterhalb? Gibt es ein Luftbild der Umgebung?
Mit UG und EG sparst Dir mind 200k. Das sind die Mehrkosten der Geländeanpassung.
Ansonsten hoffe ich für Euch, das da keine Preise wie in DE aufgerufen werden.
Wo sind bereits best. Stützmauern?
In DE kostet so etwas weit über 1 Mio.
In Kroatien ohne Pool?
Mit UG und EG sparst Dir mind 200k. Das sind die Mehrkosten der Geländeanpassung.
Ansonsten hoffe ich für Euch, das da keine Preise wie in DE aufgerufen werden.
Wo sind bereits best. Stützmauern?
In DE kostet so etwas weit über 1 Mio.
In Kroatien ohne Pool?
ypg schrieb:
Wochenendhaus mit vier Stellplätzen.. warum auch immer. Ist von Seiten der Stadt so als Anforderung (auf Basis der Wohnfläche) vorgeschrieben.
ypg schrieb:
Wenn auch Gäste geplant sind, dann würde ich denen noch ein Bad spendieren.Für die Gäste wäre das Schlafzimmer im EG mit dem danebenliegenden Dusch-WC gedacht..
ypg schrieb:
Ob die Südausrichtung für die Schlafzimmer für Kroatien nun das richtige ist, das bezweifel ich.Der Hintergrund der Südausrichtung ist die Aussicht in Richtung Süden, hier hat man (auch aufgrund Hanglage) einen weiten Blick über die Landschaft. Bezüglich der Sonneneinstrahlung eher ungünstig, stimmt.
Ich würde mit die Zufahrt bzw. die Zugänglichkeit mit größeren Gerätschaften ums Haus herum nicht verbauen, auch weil bei solch einem Projekt dort immer mal etwas anfällt.
DU/WC im EG würde ich wohl tauschen mit Hauswirtschaftsraum, den Duschkopf ebvenso an die Stirnwand aber das sind ja Micro-Details. Tatsächlich fällt es mir eher schwer, daran etwas zu finden, weil es ein Ferienhaus ist und dieses überhaupt nicht mit den ansonsten üblichen und auch notwendigen Bedürfnissen abprüfbar ist. Letztlich da dann Alles gut oder eben auch nicht, da die Umstände Eures Freizeitverhaltens völlig unklar sind und zudem ja ohnehin völlig individuell und dürfen auch fern so mancher Rationalität sein. Wie bei einem Oldtimer oder einer Angelrute oder Trompete für €3.000.- lässt sich hier kein Urteil fällen, letztlich kannstz Du zu jedem Punkt sagen, das gefällt mir aber so, eben weil es keine üblichen Notwendigkeiten des Tagesablaufes gibt.
Die Zuwegung zm Haus erschließt sich mir nicht bzw. ist nur grob angedeutet, so gefällt mir das nicht, auch dass die Garage als kantiger Block den Eingangsbereich darstellt. Ohnehin hat die kleine Garage eine vertrackte Zufahrt, das ginge sicher auch schlichter und einladender.
Braucht man tatsächlich eine Garage und warum, warum dann nur diese kleine für 3-4 Fahrzeuge? Die Grundstücksform ist sicher speziell aber gerade deswegen hätte ich etwas mehr an Ideen erhofft, diesem gerecht zu werden.
Im OG 3 Schlafzimmer und nur ein Bad, bei solche einem Projekt hätte ich für das Master-Schlafzimmer auf jeden Fall ein eigenes Bad-en-Suite geplant.
Die riesige Dachterrasse im OG-Schlafbereich ist zwar nett aber letztlich ist es wie meist bei einem Balkon, dass man dann von unten aus der Küche die Drinks oder Snacks etc. lästig nach oben schleift und wieder runter oder sich im Bad das Glas Wasser nachfüllt. Ich kenne ein paar Wohnungen mit Dachterrasse, bei denen die Bewohner nur 1 x mit ihrer Tasse Kaffe hochgegangen sind, um dort zu sitzen. Zucker vergessen - Mist, Kekse nachholen - schon wieder runterlaufen o.ä. bis hin zum rauf und runter schippern von Geschirr, Glösern, Speiseresten etc. Sieht toll aus erscheint aber wenig praktikabel. Das kann man zwar lösen es bleibt für mich aber das Kernproblem, dass mir diese Relax-Terrasse im falschen Geschoss wäre aber beim Hobby, also Ferienhaus, kann/darf man ja auch weniger sinnvolle Dinge umsetzen.
Dieser sperrige Klotz mit der dann wiederum dich nur kleinen Garage am Eingang sowie die dann kreuz und quer parkenden Autos wäre zumindest mein erstes K.O.-Kriterium.
DU/WC im EG würde ich wohl tauschen mit Hauswirtschaftsraum, den Duschkopf ebvenso an die Stirnwand aber das sind ja Micro-Details. Tatsächlich fällt es mir eher schwer, daran etwas zu finden, weil es ein Ferienhaus ist und dieses überhaupt nicht mit den ansonsten üblichen und auch notwendigen Bedürfnissen abprüfbar ist. Letztlich da dann Alles gut oder eben auch nicht, da die Umstände Eures Freizeitverhaltens völlig unklar sind und zudem ja ohnehin völlig individuell und dürfen auch fern so mancher Rationalität sein. Wie bei einem Oldtimer oder einer Angelrute oder Trompete für €3.000.- lässt sich hier kein Urteil fällen, letztlich kannstz Du zu jedem Punkt sagen, das gefällt mir aber so, eben weil es keine üblichen Notwendigkeiten des Tagesablaufes gibt.
Die Zuwegung zm Haus erschließt sich mir nicht bzw. ist nur grob angedeutet, so gefällt mir das nicht, auch dass die Garage als kantiger Block den Eingangsbereich darstellt. Ohnehin hat die kleine Garage eine vertrackte Zufahrt, das ginge sicher auch schlichter und einladender.
Braucht man tatsächlich eine Garage und warum, warum dann nur diese kleine für 3-4 Fahrzeuge? Die Grundstücksform ist sicher speziell aber gerade deswegen hätte ich etwas mehr an Ideen erhofft, diesem gerecht zu werden.
Im OG 3 Schlafzimmer und nur ein Bad, bei solche einem Projekt hätte ich für das Master-Schlafzimmer auf jeden Fall ein eigenes Bad-en-Suite geplant.
Die riesige Dachterrasse im OG-Schlafbereich ist zwar nett aber letztlich ist es wie meist bei einem Balkon, dass man dann von unten aus der Küche die Drinks oder Snacks etc. lästig nach oben schleift und wieder runter oder sich im Bad das Glas Wasser nachfüllt. Ich kenne ein paar Wohnungen mit Dachterrasse, bei denen die Bewohner nur 1 x mit ihrer Tasse Kaffe hochgegangen sind, um dort zu sitzen. Zucker vergessen - Mist, Kekse nachholen - schon wieder runterlaufen o.ä. bis hin zum rauf und runter schippern von Geschirr, Glösern, Speiseresten etc. Sieht toll aus erscheint aber wenig praktikabel. Das kann man zwar lösen es bleibt für mich aber das Kernproblem, dass mir diese Relax-Terrasse im falschen Geschoss wäre aber beim Hobby, also Ferienhaus, kann/darf man ja auch weniger sinnvolle Dinge umsetzen.
Dieser sperrige Klotz mit der dann wiederum dich nur kleinen Garage am Eingang sowie die dann kreuz und quer parkenden Autos wäre zumindest mein erstes K.O.-Kriterium.
H
hanghaus202330.11.25 11:39Ich vermute mal das ist ein Architekt aus DE. Wenn Ja, dann ist das mMn keine gute Idee. Schon wegen der Problematik der Baugenehmigung ist doch immer ein lokaler Architekt vorzuziehen.
Ähnliche Themen