Hausbau - Ratgeber
Bauherrenhilfe
- Bauherrenhilfe vor Vertragsabschluss
-- Warum einen unabhängigen Baubetreuer?
-- Vertragsgrundlagen
-- Bausumme
-- Zahlungsplan zur Kostenkontrolle
-- Pflichten des Bauherren vor Vertragsabschluss
-- Unterlagen beim Hausbau vor Vertragsabschluss
- Bauherrenhilfe nach Vertragsabschluss
-- Bauantrag bei Behörden
-- Bau-Genehmigungsverfahren bei Baubehörden
-- Bauspezifische Versicherungen
-- Bauzeitenplan
-- Baubeginn - die Letzten Pflichten der Bauherrschaft
- Bauherrenhilfe während der Bauzeit
- Gewährleistungsansprüche
- Bauabnahme
Baufinanzierung
- Baufinanzierung - Allgemeine Fragen
- Kreditarten
- Kredit-Konditionen
- Bausparen
- Staatliche Förderungen
- Verkehrswert
- Haushaltsrechnung und Bonität
Hausbau Planung
- Haustypen
- Hausbau Vorbereitungsarbeiten
- Das Baugrundstück
- Baugrund beim Hausbau
- Baurecht
- Gebäudeschutz
- Erdarbeiten und Wasserhaltung
- Stützmauern
- Einfriedung
- Untergeschoss
- Kanalisation
- Tragende Elemente
- Nichttragende Innenwände
- Fundation / Fundament
- Deckenkonstruktionen
- Dächer
- Kaminanlagen
- Treppen Rampen Leitern
- Dachbeläge und Spengler
- Fenster
- Sonnen und Wetterschutz
- Aussenputze
- Einbauten, Küchen, Türen
- Bodenbeläge und Unterlagsböden
- Parkett
- Gips, Wand, Decke
Haustechnik und Energie
- Heiztechnik
- Lüftung und Klimatechnik
- Sanitärtechnik
- Elektrotechnik
- Erneuerbare Energie
Whirlpools / Jacuzzi
Hausbau Magazin
- Baufinanzierung trotz Krise?
- Das Blockhaus
- Moderne Dämmstoffe im Vergleich
- Erker Vor- und Nachteile
- Glasflächen beim Hausbau
- Günstig ein Haus Bauen
- Mediterraner Hausbaustil
- Mehrgenerationenhaus
- Moderne Architektur
- Gartengestaltung leicht gemacht
- Traditioneller Ziegelbau
- Villa als höchster Traum
- Im Eigenheim Ruhestand geniessen
- Altbau sanieren
- Kauf einer Holzgarage
- Immobilienmakler
- Arbeitshandschuhe für den Winter
- Zuhause verschönern
- Outdoor-Plissees
- Schlafzimmer planen
- Terrassenüberdachung
- Wohngebäudeversicherung
- Zaunarten und Eigenschaften
- Hauseingang gestalten
- Der perfekte Grundriss
- Sparsamer heizen im Altbau
- Einfamilienhaus smart finanzieren
- Planung einer PV-Anlage
- Neues Haus
- Immobilienfinanzierung
- Installation einer Photovoltaikanlage
- Asbest erkennen und entfernen
- Gartenpflege im Frühling – worauf achten
- Sauna im Fokus - Wellness zuhause
- Erfolgreich vermieten
- Die perfekte Winterbekleidung
- Das Niedrigenergiehaus
- Der April und seine Stürme
- Architektonische Vielfalt
- Ökologisch und nachhaltig bauen
- Das perfekte Schlafzimmer
- Nachhaltige Energieversorgung
- Zukunftsorientiert bauen
- Nachhaltigkeit beim Hausbau
- Tiny Houses
- Wärmepumpen als nachhaltige Heizvariante
- Maßgeschneiderten Kleiderschrank
- Der richtige Baukredit
- Ratgeber für erfolgreichen Hausbau
- Haus als Altersvorsorge
Do-it-yourself Anleitungen
- Verlegeanleitung für Bodenbeläge und Parkett
- Bodenbeläge und Parkett reinigen und pflegen
- Malerarbeiten am Haus
- Garten Tipps
- Umzug und Reinigung

ᐅ Grundrissplanung Einfamilienhaus (Stadtvilla 140qm²) am Hang mit Doppelgarage

Erstellt am: 13.07.18 11:06
F
Franky73
kaho67414.07.18 12:53
ypg schrieb:
...auf einer Seite hat man dann einen Bungalow. Das muss man mögen, und das sehe ich hier bei Franky nicht.
Ach meinste? Ich dachte, er wollte genau sowas.
11ant14.07.18 13:50
Wenn ich recht verstehe, werden hier zwei Vollgeschosse gewünscht, wobei das Eingangsgeschoss nicht zählen soll, da "im Mittel" nicht so weit aus dem Erdreich ragend. Das mag möglich sein, wenn das Gefälle (im Baufenster) entsprechend stark ist - dann allerdings mit der Konsequenz einer vollständig eingegrabenen Bergseite (also mit eher nur Luft- als Lichtschächten, praktisch nicht für Aufenthaltsräume geeignet).

Das ist eine Aufgabe für Hardcore-Mathefreaks, und nur mit genauen Zahlen der Höhen.

Da würde ich eher wohlwollend prüfen, ob eine Dachschräge wirklich solches Teufelszeug ist
https://www.instagram.com/11antgmxde/
https://www.linkedin.com/company/bauen-jetzt/
Y
ypg
14.07.18 13:54
kaho674 schrieb:
Ach meinste? Ich dachte, er wollte genau sowas.
Naja... hier steht's:
Franky73 schrieb:
Anforderungen der Bauherren
  • Stilrichtung, Dachform, Gebäudetyp: Stadtvilla, Walmdach
11ant schrieb:
Da würde ich eher wohlwollend prüfen, ob eine Dachschräge wirklich solches Teufelszeug ist

Ja, ist mir auch unverständlich, dass man sich nicht mit einem Satteldachhaus mit Kniestock arrangieren kann.
11ant14.07.18 13:59
ypg schrieb:
Ja, ist mir auch unverständlich, dass man sich nicht mit einem Satteldachhaus mit Kniestock arrangieren kann.
Oder Pultdach, wozu ein Gefälle ja regelrecht reizen kann.

Das Problem ist heutzutage, die Leute nehmen nicht ein Grundstück mit seiner Geländeform als Geschenk an und stellen da etwas schönes darauf; sondern sie haben eine Hausform-Vorstellung im Kopf und bürden die dann ihrem Grundstück quasi als Hypothek auf.
https://www.instagram.com/11antgmxde/
https://www.linkedin.com/company/bauen-jetzt/
Y
ypg
14.07.18 14:15
Ich habe es überlesen, da ich nur mit Handy zugange war:

Die Legende des B-Planes erlaubt einzig nur Satteldächer.

Und da möchte ich dem Franky noch mal raten:
1. Grundstück anschauen, 2. Bebauungsplan lesen 3. überlegen, ob man mit dem Bebauungsplan leben kann. Wenn ja, dann kalkulieren (ggf mit Bodengrundgutachten und/oder Architekt), wie viel Erdarbeiten nötig sind 4. Grundstück kaufen.

Danach gilt: nicht das einplanen oder favorisieren, was nicht ist oder darf.

Diese Diskussion ist mehr oder weniger für die Katz.
Und ohne Katjas Entwurf schlecht zu reden: es wird sich für ein Hanggrundstück auch noch einen anderen Entwurf finden, der passt.

Ich lese gerade: Grundstück ist schon gekauft...
Insofern überdenkt noch mal Eure Anforderungen an Euer Traumhaus und stellt dann mal einen Schnitt inklusive Foto und Lageplan vom Grundstück mit ein.
Wenn man ein Grundstück schon zwei Monate besitzt, dann hat man doch eine selbstgemalte Zeichnung mit Maßen vom Grundstück und schiebt Rechtecke hin und her.
Also her damit, und dann geht es weiter
kaho67414.07.18 14:32
ypg schrieb:
Ich habe es überlesen, da ich nur mit Handy zugange war:

Die Legende des B-Planes erlaubt einzig nur Satteldächer.
Wo hast'n die gefunden? Ich bin da zu blöd, das zu erkennen.

Vielleicht ja so:

Ein zweistöckiges Haus mit dunklem Satteldach, Dachfenstern und Holztüren auf grünem Gras.

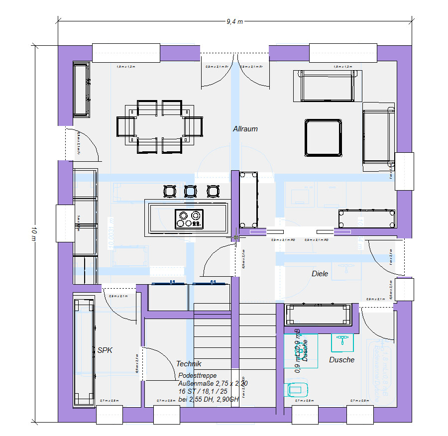
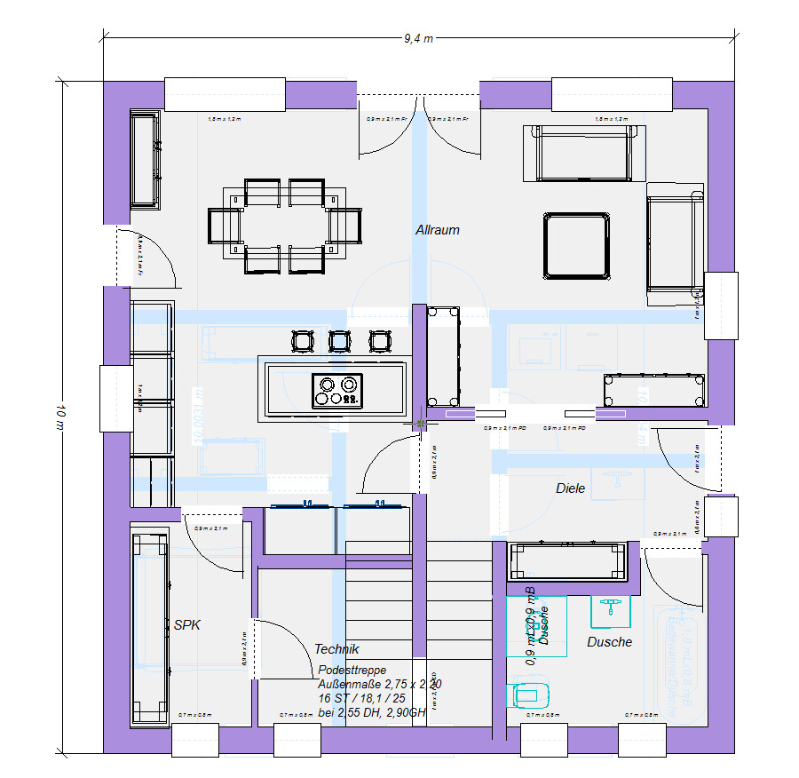
Grundriss eines Hauses: Küche mit Insel, Allraum (Wohn-/Essbereich), Diele, Dusche, Technik, Treppe.

Grundriss eines Hauses mit Flur, Bad, HWR, SZ, Ankleide, K1, K2.


Gewisse Ähnlichkeit zum Ausgang ist sicher zu erkennen. 1m Kniestock angenommen. Auf Bodenplatte - im Norden (planunten) leicht in den Hang, im Süden angeschüttet. Ob das geht, weiß ich natürlich nicht.
grundstückgefällekniestockbebauungsplanentwurf