Grundrissplanung Einfamilienhaus für junge Familie

5,00 Stern(e) 3 Votes
Zuletzt aktualisiert 05.10.2025
Sie befinden sich auf der Seite 3 der Diskussion zum Thema: Grundrissplanung Einfamilienhaus für junge Familie
>> Zum 1. Beitrag <<

Y

ypg

schade, dass eigenen Ideen hier so schlecht gemacht werden.
Wenn sie gut sind, werden sie nicht schlecht gemacht.
Oder möchtest Du belogen werden? Du hast einen Architekten, der beglückt mit Gradlinigkeit - das ist gut. Und es ist seine Aufgabe, Euren letzten Plan noch mal zu überarbeiten. Das wird schon, ich bin da zuversichtlich.

Gruss Yvonne
 
kbt09

kbt09

Du hast mit deiner Idee das ganze Haus kleiner gemacht und sie entspricht daher eben nicht meiner Anregung. Da ist nicht mal ein ordentlicher Garderobenbereich übrig geblieben. Und deshalb habe ich mich zu deiner Skizze(Idee) auch gleich gar nicht richtig geäußert.

Und, möbliere doch einfach mal das Schlafzimmer in deiner Variante. Es funktioniert nicht, behaupte ich, ohne konkrete Maße zu sehen. Denn Maße hast du ja in deiner Planungsvariante leider gleich ganz unterschlagen
 
S

Sciurus

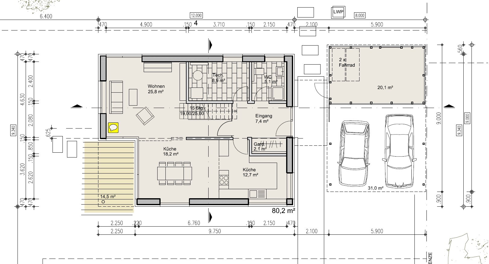
Wir sind mit unseren Planungen ein ganzes Stückchen weitergekommen und wollen mal unseren neuen Grundriss vorstellen. Wir haben jetzt im unteren Stockwerk kein extra Zimmer mehr und die Treppe hat einen neue Position bekommen. Die im Grundriss gezeichnete Küche ist nur ein Platzhalter. Wer hier noch gute Ideen hat, immer her damit.
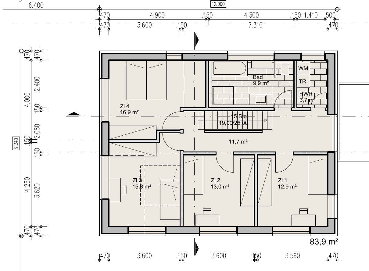
Im oberen Stockwerk gefällt uns noch nicht, dass man im Bad als erstes frontal vor das WC reinkommt, ansonsten sind wir mit dem Grundriss im Prinzip sehr zufrieden. Haben wir noch was wichtiges übersehen?

Grundriss eines Hauses: Wohnen 25,8 m², Küche 18,2 m², Eingang 7,4 m², Garage für zwei Autos.


Grundriss eines Wohnhauses: Vier Schlafzimmer (Zi 1–4), Flur, Bad, Treppe und Technik-/HWR-Raum.


Schnitt durch ein zweistöckiges Haus mit Dachgeschoss, Treppe, Innenräumen und Maßangaben.
 
Kisska86

Kisska86

Habt ihr schon Kinder? Ich würde die Treppe drehen. Finde den offenen Wohnbereich in einer Familie mit kleinen Kindern oder auch mit Jugendlichen nicht so sinnvoll. Und anders herum musste die Treppe ja auch funktionieren und sogar ohne, dass ihr durch den Schmutzbereich laufen müsst, wenn ihr hoch geht. aumen:
Die Aufteilung im Bad OG finde ich auch nicht gut. Du stehst mit dem Rücken zum Licht am Waschtisch... nicht so praktisch. Ist das Fenster fix?
 
S

Sciurus

Ja das Badfenster ist noch flexibel und wir sind offen für Vorschläge
Die Ausrichtung der Treppe haben wir lange diskutiert, uns gefällt es in dieser Ausrichtung besser. (Ein Kind ist schon da und eines unterwegs).
 
kaho674

kaho674

Also, mir gefällt der Grundriss grundsätzlich. Ich find nur krass, wie wenig von Euren ursprünglichen Wünschen übrig geblieben ist.
 
Zuletzt aktualisiert 05.10.2025
Im Forum Grundrissplanung / Grundstücksplanung gibt es 2510 Themen mit insgesamt 87167 Beiträgen


Ähnliche Themen zu Grundrissplanung Einfamilienhaus für junge Familie
Nr.ErgebnisBeiträge
1Treppe im Flur, Grundriss steht eigentlich schon :o( 20
2Frage zu Grundriss, insbesondere Treppe 13
3Treppe Grundriss Planung, Auftritt und Unterzug 21
4Grundriss Einfamilienhaus, leichte Hanglage, NW-Ausrichtung - Seite 1075
5Wie findet ihr diesen Grundriss? - Seite 211
6Grundriss die IV! :-) - Seite 318
7Meinungen zum Grundriss EG 10
8Grundriss über 200qm - Was haltet die Experten davon? 13
9Eure Meinung zum Grundriss für das EG - Seite 528
10Meinung zum Grundriss eines geplanten Bauhauses 23
11Unser Grundriss von 120qm auf 469qm Grundstück - Seite 1273
12Eure Meinungen zu unserem Grundriss und Angebot - Seite 322
13Vorplanung mit dem Architekten - eigener Grundriss sinnvoll? 18
14Grundriss Einfamilienhaus. Bitte um Feedback bzw Ideen :-) - Seite 325
15Entwurf Grundriss Bungalow Meinungen 22
16Einfamilienhaus-Grundriss Entwurf - Seite 223
17Grundriss Neubau - Bitte um Feedback 36
18Meinungen f. Grundriss Einfamilienhaus ca. 160qm - Seite 329
19Feedback zu Grundriss Einfamilienhaus erwünscht 18
20Ideenfindung für Grundriss 120m2 Einfamilienhaus - Seite 212

Oben