ᐅ Grundrissplanung Einfamilienhaus 150qm - Tipps zur Verbesserung?
Erstellt am: 22.01.19 13:30
F
Franky73Hallo zusammen,
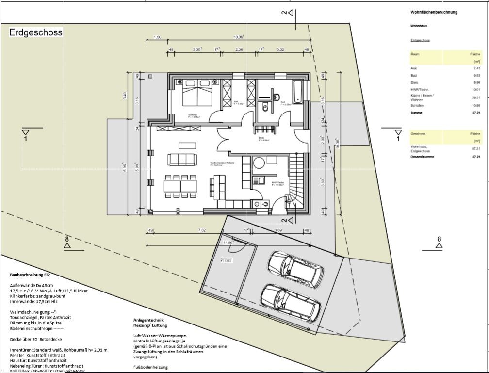
wir sind dabei ein Einfamilienhaus mit Wohnkeller zu bauen. Dabei ist dieser Entwurf bei raus gekommen. Mich würde von euch jetzt mal interessieren, ob es aus eurer Sicht Verbesserungen gibt.
Im Erdgeschoss ist rechts eine Nebeneingangstür. Dort würde das Carport hinkommen.
Im Wohnkeller sind nach Süden hin die Kinderzimmer. Man soll von dort auf die Terrasse bzw. den Garten gehen können.
Freue mich über Tipps oder Anregungen von euch!


wir sind dabei ein Einfamilienhaus mit Wohnkeller zu bauen. Dabei ist dieser Entwurf bei raus gekommen. Mich würde von euch jetzt mal interessieren, ob es aus eurer Sicht Verbesserungen gibt.
Im Erdgeschoss ist rechts eine Nebeneingangstür. Dort würde das Carport hinkommen.
Im Wohnkeller sind nach Süden hin die Kinderzimmer. Man soll von dort auf die Terrasse bzw. den Garten gehen können.
Freue mich über Tipps oder Anregungen von euch!
W
WilhelmRo22.01.19 13:37Mit Fragebogen, dann kommt schneller Hilfe.
https://www.hausbau-forum.de/threads/grundrissplanung-unbedingt-vor-Beitrag-Erstellung-lesen.11714/
mfg
https://www.hausbau-forum.de/threads/grundrissplanung-unbedingt-vor-Beitrag-Erstellung-lesen.11714/
mfg
W
WilhelmRo22.01.19 13:51Auf Anhieb:
1. Ankleide und Schlafen tauschen - außer es macht euch nichts aus, dass ihr euch jeden morgen zweimal weckt, wenn ihr rein/raus geht.
2. Die mini Wände in den Kinderzimmer, haben die einen Grund? Ansonsten weg damit? Macht nur qm kaputt und man "muss" die Zimmer einrichten wie gezeichnet, "umstellen" wird schwer.
3. Dusche bekommt eine Türe?
4. Zum Klo wirds eng? 0,6m?
5. Was ist das im Bad, mit 1,6m bemessen?
6. Fehlen Fenster im Schlafzimmer? Oder so bedingt, durch Wohnkeller?
Hoffe du kannst damit was anfangen : )
mfg
1. Ankleide und Schlafen tauschen - außer es macht euch nichts aus, dass ihr euch jeden morgen zweimal weckt, wenn ihr rein/raus geht.
2. Die mini Wände in den Kinderzimmer, haben die einen Grund? Ansonsten weg damit? Macht nur qm kaputt und man "muss" die Zimmer einrichten wie gezeichnet, "umstellen" wird schwer.
3. Dusche bekommt eine Türe?
4. Zum Klo wirds eng? 0,6m?
5. Was ist das im Bad, mit 1,6m bemessen?
6. Fehlen Fenster im Schlafzimmer? Oder so bedingt, durch Wohnkeller?
Hoffe du kannst damit was anfangen : )
mfg
WilhelmRo schrieb:
Auf Anhieb:
1. Ankleide und Schlafen tauschen - außer es macht euch nichts aus, dass ihr euch jeden morgen zweimal weckt, wenn ihr rein/raus geht.
2. Die mini Wände in den Kinderzimmer, haben die einen Grund? Ansonsten weg damit? Macht nur qm kaputt und man "muss" die Zimmer einrichten wie gezeichnet, "umstellen" wird schwer.
3. Dusche bekommt eine Türe?
4. Zum Klo wirds eng? 0,6m?
5. Was ist das im Bad, mit 1,6m bemessen?
6. Fehlen Fenster im Schlafzimmer? Oder so bedingt, durch Wohnkeller?
Hoffe du kannst damit was anfangen : )
mfgDanke für die erste schnelle Beurteilung.
Zu 1: Guter Tipp!
Zu 2: Wir dachten, so hätte man dann nicht einen reinen quadratischen Raum und "muss" alles außen positionieren. Mit kleinen Wänden hätten wir dann Kombinationsmöglichkeiten.
Zu 3: Nein,wir wollten gern keine Glastür sondern offen (daher 120cm) wegen Spritzschutz.
Zu 4: Ich hatte 75cm genommen. Würde das nicht reichen?
Zu 5: Eine kleine Sauna 196x160.
Zu 6: Schon durch den Wohnkeller, würden aber gern ein kleines Fenster mit einbauen wollen wegen Lüftung.
Gäbe es sonst auch eine andere "bessere" Lösung zur Treppe?
Gruß Frank
W
WilhelmRo22.01.19 14:182. Absolute Geschmackssache. Meins wäre es nicht : )
3. Drum frage ich. Eine geschlossene Dusche hat heute meistens schon 1m x 1m, ich wage zu Bezweifeln, dass es 20 cm besser machen. In deinem Fall aber eigl. gar nicht so schlimm, weil dann kommt ja die Badewanne. Ein Tipp, nimm einen Meterstab, leg ihn mit 1,20m auf den Boden und frag dich "passt oder passt nicht?"
4. In meiner 1990er Mietwohnung haben Türen 80cm Durchgang. Auch hier - es ist deine Entscheidung.
5. Ok, da kenne ich mich nicht aus : )
3. Drum frage ich. Eine geschlossene Dusche hat heute meistens schon 1m x 1m, ich wage zu Bezweifeln, dass es 20 cm besser machen. In deinem Fall aber eigl. gar nicht so schlimm, weil dann kommt ja die Badewanne. Ein Tipp, nimm einen Meterstab, leg ihn mit 1,20m auf den Boden und frag dich "passt oder passt nicht?"
4. In meiner 1990er Mietwohnung haben Türen 80cm Durchgang. Auch hier - es ist deine Entscheidung.
5. Ok, da kenne ich mich nicht aus : )
Ähnliche Themen