ᐅ Grundrissplanung eines Einfamilienhaus mit ca. 130qm2 Wohnfläche
Erstellt am: 16.06.24 19:36
J
jan_christlieb16.06.24 19:36Hallo zusammen,
anbei unser Entwurf für ein Einfamilienhaus. Ich bin auf euer kritisches Feedback und etwaige Fragen gespannt. Danke vorab!
Bebauungsplan/Einschränkungen
Größe des Grundstücks: 500qm2
Hang: nein
Grundflächenzahl: 0,4 (bebaut lt. Entwurf 0,26)
Geschossflächenzahl: 2
Baulinie: Bebauung zwingend an Grundstücksgrenze (Wahrung des urbanen Charakters)
Anzahl Stellplatz: 1
Geschossigkeit: 2
Dachform: Satteldach
Maximale Höhen/Begrenzungen: WH zwischen 6,00 - 7,50 / FH max. 11m
Sonstiges: keinen oder nur minimalen Dachüberstand möglich
Anforderungen der Bauherren
Stilrichtung, Dachform, Gebäudetyp: Stadthaus mit kostenoptimierten Grundriss (ohne Vor-/Rücksprünge, Giebel, etc.)
Keller, Geschosse: kein Keller
Anzahl der Personen, Alter: 3 Personen (38j, 38j, 2j)
Raumbedarf im EG, OG: ca. 120-130qm2
Büro: Familiennutzung oder Homeoffice? Homeoffice
Schlafgäste pro Jahr: zwischen 20-25
offene oder geschlossene Architektur: offen
konservativ oder moderne Bauweise: modern
offene Küche, Kochinsel: offene Küche
Anzahl Essplätze: 4 im Standard (+4) mit Auszug
Kamin: nein
Musik/Stereowand: nein
Balkon, Dachterrasse: nein
Garage, Carport: Carport
Nutzgarten, Treibhaus: Treibhaus
Weitere Besonderheiten:
- Straßenlaterne auf Höhe des Schlafzimmers
Hausentwurf
Von wem stammt die Planung: Primär eigene Planung mit Impulsen vom Architekten
Was gefällt besonders? Warum?
- Hauswirtschaftsraum mit 2. Eingang als Schmutzschleuse
- helle Wohnküche mit großzügiger Terrasse
- zwei Arbeitszimmer bzw. Homeoffice auch mit Gästen noch möglich
- Firstoffene Zimmer im OG mit Schlafgalerie
- Überdachter Hauseingang durch Carport
Was gefällt nicht? Warum?
- Hausansicht NW (Fensteranordnung)
- kein Baumbestand auf dem Grundstück ein guter, konstruktiver Sonnenschutz auf der Terrasse ist unbedingt noch nötig
- keine Abendsonne im Garten
- das kl. Arbeitszimmer könnte im Sommer zu heiss werden (viel Fenster, wenig Raum)
Preisschätzung laut Architekt/Planer: 400K
Persönliches Preislimit fürs Haus, inkl. Ausstattung: 450K
favorisierte Heiztechnik: Luft-Wasser-Wärmepumpe
Wenn Ihr verzichten müsst, auf welche Details/Ausbauten
-könnt Ihr verzichten: Bikeport / 2. Homeoffice / Dusche im EG
-könnt Ihr nicht verzichten: Homeoffice, Schlafzimmer, Kinderzimmer
Warum ist der Entwurf so geworden, wie er jetzt ist? ZB
Der Entwurf ist das Ergebnis aus:
- unserer Bedarfsanalyse
- der verfügbaren Mittel
- Inspirationen aus Musterhäusern und Medien (Magazinen / Büchern / YouTube)








anbei unser Entwurf für ein Einfamilienhaus. Ich bin auf euer kritisches Feedback und etwaige Fragen gespannt. Danke vorab!
Bebauungsplan/Einschränkungen
Größe des Grundstücks: 500qm2
Hang: nein
Grundflächenzahl: 0,4 (bebaut lt. Entwurf 0,26)
Geschossflächenzahl: 2
Baulinie: Bebauung zwingend an Grundstücksgrenze (Wahrung des urbanen Charakters)
Anzahl Stellplatz: 1
Geschossigkeit: 2
Dachform: Satteldach
Maximale Höhen/Begrenzungen: WH zwischen 6,00 - 7,50 / FH max. 11m
Sonstiges: keinen oder nur minimalen Dachüberstand möglich
Anforderungen der Bauherren
Stilrichtung, Dachform, Gebäudetyp: Stadthaus mit kostenoptimierten Grundriss (ohne Vor-/Rücksprünge, Giebel, etc.)
Keller, Geschosse: kein Keller
Anzahl der Personen, Alter: 3 Personen (38j, 38j, 2j)
Raumbedarf im EG, OG: ca. 120-130qm2
Büro: Familiennutzung oder Homeoffice? Homeoffice
Schlafgäste pro Jahr: zwischen 20-25
offene oder geschlossene Architektur: offen
konservativ oder moderne Bauweise: modern
offene Küche, Kochinsel: offene Küche
Anzahl Essplätze: 4 im Standard (+4) mit Auszug
Kamin: nein
Musik/Stereowand: nein
Balkon, Dachterrasse: nein
Garage, Carport: Carport
Nutzgarten, Treibhaus: Treibhaus
Weitere Besonderheiten:
- Straßenlaterne auf Höhe des Schlafzimmers
Hausentwurf
Von wem stammt die Planung: Primär eigene Planung mit Impulsen vom Architekten
Was gefällt besonders? Warum?
- Hauswirtschaftsraum mit 2. Eingang als Schmutzschleuse
- helle Wohnküche mit großzügiger Terrasse
- zwei Arbeitszimmer bzw. Homeoffice auch mit Gästen noch möglich
- Firstoffene Zimmer im OG mit Schlafgalerie
- Überdachter Hauseingang durch Carport
Was gefällt nicht? Warum?
- Hausansicht NW (Fensteranordnung)
- kein Baumbestand auf dem Grundstück ein guter, konstruktiver Sonnenschutz auf der Terrasse ist unbedingt noch nötig
- keine Abendsonne im Garten
- das kl. Arbeitszimmer könnte im Sommer zu heiss werden (viel Fenster, wenig Raum)
Preisschätzung laut Architekt/Planer: 400K
Persönliches Preislimit fürs Haus, inkl. Ausstattung: 450K
favorisierte Heiztechnik: Luft-Wasser-Wärmepumpe
Wenn Ihr verzichten müsst, auf welche Details/Ausbauten
-könnt Ihr verzichten: Bikeport / 2. Homeoffice / Dusche im EG
-könnt Ihr nicht verzichten: Homeoffice, Schlafzimmer, Kinderzimmer
Warum ist der Entwurf so geworden, wie er jetzt ist? ZB
Der Entwurf ist das Ergebnis aus:
- unserer Bedarfsanalyse
- der verfügbaren Mittel
- Inspirationen aus Musterhäusern und Medien (Magazinen / Büchern / YouTube)
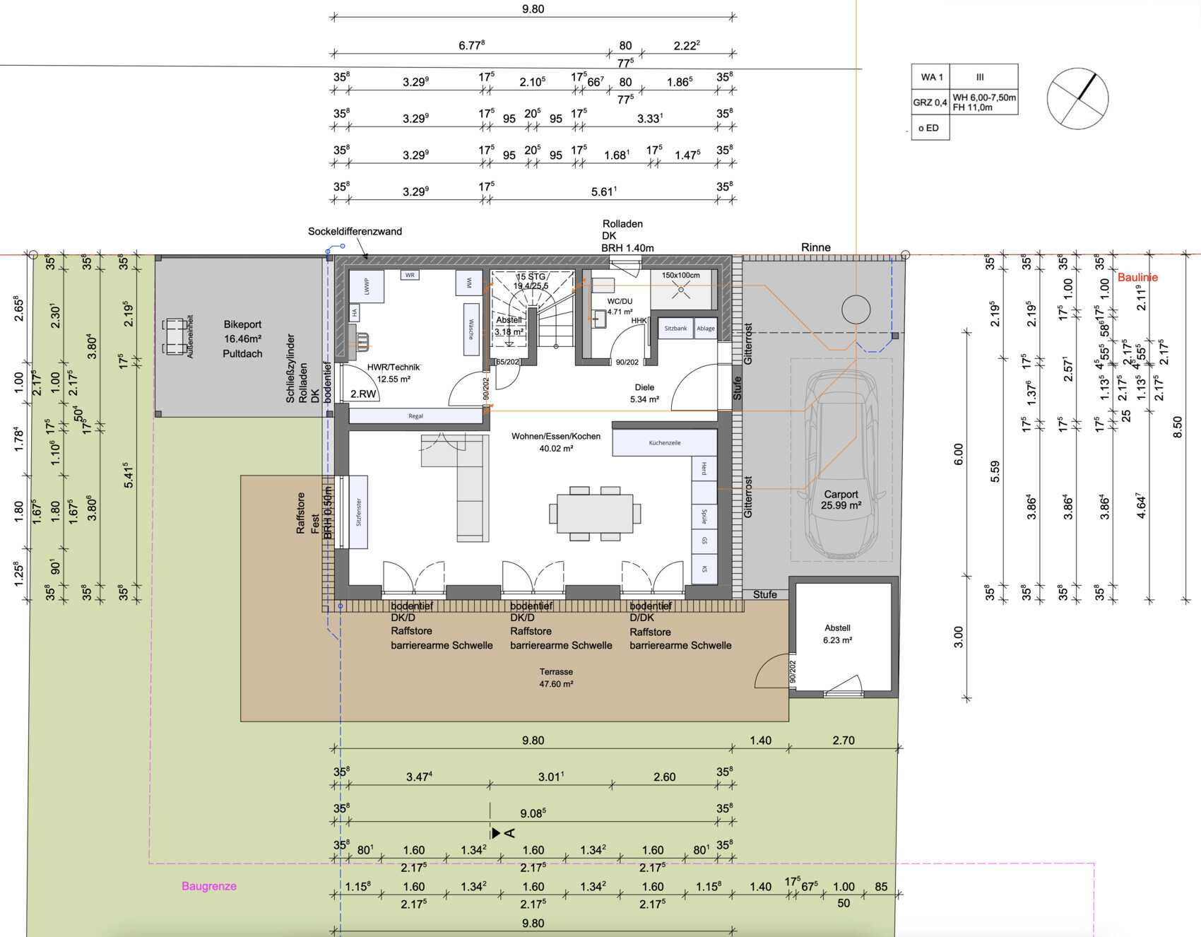
Steht das Haus direkt an der Straße, wo die Baulinie langläuft? Magst Du das mal näher erklären oder auch die Umgebung/Strasse/Zugang skizzieren?
und was plant ihr in der Galerie im Schlafzimmer und Büro, wo ja kaum Stehfläche vorhanden ist?
Anmerkung: die Treppe ist unter Standard von 19/26, bedeutet, sie ist unbequemer durch die Steigung, die Trittfläche ist schmaler.
und was plant ihr in der Galerie im Schlafzimmer und Büro, wo ja kaum Stehfläche vorhanden ist?
Anmerkung: die Treppe ist unter Standard von 19/26, bedeutet, sie ist unbequemer durch die Steigung, die Trittfläche ist schmaler.
J
jan_christlieb16.06.24 21:55Hallo,
- Büro: Ein Bett um das Zimmer u.a. auch Gästen mit Kindern anbieten zu können (Schlafen auf der Galerie und auf dem Schlafsofa).
Prinzipiell wollen wir die Wohnräume im OG so flexibel wie möglich halten. Auch wenn im Entwurf gerade ein klassisches Schlafzimmer eingezeichnet ist, hat im Grunde jedes Familienmitglied hier sein eigenes Zimmer. Die Galerie gibt uns bei der geringen Zimmergröße von 12qm2 mehr Flexibilität, sei es für ein Bett, Spielecke, Leseecke, Stauraum, o.ä.

Steht das Haus direkt an der Straße, wo die Baulinie langläuft? Magst Du das mal näher erklären oder auch die Umgebung/Strasse/Zugang skizzieren?genau, dass Haus muss laut Bebauungsplan zwingend auf der vorderen Baulinie stehen und mit dem Gehweg abschliessen um die vorhandene Häuserflucht in dem Viertels zu wahren. Die Straße ist ein Kopfsteinpflasterweg der wenig befahren ist. Der Gehweg geht halt direkt vorm Haus lang. Deshalb haben wir hier auch keine Wohnräume, sondern Gäste-WC, Treppe, und Technikraum an die Straßenseite verortet. Ich hab mal einen Screenshot der Straße vor dem Grundstück angehängt fürs bessere Verständnis.
und was plant ihr in der Galerie im Schlafzimmer und Büro, wo ja kaum Stehfläche vorhanden ist?- Schlafzimmer: Wahrscheinlich einen Rückzugsraum zum lesen und meditieren
- Büro: Ein Bett um das Zimmer u.a. auch Gästen mit Kindern anbieten zu können (Schlafen auf der Galerie und auf dem Schlafsofa).
Prinzipiell wollen wir die Wohnräume im OG so flexibel wie möglich halten. Auch wenn im Entwurf gerade ein klassisches Schlafzimmer eingezeichnet ist, hat im Grunde jedes Familienmitglied hier sein eigenes Zimmer. Die Galerie gibt uns bei der geringen Zimmergröße von 12qm2 mehr Flexibilität, sei es für ein Bett, Spielecke, Leseecke, Stauraum, o.ä.
Anmerkung: die Treppe ist unter Standard von 19/26, bedeutet, sie ist unbequemer durch die Steigung, die Trittfläche ist schmaler.Danke für den Hinweis. Das war mir nicht klar.
K
K a t j a17.06.24 08:53Der Hauswirtschaftsraum im EG ist verhältnismäßig zu groß, Wohnräume hingegen zu klein.
Galerien im OG sind Käse - werden nicht genutzt und der Dreck sammelt sich dort, den niemand weg macht. Außerdem kosten die auch was, wofür man lieber mehr Fläche insgesamt kaufen könnte.
Dieser Schrank im Flur oben - ist der wichtig? Dafür extra diesen Miniflur zu planen, halte ich für Platzverschwendung.
Galerien im OG sind Käse - werden nicht genutzt und der Dreck sammelt sich dort, den niemand weg macht. Außerdem kosten die auch was, wofür man lieber mehr Fläche insgesamt kaufen könnte.
Dieser Schrank im Flur oben - ist der wichtig? Dafür extra diesen Miniflur zu planen, halte ich für Platzverschwendung.
jan_christlieb schrieb:
Ich hab mal einen Screenshot der Straße vor dem Grundstück angehängt fürs bessere Verständnis.Vielen Dank. Da hat man einen besseren Eindruck. Eigentlich sieht das ganz puschig aus, und der fehlende Vorgarten wird wohl auch nicht fehlen. Parkfläche scheint es auch zu geben für Besucher und co.jan_christlieb schrieb:
Prinzipiell wollen wir die Wohnräume im OG so flexibel wie möglich halten. ... Die Galerie gibt uns bei der geringen Zimmergröße von 12qm2 mehr Flexibilität, sei es für ein Bett, Spielecke, Leseecke, Stauraum, o.ä.jan_christlieb schrieb:
- Büro: Ein Bett um das Zimmer u.a. auch Gästen mit Kindern anbieten zu können (Schlafen auf der Galerie und auf dem Schlafsofa).Ich muss gestehen, dass ich genau das Gegenteil von Flexibilität sehe. Da hat jeder noch ein kleines Kämmerlein extra, dass so richtig gar nicht genutzt werden kann. Für ein Kind jetzt nicht gerade eine "Treppe", eher ist es eine Leiter, die es allein nicht gehen sollte und auch nicht kann. Erwachsene können vorn gar nicht stehen (ich habe das mal im Schnitt eingezeichnet. Von der endgültigen Höhe (ca. 2,20?) im Giebel hat man nichts. Durch die Breite von 1,70 ist der Raum dann schon von einem zur Giebelseite stehendem Bett blockiert. Da ist dann kein Nutzen mehr für anderes.Ein Bett muss auch gemacht werden, bezogen.. beim Kind die Krümel raus etc... als Gast mag es für eine Nacht wie ein Tinyhaus nett sein, aber so wirklich Geld ausgeben würde ich dafür jetzt nicht für einen Raum, den ich gekrümmt erklimmen muss, damit ich dort rumbuckeln kann.
Die Schrägen sind hier die Treppe, die Senkrechten Brüstung und Zwischenwand.
Stauraum sehe ich mit der steilen Leitervorrichtung auch nicht. Was einmal nach da oben wandert, bleibt dort, bevor man mit einem großen Karton auf der Treppe verunfallt. Am Antritt ist ja auch gar keine Fläche mehr, um dort entspannt im Raum zu landen (Arbeiten, Kind). Die Treppe im Schlafzimmer funktioniert eh nicht von der Lage her
jan_christlieb schrieb:
- Schlafzimmer: Wahrscheinlich einen Rückzugsraum zum lesen und meditierenDas mag ich mir ja noch vorstellen können, aber auf Dauer bleibe ich wohl eher im Raum selbst oder freue mich über das Wohnzimmer bei sturmfreier Bude. Aber das müsst Ihr wissen, ggf noch mal überdenken.Man sollte auch noch erwähnen, dass kleine Räume durch einen offenen Giebel noch kleiner wirken, weil die Deckenhöhe höher ist als die Breite vom Raum. In diesen Fällen wirkt es nach oben sehr unruhig, weil die schützende Decke durchbrochen ist.
Das Öffnen in den Dachboden hebt die Baukosten durch die Dämmung des Daches. Ihr macht ja aus dem Dachbereich Wohnraum. Die Dachflächenfenster ist von den Kosten auch nicht ohne. Ich bin auch immer pro Dachausbau, sodass kleine Häuser von zusätzlichen Raum profitieren. Aber in der separaten Umsetzung für jeden Raum sehe ich keinen Gewinn. Warum plant Ihr nicht einen Raum für alle? Da können dann Matratzen liegen, die entweder den Kindern bei Schlafbesuch dienen oder tags mal für die Auszeit eines Erwachsenen.
Ich muss gestehen, dass ich die Küche nicht gerade alltagstauglich halte. Sie ist zu klein. Wenn ich meine Küche, die für zwei bis drei Personen reicht, in Raum-Segmente aufteile, nämlich für jedes 60er Raster 1 und Hochschrank inkl Kühlschrank 2, komme ich ohne Hängeschränke auf 19. Das reicht jetzt gerade. Vor einigen Jahren habe ich noch einen Schrank angebaut. Der Rest bei uns ist im TK. Bei Euch sind es gerade 9! Weniger als die Hälfte.
In den 40qm ist mittig ungenutzte Fläche, das eine bodentiefe Fenster nimmt Stauraum- und Arbeitsfläche. Arbeitslicht über ein Fenster ist gar nicht da wegen des Carports. TK-Raum halte ich in diesem Haus auch für zu groß.
Einen Eingang unter einem Carport würde ich immer vermeiden. Es ist zwischen Pkw und Eingangstür zu wenig Bewegungsfläche, die man selbst, aber auch ein Lieferant oder Besucher brauchen.
Mit 70qm Wohngrundfläche bzw 135qm Wohnfläche sollte man als 3-köpfige Person auskommen. Größer braucht es nicht. Muss ja auch alles bezahlt werden. Allerdings ist es meistens der Fehler, „oben keine Dachschrägen“ haben zu wollen, sodass man lieber unten wie oben auf Wohnraum verzichtet.
Fast schon habe ich gedacht, dass bei Euch die 2-Geschossigkeit im Bebauungsplan vorgeschrieben ist, aber Euer Nachbarhaus kann anderes berichten.
So würde ich an Eurer Stelle das 2-geschossige Haus tatsächlich mal in einen Eingeschosser plus Dachgeschoss (fälschlicherweise als 1 1/2 Geschosser benannt) austauschen. Ihr könntet im EG auf 80/85qm gehen, oben dann auf ca. 50/55 offiziellen qm, wodurch aber letztlich die Grundflächen der Räume oben größer ausfallen. Mit einem Drempel von ca. 125/150 entstehen Räume von ca. 15-17qm an Bodenfläche, die dann tatsächlich flexibler genutzt werden können als eine zusätzliche kleine Galerie. Ihr scheint mit Dachschrägen ja scheinbar keine Probleme zu haben. Und wenn das nicht ausreichen sollte, kann man immer noch den Dachboden ausbauen (Achtung: schon vorab planen wegen der Treppe).
Wenn die Firstausrichtung nicht vorgeschrieben ist, würde ich außerdem die Hausausrichtung drehen, dass man links und rechts mehr Fläche zur Verfügung hat bzw auf eine ganz andere Grundfläche zurückgreifen. Ich würde auf die konsequente Riegelführung verzichten.
S
Schorsch_baut17.06.24 12:56Ich finde die Straßenansicht unfassbar grauslig. Der Grundriss gefällt mir hingegen echt gut.
Ähnliche Themen