K
kathi199523.06.24 01:40Hallo,
wir haben bereits ein Grundstück erworben und einen Grundriss der uns gefällt.
Derzeit sind wir am überlegen wie wir das Haus und die Garage positionieren.
Des weiteren haben wir schon einmal grob die Höhen genommen.
Das Grundstück fällt ab Anfang des Grundstücks um ca. 2,1 Meter bis zum Ende des Grundstücks ab. Die Stichstraße ist ansteigend von der Hauptstraße gesehen.
Die Idee war jetzt, von der Stichstraße aus ca. 3 Meter mit einem Gefälle von 6% die Auffahrt bzw. die Fläche abfallend zu erstellen anschließend mit steigendem Gefälle zum Haus, um das Wasser fern zu halten.
Ich hoffe man versteht wie ich das meine.
Habe wir bei diesem Gefälle schon mit größeren Problemen / Mehrkosten zu rechnen oder ist dies alles noch im normalen Bereich?
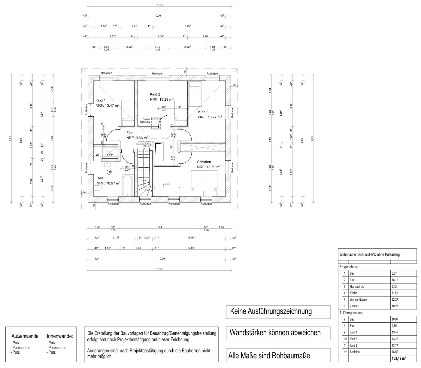
Das Grundstück hat eine Größe von 700 qm (in der Überschrift falsch angegeben)
Das Haus hat eine Wohnfläche von 165 qm.
Die Garage soll zur Zeit 7mx7m werden.
Ich würde mich freuen, wenn es Anmerkungen gibt, wie man das ein oder andere optimieren kann.
Mit freundlichen Grüßen





wir haben bereits ein Grundstück erworben und einen Grundriss der uns gefällt.
Derzeit sind wir am überlegen wie wir das Haus und die Garage positionieren.
Des weiteren haben wir schon einmal grob die Höhen genommen.
Das Grundstück fällt ab Anfang des Grundstücks um ca. 2,1 Meter bis zum Ende des Grundstücks ab. Die Stichstraße ist ansteigend von der Hauptstraße gesehen.
Die Idee war jetzt, von der Stichstraße aus ca. 3 Meter mit einem Gefälle von 6% die Auffahrt bzw. die Fläche abfallend zu erstellen anschließend mit steigendem Gefälle zum Haus, um das Wasser fern zu halten.
Ich hoffe man versteht wie ich das meine.
Habe wir bei diesem Gefälle schon mit größeren Problemen / Mehrkosten zu rechnen oder ist dies alles noch im normalen Bereich?
Das Grundstück hat eine Größe von 700 qm (in der Überschrift falsch angegeben)
Das Haus hat eine Wohnfläche von 165 qm.
Die Garage soll zur Zeit 7mx7m werden.
Ich würde mich freuen, wenn es Anmerkungen gibt, wie man das ein oder andere optimieren kann.
Mit freundlichen Grüßen
K
kathi199523.06.24 05:21ypg schrieb:
Frage: ihr wohnt in einer Wohnung, kennt Terrassenleben und Garten nicht und habt noch nie gegrillt?Hallo,
Das ist richtig, derzeit wohnen wir in einer Wohnung.
Die weiteren Punkte, sind dementsprechend, wenn dann nur durch Familie bekannt.
Ganz ehrlich, ich verstehe nicht, wie da das Grundstück geformt werden soll. Es fehlen Schnitte und es fehlt ein Lageplan, dem man die Höhenpunkte des Grundstückes entnehmen kann. Wenn ich die Ausführungen halbwegs richtig deute, dann ist die angedachte Terrasse entweder nur mit Aufschüttung des Geländes zu realisieren oder sie wird auf Stelzen stehen.
Ich sehe auch den Weg Küche zur Terrasse, wenn Kinder im Garten sind, und schnell mal was trinken wollen, wenn man auf der Terrasse sitzt und Essen oder Trinken oder einen schönen Grillabend machen möchte.
Dafür im Wohnzimmer eine Fläche für eine vergrößerbaren Tisch, die riesig ist und wie sonst genutzt werden soll?
Schon mal über die Variante "Essen und Kochen zusammenzulegen und dafür Wohnen mit Sofa und TV abzutrennen und zur Ruhezone zu machen" nachgedacht?
Ich sehe auch den Weg Küche zur Terrasse, wenn Kinder im Garten sind, und schnell mal was trinken wollen, wenn man auf der Terrasse sitzt und Essen oder Trinken oder einen schönen Grillabend machen möchte.
Dafür im Wohnzimmer eine Fläche für eine vergrößerbaren Tisch, die riesig ist und wie sonst genutzt werden soll?
Schon mal über die Variante "Essen und Kochen zusammenzulegen und dafür Wohnen mit Sofa und TV abzutrennen und zur Ruhezone zu machen" nachgedacht?
In einem Haus ist es vom Vorteil, dass man den Garten griffbereit hat.
Dafür gibt es mehrere Gründe: entweder beim Kochen, um Kräuter oder Gemüse zu holen, beim Tageswerk die Kinder im Garten zu beobachten und ggf. schnell einzugreifen, wenn etwas passiert ist. Oder die wollen 20 mal in einer Stunde Pipi, Wasser, was zum Spielen usw.
Oder am Abend, wenn man auf der Terrasse sitzt und grillt, da sollte der Kühlschrank nah zu erreichen sein. Letztendlich nimmt man bei gutem Wetter eh die Terrassenmöbel als Ersatz zum Esstisch: die Terrasse und der Garten werden zum Aufenthaltsraum, zum Lebensraum, zum Wohnzimmer. Neben der Essenszubereitung passt es gut, die freien Minuten die Terrasse zu pflegen, fegen, Pflanzbewässerung, Blüten knipsen… Insofern sollte man schnell von dem „Arbeitsplatz im Haus“, meist die Küche, den Garten und Terrasse erreichen können.
Wenn man die Küche offen zum Essbereich plant, dann reicht meist der Zugang vom Esszimmer aus. Ihr habt die derzeitige Rarität einer geschlossenen Küche geplant. Dann macht es nur Sinn, dort auch einen Terrassenzugang zu planen. Denn wenn Du mal raus musst, brauchst Du hier ca. 10/20 Sekunden länger, um überhaupt die Terrasse zu erreichen. Ich sehe hier das klassische Wohnungs-Wohnzimmer, nur statt Balkon die Terrasse. Bitte befasse Dich mit dem Leben in einem Haus.
Den Hang sehe ich auch überhaupt nicht in den Schnitten bedacht.
Bitte fülle den Fragebogen aus:
https://www.hausbau-forum.de/threads/grundriss-planung-unbedingt-vor-beitrag-erstellung-lesen.11714/
Dafür gibt es mehrere Gründe: entweder beim Kochen, um Kräuter oder Gemüse zu holen, beim Tageswerk die Kinder im Garten zu beobachten und ggf. schnell einzugreifen, wenn etwas passiert ist. Oder die wollen 20 mal in einer Stunde Pipi, Wasser, was zum Spielen usw.
Oder am Abend, wenn man auf der Terrasse sitzt und grillt, da sollte der Kühlschrank nah zu erreichen sein. Letztendlich nimmt man bei gutem Wetter eh die Terrassenmöbel als Ersatz zum Esstisch: die Terrasse und der Garten werden zum Aufenthaltsraum, zum Lebensraum, zum Wohnzimmer. Neben der Essenszubereitung passt es gut, die freien Minuten die Terrasse zu pflegen, fegen, Pflanzbewässerung, Blüten knipsen… Insofern sollte man schnell von dem „Arbeitsplatz im Haus“, meist die Küche, den Garten und Terrasse erreichen können.
Wenn man die Küche offen zum Essbereich plant, dann reicht meist der Zugang vom Esszimmer aus. Ihr habt die derzeitige Rarität einer geschlossenen Küche geplant. Dann macht es nur Sinn, dort auch einen Terrassenzugang zu planen. Denn wenn Du mal raus musst, brauchst Du hier ca. 10/20 Sekunden länger, um überhaupt die Terrasse zu erreichen. Ich sehe hier das klassische Wohnungs-Wohnzimmer, nur statt Balkon die Terrasse. Bitte befasse Dich mit dem Leben in einem Haus.
Den Hang sehe ich auch überhaupt nicht in den Schnitten bedacht.
Bitte fülle den Fragebogen aus:
https://www.hausbau-forum.de/threads/grundriss-planung-unbedingt-vor-beitrag-erstellung-lesen.11714/
ypg schrieb:
Frage: ihr wohnt in einer Wohnung, kennt Terrassenleben und Garten nicht und habt noch nie gegrillt?Bei uns ist die Hauptrennstrecke zwischen Küche und Terrasse mit Grill, im Sommer verlagert sich das Leben nach draußen. Der Weg ist zu lang und mit 2 Ecken und 2 Türen und Terrassentür unnötig kompliziert.
Geht denn die Grundflächenzahl auf?
Haus, Garage, Terrasse und ein riesen gepflasterter Hof sind große Flächenanteile vom Grundstück
Ähnliche Themen