Grundrissplanung 160qm Bungalow

4,30 Stern(e) 10 Votes
Zuletzt aktualisiert 07.10.2025
Sie befinden sich auf der Seite 4 der Diskussion zum Thema: Grundrissplanung 160qm Bungalow
>> Zum 1. Beitrag <<

Climbee

Climbee

Uups, der zweite Teil wurde verschluckt...

Ich schreib morgen nochmal. Am Tablet ist das so nervig. Sorry.
 
Climbee

Climbee

Naja es sind aber auch noch finanzielle Aspekte, die einen einschränken. Nicht jeder kann sich nen fetten Bungalow leisten
Der Bungalow kann unter Garantie sehr viel"fetter" werden, wenn man satt dem Y einen geraden Bungalow oder einen L-Bungalow baut. Bei gleichem finanziellen Einsatz...
 
E

Evolith

Der Bungalow kann unter Garantie sehr viel"fetter" werden, wenn man satt dem Y einen geraden Bungalow oder einen L-Bungalow baut. Bei gleichem finanziellen Einsatz...
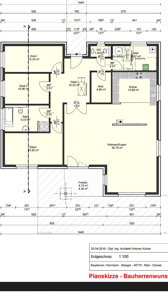
Klar! Da hast du voll Recht. Aber ich merke es ja bei unserem Bungalow, dass es schon bei 14x14,5 m schwer wird so richtig abzugrenzen. Auch bei uns müssen die Kinder durch den offenen Flur. Ich fand es mit ner Trennwand einfach viel zu eng und dunkel.
Grundrissplan eines Hauses mit Wohnzimmer, Küche, Schlafzimmer und Bad im Erdgeschoss
 
K

Kusmar

Das stimmt, man baut meist nur einmal und sollte da schon für sich das Optimum rausholen. Aber das liegt ja bei jedem zum Glück etwas anders;)
Mit den Kindern sehe ich das jetzt nicht so eng, es ist ja nicht so, dass sie durch das Wohnzimmer laufen müssen ins Bad und das WC ist noch kürzer und beides im Flur.
 
Climbee

Climbee

nee, aber immer durch den Bereich, den alle mit Strassenschuhen von außen betreten. Selbst wenn sie nur das Gäste-WC benutzen. Zum Bad hinter sowieso. Also z. B. mit dem frisch gebadet Kind raus aus dem Bad, durch den Schmutzbereich am Eingang ins Zimmer.
Anders als bei Evoliths Bungalow. Dort ist zwar keine "echte" Trennwand, aber eine "gedankliche". Und das ist völlig ausreichend. Hier gehen die Kinder einen vom Eingangsbereich abseitsliegenden Weg zum Bad. Viel Besser!
 
K

Kusmar

Ist das Bad aber besetzt und sie müssen ins WC, müssen sie auch durch den Bereich. Und ich weiß ja nicht wie das bei euch ist, aber uns werden die Schuhe gleich hinter der Haustür ausgezogen. Aber ich kann durchaus nachvollziehen was du meinst.
 
Zuletzt aktualisiert 07.10.2025
Im Forum Grundrissplanung / Grundstücksplanung gibt es 2510 Themen mit insgesamt 87182 Beiträgen


Ähnliche Themen zu Grundrissplanung 160qm Bungalow
Nr.ErgebnisBeiträge
1Grundriss Bungalow 160qm - Ihre Einschätzungen? 15
2Blockhaus Bungalow. 15
3Grundriss-Planung: Bungalow ~130m² - Seite 758
4Hauseingang mit Flur oder ohne - Seite 215
5Entwurf Grundriss Bungalow - Eure Meinungen bitte! 14
6Grundriss Bungalow auf Bodenplatte ca 110 qm - Seite 457
7Grundriss Bungalow - Was gibt es zu beachten? 164
8Grundriss eines barrierefreien Bungalow - Seite 4229
9Grundriss Bungalow 150m² - Meinungen erwünscht - Seite 430
10Flurbreite Bungalow? Wie gestalten dass es kein Schlauch wird? 25
11Grundriss Bungalow ca. 160m2 Wohnfläche 20
12Grundrissplanung Bungalow 170qm 40
13Grundrissfinalisierung Bungalow 130m² für 4 Personen - Seite 17199
14Bungalow 148m² Grundstücksplanung / Grundrissplanung - Seite 43280
15Bungalow - ca. 146 m² - Verbesserungsvorschläge - Seite 260
16alternativer Grundriss Bungalow 140m² - Seite 784
17Bungalow 160 qm Bruttogrundfläche - Optimierung + Kosten 25
18Grundriss Bungalow 160-170qm mit Keller - Seite 4175
19Bungalow Grundriss 3 Personen, 130qm, bitte Meinungen… - Seite 25167
20Grundriss-Hilfe für Bungalow benötigt - Seite 533

Oben