Grundrissoptimierung - Kamin-Problem

4,80 Stern(e) 6 Votes
Zuletzt aktualisiert 12.01.2026
Sie befinden sich auf der Seite 3 der Diskussion zum Thema: Grundrissoptimierung - Kamin-Problem
>> Zum 1. Beitrag <<

Y

ypg

Also, ich war als Teenie nicht mit meinem Partner in der Badewanne im Elternhaus..
Sicherlich hatten die auch kein Masterbad, Du aber die Option zum Baden gehabt.
Ich habe oft die Wanne meiner Eltern im vorgelagerten Bad nutzen können und es auch gemacht.
Ein Vergleich zu früher und eigene Bedürfnisse hinkt meist.
aber aufgrund der Tür ist das so leider nicht möglich..
Deshalb raten mindestens 3 Personen hier plus Like-User zu einer Überarbeitung.
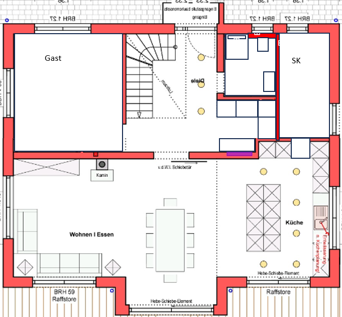
Da wir ein angehängtes Eltern-Bad möchten, ist es ein Durchgangszimmer geworden.
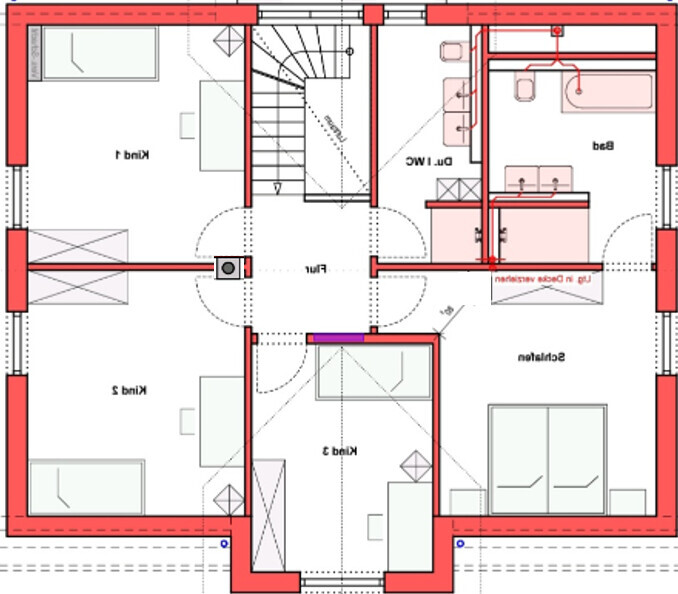
Das geht ja besser. Man könnte zb auf den Eingangsstummel im Eingang Schlafzimmer verzichten und den Eingang zum Bad vom Flur aus planen. Dann wäre womöglich auch mehr Stellfläche für einen Schrank. Schlafzimmer als Durchgang ist recht unkomfortabel, weil man den schlafende. Partner beim Lichtmachen stört. Mal unabhängig Ruhe haben, ist hier einfach nicht.
Wenn mit Keller geplant wird, würde ich schon das EG im oberen Bereich spiegeln, damit die Speis näher an der Küche ist.
 
H

hanghaus2023

Warum ist die Speisekammer so weit von der Küche entfernt?

Wie genau soll denn der Kamin aussehen?
 
11ant

11ant

Den Grundriss vom OG würde ich in der Gesamtheit noch mal überdenken.
Und damit letztlich top down auch den des EG.
Hi, warum das denn? Was fällt denn negativ auf?
Sogar Du selbst äußerst ausreichend Unzulänglichkeiten, um über einen Relaunch nachzudenken, u.a.
Das mit der Dusche hatte ich oben auch schon überlegt, aber aufgrund der Tür ist das so leider nicht möglich.. Ich dachte au h schon, dass man die Decke Erdgeschoss / Fußboden OG über die letzte Stufe zieht und d dadurch mehr Platz für die Tür entstehen könnte.. aber laut Architekt ist das so nicht möglich..
.
Das "Problem" ist ja aber der Schornstein, bzw. dessen Platzierung..
Das Problem ist eher, daß Du den Schornstein in eine Doppelfunktion als Wandgliederungselement ziehen willst. Vielleicht läßt Du Dich besser von @chrisw81 inspirieren und nimmst stattdessen eine Zickzackwand (die funktioniert auch ohne Klavier). In einem heutigen Neubau (mindestens aber falls es ein EH40 würde) empfähle ich Dir aber ohnehin nur eine Kaminsimulation, damit wäre die Schornsteinproblematik gleich mit erledigt.
Also, ich war als Teenie nicht mit meinem Partner in der Badewanne im Elternhaus.. dafür reicht sicherlich die Dusche im Kinderbad..
Wie unromantisch, ein Wannenbad in einer Dusche geht nicht.
Technik kommt in den Keller.
Was sagt denn das Grundstück zu der Frage, ob überhaupt ein Keller geboten sei?

Gehe ich recht in der Annahme, Dein Forenname sei als Hinweis auf einen Selberplaner zu lesen, und der Architekt (vmtl. sogar mit Anführungszeichen) sei hier nur ein Reinzeichner der Laien-Elaborate ?
 
Zuletzt aktualisiert 12.01.2026
Im Forum Grundrissplanung / Grundstücksplanung gibt es 2565 Themen mit insgesamt 88794 Beiträgen


Ähnliche Themen zu Grundrissoptimierung - Kamin-Problem
Nr.ErgebnisBeiträge
1Grundrissplanung Stadtvilla Doppelgarage | Keller | KFW40+ | 205m² 26
2Schlafzimmer im Keller 13
3Erster Entwurf Einfamilienhaus 150m² mit Keller 38
4Einfamilienhaus 200qm mit Keller+Doppelgarage Eure Meinungen? 33
5Grundriss Stadtvilla ohne Keller 185qm - Tipps 35
6Grundrissplanung Bungalow mit Keller - 140qm - leichter Hang - Seite 290
7Grundriss für schmale Doppelhaushälfte - Keller + 2 Viel Glück+ DG ohne Kniestock - Seite 753
8Grundriss Einfamilienhaus 190m2 mit Keller Feedback? 41
9Grundriss Einfamilienhaus ~165m² plus Keller - Seite 9165
10Grundriss, Hausanordnung EFW 150m2, Keller + Einliegerwohnung - Feedback erwünscht - Seite 1067
11Grundriss Einfamilienhaus SW-Hang ca. 160qm Wohnfläche + Keller - Seite 211
12Grundriss Bungalow 160-170qm mit Keller - Seite 5175
13Jetzt der finale Grundriss - 189qm ohne Keller; Stadtvilla - Seite 424
14Hausplan von Architekt 2 Geschosse mit Keller 18
15Werkplanung Einfamilienhaus 180qm Flachdach mit Keller & Doppelgarage 142
16Einfamilienhaus ohne Keller - Diskussion Grundriss 19
17Grundrissoptimierung Einfamilienhaus mit Keller auf kleinem Grundstück - Seite 4178
18Standort Küche und Wohnzimmer 55
19Einfamilienhaus Hanglang mit Keller für 2 Personen inkl. Home Office und Hobbyräume 80
20Kalkulation Einfamilienhaus mit 175m² Wohnfläche, Keller und Doppelgarage - Seite 1379

Oben