Grundrissoptimierung: Einfamilienhaus mit 220m²

5,00 Stern(e) 5 Votes
Zuletzt aktualisiert 21.11.2025
Sie befinden sich auf der Seite 7 der Diskussion zum Thema: Grundrissoptimierung: Einfamilienhaus mit 220m²
>> Zum 1. Beitrag <<

hausnrplus25

hausnrplus25

@hausnrplus25
Bidet soll ins Familienbad weil es im Elternbad nicht benötigt wird.
Fall du weiter Ideen, Hinweise und Kritiken haben möchtest, solltest du aufklären welchen Zweck das Elternbad und Gemeinschaftsbad haben soll. Denn offensichtlich weicht es von der durchschnittlichen Nutzung ab.

Gibt es eine Regel dass das Gäste-WC kleiner sein muss als andere Bäder?
Nur Logik in der Platzverteilung. Wenn es für euch so logisch ist - baut es so.

Wieso sollte man nicht 3/3 der Wäsche durch den Schacht befördern können?
Das der Umweg über die Küche nicht so optimal ist habe ich kappiert, können aber damit leben.
weil nicht 3/3tel der Wäsche im Elternbereich anfallen ...

Das war ein Beispiel, kann mir gut vorstellen da auch einfach eine 2m Sitzbank hinzuzimmern mit Hacken für die Jacke, mehr als Schuhe+Jacke anzuziehen tut man da ja nicht.
Das kann man gut so machen. Dann müsst ihr aber einplanen, dass alle Wechseljacken, Wechselschuhe bei den verschiedenen Jahreszeiten, Schal-Mütze-Handschuhe, Sportschuhe und Co irgendwo anders gelagert werden müssen. Sodass es in der Ankleide, Dachboden oder wo auch immer das hin soll dieser Platz eingeplant werden muss. Denn das ist heut zu Tage i.d.R. der Wunsch der Bauherren, dass man all dies nicht im Kleiderschrank, Dachboden oder so lagert, sondern eben in der Garderobe.
 
A

Alessandro

ist es wirklich das Haus das IHR bauen wollt?
Ich hoffe ihr redet euch das nicht alles schön und romantisch, denn in dem Haus ist von der Garderobe, bis hin zum Elternbad eigentlich alles zu klein und eng.
Habt ihr nun 4 Kinder oder wollt ihr die?

Schonmal drüber nachgedacht bei 4 Kindern das Elternschlafzimmer nach unten zu verlegen und dafür den Hauswirtschaftsraum ins OG?
Meiner Meinung nach ergibt das in deinem Fall viel bessere Gestaltungsmöglichkeiten!
 
Zuletzt bearbeitet:
J

Jucruzlo

Hey

also meine Anmerkungen:
1) KZ2 zu klein im Vergleich zu den anderen Zimmer. Das wird unfair und führt sicherlich zu Streitigkeiten (ausser die Kinder sind groß genug und es wird direkt kommuniziert). Ich sehe das Dilemma aber durchaus bzgl des Flur Zugangs. Muss diese Treppe und die Position unbedingt sein?
2) euer Bett direkt an Kinderzimmer Wand. Bedenke: weder du willst das deine Kids alles mitbekommen noch wollen deine Kids das man jedes nächtliche Telefonat mithören kann. Würde evtl Ankleide und Bad nach vorne verlegen - oder die Position vom Schlafzimmer komplett tauschen.
3) Büro unten ist ja schön groß - überlegt euch wirklich das Schlafzimmer nach unten zu legen. Ist für später sicher auch ganz praktisch. Stattdessen das Büro evtl statt Kinderzimmer 2 und dafür das Schlafzimmer zum Kinderzimmer. Dann entfällt auch das große Gäste-WC und Ihr könnt ein eigenes Bad unten haben und die Kids (und Ihr somit auch) komplett privat im oberen Bereich.
4) Wäscheschacht find ich auch fehlplatziert. Wenn dann sollte der für alle zugänglich im Bad liegen und direkt in den Hauswirtschaftsraum führen. Aber da stört die Treppe... denk an den Ablauf: wie wascht Ihr und wie viel - bei 4 Kids fällt ja reichlich Wäsche an und das sind viele viele Wege die "umsonst" sind. Irgendwann wird es euch nerven.
5) ich finde die Speise etwas komisch platziert. Alles sehr verwinkelt. Wie wärs mit der kompletten Wandlänge bis zum Kühlschrank - dafür etwas schmaler?
 
J

Jucruzlo

Das OG würde ich in eurem Fall zB so anordnen.
(Gespiegelt damit die Seiten wieder passen )

Grundriss eines Hauses mit zentraler Diele und Treppe; mehrere Schlafzimmer, Elternzimmer und Badezimmer.
 
D

devon12

Okay nächster Versuch:


Detailreicher Grundriss eines Hauses mit beschrifteten Räumen: Wohnen, Küche, Garage, Flur



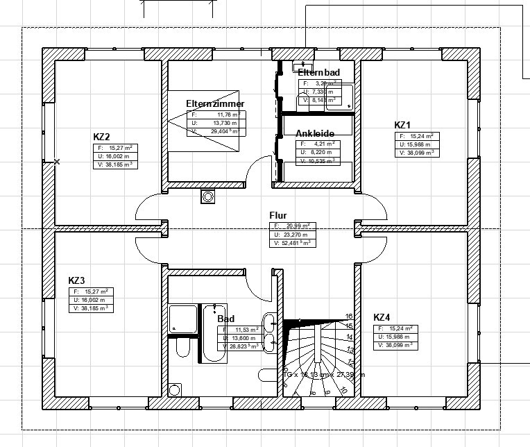
Grundriss einer Wohnung: Flur, Elternzimmer mit Ankleide, Elternbad, KZ1-KZ4, Bad, Wendeltreppe



Ich bin zur Einsicht gekommen das der nicht vorhandene Durchgang zum Flur doch ganz schön doof ist und hab deshalb mal eine U-Treppe eingefügt und nach der alles ausgerichtet.
Wesentliche Verbesserungen sind noch:

- Wäscheschacht im Bad, darunter Waschmaschine/Trockner im Hauswirtschaftsraum
- Wohnzimmer vergrößert, denke das reicht jetzt wirklich aus oder?
- Kleine Abstellkammer im Flur für Staubsauger etc.
- Küche jetzt besser möbellierbar

Das Elternbad ist klein geblieben, finden es aber ok.
 
Zuletzt aktualisiert 21.11.2025
Im Forum Grundrissplanung / Grundstücksplanung gibt es 2535 Themen mit insgesamt 87982 Beiträgen


Ähnliche Themen zu Grundrissoptimierung: Einfamilienhaus mit 220m²
Nr.ErgebnisBeiträge
1Einfamilienhaus mit Splitlevelstufe für Wohnbereich - Seite 325
2Neubau Einfamilienhaus 160-170qm, 3 Kinderzimmer 39
3Einfamilienhaus ca. 150 qm Grundriss - Treppe wie planen? 65
4 2 Vollgeschosse, Durchgang Garage, Hauswirtschaftsraum unter Treppe 25
5Kinderzimmer und Schlafzimmer - Welche Größe ist zu empfehlen? - Seite 256
6Ankleide/Schlafzimmer Problem - Grundrissdiskussion 25
7Grundrissfrage, Garage, Treppe 33
8Grundriss Einfamilienhaus ohne Keller/Schlafzimmer und Bad im EG - Seite 427
9Stadtvilla mit gerader Treppe, offene moderne Bauweise, 140m² 18
10Treppe im Wohnzimmer als Hype - Pro & Contra? - Seite 426
11Grundrissfrage: Tausch gerader Treppe durch L-Treppe 31
12Grundrissplanung Hanghaus mit 5 Kinderzimmer - Seite 26370
13Treppe im Flur, Grundriss steht eigentlich schon :o( - Seite 320
14Größe vom Schlafzimmer und Kinderzimmer - Seite 238
15Schallschutztür Schlafzimmer / Kinderzimmer 23
16Pfiffige Schlafzimmer Idee mit Ankleide gesucht 19
17Grundriss Schlafzimmer, Ankleide und Bad en Suite - Seite 336
18Grundriss Schlafzimmer mit Bad und Ankleide 62
19Entwurf Einfamilienhaus mit 3 Kinderzimmer, Keller und Grenzbebauung 32
20Haus ohne Garage und Keller? Ausbau Dachboden? Fresswarze? - Seite 385

Oben