Grundrissbewertung - Quadratmeter einsparen Einfamilienhaus

5,00 Stern(e) 5 Votes
Zuletzt aktualisiert 30.12.2025
Sie befinden sich auf der Seite 2 der Diskussion zum Thema: Grundrissbewertung - Quadratmeter einsparen Einfamilienhaus
>> Zum 1. Beitrag <<

S

Seb_Opf

Den zweiten Zugang zum Hauswirtschaftsraum möchte ich gerne belassen da der Raum als "Schmutzschleuse" dienen soll wenn ich vom Garten/Wald/Dienst komme und ein zwei Dinge die wir nicht im Wohnraum haben wollen...

Die Küche war nur ein Vorschlag des Planers - uns würde eine freistehende Insel besser gefallen. Der Zugang zur Speisekammer über die Küche war unsere Idee da ja sowieso irgendwo eine Tür rein muss und es denke ich umständlicher ist wenn der Zugang über den Flur erfolgt...

In unserer aktuellen Wohnung ist die Ecke 46x47cm mit WDVS. Da wir ohne planen sollte die stütze auch kleiner ausfallen denke ich? Oder is es egal ob mit kleiner Stütze oder ganz ohne vom Preis? Jeweils einen Meter Mauer in der Ecke fänden wir schade da es Südseite ist und man einen schönen Blick auf einen kleinen Berg hat...

Bei der Hausform sind wir nicht so auf das Rechteck eingeschossen... ist aber für die Photovoltaik vorteilhaft...

Weiße Fassade mit Fallrohr, große Glasfront mit Rollläden und Terrasse.
 
Y

ypg

Spontan lässt sich planlinks das ganze Haus (EG sowie OG) um einen Meter einkürzen. Schlafzimmer zu groß, Bad kann auf 12qm, im EG müsste man Speis/WC/Garderobe tunen und der TK-Raum kann auch 2qm abgeben bzw mit der Werkstatt vermittelt werden.
Kamin: kostet gesamt auch 5-stellig… Holz bekommt man übrigens nicht mehr zu kaufen, außer teuer oder mit Beziehungen…
 
WilderSueden

WilderSueden

Ihr habt durch den beinahequadratischen Baukörper viel Verkehrsfläche in der Mitte der Räume und dafür wenig Verkehrsfläche dort wo sie brauchbar wäre.
Von quadratisch ist das doch schon ein gutes Stück entfernt, finde ich. Und ich muss sagen, mit kleinem Kind sind die Mitten der Räume schnell mit Spielzeug voll. ;)
 
WilderSueden

WilderSueden

Aktuell würde ich mich noch ein bisschen mehr Mitte wünschen damit ich noch einen einfacheren Weg zwischen Klettergerüst mit Rutsche, Schaukelpferd, Rutschauto und hundert Duplosteinen durchfinde ;)
 
Z

Zubi123

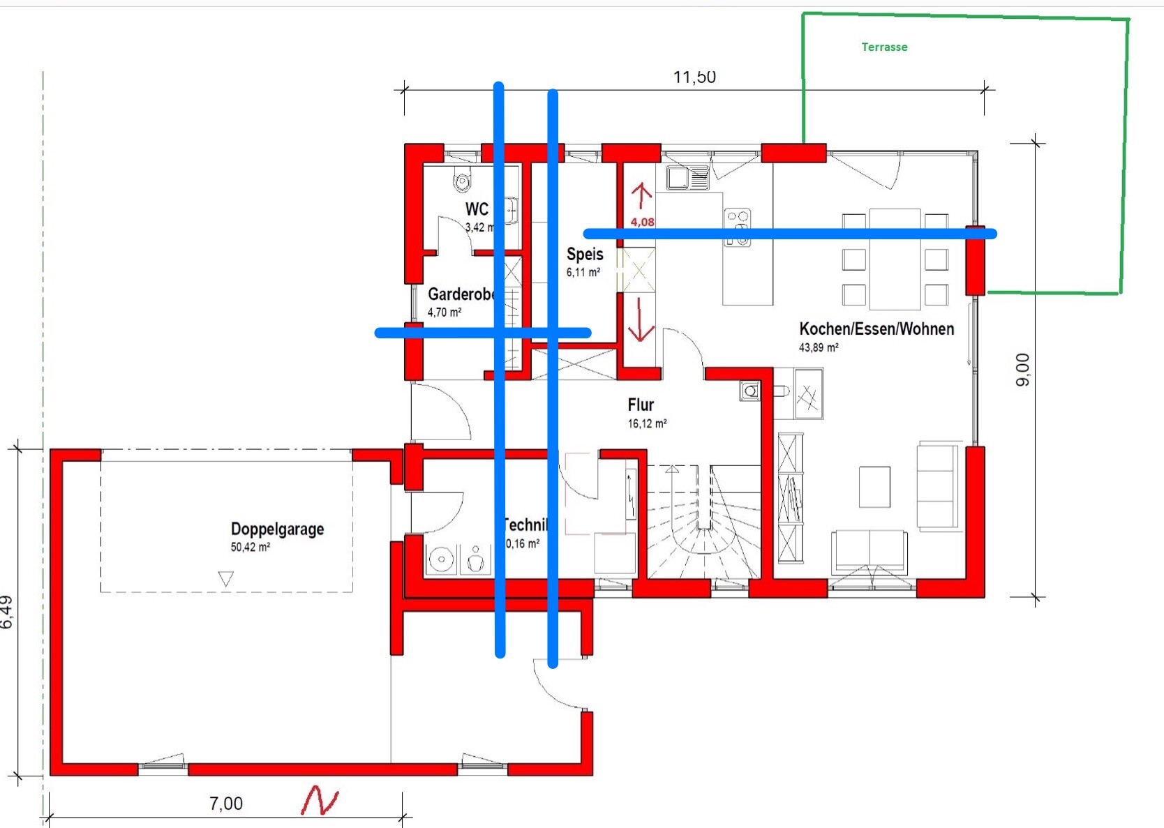
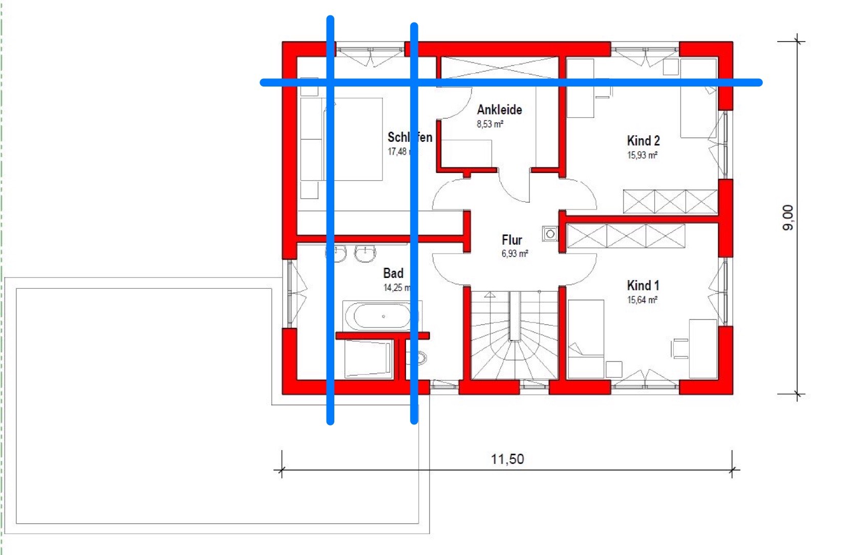
Wenn der Grundriss tatsächlich schon so gefällt, dann würde ich einfach in der Länge 0,50m und in der Tiefe 0,25m raus nehmen.
Meine blauen Linien würde jeweils -0,25m entsprechen.


Grundriss eines Hauses mit Schlafen, Ankleide, Bad, Flur, Kind 1, Kind 2; rote Wände, blaue Linien

Grundriss eines Hauses: Kochen/Essen/Wohnen, Flur, WC, Garderobe, Speis, Doppelgarage und Terrasse.


Ich würde mir aber bei 2 Dingen Gedanken machen:
Zugang zum Wohn/Küchenbereich finde ich zu klein/eng.
Schornstein würde ich ins Wohnzimmer (oben Kinderzimmer) legen, halber Meter planrechts.
 
Zuletzt aktualisiert 30.12.2025
Im Forum Grundrissplanung / Grundstücksplanung gibt es 2559 Themen mit insgesamt 88648 Beiträgen


Ähnliche Themen zu Grundrissbewertung - Quadratmeter einsparen Einfamilienhaus
Nr.ErgebnisBeiträge
1Wohnen/Essen/Küche: Wie wohnt ihr oder werdet ihr wohnen? - Seite 352
2Küche über ein Jahr vor Fertigstellung kaufen? - Seite 254
3Kombination Fliesen und Parkett im Wohnzimmer mit offener Küche - Seite 230
4Küche: geschlossen oder offen? Welche Raumaufteilung? - Seite 486
5Grobe Schnitzer im Grundriss? Küche zu klein? - Seite 239
6Parkett in der Küche - gute oder schlechte Erfahrungen? - Seite 321
7Holzparkett im Erdgeschoss und auch in der Küche zu empfehlen? 26
8Küche & Preis - Schnelle Einschätzung erwünscht!! - Seite 25165
9Esstisch in einer kleinen Küche - Seite 949
10Jährlicher Wertverlust Küche durchschnittlich? - Seite 422
11Grundrissplanung Wohnzimmer-Küche - Seite 418
12Heizkreise/Thermostate für Wohnen/Essen/Küche bei Fußbodenheizung/Wärmepumpe 35
13Wasseranschluss außen aus der Küche - möglich? - Seite 339
14Unsere neue erste Ikea Küche - Planung und Vorbereitung - Seite 669
15Neubau - Wann Küche bestellen? 10
16Beleuchtung in Diele und Küche: Deckeneinbau-Strahler benötigt? - Seite 219
17Kochfeld Elektro und Kohleherd in neuer Küche - Seite 532
18offene Küche: Abluft oder Umluft bei Kontrollierte-Wohnraumlüftung & KfW55 40
19Heizung in Küche "notwendig"? - Seite 535
20Nobilia-Küche Erfahrungen, Preise ok? 25

Oben