Hallo zusammen,
ich lese schon eine Weile still mit. Da unser Projekt langsam Formen annimmt wollte ich die Intelligenz der Masse einmal anzapfen und nach Feedback zu unserem frühen Entwurf fragen. Viele Sachen sind noch nicht im Detail durchdacht aber die Grundstruktur wird langsam klar.
Danke!
Bebauungsplan/Einschränkungen
Größe des Grundstücks: 381 m2
Hang: nein
Grundflächenzahl: 0,4
Geschossflächenzahl: 0,6
Baufenster, Baulinie und -grenze: Der aktuelle Entwurf füllt das Baufenster (abgesehen vom Terrassenbereich) voll aus à 13*14 m
Randbebauung: max. 9 m pro Seite (Carport/Geräteraum füllt dies aus), 15 m gesamt
Anzahl Stellplatz: 1
Geschossigkeit: 2 (laut Bebauungsplan)
Dachform: Satteldach 45-50 ° (im Entwurf wird mit 50 ! geplant)
Stilrichtung: ?? wäre schön wenn es architektonisch zumindest ansprechend rüber käme
Ausrichtung: Terrasse hat Westausrichtung
Maximale Höhen/Begrenzungen: max. Traufhöhe 3,80 m
weitere Vorgaben: - Klinker in rot/braun am Hauptbaukörper Pflicht; 2m Abstand der dachaufbauten vom Ortgang Pflicht
Anforderungen der Bauherren
Stilrichtung: halbwegs modern/ansprechend
Dachform: Satteldach – hier gibt es keinen Spielraum
Gebäudetyp: Einfamilienhaus
Keller: nein
Geschosse: 2 (1,5 formal?)
Anzahl der Personen, Alter: 2 Große ein Kleiner + Einer in Planung
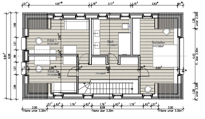
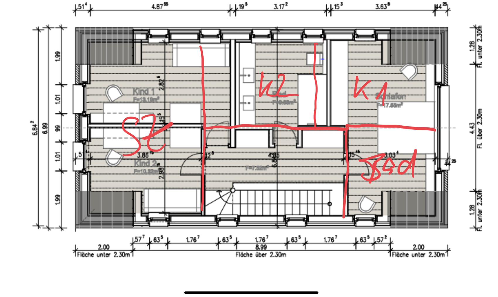
Raumbedarf im EG, OG: normaler Raumbedarf – 2 Kinderzimmer + Schlafzimmer + Büro
Büro: Familiennutzung oder Homeoffice?: Büro Pflicht da viel Homeoffice (1 Person)
Schlafgäste pro Jahr: wenige (sollen im Büro untergebracht werden
offene oder geschlossene Architektur: grundlegend offen aber mit bestimmten grenzen (ich will die Küche vom Sofa nicht sehen (hören und riechen ist okay))
konservativ oder moderne Bauweise: mit der Tendenz zum modernen
offene Küche, Kochinsel: beides
Anzahl Essplätze: 6-8
Kamin: wäre schön aber aus Budgetgründen gestrichen
Musik/Stereowand: nein
Balkon, Dachterrasse: nein
Garage, Carport: Carport - ggf. mit Aufrüstbarkeit zu Garage (in den Zeichnungen ist es verschlossen und ohne Trennwand zum Geräteraum ein gemalt. Das wird wohl geändert.
Nutzgarten, Treibhaus: Nutzgarten wäre super aber aus Platzgründen hier nicht relevant
weitere Wünsche/Besonderheiten/Tagesablauf, gern auch Begründungen, warum dieses oder das nicht sein soll:
Von wem stammt die Planung:
-Architekt
Was gefällt besonders? Warum?
Was gefällt nicht? Warum?
Preisschätzung lt Architekt/Planer: Noch zu früh. Wir haben mal ganz grobe Zahlen druch den Raum geworfen und da scheint es mit dem Budget übereinzustimmen.
Persönliches Preislimit fürs Haus, inkl Ausstattung:
favorisierte Heiztechnik: Sole-Wärmepumpe mit Tiefenbohrung, ggf. Lüftungsanalage mit Wärmerückgewinnung. (hier muss ich mich noch einlesen um rauszufinden auf welcher Seiter der Diskussion ich lande)
Wenn Ihr verzichten müsst, auf welche Details/Ausbauten
-könnt Ihr verzichten: Fassadengestaltung. Aktuell ist ein recht teurer Klinker geplant und die Holzveschalungen sind ja auch nicht gerade billig. Fenster könnten durch Festverglasung ersetzt werden.
-könnt Ihr nicht verzichten: Kleiner sollte es nicht werden.
Was ist die wichtigste/grundlegende Frage zum Grundriss in 130 Zeichen zusammengefasst?
Mich würde eine grundsätzliche Einschätzung interessieren. Gerne schonungslos auf Fehler/Probleme hinweisen. Noch ist es früh genug gegenzusteuern.







ich lese schon eine Weile still mit. Da unser Projekt langsam Formen annimmt wollte ich die Intelligenz der Masse einmal anzapfen und nach Feedback zu unserem frühen Entwurf fragen. Viele Sachen sind noch nicht im Detail durchdacht aber die Grundstruktur wird langsam klar.
Danke!
Bebauungsplan/Einschränkungen
Größe des Grundstücks: 381 m2
Hang: nein
Grundflächenzahl: 0,4
Geschossflächenzahl: 0,6
Baufenster, Baulinie und -grenze: Der aktuelle Entwurf füllt das Baufenster (abgesehen vom Terrassenbereich) voll aus à 13*14 m
Randbebauung: max. 9 m pro Seite (Carport/Geräteraum füllt dies aus), 15 m gesamt
Anzahl Stellplatz: 1
Geschossigkeit: 2 (laut Bebauungsplan)
Dachform: Satteldach 45-50 ° (im Entwurf wird mit 50 ! geplant)
Stilrichtung: ?? wäre schön wenn es architektonisch zumindest ansprechend rüber käme
Ausrichtung: Terrasse hat Westausrichtung
Maximale Höhen/Begrenzungen: max. Traufhöhe 3,80 m
weitere Vorgaben: - Klinker in rot/braun am Hauptbaukörper Pflicht; 2m Abstand der dachaufbauten vom Ortgang Pflicht
Anforderungen der Bauherren
Stilrichtung: halbwegs modern/ansprechend
Dachform: Satteldach – hier gibt es keinen Spielraum
Gebäudetyp: Einfamilienhaus
Keller: nein
Geschosse: 2 (1,5 formal?)
Anzahl der Personen, Alter: 2 Große ein Kleiner + Einer in Planung
Raumbedarf im EG, OG: normaler Raumbedarf – 2 Kinderzimmer + Schlafzimmer + Büro
Büro: Familiennutzung oder Homeoffice?: Büro Pflicht da viel Homeoffice (1 Person)
Schlafgäste pro Jahr: wenige (sollen im Büro untergebracht werden
offene oder geschlossene Architektur: grundlegend offen aber mit bestimmten grenzen (ich will die Küche vom Sofa nicht sehen (hören und riechen ist okay))
konservativ oder moderne Bauweise: mit der Tendenz zum modernen
offene Küche, Kochinsel: beides
Anzahl Essplätze: 6-8
Kamin: wäre schön aber aus Budgetgründen gestrichen
Musik/Stereowand: nein
Balkon, Dachterrasse: nein
Garage, Carport: Carport - ggf. mit Aufrüstbarkeit zu Garage (in den Zeichnungen ist es verschlossen und ohne Trennwand zum Geräteraum ein gemalt. Das wird wohl geändert.
Nutzgarten, Treibhaus: Nutzgarten wäre super aber aus Platzgründen hier nicht relevant
weitere Wünsche/Besonderheiten/Tagesablauf, gern auch Begründungen, warum dieses oder das nicht sein soll:
- Die L-form würden wir gerne verwirklichen, um einen geschützten Garten zu bekommen und es spricht uns auch optisch sehr an.
- Treppe soll offen gestaltet werden – ja nach Kosten als optisch ansprechende freie Treppe (wir kommen Beide aus Häusern mit offenen Treppen und finden Lärm und Geruchsbelästigung vertretbar)
Von wem stammt die Planung:
-Architekt
Was gefällt besonders? Warum?
- Lange und schmale Ausführung. Als Resultat wird das Haus deutlich niedriger als die Nachbarn.
- Zimmerhohe Fenster
- Generell gefällt mir die Verteilung der Räume gut
Was gefällt nicht? Warum?
- Kinderzimmer ungleich groß (doof aber okay) und zumindest das eine grenzwertig klein.
- Elternschlafzimmer könnte etwas kleiner sein. Insgesamt haben wir aber keine sinnvolle andere Zusammensetzung gefunden
- Der Mini-Hauswirtschaftsraum am Vorrat dran gefällt mir so nicht. Den würde ich weiter runter ziehen und mit dem HAR verschmelzen. Der Vorrat würde dann etwas höher liegen und gespiegelt werden, sodass die Tür gleichbleiben kann.
- Fenstergröße und Verteilung ist noch nicht wirklich final. Arbeitszimmer soll eine größere Fenstertür bekommen um in den Garten zu kommen, Wohnzimmer evtl. eine große statt 2 kleine scheiben. Die Fenster der Gauben hätte ich gerne breiter.
- Die Straßenansicht gefällt mir noch nicht. Zum einen braucht es Belichtung im Eingangsbereich zum andern stört mich die große kahle Fläche.
- Gästebad braucht noch natürliches Licht. Ggf. von oben.
Preisschätzung lt Architekt/Planer: Noch zu früh. Wir haben mal ganz grobe Zahlen druch den Raum geworfen und da scheint es mit dem Budget übereinzustimmen.
Persönliches Preislimit fürs Haus, inkl Ausstattung:
favorisierte Heiztechnik: Sole-Wärmepumpe mit Tiefenbohrung, ggf. Lüftungsanalage mit Wärmerückgewinnung. (hier muss ich mich noch einlesen um rauszufinden auf welcher Seiter der Diskussion ich lande)
Wenn Ihr verzichten müsst, auf welche Details/Ausbauten
-könnt Ihr verzichten: Fassadengestaltung. Aktuell ist ein recht teurer Klinker geplant und die Holzveschalungen sind ja auch nicht gerade billig. Fenster könnten durch Festverglasung ersetzt werden.
-könnt Ihr nicht verzichten: Kleiner sollte es nicht werden.
Was ist die wichtigste/grundlegende Frage zum Grundriss in 130 Zeichen zusammengefasst?
Mich würde eine grundsätzliche Einschätzung interessieren. Gerne schonungslos auf Fehler/Probleme hinweisen. Noch ist es früh genug gegenzusteuern.
I
Ideensucher07.07.22 16:43KED1234 schrieb:
Schlafgäste pro Jahr: wenige (sollen im Büro untergebracht werden
- Der Mini-Hauswirtschaftsraum am Vorrat dran gefällt mir so nicht. Den würde ich weiter runter ziehen und mit dem HAR verschmelzen. Der Vorrat würde dann etwas höher liegen und gespiegelt werden, sodass die Tür gleichbleiben kann.
Sagt mir nur bedingt zu.
Wenn nur wenige Schlafgäste - wozu dann die Dusche unten?
EG: Klo zum Eingang, dann kannst du weiter oben HAR mit Hauswirtschaftsraum zusammmenlegen. Und da du die Dusche sparst gewinnst du 90cm.
Der Schrankraum im Schlafzimmer reicht euch? Selbst wenn Handtücher und Bettwäsche im Flurschrank unterkommen sieht das recht knapp aus.
Im Wohnzimmer sitzen ohne die Küche zu sehen finde ich gut, beim Durchgang würde ich mir aber auf der Seite mit der Treppe bald den Kopf stoßen - zumindest glaube ich fände ich es komisch den Kopf einziehen zu müssen um unter der Treppe vorbei zu müssen.
Und irgendwie finde ich den Flur zum Arbeitszimmer verschenkten Platz. Kein Platz für ein Regal oder einen Sessel in einer ruhigen Ecke.
10qm für ein Kinderzimmer finde ich recht wenig - vor allem wenn das Arbeitszimmer größer ist und ihr eigentlich kein kleines Haus baut.
Da wird das Kind mit 12 Jahren auf Zimmertausch bestehen und runterziehen wollen.
Mir gefällt euer Haus.
Gibt meiner Ansicht nach auch nichts existenzielles zu beanstanden, im Gegenteil. Da hat sich jemand Gedanken gemacht.
Außerdem, seien wir mal ehrlich, spricht wahrscheinlich nicht einmal was dagegen, dass er nach unten zieht.
Gibt meiner Ansicht nach auch nichts existenzielles zu beanstanden, im Gegenteil. Da hat sich jemand Gedanken gemacht.
Ideensucher schrieb:Das ist doch ausreichend. Und dem 12-jährigen würde ich erklären was ich von seinen Wünschen halte. Alles ein Frage der Erziehung. 😉
10qm für ein Kinderzimmer finde ich recht wenig - vor allem wenn das Arbeitszimmer größer ist und ihr eigentlich kein kleines Haus baut.
Da wird das Kind mit 12 Jahren auf Zimmertausch bestehen und runterziehen wollen.
Außerdem, seien wir mal ehrlich, spricht wahrscheinlich nicht einmal was dagegen, dass er nach unten zieht.
KED1234 schrieb:
Geschosse: 2 (1,5 formal?)1,5 gibt es nicht. Das sind 2 Geschosse.KED1234 schrieb:
Größe des Grundstücks: 381 m2
Hang: nein
Grundflächenzahl: 0,4
Geschossflächenzahl: 0,6Ihr habt ja bis zum fast letzten Qm alles ausreizen lassen, was geht. Ich hoffe, dass bei Euch nicht die Grundflächenzahl II ( Überschreitung der Grundflächenzahl um 50% für die Nebenanlagen) ausgeschlossen wird?!Dann wird es nämlich too much… habe gerade alles grob mal zusammengerechnet.
Zum Entwurf
erster Blick von mir: gefällt mir. grundsätzlich schöne Idee, auch die schmale Silhouette… WZ ans Ende, so habe ich auch mal geplant und festgestellt, dass man mit den zwei Zugängen zum WZ viel wertvolle Fläche verbrannt.
Die bei Euch verbrannte Fläche könnte die Küche gut gebrauchen.
Mit Lichtschalter kommt ihr auf eine Küchenzeile von ca. 2,60/2,70. Das wird dann schon knapp mit Ofen in Augenhöhe und Kühlschrank. Side By Side Kühlschrank wird es nie geben können. Abstellfläche auf der Zeile für etwas höhere Gegenstände, Elektrik oder angebrochene Getränkeflaschengibt es auch kaum. Marmeladenbrotbrett wird im Haus zentral liegen… das wird dann auf der Insel abgestellt, die aber dafür wieder zu sehr im Weg steht. Zumindest für kleine Kinder und verhuschte Eltern.
Wenn Ihr den Hauswirtschaftsraum mit dem AB zusammenlegen wollt, würde ich die Tür in den Anbau setzen.
NW ist das große Fenster: damit habt ihr ein stockdunkles Esszimmer und Küche. Im Sommer bekommt ihr abends ein paar Strahlen ins Haus.
Einzig der zusätzliche Flur und das WZ liegt an der Schokoladenseite des Hauses. Und im WZ hält man sich eher weniger im Sommer auf… also so toll ist die ganze Ausrichtung nicht wirklich.
Und mir fällt bei der Dachausrichtung auf: die Firstrichtung müsste bei Euch parallel zur Straße liegen. Die Nachbarn haben die Ausrichtung, wie es der Bebauungsplan vorschreibt.
Es ist also noch einiges zu machen.
Dennoch setze ich mal meine Einwände in Skizzenform ein.
(Toi ziemlich weit vom Eingang entfernt… das kann auch in die Hose gehen 😉… und nebenbei reißt man die Flaschen auf der Kücheninsel um… ich will ihnen nicht madig reden… aber es ist unpraktisch für den Alltagsablauf.
Edit? Die 63e Fenster sind echt zu schmal.. da ist das Fries ja dicker als das Glas.
Ideensucher schrieb:
Sagt mir nur bedingt zu. Hallo Ideensucher, vielen Dank, dass du trotzdem Feedback gegeben hast.
Ideensucher schrieb:
Wenn nur wenige Schlafgäste - wozu dann die Dusche unten?Verschiedene überlegungen. Oben passt ein zweites Duschbad einfach nicht rein, eine zweite Dusche ist aber auf Dauer glaube ich sinnvoll. Da müssen die Kidies (oder Vatter...) dann halt runterlaufen - nicht optimal aber man kann es überleben. Außerdem würde sich so die Möglichkeit ergeben tatsächlich das Schlafzimmer mal nach unten zu verlegen um auf einer Ebene zu leben.
Ideensucher schrieb:
EG: Klo zum Eingang, dann kannst du weiter oben HAR mit Hauswirtschaftsraum zusammmenlegen. Und da du die Dusche sparst gewinnst du 90cm.HAR und Hauswirtschaftsraum sollen zusammengelegt werden. Der Plan wäre den Hauswirtschaftsraum und der Vorrat zu tauschen und mit dem HAR zu einem Raum zu verbinden. Die Wege für den Vorrat zur Küche würden so nicht größer werden. Dusche: siehe oben. Die soll nach Möglichkeit erhalten bleiben.
Ideensucher schrieb:
Der Schrankraum im Schlafzimmer reicht euch? Selbst wenn Handtücher und Bettwäsche im Flurschrank unterkommen sieht das recht knapp aus.Aktuell kommen wir mit knapp 2 m Schrank auch (Handtücher und Bettwäsche inklusive). Vielleicht sind wir da etwas ungewöhnlich. Die ein oder andere Kommode würde man ja noch unter bekommen.
Ideensucher schrieb:
Im Wohnzimmer sitzen ohne die Küche zu sehen finde ich gut, beim Durchgang würde ich mir aber auf der Seite mit der Treppe bald den Kopf stoßen - zumindest glaube ich fände ich es komisch den Kopf einziehen zu müssen um unter der Treppe vorbei zu müssen.Das ist ein guter Punkt. Laut Architekt soll man da problemlos durichlaufen können. Das sollte ich mir nochmal genauer angucken. Ich tendiere auch dahin die Mauer zwischen WZ und Essbereich auf 3m zu kürzen. Dann läge der Durchgang bei ca. 1.5 m
Ideensucher schrieb:
Und irgendwie finde ich den Flur zum Arbeitszimmer verschenkten Platz. Kein Platz für ein Regal oder einen Sessel in einer ruhigen Ecke.Stimmt, ist im Moment vor allem ein Flur. Für uns durchaus gewollt, da es die räumliche Trennung von Arbeit und Privatleben erleichtert - das Arbeitszimmer ist weit weg. Dort einen Sessel unter bringen zu wollen passt nicht zu meinen Gewohnheiten - würde ich nie nutzen. Regalfläche könnte interessant sein. uss ich mal drüber nachdenken.
Ideensucher schrieb:
10qm für ein Kinderzimmer finde ich recht wenig - vor allem wenn das Arbeitszimmer größer ist und ihr eigentlich kein kleines Haus baut.
Da wird das Kind mit 12 Jahren auf Zimmertausch bestehen und runterziehen wollen.Ja, wie obern erwähnt ist das auch ein Punkt der uns nicht optimal gefällt. Bodenfläche sind es knapp 11.5m und dank des recht steilen Dachs auch einigermaßen nutznbar (z.b. Bett). Das Arbeitszmmer würde also nicht massiv mehr Platz bieten. Um ehrlich zu sein könnte ich mir einen Tausch durchaus vorstellen falls notwendig. Ist ja nicht für immer.
PhiIipp schrieb:
Mir gefällt euer Haus.
Gibt meiner Ansicht nach auch nichts existenzielles zu beanstanden, im Gegenteil. Da hat sich jemand Gedanken gemacht.
Das ist doch ausreichend. Und dem 12-jährigen würde ich erklären was ich von seinen Wünschen halte. Alles ein Frage der Erziehung. 😉
Außerdem, seien wir mal ehrlich, spricht wahrscheinlich nicht einmal was dagegen, dass er nach unten zieht. Danke, freut mich, dass es dir gefällt. Ich sehe es ähnlich. Wir haben bei dem Entwurf versucht vor allem die gemeinsam genutzen Flächen großzügig zu gestalten.
Ähnliche Themen