Hallo zusammen,
ich würde gerne mal externe Feedbacks zu unserem Grundriss einholen.
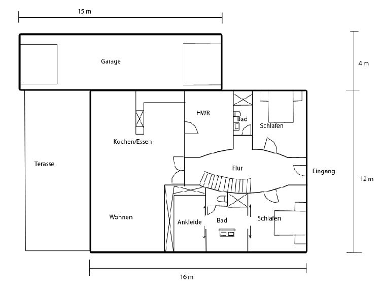
Es geht mir Hauptsächlich um die Aufteilung. Im EG soll alles unterkommen was man zum wohnen braucht. Im OG kommt zusätzlich noch ein Gästezimmer und ein großzügiges Büro hinzu.
Die Wandstärken habe ich beim schnellen Skizzieren weggelassen.
Ich freue mich auf eure Meinungen.
Viele Grüße,
Fabian

ich würde gerne mal externe Feedbacks zu unserem Grundriss einholen.
Es geht mir Hauptsächlich um die Aufteilung. Im EG soll alles unterkommen was man zum wohnen braucht. Im OG kommt zusätzlich noch ein Gästezimmer und ein großzügiges Büro hinzu.
Die Wandstärken habe ich beim schnellen Skizzieren weggelassen.
Ich freue mich auf eure Meinungen.
Viele Grüße,
Fabian
Moin,
also mich persönlich stört dieser komische, geschwungene Flur. Ich finde sowas ja grundsätzlich nicht verkehrt, aber dann gehört so ein Eingangsbereich in ein schloss oder eine Villa......
Dann hast Du zwei Bäder gezeichnet, und keins hat ein Fenster (-->Lüftung). Im Neubau niemals innenliegende Bäder !
Der gesamte Grundriss hat zu viele Ecken und Kanten, die nicht notwendig sind.
Das Bad als Durchgangszimmer zu benutzen finde ich sehr unglücklich.
Die Tür zum Hauswirtschaftsraum ist eher schlecht angeordnet.
Du musst beim Entwerfen darauf achten, dass nachher auch alles passt. Also maßstabsgetreu, mit Wandstärken und Fenstern, mit Ansichten und allen Grundrissebenen. Und alle Zimmer maßstabsgetreu durchmöblieren.
Gruß
also mich persönlich stört dieser komische, geschwungene Flur. Ich finde sowas ja grundsätzlich nicht verkehrt, aber dann gehört so ein Eingangsbereich in ein schloss oder eine Villa......
Dann hast Du zwei Bäder gezeichnet, und keins hat ein Fenster (-->Lüftung). Im Neubau niemals innenliegende Bäder !
Der gesamte Grundriss hat zu viele Ecken und Kanten, die nicht notwendig sind.
Das Bad als Durchgangszimmer zu benutzen finde ich sehr unglücklich.
Die Tür zum Hauswirtschaftsraum ist eher schlecht angeordnet.
Du musst beim Entwerfen darauf achten, dass nachher auch alles passt. Also maßstabsgetreu, mit Wandstärken und Fenstern, mit Ansichten und allen Grundrissebenen. Und alle Zimmer maßstabsgetreu durchmöblieren.
Gruß
B
Bauexperte19.11.11 10:49Chaap schrieb:
ich würde gerne mal externe Feedbacks zu unserem Grundriss einholen.
Es geht mir Hauptsächlich um die Aufteilung. Im EG soll alles unterkommen was man zum wohnen braucht. Im OG kommt zusätzlich noch ein Gästezimmer und ein großzügiges Büro hinzu. Die Wandstärken habe ich beim schnellen Skizzieren weggelassen. Ich freue mich auf eure Meinungen.Hallo Fabian,
vorab, am Ende wird im Angebot eine „4“ vorne stehen; ich hoffe, dass ist Dir klar? Mit grob überschlagenen 160 qm Wohnfläche/Etage als KfW-Effizienzhaus ist das kein kleines Bauvorhaben. Dein Grundstück müßte Deinem Vorschlag gemäß ein Baufenster von 19,0 m Meter in der Front aufweisen; ob die Garage über geschätzte 4,0 m den Baukörper übermessen darf, wird Dir Dein Bauamt beantworten können.
Den rund gestalteten Dielenbereich finde ich nicht schlecht, auch wenn E.Curbs Einwand nicht von der Hand zu weisen ist, so läßt eine Breite von 12,00 m solche Spielereien in gewissem Umfang zu. Unglücklich gewählt ist für mich die Abtrennung des Wohnbereiches; durch den Vorsprung der Ankleide holst Du Dir ein Ecke in den hauptsächlichen Lebensbereich. Hier ist es besser, dem verspielten Eingangsbereich mit geradliniger Architektur zu antworten; also die Wand der Ankleide auf eine Höhe mit dem gegenüberliegenden Hauswirtschaftsraum setzen. Das korrespondiert imho sehr gut miteinander.
Unglücklich ist auch die Anordnung „Schlafen – Bad – Ankleide“ – willst Du jedes Mal durch alle Räume laufen, um Dein Wohnzimmer oder die Küche zu erreichen? Hier würde ich über einen zusätzlichen Zugang zur Diele nachdenken, die Rundtreppe 1 oder 1,5 m in Richtung Hauseingang vorziehen; eine Änderung der Zimmeranordnung bringt hier imho wenig.
Dem folgend würde ich vorschlagen, darüber nachzudenken, den Eingangsbereich einen Meter in die Diele zu ziehen und somit eine überdachte Eingangssituation mit 2 Seitenteilen zu schaffen.
Der Hauptzugang zum Hauswirtschaftsraum sollte über die Diele geführt werden; wenn Du auch von der Küche aus Zugriff haben möchtest, frage Deinen Küchenbauer. Es gibt Heutzutage praktische Einbauschranklösungen, welche eine beidseitige Nutzung erlauben; alternativ geht auch eine innenliegende Schiebetür, damit die Wandflächen als Stellflächen erhalten bleiben.
Die Garage wird Dich auch nicht wenig Geld kosten, da sie bei dieser Überlänge und –breite Gemauert werden muß. Fertiggaragen arbeiten in festen Rastern – 3 x 6 oder 3 x 9 - alles was darüber hinaus geht – insbesondere ein Abweichen von der Standardbreite 3,0 m – erfordert Sonder- und Nachtransporte mit Anträgen auf Begleitfahrzeuge etc.
Was die Belichtung betrifft, so könnte ich mir vorstellen, dass ausschließlich im Terrassenbereich (analog im bodentiefe Fensterelemente verbaut werden; die restlichen Fenster als Brüstungsfenster. Schick ist auch eine Lösung, wo die Brüstungshöhe auf 70 cm begrenzt, mit dem Fenster mittels Sicherheitsglas auf die gesetzlich vorgeschriebene Brüstungshöhe von 90 cm erhöhen und dann darüber 1 oder 2-flügelig zu öffnen ist. Diese Fensterelemente nennt man Kämpferelemente – sie haben den Vorteil, dass im OG keine sog. französischen Balkone verbaut werden müssen, die Fensterelemente selbst aber durch die kurze Sicherheitsverglasung von innen leicht zu reinigen sind.
Mit freundlichen Grüßen
Ähnliche Themen