ᐅ Grundriss-Vorschlag Doppelhaushälfte 8,5 m x 10 m. Anregungen gesucht.
Erstellt am: 18.09.14 22:14
M
mannymausM
mannymaus18.09.14 22:14Hallo Zusammen,
wir wollen nächstes Frühjahr eine Doppelhaushälfte bauen.
Die Maße unserer Doppelhaushälfte sind 8,5 m x 10 m, unser Teil vom Grundstück hat ca. 400 qm.
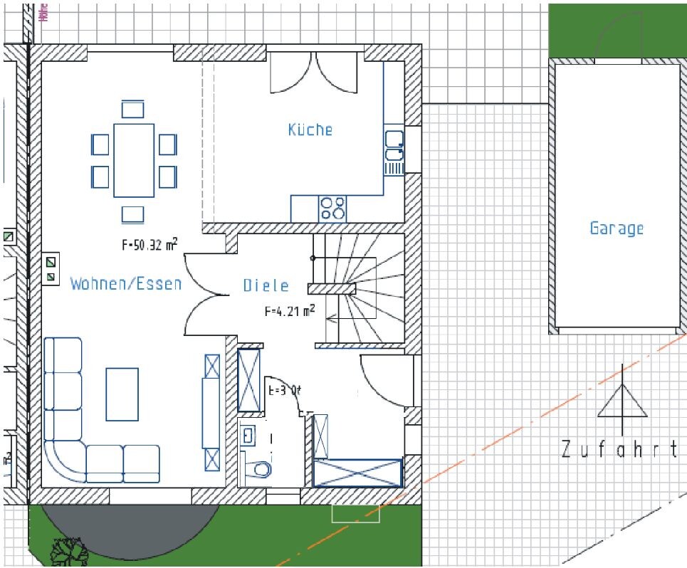
Garage mit Überdachung (Carport) zum Haus im Westen, dort befindet sich auch der Eingang.
EG: besteht aus offener Küche (1 Zeile an Carport-Wand und 1 Kochinsel mit Blick zum Esstisch) und Esszimmer (beides im Süden, bodentiefe Fenster zur Terrasse). Wohnzimmer ist im Norden.
OG: im Norden Elternschlafzimmer und Bad, im Süden zwei geplante Kinderzimmer
Keller mit Lichtgraben (Norden).
Bin sehr dankbar über Anregungen 🙂
Vielen Dank im Voraus! 🙄
wir wollen nächstes Frühjahr eine Doppelhaushälfte bauen.
Die Maße unserer Doppelhaushälfte sind 8,5 m x 10 m, unser Teil vom Grundstück hat ca. 400 qm.
Garage mit Überdachung (Carport) zum Haus im Westen, dort befindet sich auch der Eingang.
EG: besteht aus offener Küche (1 Zeile an Carport-Wand und 1 Kochinsel mit Blick zum Esstisch) und Esszimmer (beides im Süden, bodentiefe Fenster zur Terrasse). Wohnzimmer ist im Norden.
OG: im Norden Elternschlafzimmer und Bad, im Süden zwei geplante Kinderzimmer
Keller mit Lichtgraben (Norden).
Bin sehr dankbar über Anregungen 🙂
Vielen Dank im Voraus! 🙄
Schau mal hier, es gibt Parallelen, zumindest in den Maßen und im OG, speziell das Bad 🙂
https://www.hausbau-forum.de/threads/grundriss-fuer-vierkoepfige-familie.10740/
Ich finde hier (also im anderen) das OG besser gelöst.
Baut Ihr mit Keller?
Ich würde das WC-Fenster in den Norden (man hat dann mehr Privatsphäre, auch wenn das Fenster ein höhergelegtes ist 😉)
Flur empfinde ich als zu schmal, wüsste jetzt aber nicht den Mehrwert, WC und Garderobe entsprechend zu ändern, sodass es breiter werden könnte.
Ein Kommentar/kleiner Tipp in Kürze: diejenigen, die es bei uns können (fast alle) haben sich eine Zweitterrasse im Norden bzw Nordwesten zugelegt, da die Sonne im Sommer gegen Abend (ab 19 Uhr) weiter als Westen in NW zieht, sodass man hier einfach abends noch die Sonne bis spät geniessen kann.
Diese Möglichkeit solltet Ihr Euch im Norden offen halten 🙂
https://www.hausbau-forum.de/threads/grundriss-fuer-vierkoepfige-familie.10740/
Ich finde hier (also im anderen) das OG besser gelöst.
Baut Ihr mit Keller?
Ich würde das WC-Fenster in den Norden (man hat dann mehr Privatsphäre, auch wenn das Fenster ein höhergelegtes ist 😉)
Flur empfinde ich als zu schmal, wüsste jetzt aber nicht den Mehrwert, WC und Garderobe entsprechend zu ändern, sodass es breiter werden könnte.
Ein Kommentar/kleiner Tipp in Kürze: diejenigen, die es bei uns können (fast alle) haben sich eine Zweitterrasse im Norden bzw Nordwesten zugelegt, da die Sonne im Sommer gegen Abend (ab 19 Uhr) weiter als Westen in NW zieht, sodass man hier einfach abends noch die Sonne bis spät geniessen kann.
Diese Möglichkeit solltet Ihr Euch im Norden offen halten 🙂
Nee, ich finde die Küche dort sehr praktisch .. gleich an der Terrassentür zum Garten.
Und wie ypg sehe ich den Flur als zu eng an. Ich würde das WC nach links schieben und keinen geschlossenen Garderobenraum, sondern dann einen großen Schrank und kleine Hakengarderobe links an der WC-Wand.
Dadurch hat man dann im Türbereich etwas mehr Luft.

Und wie ypg sehe ich den Flur als zu eng an. Ich würde das WC nach links schieben und keinen geschlossenen Garderobenraum, sondern dann einen großen Schrank und kleine Hakengarderobe links an der WC-Wand.
Dadurch hat man dann im Türbereich etwas mehr Luft.
Schließe mich kbt an. WC und Garderobe tauschen. Macht das Ganze einladender und heller. Außerdem würde ich den Treppenaufgang spiegeln und die Wand zwischen Haustür und Treppe, dann in Treppenlaufschräge machen und nicht komplett hochziehen, sonst wirkt es so drückend. Ich nehme mal an, ihr habt nen Keller?
M
mannymaus19.09.14 15:15Vielen lieben Dank für die Tipps und den Link 🙂!
- Ja, wir bauen mit Keller.
- Das WC-Fenster werden wir tatsächlich im Norden platzieren...finde ich auch besser wg. der Privatsphäre ;-).
- Ist der Flur wirklich zu eng? Ich dachte, dass er durch die L-Form geräumiger ist...
- Küche und Wohnzimmer waren ursprünglich getauscht. Wir wollten bewusst die Küche im Süden haben, damit der Weg zur Terrasse kurz ist und die Fernseh-Ecke im "dunkleren" Norden.
- Den Vorschlag mit der offenen Garderobe finde ich schon interessant. Wir dachten, dass wir in einer geschlossenen Garderobe "schlampiger" Schuhe/Jacken aufbewahren können und z.B. dort den Staubsauger verstauen können.... Werde aber noch einmal über die offene, luftigere Lösung nachdenken.
- Wie ist das gemeint, mit Treppenaufgang spiegeln? Also auf der rechten Seite rauf gehen und nur ein Treppengeländer und keine Wand?
Vielen Dank 🙂
- Ja, wir bauen mit Keller.
- Das WC-Fenster werden wir tatsächlich im Norden platzieren...finde ich auch besser wg. der Privatsphäre ;-).
- Ist der Flur wirklich zu eng? Ich dachte, dass er durch die L-Form geräumiger ist...
- Küche und Wohnzimmer waren ursprünglich getauscht. Wir wollten bewusst die Küche im Süden haben, damit der Weg zur Terrasse kurz ist und die Fernseh-Ecke im "dunkleren" Norden.
- Den Vorschlag mit der offenen Garderobe finde ich schon interessant. Wir dachten, dass wir in einer geschlossenen Garderobe "schlampiger" Schuhe/Jacken aufbewahren können und z.B. dort den Staubsauger verstauen können.... Werde aber noch einmal über die offene, luftigere Lösung nachdenken.
- Wie ist das gemeint, mit Treppenaufgang spiegeln? Also auf der rechten Seite rauf gehen und nur ein Treppengeländer und keine Wand?
Vielen Dank 🙂
Ähnliche Themen