Hallo Zusammen,
habe mir nun einen ersten Entwurf unseres künftigen Eigenheims angefertigt. Mich würde hier gerne Ideen/Hinweise/Kritik von euch interessieren.
Grundstück: Bisher nicht vorhanden
Geschossigkeit: 2-geschossig plus Dach
Dachform: Satteldach
Anforderungen der Bauherren:
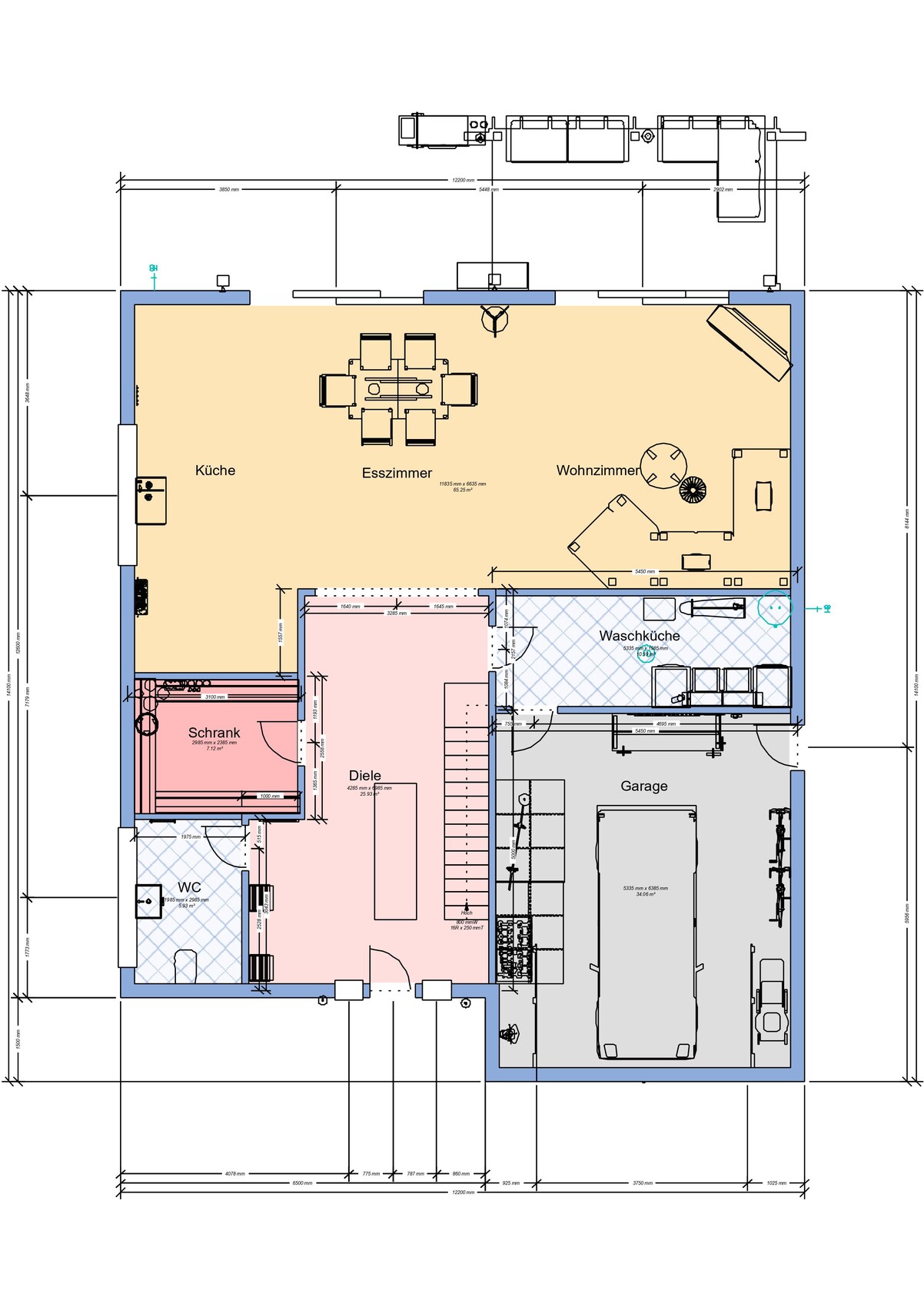
Keller, Geschosse: keinen Keller vorgesehen
Anzahl der Personen, Alter: 3-4: V/M/K (+K) , 32/29/0,5
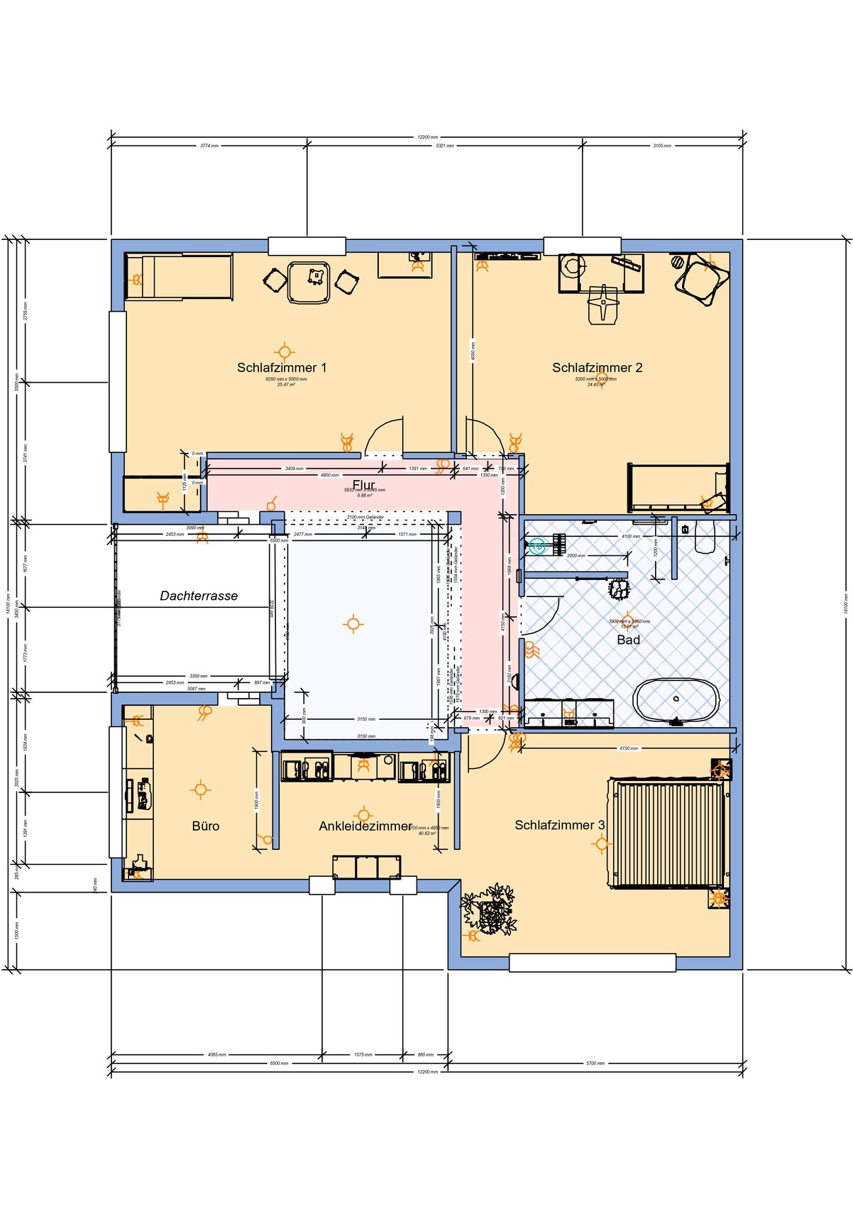
Büro: Familiennutzung oder Homeoffice? Homeoffice Vater
konservativ oder moderne Bauweise: modern
offene Küche, Kochinsel: wenn’s passt, Esstisch + Wohnzimmer im selben Raum
Anzahl Essplätze: 6
Kamin: nicht erwünscht, da Fußbodenheizung bevorzugt
Balkon, Dachterrasse: ja zwischen SChlafzimmer & Büro inmitten des Dachstuhls
Garage, Carport: Garage inkludiert.
Nutzgarten, Treibhaus: aktuell nicht vorgesehen
weitere Wünsche/Besonderheiten/Tagesablauf, gern auch Begründungen, warum dieses oder das nicht sein soll: heller Wohnraum
Von wem stammen die Planungen:
-Do-it-Yourself
Was gefällt besonders? Warum?
Würd mich freuen, wenn ihr das mal auseinander nehmt 😉
LG
KeySt






habe mir nun einen ersten Entwurf unseres künftigen Eigenheims angefertigt. Mich würde hier gerne Ideen/Hinweise/Kritik von euch interessieren.
Grundstück: Bisher nicht vorhanden
Geschossigkeit: 2-geschossig plus Dach
Dachform: Satteldach
Anforderungen der Bauherren:
Keller, Geschosse: keinen Keller vorgesehen
Anzahl der Personen, Alter: 3-4: V/M/K (+K) , 32/29/0,5
Büro: Familiennutzung oder Homeoffice? Homeoffice Vater
konservativ oder moderne Bauweise: modern
offene Küche, Kochinsel: wenn’s passt, Esstisch + Wohnzimmer im selben Raum
Anzahl Essplätze: 6
Kamin: nicht erwünscht, da Fußbodenheizung bevorzugt
Balkon, Dachterrasse: ja zwischen SChlafzimmer & Büro inmitten des Dachstuhls
Garage, Carport: Garage inkludiert.
Nutzgarten, Treibhaus: aktuell nicht vorgesehen
weitere Wünsche/Besonderheiten/Tagesablauf, gern auch Begründungen, warum dieses oder das nicht sein soll: heller Wohnraum
Von wem stammen die Planungen:
-Do-it-Yourself
Was gefällt besonders? Warum?
- direkte Anbindung der Garage, sodass man das Gebäude nicht wechseln muss (amerikanisches Vorbild)
- Große Fenster für helle Wohnung.
- Recht Tür arme Wohnung
Würd mich freuen, wenn ihr das mal auseinander nehmt 😉
LG
KeySt
TheKeySt schrieb:
Grundstück: Bisher nicht vorhandenAn der Stelle macht man bei mathematischen Beweisen einen gezackten Pfeil nach unten ... und hört auf mit der Bearbeitung.Insgeheim finde ich den Entwurf schon interessant aber gleichzeitig auch geradezu verschwenderisch. Habt Ihr Euch schon Gedanken zum Budget gemacht?
Ähnliche Themen