ᐅ Grundriss und Hauspositionierung Bungalow mit 120qm auf Eckgrundstück
Erstellt am: 27.11.25 08:58
L
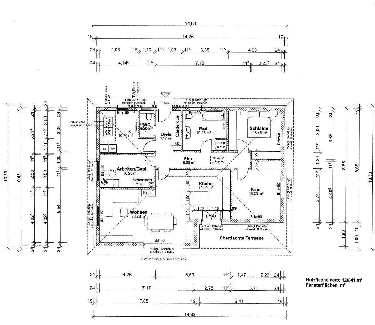
Lurchi2025Das mit dem WZ kann ich verstehen und die ein gezeichnete Möblierung erscheint mir auch nicht passend, da hier ja keine 3 Personen wirklich gemürtlish sitzen können auf den eingezeichneten Modulen. Den Kamin auch mit seinen Abstandsnotwendigkeiten würde ich ohnenhin hinterfragen, zusätzlich auch wg. dem Zusammenwirken von träger Fußbodenheizung und ihm. Das würde ich für mich daher ganz genau prüfen. Vlt. schiebst Du auch mal die Möbel auf die ggü. liegende Seite, um zu sehen, wie es wirkt und es stellt sich auch die Frage der Dominanz des TV, ob diese anders aufgelöst werden kann.
Aktuell ist der Flur dunkel, weshalb ich vlt. eine Glastür zum Bad/Schlafzimmer setzen würde und den Zugang zum Allraum aus dem Flur vlt. offen und etwas breiter halten würde.
DasThema Grillen ist ja bedeutend, was ich von mir auch kenne. Insofern würde ich diesen Bereich der Terrasse gleich wichtig und angemessen mitplanen und auch "Entlastung" der Küche betrachten. Hier stellt sich natürlicb die Frage, ob dahn dort das Kinderzimmer an der passenden Stelle ist und ihr nicht lieber tauscht mit Eurem Schlafzimmer. Das Kinderzimmer liegt auch noch an der Küchenwand, auch das wäre anders wohl besser.
Vlt könnte auch die Wand zum Bad nach der Tür noch etwas einrücken, damit der Flur etwas breiter wird; 1-2 qm weniger ergibt immer noch ein schönes Bad. Rein aus Interesse würde ich dann auch mal Wanne und Dusche tauschen, ich kann mir das vorher nie ricntig vorstellen und müsste das mal aufzeichnen. Vlt. sind das aber auch keine gute Ideen aber probieren tut ja nicht weh.
Aktuell ist der Flur dunkel, weshalb ich vlt. eine Glastür zum Bad/Schlafzimmer setzen würde und den Zugang zum Allraum aus dem Flur vlt. offen und etwas breiter halten würde.
DasThema Grillen ist ja bedeutend, was ich von mir auch kenne. Insofern würde ich diesen Bereich der Terrasse gleich wichtig und angemessen mitplanen und auch "Entlastung" der Küche betrachten. Hier stellt sich natürlicb die Frage, ob dahn dort das Kinderzimmer an der passenden Stelle ist und ihr nicht lieber tauscht mit Eurem Schlafzimmer. Das Kinderzimmer liegt auch noch an der Küchenwand, auch das wäre anders wohl besser.
Vlt könnte auch die Wand zum Bad nach der Tür noch etwas einrücken, damit der Flur etwas breiter wird; 1-2 qm weniger ergibt immer noch ein schönes Bad. Rein aus Interesse würde ich dann auch mal Wanne und Dusche tauschen, ich kann mir das vorher nie ricntig vorstellen und müsste das mal aufzeichnen. Vlt. sind das aber auch keine gute Ideen aber probieren tut ja nicht weh.
Arauki11 schrieb:
Hier stellt sich natürlicb die Frage, ob dahn dort das Kinderzimmer an der passenden Stelle ist und ihr nicht lieber tauscht mit Eurem Schlafzimmer.Würde ich auch tauschenLurchi2025 schrieb:
wobei unser Junior einen recht tiefen Schlaf hat.Der Junior wird auch mal größer und da könnten Interessenskonflikte am Abend zwischen Junior im Zimmer und Besuch auf der Terrasse oder Junior auf der Terrasse entstehen.Lurchi2025 schrieb:
Der Bauherr hätte das Haus jedoch lieber an der westlichen Hauptstraße,Wer ist denn der Bauherr, wenn nicht Ihr?Lurchi2025 schrieb:
der Flur ist mit 1,20m eher eng1,20 ist nicht zu eng, da er nicht ständig von mehreren Personen auf mal frequentiert wird. Man könnte sogar noch eine Kommode stellenLurchi2025 schrieb:
Der Entwurf stammt von der Architektin unseres GUHaben die Typenhäuser? Welcher GU ist es?Lurchi2025 schrieb:
die Terrasse ist zu länglich? An solch eine Terrasse kann man gut und gern eine Terrassenüberdachung anbauen. Aber Achtung: das Dach könnte im Weg sein, sodass man darauf eine fertige Überdachung befestigen muss. Das kann optisch nicht ganz so schön aussehen.Lurchi2025 schrieb:
am Eingang zum Allraum hat man recht viel ungenutzte Freifläche und ich hätte gerne etwas Stellfläche im Gästezimmer hinter der TürMan könnte dort ja schon die Küche beginnen lassen.Aber man könnte, bevor man sich Gedanken um die Lage des Hauses macht, eventuell einen anderen Hausentwurf nehmen. Ggf ändern sich dann die Raumlagen und somit dann auch die Hauslage auf dem Grundstück.
Grundsätzlich wäre ich für den Norden und dann die Öffnung der Terrasse in den SW, also wie @hanghaus2023 es gezeichnet hat.
L
Lurchi202528.11.25 08:42ypg schrieb:
Wer ist denn der Bauherr, wenn nicht Ihr?Das war eine schlechte Formulierung von mir, ich meinte damit meinen Mann.1,20 ist nicht zu eng, da er nicht ständig von mehreren Personen auf mal frequentiert wird. Man könnte sogar noch eine Kommode stellenWir haben aktuell genau diese 1,20 in unserer Wohnung, sogar mit Kommode. Hatte nach Erhalt des Grundrisses direkt den Zollstock gezückt. Klar geht es, aber gerade an dieser Kommode ist es derzeit immer eine Engstelle.Haben die Typenhäuser? Welcher GU ist es?Es ist ein kleiner regionaler GU mit so grob 20-25 Häusern im Jahr. Sie haben für die üblichen Häusertypen jeweils einen Beispielgrundriss (darf man sowas hier reinstellen?). Hier haben die beiden Kinderzimmer aber nur knapp 11qm, so 13-14qm wollten wir aber zumindest beim einen Kinderzimmer schon haben. Beim Arbeits-/Gästezimmer empfinden wir 10-11qm nicht schlimm.? An solch eine Terrasse kann man gut und gern eine Terrassenüberdachung anbauen. Aber Achtung: das Dach könnte im Weg sein, sodass man darauf eine fertige Überdachung befestigen muss. Das kann optisch nicht ganz so schön aussehen.Natürlich kann man eine Überdachung anbauen, aber genau wie du es angesprochen hast: Es ist optisch halt nicht ganz so schön. Daher hätten wir lieber eine eher quadratische Terrasse oder zumindest eine Tiefe von ca. 3-3,5m. Man hat ja am Ende noch genug Ausgaben rund um Haus und Garten, da empfanden wir es als praktische "Beigabe" eines Winkelbungalows, dass man sich zumindest um die Überdachung schon keine Gedanken mehr machen muss.Man könnte dort ja schon die Küche beginnen lassen.So hatte ich das auch eingezeichnet, es bleibt aber trotzdem noch eine gewisse Freifläche. Sicherlich soll es nicht zu eng sein, aber mit der aktuell eingezeichneten Möblierung hätte man noch gut 1m Platz zwischen Küche und Tür.Aber man könnte, bevor man sich Gedanken um die Lage des Hauses macht, eventuell einen anderen Hausentwurf nehmen. Ggf ändern sich dann die Raumlagen und somit dann auch die Hauslage auf dem Grundstück.
Grundsätzlich wäre ich für den Norden und dann die Öffnung der Terrasse in den SW, also wie @hanghaus2023 es gezeichnet hat.Ja, wir wollten auch erst mal den Grundriss an sich etwas weiter haben, bevor wir uns endgültig für eine Position entscheiden. Gerade weil der Hausumriss sich ja dadurch auch noch mal ändern kann. Natürlich wollen wir auch beim Grundriss auf die Himmelsrichtungen achten, wahrscheinlich haben wir deswegen auch das Kinderzimmer zur Terrasse geplant, damit es möglichst viel Südwest-Sonne bekommt (bei Positionierung im Norden mit SW-Terrasse).So wirklich glücklich sind wir mit dem derzeitigen Entwurf aber noch nicht. Vielleicht hätte von euch hier ja noch eine Idee? Durch den Bungalow sind wir ja recht frei in der Grundrissgestaltung, haben keine Treppenlage die viel bestimmt.
Anbei noch mal der Grundriss mit eingezeichneter Möblierung in Wohnzimmer und Küche, aber mal wie von @Arauki11 empfohlen Couch und TV-Wand gespiegelt.
H
hanghaus202328.11.25 09:34Eventuell kannst das spiegeln. Ausser Ihr mögt im Osten die Terrasse?

Hier mal noch einige Anpassung zum Grundriss.

Der Eingang zum WZ bekommt eine Festverglasung. Insel der Küche mit Fluchtlinie etwas länger. Wenn das Haus gespiegelt wird dann auch gern das Schlafzimmer nach unten. Dann hat das Kinderzimmer auch SW. Alle Türen (ausser WC) mind. 90cm.
Hier mal noch einige Anpassung zum Grundriss.
Der Eingang zum WZ bekommt eine Festverglasung. Insel der Küche mit Fluchtlinie etwas länger. Wenn das Haus gespiegelt wird dann auch gern das Schlafzimmer nach unten. Dann hat das Kinderzimmer auch SW. Alle Türen (ausser WC) mind. 90cm.
H
hanghaus202328.11.25 10:08Ähnliche Themen