Grundriss Satteldach, Plan für den Erker

4,50 Stern(e) 4 Votes
Zuletzt aktualisiert 24.11.2025
Sie befinden sich auf der Seite 2 der Diskussion zum Thema: Grundriss Satteldach, Plan für den Erker
>> Zum 1. Beitrag <<

W

wolfgangpue

Danke für die Antworten.

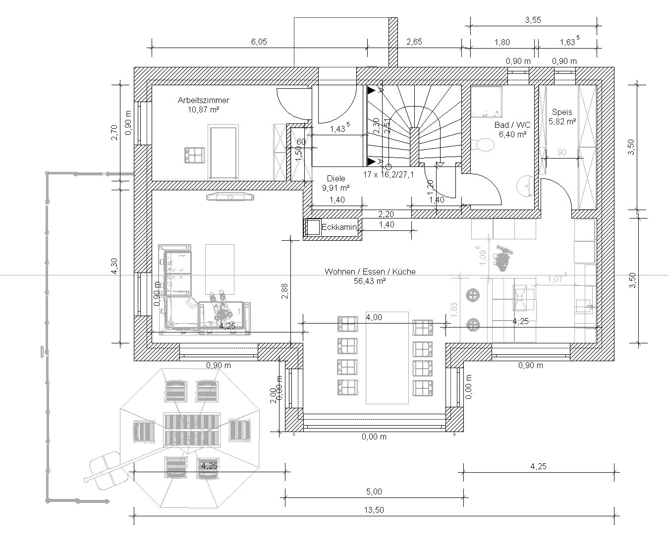
Garderobe zu klein und hinter der Tür schlecht erreichbar.
Stimmt, Garderobe hab ich jetzt vergrößert und mit der Arbeitszimmertür getauscht.

Das OG überzeugt mich nicht. Das Bad wirkt beengt, das WC ist unter 2m. Das geht auf jeden Fall besser.
Das WC würde noch leicht nach vorne versetzt werden wegen dem Spülkasten. Aber du hast recht, es würde dann trotzdem knapp werden. Ich hab das WC jetzt mit der Badewanne getauscht.

Im EG würde ich den Eingang zum Arbeitszimmer und die Garderobennische tauschen, so ist die Nische nicht nutzbar, da ja immer die Haustür im Weg ist.
Im OG kommen mir die Fenster recht klein vor.
Danke, wurde getauscht. Die Fenster sind auf einem 45 Grad Dach eingezeichnet. Sie sind daher von der Fläche doppelt so groß.

Ok, dann ist das OG hell genug, aber im EG würde ich trotzdem noch ein schönes Fenster einplanen.
Die Haustüre wird auch noch ein Seitenteil erhalten, wo ein bisschen Licht reinkommt. Auch die Wohnzimmerschiebetür wird leicht lichtdurchlässig sein. Da über der Haustür auch ein Luftraum ist zum Obergeschoss, sollte zumindest von oben vom Dachfenster genug Licht einfallen.
Ein zusätzliches Fenster wäre eine Überlegung wert, sollte das große Dachfenster von oben nicht ausreichen.

Verstehe das obere eine Kinderzimmer nicht - hast du da einfach die Wand nicht im Programm wegbekommen, oder hat das Kind ein Loch mit Fenster am Ende neben seinem Zimmer?
Auch ist mir die Terrasse nicht ganz klar - die hat ja Blick auf die Auffahrt - wenn da auch die Straße liegt hat jeder Einblick auf eure Grillfeste (da kann man dann ja auch eher schwer Bäume pflanzen).
Genau, die zusätzlichen Wände links und rechts von der Gaube sind nur die Gaubenseitenteile und stehen nicht im Raum. Um Blicke auf die Terrasse zu vermeiden, werde ich über die Garage ein paar Blumentöpfe aufstellen (Bambus). Die Straße selbst ist eine Sackgasse und führt nur noch zu einem weiteren Haus. Auf der Grünfläche werde ich aber, da sie abfallend ist eine Steinmauer zur Straße hochziehen und dann oberhalb ein paar Sträucher setzen, damit die Terrasse geschützt ist.

Der Plan ist irreführend: die Maße können nicht stimmen bzw einige sind falsch und kommen nicht hin.
ZB hat die Wohnzimmertür zwei verschiedene Vermaßungen. Die Erkerseite soll 2 Meter sein. Der Durchgang Wohnzimmer /Essen 2,88 . Wenn man vergleicht, muss da was falsch sein.
Bei den Fenstern sind überall die Brüstungshöhen angegeben und bei der Wohnzimmertür ist zusätzlich auch die Durchgangshöhe angegeben: 2,2m. Der Durchgang ist nur 1,4m breit.
Ansonsten sind immer nur Längen- oder Breitenangaben eingefügt und diese stimmen.
 
kbt09

kbt09

Es irritiert sehr, wenn du Änderungen im Eingangsbeitrag anhängst bzw. dort Zeichnungen tauschst. Dann versteht man die Beiträge, die vor deinen Änderungen gekommen sind nicht mehr. Wenn, dann zusätzlich als geänderte Variante anhängen.
 
Y

ypg

Neue oder geänderte Anhänge bitte als neuen Post in die Diskussion einbringen - alles andere macht keinen Sinn, wie @kbt09 schon sagt.

Gruß Yvonne
 
M

milkie

Der Erker eignet sich eigentlich hervorragend für einen Arbeitsplatz. Hell durch das Fenster und fast 2m breit.
Auch wenn ich Erker eigentlich nicht mag, dieser hier wird zumindest mal genutzt.
 
Zuletzt aktualisiert 24.11.2025
Im Forum Grundrissplanung / Grundstücksplanung gibt es 2536 Themen mit insgesamt 87999 Beiträgen


Ähnliche Themen zu Grundriss Satteldach, Plan für den Erker
Nr.ErgebnisBeiträge
1auf welchen dieser Grundrisse können wir weiter aufbauen? - Seite 2287
2Verschattung der Dachfenster im Wohnzimmer - Erfahrungen / Tipps? 28
3Terrasse anlegen - Probleme mit dem Gefälle 18
4Erker Möglich? Neubau im Neubaugebiet? 29
5Dachfenster Möglichkeiten - Seite 428
6Rollladen Dachfenster Geräuschreduzierung bei Regen 11
7Dachfenster im Schlafzimmer? 13
8Badewanne unter Dachfenster unterbringen sinnvoll? 13
9Dachfenster bei Dachneigung von ca. 12° wirklich nicht machbar? 18
10Dachfenster beschlägt extrem und Wasser läuft in den Kanten 10
11VELUX Dachfenster Inkl. elektrische Rollladen 21
12Dachfenster schwitzt stark. Morgens viel Kondensat . 17
13Kosten nachträgliches Dachfenster 20
14Elektrische Rollläden für schräges Dachfenster 15
15Dachfenster wgn Brandschutz nicht möglich - was sonst? - Seite 326
16Tausch Dachfenster im Bad in Förderung für die Wärmepumpe enthalten? 10
17Anzahl der Dachfenster und Positionierung der Fenster. 29
18Dachfenster oder künstliche Beleuchtung als Alternative? 14
19Reinigung hoher, schwer zugänglicher Dachfenster Galerie? 12
20Grundriss Einfamilienhaus mit Erker 22

Oben