ᐅ Grundriss Reiheneckhaus in Planung - Änderungsvorschläge?
Erstellt am: 20.08.22 21:05
B
Bauherrin123B
Bertram10023.08.22 08:13Auf die Schnelle finde ich kein Gradient-Bild wo jede Stufe einen andere Farbton bekommen hat.
Ich füge noch ein Bild hinzu aus dem Internet von einer Treppe wo man sehr gut erkennen kann dass das Geländer den Ton macht. Auf dem Foto ist es eher im ländlichen Stiel gehalten. Mit einem schnieken Metallgeländer in einfacher Formgebung würde die Treppe ganz anders aussehen.
Du kannst natürlich machen was du möchtest mit deiner Treppe. Ich erinner mich dass ich beim Aussuchen der Treppe auch so unsicher war und dachte dass eine Treppe schön sein muss. Muss sie aber gar nicht, gut genug ist gut genug. Die wenigsten Treppen sind hässlich.

Ich füge noch ein Bild hinzu aus dem Internet von einer Treppe wo man sehr gut erkennen kann dass das Geländer den Ton macht. Auf dem Foto ist es eher im ländlichen Stiel gehalten. Mit einem schnieken Metallgeländer in einfacher Formgebung würde die Treppe ganz anders aussehen.
Du kannst natürlich machen was du möchtest mit deiner Treppe. Ich erinner mich dass ich beim Aussuchen der Treppe auch so unsicher war und dachte dass eine Treppe schön sein muss. Muss sie aber gar nicht, gut genug ist gut genug. Die wenigsten Treppen sind hässlich.
Bertram100 schrieb:
Muss sie aber gar nicht, gut genug ist gut genug. Die wenigsten Treppen sind hässlich.Da muss ich dann doch mal widersprechen. Es gibt Treppen und es gibt Treppen. 😉Und wegen all den "Platz"-Gedanken, rege ich an, doch nochmal über Evelins Küchengedanken nachzudenken. Da könnte dann wohl auch die Treppe eher offen bleiben und mit Disziplin hat man dann unter der Treppe nur ein Deko-Stück. Mit ausreichend Garderobenschrank entlastet man auch den Schlafzimmerschrank, der dann vielleicht doch nur 250 cm sein muss und damit eine ordentliche Bürotür ermöglicht usw.
Z. B. nur eine jeweilige Jahreszeitenjacke in der Garderobe zu haben, finde ich mehr als unpraktisch. Gerade in der Übergangszeit hat man doch auch unterschiedlich warme Jacken und entscheidet am Tag, welche man anzieht oder im Winter ... eher der Ski-Anorak oder der lange Mantel, je nachdem wo man hin will und was man machen will.
Und, wirklich genau klären, welche Hausanschlüsse noch da unten sein müssen und nicht nach oben unters Dach kommen. Was ist mit Sicherungskasten Elektro usw.
Z. B. nur eine jeweilige Jahreszeitenjacke in der Garderobe zu haben, finde ich mehr als unpraktisch. Gerade in der Übergangszeit hat man doch auch unterschiedlich warme Jacken und entscheidet am Tag, welche man anzieht oder im Winter ... eher der Ski-Anorak oder der lange Mantel, je nachdem wo man hin will und was man machen will.
Und, wirklich genau klären, welche Hausanschlüsse noch da unten sein müssen und nicht nach oben unters Dach kommen. Was ist mit Sicherungskasten Elektro usw.
K a t j a schrieb:
@ypg Wir brauchen wieder mal die Liste. 🙂Wortlos mit Worten präsentiere ich die Lhttps://www.hausbau-forum.de/threads/die-liste-die-jeden-bauherren-zu-interessieren-hat.34418/
hab noch meinen Garderobenthread gefunden
https://www.hausbau-forum.de/threads/schuhe-und-jacken-auf-1-37qm-realistisch.38783/
Bauherrin123 schrieb:
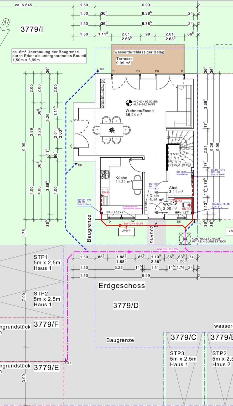
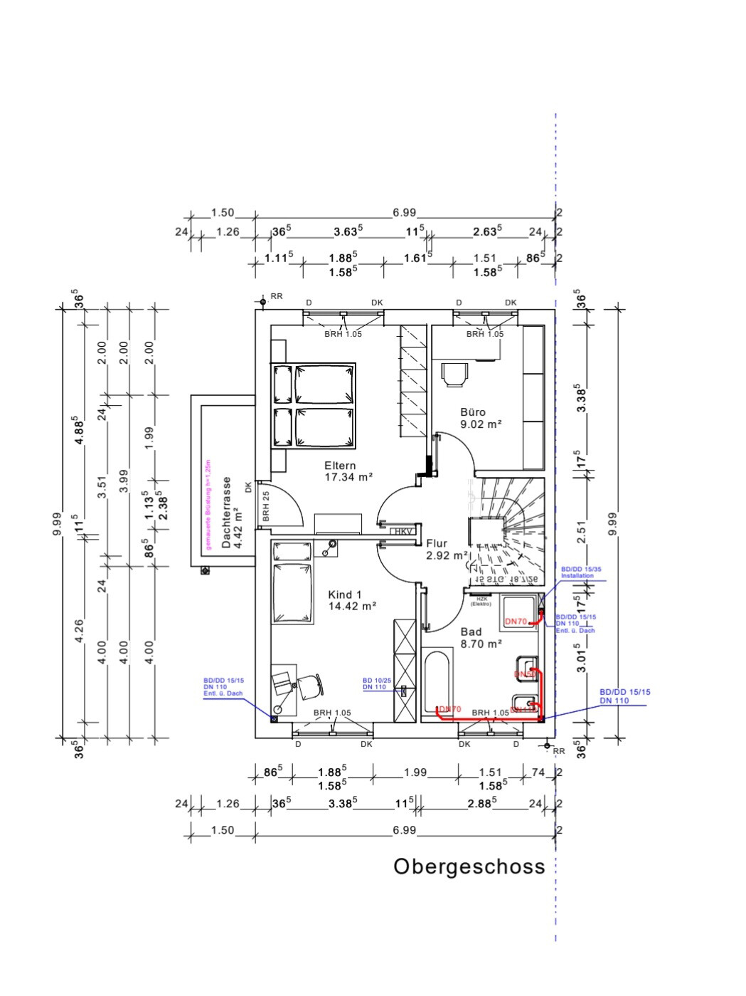
Nervig ist halt einfach die Tür oben im Büro, die einzige Lösung, die ich habe ist die schmale Tür zu nehmen, ...???Ich poste hier eine Lösung nach der anderen...
Dennoch ein weiterer Versuch: Treppenlaufrichtung drehen:
So könnte man im EG den Abstellraum erweitern und gleich den Platz unter der Treppe mit nutzen. Statisch müsste man allerdings die Wände oben drüber abfangen. Sollte aber lösbar sein.
Im OG überbauen wir einfach die erste Stufe, um die Tür des Büros versetzen zu können.
Im DG brauchen wir für die Tür in den Hauswirtschaftsraum jetzt allerdings mehr Höhe. Daher muss hier das große Doppelflügelfenster hin, damit die Tür aufgeht. Die Waschmaschine stellen wir gleich mit unters Fenster -> Wasseranschluss!!!
Bauherrin123 schrieb:
In die Abstellkammer MUSS ein Gefrierfach hin, und rechts wenn man reinkommt, ein Schuhschrank, vorne an der Wand kleine Garderobe, mir reichen Hacken, für uns und welche an der Tür für Gäste, und restlichen Platz ein Regal für Vorräte. Staubsauger, Wischesachen werde ich einfach vor dem Regal stellen, so oft wischt ma. Ja nicht, wobei mit Kindern wird es ja anders und Haus ist anders als Wohnung,.... ich muss ja auch oben putzen, ob ich jetzt die Sachen von oben runter hole, oder von unten hoch, einmal müssen sie getragen werden. Kann sie aber auch im Hauswirtschaftsraum lagern.... ja Vorratsraum ist klein, aber trotzdem groß genug, dass das alles da reinpasst, finde ich zumindest. Lass mich gerne korrigieren.
...
Getränke in die Garage, oder in der Küche ist ja rechts Platz, an der Wand, vielleicht da oder weiß nicht,.... vielleicht unter die offene Treppe Also ja mir fehlen schon par Ecken zum verstauen, aber alles an Optik will ich nicht aufgeben, mache mir trotzdem Gedanken, weil noch habe ich keine Kinder, keine Erfahrung mit vielem und hier schreiben ja alle, dir schon gebaut haben und mit Kinder wohnen, nicht dass ich mich dann hinterher ärgere.....Also nochmal kurz zu der Abstellkammer/Garderobe. Wir haben auch keinen Keller, und deswegen viel mehr Abstellflächen eingeplant (Gefühlt aber zu wenig). Ich rechne dir das mal vor, denn ich würde mir wünschen das mich jemand jetzt darauf aufmerksam macht und ich mich danach nicht total ärgere.
Insbesondere auf deine Überlegung mit der offenen oder geschlossenen Treppe.
Im Eingangsbereich ausreichend (!) Garderobe, Schuhschrank, platz für den Kinderwagen.
Dafür haben wir mehrere Meter eingeplant.
Unsere Küche hat mehrere Hochschränke, trotzdem haben wir noch eine Speisekamme für den Gefrierschrank und die Getränkekästen sowie ein paar regale für Vorräte.
Dieser Raum hat 4 qm.
Einen Technikraum, in dem wirklich nur die Haustechnik untergebracht ist, und der ist sehr voll.
Dieser Raum hat 10 qm.
Einen Raum nur für die Wäsche und Putzzeug. Darin sind Waschmaschine, Trockner, Wäschekorb, Regale für Puztutensilien und auch Werkzeug, ein Waschbecken und den Staubsauger etc. Der Raum hätte im nachhinein ein bisschen größer sein können, der Wäscheständer steht schon sehr beengt und muss nach benutzung immer wieder aufgeräumt werden, sonst kommt man nicht gut an die Regale.
Dieser Raum hat 5 qm.
Ich weiß, dass man ein Einfamilienhaus in dem Sinne schlecht mit einem Reihenhaus vergleichen kann. ABER, du kannst versuchen den vorhandenen Platz möglichst effizient zu nutzen.
Ich würde mich jetzt nicht als Mensch bezeichnen, der übermäßig viele Dinge aufhebt und hortet. Aber manche Sachen brauchen einfach mehr Platz als du jetzt hier denkst, z.b der Gefrierschrank.
Wenn du den in diesen kleinen Raum stellst, ist der eigentlich voll. Vor die Türe vom Gefrierschrank kannst du ja auch nichts stellen. Wo aber ist dann deine Garderobe?! Mal ganz abgesehen von irgendwelchen Regalen für Vorräte.
Ich würde dir empfehlen, die Treppe zu schließen und dem Abstellraum zu zusteuern.
Dann wie schon mehrfach vorgeschlagen, die Küche schmäler und dafür die Garderobe hier unterbringen. Die Lösung sieht sehr sinnvoll aus, und niemand braucht 2 Tische direkt nebeneinander. vor allem, wenn es so eine Platz"verschwendung" ist.
Überlege dir bitte gut, was euch in Zukunft wichtig ist. vor allem, wenn Kinder unterwegs/geplant sind. 🙂
Ähnliche Themen