Hallo zusammen,
nachdem ich lange hier mitgelesen habe, ist dieses nun mein erster Beitrag in diesem Forum und ich hoffe, dass ihr mir mit Tipps und Ideen helfen könnt bzw. ich auch einen produktiven Beitrag Leisten kann?!
Ich bin derzeit im Begriff für meine 4-köpfige Familie unseren Traum vom Haus zu verwirklichen. Wir haben ein Grundstück erworben, welches eine Größe von 770qm hat. Derzeit steht dort noch ein Haus aus den 50ern, welches wir jedoch in Kürze abreissen werden. Aktuell konkretisiert sich gerade unser Raumprogramm. Wir bauen mit einem Architekten, der unserer Meinung nach die Anforderungen recht gut umgesetzt hat. Wie so oft steckt der Teufel jedoch im Detail und wir würden uns daher sehr über Anregungen und Kritik zu unseren Plänen freuen.
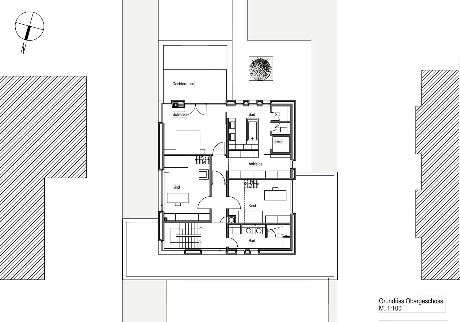
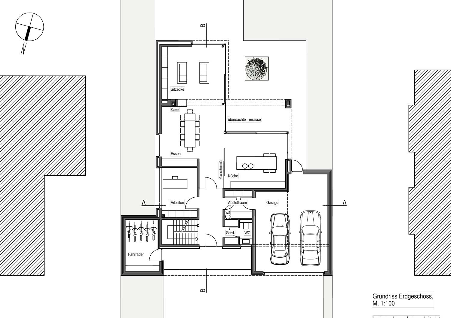
Ergänzend sei gesagt, dass das Haus einen Keller enthalten wird, in dem ein Abstellraum, ein Waschkeller, sowie 2 Räume ZBV vorhält.
Ich freue mich über Euer Feedback...

nachdem ich lange hier mitgelesen habe, ist dieses nun mein erster Beitrag in diesem Forum und ich hoffe, dass ihr mir mit Tipps und Ideen helfen könnt bzw. ich auch einen produktiven Beitrag Leisten kann?!
Ich bin derzeit im Begriff für meine 4-köpfige Familie unseren Traum vom Haus zu verwirklichen. Wir haben ein Grundstück erworben, welches eine Größe von 770qm hat. Derzeit steht dort noch ein Haus aus den 50ern, welches wir jedoch in Kürze abreissen werden. Aktuell konkretisiert sich gerade unser Raumprogramm. Wir bauen mit einem Architekten, der unserer Meinung nach die Anforderungen recht gut umgesetzt hat. Wie so oft steckt der Teufel jedoch im Detail und wir würden uns daher sehr über Anregungen und Kritik zu unseren Plänen freuen.
Ergänzend sei gesagt, dass das Haus einen Keller enthalten wird, in dem ein Abstellraum, ein Waschkeller, sowie 2 Räume ZBV vorhält.
Ich freue mich über Euer Feedback...
Grundriss finde ich ganz ok. Für mich ein bissel zu viel Glas - aber das ist Geschmackssache.
Im Elternbad finde ich die Wanne ungünstig platziert.
Der Weg vom Wohnzimmer zum WC ist recht lang und die Garderobe finde ich etwas klein/beengt. Aber ok - damit kann man leben, ihr habt ja noch nen schönen Abstellraum :-)
Im WC würde ich waschbecken und Toilette tauschen, so bleibt über dem Waschbecken noch Platz für nen Spiegel.
WS steht für Wäscheschacht? Wenn ja, gute Idee den im Flur zu platzieren, so kommt jeder ran.
Wie gesagt, ein schöner Grundriss, der vor allem auch mal richtig gut funktioniert
Im Elternbad finde ich die Wanne ungünstig platziert.
Der Weg vom Wohnzimmer zum WC ist recht lang und die Garderobe finde ich etwas klein/beengt. Aber ok - damit kann man leben, ihr habt ja noch nen schönen Abstellraum :-)
Im WC würde ich waschbecken und Toilette tauschen, so bleibt über dem Waschbecken noch Platz für nen Spiegel.
WS steht für Wäscheschacht? Wenn ja, gute Idee den im Flur zu platzieren, so kommt jeder ran.
Wie gesagt, ein schöner Grundriss, der vor allem auch mal richtig gut funktioniert
Hi Manu,
vielen Dank für Deine Meinung! Was die Badplanung anbelangt ist das erstmal provisorisch. Da wird nochmal der Bad-Spezialist drüber schauen und eine vernünftige Planung abliefern. WS ist in der Tat der Wäscheschacht, der dann im Waschkeller endet. Was die Garderobe anbelangt bin ich mir auch noch recht unschlüssig. Ich kann natürlich noch etwas Platz dort und im Abstellraum gewinnen, wenn ich die Wand der Garage etwas nach rechts verschiebe. Da wird es wohl auf den größtmöglichen Kompromiss hinauslaufen...
vielen Dank für Deine Meinung! Was die Badplanung anbelangt ist das erstmal provisorisch. Da wird nochmal der Bad-Spezialist drüber schauen und eine vernünftige Planung abliefern. WS ist in der Tat der Wäscheschacht, der dann im Waschkeller endet. Was die Garderobe anbelangt bin ich mir auch noch recht unschlüssig. Ich kann natürlich noch etwas Platz dort und im Abstellraum gewinnen, wenn ich die Wand der Garage etwas nach rechts verschiebe. Da wird es wohl auf den größtmöglichen Kompromiss hinauslaufen...
Wohin führen die Treppen in den Kinderzimmern?
Ich finde die Garderobe zu klein und den Abstellraum finde ich seltsam, eine Hälfte ist immer durch die Tür versperrt, aber wenn man hinter der Tür nur Dinge lagert die man selten braucht sollte es gehen.
Ansonsten gefällt mir der Grundriss.
Ich finde die Garderobe zu klein und den Abstellraum finde ich seltsam, eine Hälfte ist immer durch die Tür versperrt, aber wenn man hinter der Tür nur Dinge lagert die man selten braucht sollte es gehen.
Ansonsten gefällt mir der Grundriss.
W
Wanderdüne11.09.14 21:55Ein interessanter Grundriss.
Im EG:
- ist die Garderobe viel zu klein
- sowohl Essen, als auch Kochen werden durch das weit vorstehende OG negativ beeinflusst, selbst bei sehr großzügiger Raumhöhe
- Wo soll Fernsehen / Heimkino im Wohnzimmer hin? Gegenübergesetzt zur Hauptfensterfläche ist nicht so schön.
OG:
- Der Zugang zum Schlafzimmer im Kopfbereich ist ungemütlich.
- Die Ankleide verträgt mehr natürliches Licht und eine Sitzgelegenheit
- Im OG fällt die meiste Wäsche an, eine Waschküche im Keller ist trotz Wäscheschacht eher etwas für Mehrfamilienhäuser oder bei Hauspersonal.
WD
Im EG:
- ist die Garderobe viel zu klein
- sowohl Essen, als auch Kochen werden durch das weit vorstehende OG negativ beeinflusst, selbst bei sehr großzügiger Raumhöhe
- Wo soll Fernsehen / Heimkino im Wohnzimmer hin? Gegenübergesetzt zur Hauptfensterfläche ist nicht so schön.
OG:
- Der Zugang zum Schlafzimmer im Kopfbereich ist ungemütlich.
- Die Ankleide verträgt mehr natürliches Licht und eine Sitzgelegenheit
- Im OG fällt die meiste Wäsche an, eine Waschküche im Keller ist trotz Wäscheschacht eher etwas für Mehrfamilienhäuser oder bei Hauspersonal.
WD
B
Bauexperte12.09.14 10:19Hallo WD,
Auch, wenn Du dieses Mal auf Dein Lieblingswort verzichtet hast, ist Deine Kommentierung imho etwas nachlässig ausgefallen. Da ich gerade etwas Zeit und Lust habe:
Grüße, Bauexperte
Wanderdüne schrieb:Eigene Threads finde ich auch nach Monaten nicht von Dir, dafür jede Menge Kommentaren zu Grundrissen von Usern. Es wäre hilfreich - sicher nicht nur für mich - wenn Du Dein Profil mal etwas "aufpolieren" würdest, so daß Deine Kommentare besser einzuordnen sind. Vielen Dank!
Ein interessanter Grundriss.
Auch, wenn Du dieses Mal auf Dein Lieblingswort verzichtet hast, ist Deine Kommentierung imho etwas nachlässig ausgefallen. Da ich gerade etwas Zeit und Lust habe:
Wanderdüne schrieb:Dies hoffentlich ein zeitlich beengter Kommentar? Wo bitte, soll denn die (verhältnismäßig) kleine und durch das darüber liegende Bad konstruierte Sitzecke Licht einbüßen? Nahezu das ganze EG wirkt - Richtung Garten - wie ein Glasbau mit dem gerade noch ausreichenden Muß an Wandstärken. Ich hätte eher von Dir erwartet, daß Du die Frage der Entwässerung des Bades OG thematisierst und zur Diskussion stellst. Ich wüßte jetzt nämlich nicht, wie diese realisiert werden soll; es sei denn, es ist eine innenliegende Entwässerung geplant, welche am Eckpfeiler der Überdachung Platz findet.
- sowohl Essen, als auch Kochen werden durch das weit vorstehende OG negativ beeinflusst, selbst bei sehr großzügiger Raumhöhe
Wanderdüne schrieb:Wenn hier etwas "ungemütlich" ist, dann, daß die Idee des in sich geschlossenen Elternbereichs nicht konsequent zu Ende gedacht ist.
- Der Zugang zum Schlafzimmer im Kopfbereich ist ungemütlich.
Wanderdüne schrieb:Sehe ich anders. Die Treppen in den Kinderzimmer bedeuten, daß keine Geschossdecke verbaut, der Blick in den First offen gestaltet ist. Insofern - der TE möge mich korrigieren - wird in der Ankleide sicherlich ein längeres Lichtband verbaut; wieso braucht es eine Sitzgelegenheit? Wenn hier etwas fehlt, dann der Abschluss Richtung Flur, um den Elternbereich komplett zu isolieren.
- Die Ankleide verträgt mehr natürliches Licht und eine Sitzgelegenheit
Wanderdüne schrieb:Und wird doch bei den meisten privaten BV so realisiert. Von Generation zu Generation weiter gegebene und damit stetig gepflegte Strukturen, lassen sich nicht von jetzt auf gleich über den Haufen werfen 😉
- Im OG fällt die meiste Wäsche an, eine Waschküche im Keller ist trotz Wäscheschacht eher etwas für Mehrfamilienhäuser oder bei Hauspersonal.
Grüße, Bauexperte
Ähnliche Themen