ᐅ Grundriss-Planung Einfamilienhaus ca. 170m² + DG als modernes Klinkerhaus
Erstellt am: 03.01.22 18:41
V
Varrader@SoL Ja, wir denken darüber nach. Königsdisziplin wäre was unauffälliges vom Flur aus, damit auch die Kids einfachen Zugang dazu haben. Aktuell haben wir sogar eine Wäscherutsche vom Badezimmer in den Hauswirtschaftsraum, nutzen wir allerdings gar nicht. Wir finden das unpraktisch, erst unten im Hauswirtschaftsraum die Wäsche zu sortieren. Wir sortieren im OG vor, haben dafür einfach ein 4er Kallax mit 4 Stoffschubern wo wir in Bunt-, Weiß- und Kochwäsche sortieren (und ein Bonusfach).
Ich hatte mir ja vorgenommen, auf unseren Architekten zu warten, aber das ist ja leichter gesagt als getan...
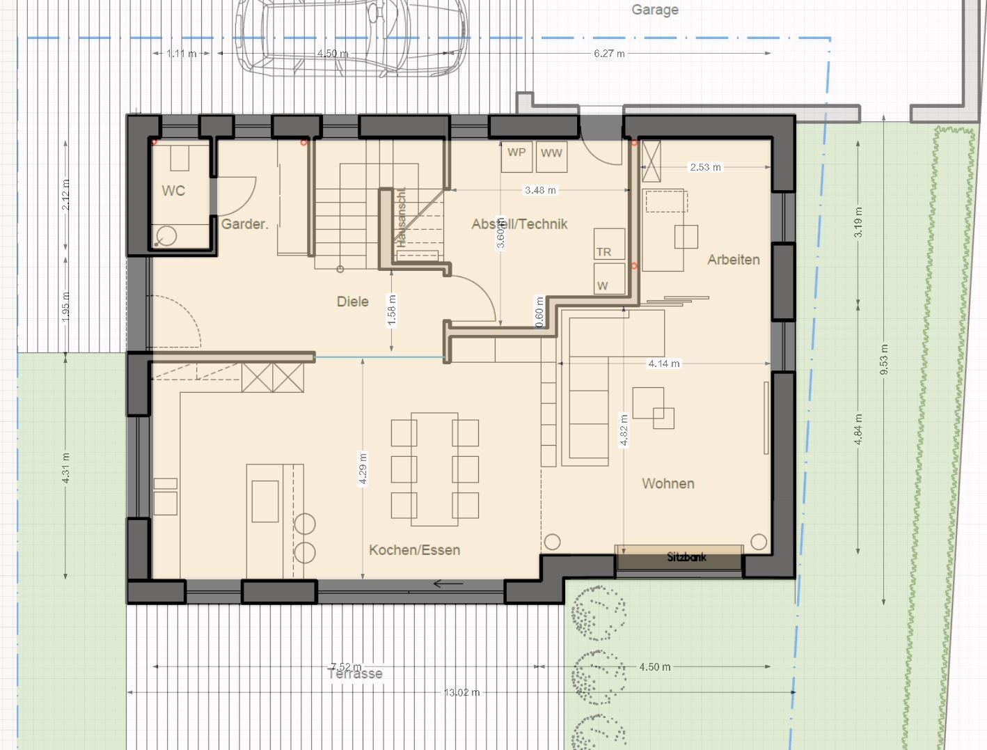
Die Nutzung des Raumes links neben der Treppe ist irgendwie trickreich. Für ein normales Zimmer zu klein, für das Kinderbadezimmer verschwenderisch groß. Die Treppe unten in der Variante ist jetzt schmaler und ein kleines Stück nach rechts gerückt (das EG würde das ja hergeben). Dann könnte man dort ein Kinderzimmer unterbringen.
Hier würde natürlich der Flur deutlich weniger offen wirken, das Fenster Richtung Westen ist passé. Vielleicht könnte man noch Licht über Oberlichter in den Badtüren bekommen.
Die Südlage des Schlafzimmers jetzt ist natürlich auch eher suboptimal, von der Lage hat ein Kinderzimmer sicherlich mehr. Der Platz im Elternbad ist jetzt natürlich fürstlich, hier könnte man sogar eine Sauna unterbringen.
Alternativ könnte man das Kinderbad nach rechts rücken, und dann den Flur nach Norden durchziehen bis zu einem Fenster.
(Nachtrag: Ja, ich weiß, der Entwurf vom OG vom Architekten sieht deutlich besser aus. Das kleine Elternbad fuchst mich jedoch nachhaltig. 😀)


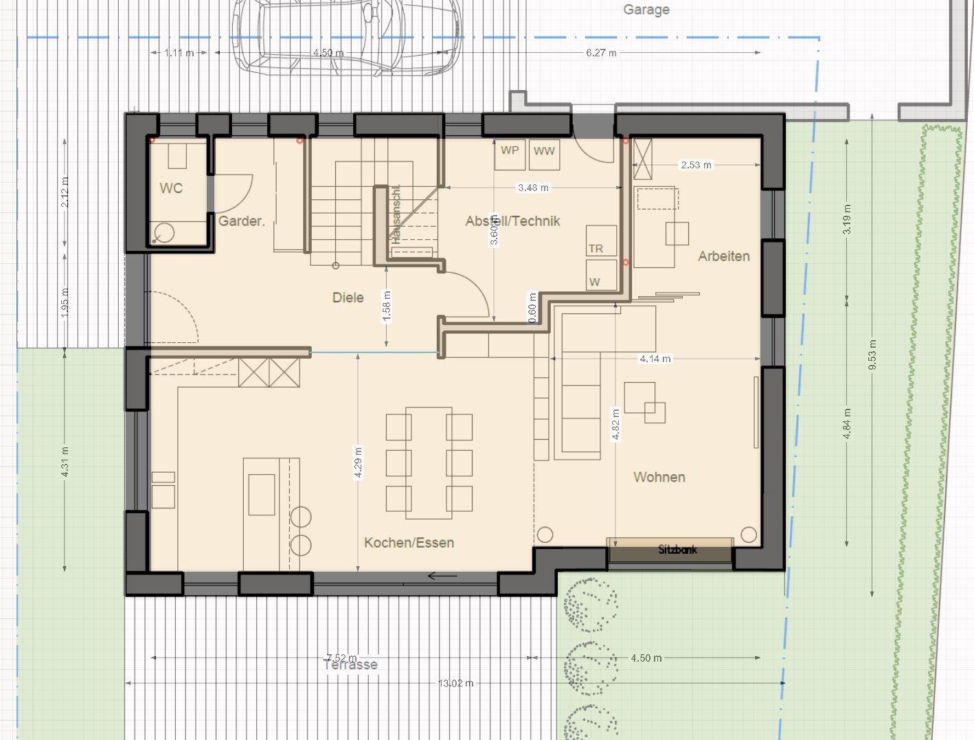
Die Nutzung des Raumes links neben der Treppe ist irgendwie trickreich. Für ein normales Zimmer zu klein, für das Kinderbadezimmer verschwenderisch groß. Die Treppe unten in der Variante ist jetzt schmaler und ein kleines Stück nach rechts gerückt (das EG würde das ja hergeben). Dann könnte man dort ein Kinderzimmer unterbringen.
Hier würde natürlich der Flur deutlich weniger offen wirken, das Fenster Richtung Westen ist passé. Vielleicht könnte man noch Licht über Oberlichter in den Badtüren bekommen.
Die Südlage des Schlafzimmers jetzt ist natürlich auch eher suboptimal, von der Lage hat ein Kinderzimmer sicherlich mehr. Der Platz im Elternbad ist jetzt natürlich fürstlich, hier könnte man sogar eine Sauna unterbringen.
Alternativ könnte man das Kinderbad nach rechts rücken, und dann den Flur nach Norden durchziehen bis zu einem Fenster.
(Nachtrag: Ja, ich weiß, der Entwurf vom OG vom Architekten sieht deutlich besser aus. Das kleine Elternbad fuchst mich jedoch nachhaltig. 😀)
M
Myrna_Loy04.02.22 11:20Varrader schrieb:
So, neuer Versuch vom Architekten.
Das "mega, so machen wir's" Gefühl stellt sich leider nicht ein.Und warum nicht? Was stört Euch?Spontan würde ich es so machen:
Ähnliche Themen