ᐅ Grundriss-Planung Einfamilienhaus ca. 170m² + DG als modernes Klinkerhaus
Erstellt am: 03.01.22 18:41
V
VarraderVarrader schrieb:
Wir sind uns von der Optik her einig, dass wir den Eingang von Vorne schöner finden, man kann halt einen kleinen schönen Weg mit Vorgarten zur Tür gestalten. Eingang von der Seite, schlimmstenfalls noch unter einem Carportdach sieht immer nach Lieferanteneingang aus.Meine Meinung ist das auch. Ich mag Eingänge, die sich dem Bewohner oder dem Besucher positionieren 😉Varrader schrieb:
Und ein Thema, was uns immer wieder umtreibt: Die meisten Grundrisse haben den Eingang auf der Traufseite, mit dem Vorteil, dass man das Haus in der Mitte betritt.Ja. Es hat schon Sinn, die Treppe mit dem Dach verlaufen zu lassen. Und eine Treppe neben/vor dem Eingang ist platztechnisch schon durchdacht. Alles andere ist meist mit mehr Qm umzusetzen, was sich aber nicht jeder leisten kann oder will. Die Typenhäuser sind meist alle so (Treppenansatz dann am Eingang)… erst die Anstattvillen oder „das sich leisten können“ von einem größeren Haus bietet die Möglichkeit, die Treppe dann gerade verlaufen zu lassen mit etwas Abstand zur Tür. Da, zur Minimierung der Hausgröße, werden wir auch wieder hinkommen, wenn das Bauen überlegter werden muss wegen der Baupreise und Energiekrise.Varrader schrieb:
Was uns oft auffällt: Podesttreppe gibts nirgends. Überall gewendelt oder gerade.Weil auch diese sehr teuer ist und noch mehr Platz beansprucht. Ich wette, dass viele, die Podest planen, sie nicht umsetzen werden.Meine persönliche Meinung hier: sie hat auch oft (nicht immer) den Charme von Treppenhäusern im Mehrfamilienhaus.
K a t j a schrieb:
Herzenswunsch einiger Bauherren welcher dann auf Biegen und Brechen umgesetzt wird.oder eben nicht… beim Podest… was die gerade Treppe kann: im Fluss ohne Störung gehen, dafür in voller Länge stürzen.im Gegensatz zum Podest: mit Störung im Gehfluss, dafür fällt man dann nur halb so lang.
Eine normal gewendelte, auch zweifach hat einen normalen Gehfluss… Fallen fast ausgeschlossen.
K a t j a schrieb:
Für den Otto-Normal-Bauherren würde ich immer empfehlen, erst den Grundriss zu erstellen und den Eingang daran anzupassen.würde ich pauschal nicht sagen. Otto Normal will oft Pinterest, also Mainstream, bezieht sich zumindest darauf und macht viele Fehler. Viele Otto Normal können aber auch nicht nur schauen, sondern auch räumlich denken und umsetzen.Und da fängt klugerweise die Planung mit dem Grundstück an.
Mittlerweile sind wir bzgl. Treppe auch eher auf dem Trip, dass und die Form egal ist. Wir haben mittlerweile von jeder Treppenform Ausführungen gesehen, die uns gut gefallen. Bei uns ist das wegen der Erschließung des DG aktuell die Podesttreppe, aber da gibt es hoffentlich noch eine kompaktere Lösung.
Sunhsine von Weberhaus (wurde hier ja auch im Thread relativ am Anfang genannt) hat ja einen Eingang auf der Firstseite, allerdings sind da die Wohnräume für uns falsch angeordnet. Wir möchten ja von Westen ins Haus, aber alle Wohnräume möglichst auf der Südseite haben.
PS: Arbeitszimmer wäre ein Kandidat, das aus dem EG zu streichen und ins DG zu verlegen. Das Arbeitszimmer im EG reicht aktuell "nur" für 2 schreibtische für Homeoffice, Hobbysachen hätten da keinen Platz und wären eh im DG. Würde sich also lohnen, hier einen "dual use" Raum im DG zu machen.
Sunhsine von Weberhaus (wurde hier ja auch im Thread relativ am Anfang genannt) hat ja einen Eingang auf der Firstseite, allerdings sind da die Wohnräume für uns falsch angeordnet. Wir möchten ja von Westen ins Haus, aber alle Wohnräume möglichst auf der Südseite haben.
PS: Arbeitszimmer wäre ein Kandidat, das aus dem EG zu streichen und ins DG zu verlegen. Das Arbeitszimmer im EG reicht aktuell "nur" für 2 schreibtische für Homeoffice, Hobbysachen hätten da keinen Platz und wären eh im DG. Würde sich also lohnen, hier einen "dual use" Raum im DG zu machen.
So, waren beim Architekten. Den aktuellen Grundriss verkleinern fand er nicht gut, er fängt also nochmal ein Stück weiter vorne an.
Das Thema Eingang von der Traufseite ist für uns irgendwie immer noch ein Thema, da wir uns der Einschränkungen beim Grundriss immer mehr bewusst werden. Auch würde ein Eingang auf unserer Nordseite bedeuten, dass unser Garten im Westen deutlich besser zu nutzen wäre.
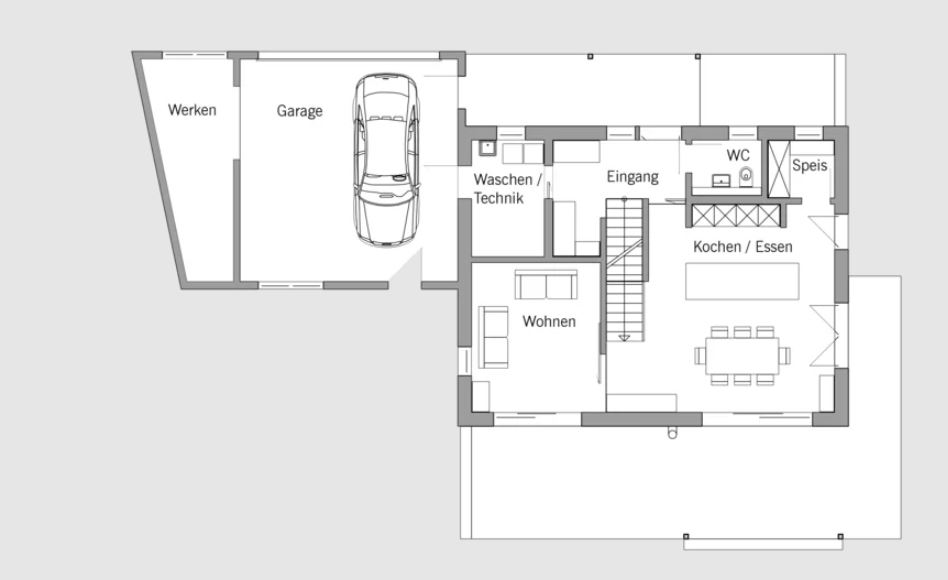
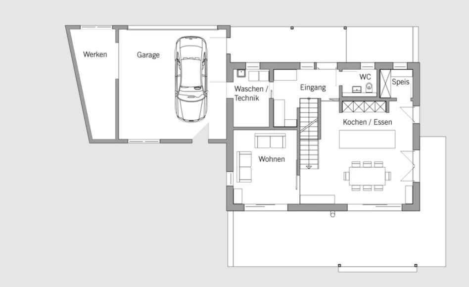
Anbei auch nochmal ein Grundriss (Baufritz Haus "Schneider") von einem EG, wo uns die Raumaufteilung wirklich gut gefällt (müsste man nur um die Längsachse spiegeln und Garage ist natürlich bei uns anders), insbesondere das Verhältnis zwischen Nutz- und Wohnraum ist hier gut. Und das bei Außenabmessungen 10,7x8,2m. Wenn man bedenkt, dass wir bislang 13x9m hatten (+0,5m Erker)...

Das Thema Eingang von der Traufseite ist für uns irgendwie immer noch ein Thema, da wir uns der Einschränkungen beim Grundriss immer mehr bewusst werden. Auch würde ein Eingang auf unserer Nordseite bedeuten, dass unser Garten im Westen deutlich besser zu nutzen wäre.
Anbei auch nochmal ein Grundriss (Baufritz Haus "Schneider") von einem EG, wo uns die Raumaufteilung wirklich gut gefällt (müsste man nur um die Längsachse spiegeln und Garage ist natürlich bei uns anders), insbesondere das Verhältnis zwischen Nutz- und Wohnraum ist hier gut. Und das bei Außenabmessungen 10,7x8,2m. Wenn man bedenkt, dass wir bislang 13x9m hatten (+0,5m Erker)...
Varrader schrieb:
Naja, wir haben ja eh planoben die Einfahrt.Ach…Varrader schrieb:
Oder wie meinst du das?Die Frage ist die, wie meinst Du das? Dort ist planlinks die Einfahrt!Ähnliche Themen