ᐅ Grundriss-Planung Einfamilienhaus ca. 170m² + DG als modernes Klinkerhaus
Erstellt am: 03.01.22 18:41
V
VarraderWürfel* schrieb:
[...] Garage nicht ums Eck, sondern vorziehen und bis zur Grundstücksgrenze rausziehen. Da hast du dann genauso viel Platz und das Arbeitszimmer kann ein großes Fenster bekommen.Wir müssen leider 1m Abstand zum Fußweg halten. Vielen Dank für deinen Input!
@Hangman: Haustür nach Westen hin ist für uns gesetzt. Kontrollierte-Wohnraumlüftung hat unser Architekt auch schon das DG als Aufstellort vorgeschlagen. Wir planen Photovoltaik so wie von dir angemerkt. Süden keine Fenster, volle Photovoltaik Bestückung, Dachfenster auf der Nordseite.
So, weiter gehts 🙂
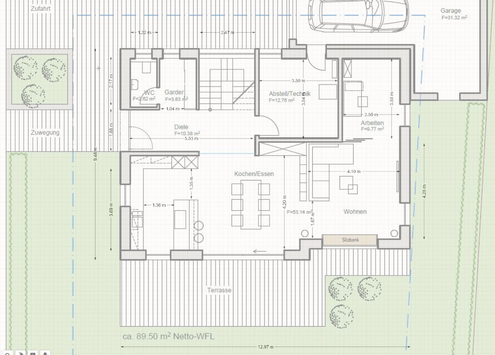
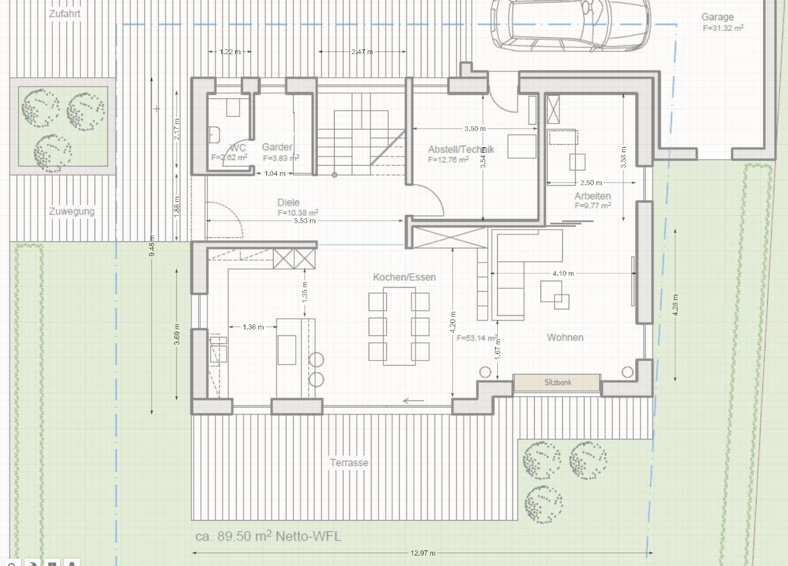
Unser Architekt hat sich unsere Variante mit einem dann notwendigen zweiten Treppenlauf im OG geprüft und (wie hier schon angemerkt) für nicht umsetzbar befunden.
Neuer Vorschlag für das EG liegt vor, die Podesttreppe ist jetzt einer... Podesttreppe mit Stufen im Podest gewichen (hier gibts sicherlich einen Fachbegriff für). Führt dazu, dass die Treppe nicht mehr so weit in den Flur ragt.
Besonders gefällt uns hier die Lösung mit der leicht versteckten Garderobe im Flur. Hier würden wir vermutlich das Gäste-WC ein wenig kleiner machen, damit der Flur an der Stelle breiter ist. Den Anschlag der Haustür würden wir glaube ich auch noch auf die andere Seite legen.
Der gedrehte Tisch im Essbereich ist zwar auf den ersten Blick nur ein gedrehter Tisch, aber für uns im Kopf erschließen sich so die möglichen Laufwege deutlich besser und es tut der Raumstruktur gut. So würde ich auch vermutlich das Sofaeck ein wenig nach links rücken, damit dort ein wenig mehr Großzügigkeit herrscht (gell @Würfel* 🙂 )
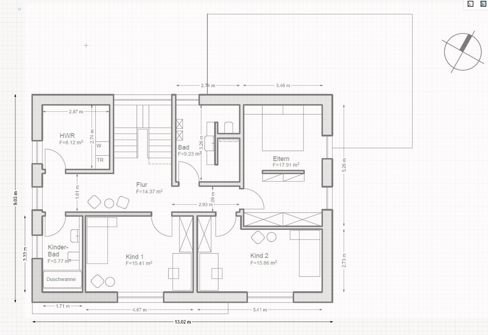
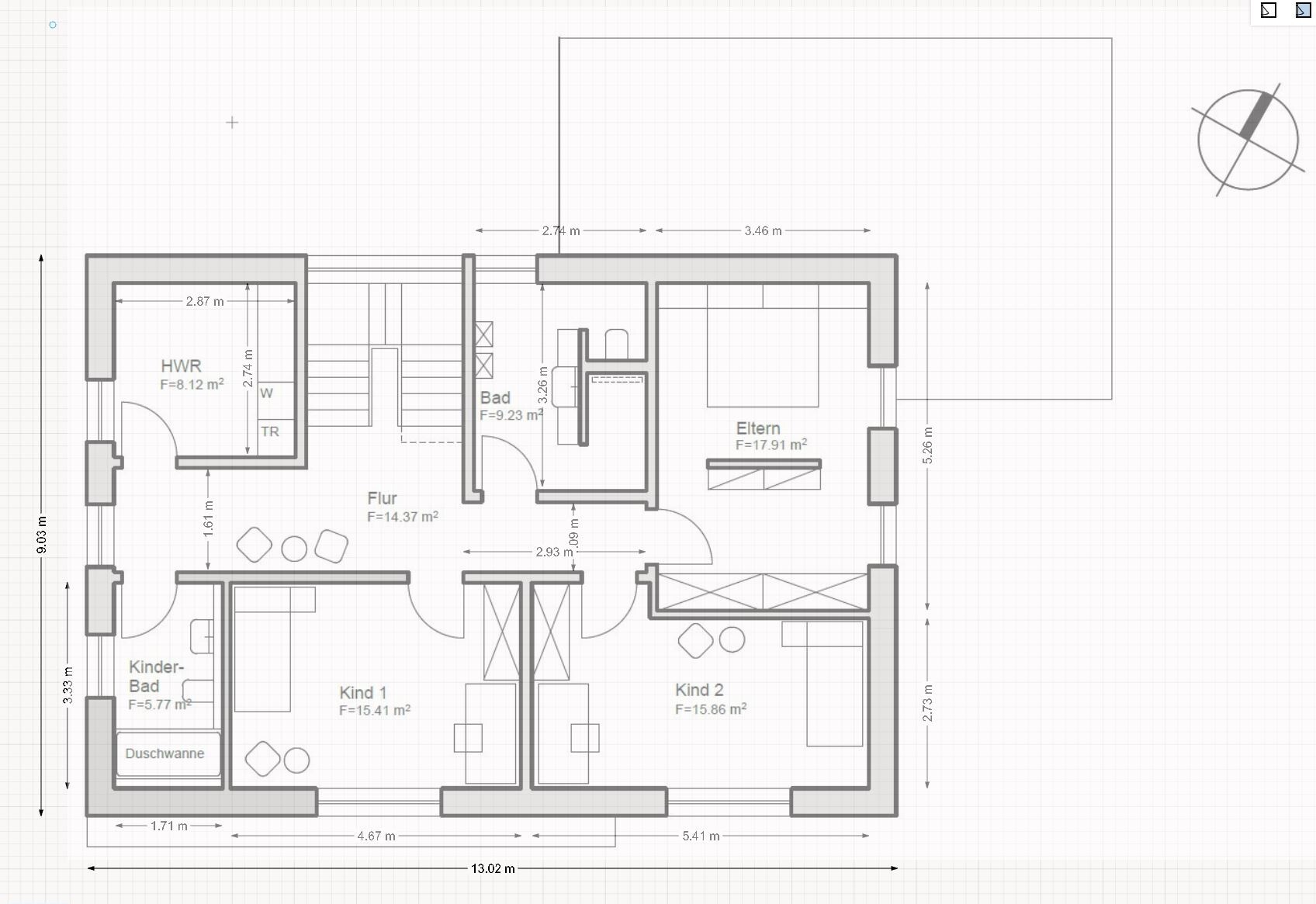
OG hat so immer noch einen recht großen Flur. Hauswirtschaftsraum ist gefühlt sehr groß, Elternbad fehlt die Badewanne. Die Situation im Elternschlafzimmer können wir uns so ganz gut vorstellen, ist allerdings für unser Gefühl schon luxuriös groß.
Wir glauben, dass wir wieder (in unseren Augen) einen guten Schritt weiter gekommen sind und freuen uns über eure Kritik.


Unser Architekt hat sich unsere Variante mit einem dann notwendigen zweiten Treppenlauf im OG geprüft und (wie hier schon angemerkt) für nicht umsetzbar befunden.
Neuer Vorschlag für das EG liegt vor, die Podesttreppe ist jetzt einer... Podesttreppe mit Stufen im Podest gewichen (hier gibts sicherlich einen Fachbegriff für). Führt dazu, dass die Treppe nicht mehr so weit in den Flur ragt.
Besonders gefällt uns hier die Lösung mit der leicht versteckten Garderobe im Flur. Hier würden wir vermutlich das Gäste-WC ein wenig kleiner machen, damit der Flur an der Stelle breiter ist. Den Anschlag der Haustür würden wir glaube ich auch noch auf die andere Seite legen.
Der gedrehte Tisch im Essbereich ist zwar auf den ersten Blick nur ein gedrehter Tisch, aber für uns im Kopf erschließen sich so die möglichen Laufwege deutlich besser und es tut der Raumstruktur gut. So würde ich auch vermutlich das Sofaeck ein wenig nach links rücken, damit dort ein wenig mehr Großzügigkeit herrscht (gell @Würfel* 🙂 )
OG hat so immer noch einen recht großen Flur. Hauswirtschaftsraum ist gefühlt sehr groß, Elternbad fehlt die Badewanne. Die Situation im Elternschlafzimmer können wir uns so ganz gut vorstellen, ist allerdings für unser Gefühl schon luxuriös groß.
Wir glauben, dass wir wieder (in unseren Augen) einen guten Schritt weiter gekommen sind und freuen uns über eure Kritik.
Varrader schrieb:
Der gedrehte Tisch im Essbereich ist zwar auf den ersten Blick nur ein gedrehter Tisch, aber für uns im Kopf erschließen sich so die möglichen Laufwege deutlich besser und es tut der Raumstruktur gut.Ist jetzt kein Riesending, aber ich würde das noch einmal überdenken - und dann auch die Lampenauslässe entsprechend planen. Wir hatten in zwei nahezu identisch großen Räumen beide Varianten über einen längeren Zeitraum, und Nr. 1 funktioniert allein deshalb deutlich besser, weil der Platz rundherum vorhanden ist, während er bei Nr. 2 an den Stirnseiten knapp wird, vor allem, wenn da jemand sitzt.Dann habt Ihr für das sofa gerade mal 2,60 Breite... ich finde das a) zu schmal und b) sehr ungemütlich. Man hat ja auch mal ganz gern neben dem Sofa eine Leselampe oder Tisch.
Dafür finde ich den Hauswirtschaftsraum unten zu gross, wenn man bedenkt, dass oben gewaschen wird.
Ich würde dem WZ mehr Raum geben, den Hauswirtschaftsraum schmälern und das Büro dann quer legen. Was ist denn das für ein eingezeichneter Schrank im Essbereich?
Oben finde ich sehr schön gelungen.
Dafür finde ich den Hauswirtschaftsraum unten zu gross, wenn man bedenkt, dass oben gewaschen wird.
Ich würde dem WZ mehr Raum geben, den Hauswirtschaftsraum schmälern und das Büro dann quer legen. Was ist denn das für ein eingezeichneter Schrank im Essbereich?
Oben finde ich sehr schön gelungen.
Ähnliche Themen