ᐅ Grundriss-Planung Einfamilienhaus ca. 170m² + DG als modernes Klinkerhaus
Erstellt am: 03.01.22 18:41
V
VarraderGuten Abend,
als bislang stille Mitleser sind wir (junge Familie mit 2 Kindern) nun aktuell selber langsam in der Situation, hier um Hilfestellung, Kritik bzw. Ideen zu bitten.
Wir möchten Anfang 2023 ein Einfamilienhaus bauen und sind schon einige Zeit mit einen Architekten in der Planung (bislang Leistungsphase 1-4 beauftragt).
Hier der nach bestem Wissen ausgefüllte Forenfragekatalog
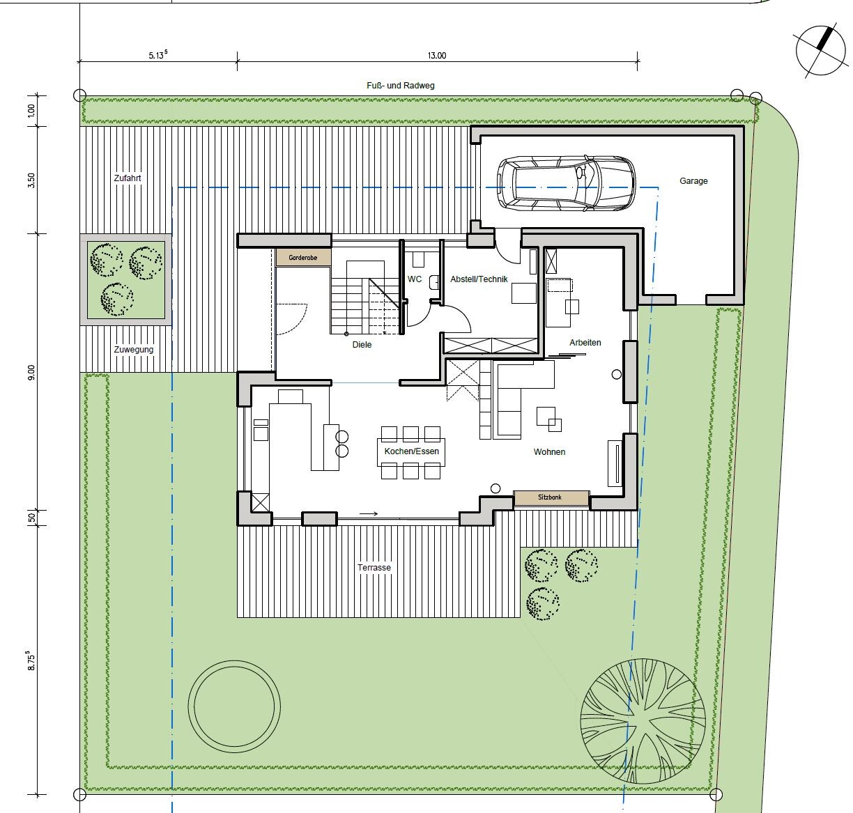
Bebauungsplan/Einschränkungen
Größe des Grundstücks: 560m², Sackgassenendlage, auf der Westseite wird es Stellplätze geben, Ostseite einen breiten Fußweg, danach Feld (wird vermutlich in 10-15 Jahren Bauland werden)
Hang: nein
Grundflächenzahl: 0,4
Geschossflächenzahl: 0,8
Baufenster, Baulinie und -grenze: 3m umlaufend
Randbebauung: nein
Anzahl Stellplatz: 2
Geschossigkeit: 2 vollgeschosse + Dachboden
Dachform: Satteldach
Stilrichtung: Moderner Klinkerbau mit schlichtem Baukörper, keine Dachüberstände
Ausrichtung: Ost-West
Maximale Höhen/Begrenzungen: TH 6,5m, FH 10m
weitere Vorgaben: Hecke an linker Seite auf 1m Höhe begrenzt, Abstand erster Stellplatz bis Straße mind. 5m
Räume:
EG: Wohn/Essbereich mit Wohnküche, Arbeits"ecke", Technik-/Abstellraum, Gäste-WC
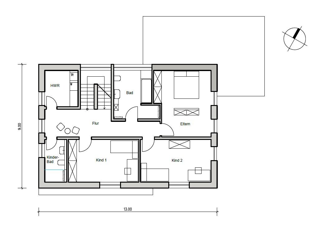
OG: 2 Kinderzimmer, Elternschlafzimmer (gerne mit abgeteiltem Schrankbereich, Ausrichtung des Raumes soll auf der Ostseite des Hauses sein!), Elternbadezimmer mit Dusche und Badewanne, Kinderbadezimmer mit Dusche, kleiner Hauswirtschaftsraum für Waschmaschine und Wäscheständer.
DG: Kinderzimmer Nr. 3, Abstellraum, Hobby-/Arbeitszimmer
Anforderungen der Bauherren
Stilrichtung, Dachform, Gebäudetyp: Einfamilienhaus mit Satteldach
Keller, Geschosse: kein Keller, zwei Vollgeschosse, Dachboden soll als Wohnraum genutzt werden
Anzahl der Personen, Alter: 2 Erwachsene, 2 Kinder (2&4 Jahre alt, ein weiteres Kind in Planung)
Raumbedarf im EG, OG
Büro: Familiennutzung oder Homeoffice? Homeoffice Platz im EG "in der Nähe vom geschehen", weiterer zurückgezogener Platz auf dem Dachboden
Schlafgäste pro Jahr: nicht vorgesehen
offene oder geschlossene Architektur: Offener Wohn-/Essbereich
konservativ oder moderne Bauweise: Moderne Bauweise
offene Küche, Kochinsel: Offene Küche, Kochinsel optional
Anzahl Essplätze: 6-8
Kamin: nein
Musik/Stereowand: Platz für großflächigen TV (wir rechnen mit ca. 1,9m Breite, weiteres Equipment wie Lautsprecher nicht vorgesehen)
Balkon, Dachterrasse: nein
Garage, Carport: Garage mit einem Stellplatz sowie Abstellmöglichkeiten von Gartengeräten/Werkzeugen in der Garage
Nutzgarten, Treibhaus: Ziergarten
weitere Wünsche/Besonderheiten/Tagesablauf, gern auch Begründungen, warum dieses oder das nicht sein soll: Wir haben derzeit sehr kleine Fenster (Fachwerkhaus) und wünschen uns insbesondere mehr Licht im Haus sowie schöne Sichtachsen in unseren Garten
Hausentwurf
Von wem stammt die Planung:
-Architekt
Was gefällt besonders? Warum?
Anordnung der südlichen Räume im EG sowie das kleine Arbeitszimmer, welches sich eher dem Wohnraum zugehörig fühlen kann bei geöffneter Tür.
Schön finden wir auch, dass die Treppe im EG in Richtung der Wohnräume zeigt und nicht zur Haustür.
Was gefällt nicht? Warum?
Wir möchten möglichst viel von unserem Garten und daher war unser grundlegender Wunsch, ein schmales, aber dafür langes Haus zu bauen. In diesem Konzept ist die aktuell gewählte Podesttreppe allerdings sehr mächtig und sicherlich erschlagend im Flurbereich.
Praktisch ist natürlich, dass diese Treppe direkt auch die Erschließung des Dachbodens mit dem gleichen Treppenlauf ermöglicht.
Preisschätzung lt Architekt/Planer: 500.000€
Persönliches Preislimit fürs Haus, inkl Ausstattung: 550.000€
favorisierte Heiztechnik: Erdwärmepumpe
Wenn Ihr verzichten müsst, auf welche Details/Ausbauten
-könnt Ihr verzichten:
-könnt Ihr nicht verzichten:
Warum ist der Entwurf so geworden, wie er jetzt ist? ZB
Entsprechende/Welche Wünsche wurden vom Architekten umgesetzt: Raumplan mit dem Architekten besprochen
Ein Gemisch aus vielen Beispielen aus div. Magazinen...
Was macht ihn in Euren Augen besonders gut oder schlecht?
Wir sind besorgt, eine gute Idee zu übersehen, uns fehlt teilweise einfach der kreative Input um Lösungen zu finden, die auch mal um die Ecke gedacht sind.
Was ist die wichtigste/grundlegende Frage zum Grundriss in 130 Zeichen zusammengefasst?
Anordnung der Treppe und Raumgefühl beim betreten des Hauses treiben uns derzeit um. Mit der Treppe steht und fällt auch jedes Konzept im OG.
Einen alternativen EG Grundriss habe ich noch angehängt, wo wir mit einer L-förmigen Treppe das Obergeschoss erreichen wollen. Dies führt jedoch dazu, dass ein zweiter Treppenlauf notwendig wird, um das Dachgeschoss zu erschließen, was natürlich auch wieder Platz kostet...
Wir freuen uns auf Eure Kritik und Vorschläge!
Viele Grüße
Stefan








als bislang stille Mitleser sind wir (junge Familie mit 2 Kindern) nun aktuell selber langsam in der Situation, hier um Hilfestellung, Kritik bzw. Ideen zu bitten.
Wir möchten Anfang 2023 ein Einfamilienhaus bauen und sind schon einige Zeit mit einen Architekten in der Planung (bislang Leistungsphase 1-4 beauftragt).
Hier der nach bestem Wissen ausgefüllte Forenfragekatalog
Bebauungsplan/Einschränkungen
Größe des Grundstücks: 560m², Sackgassenendlage, auf der Westseite wird es Stellplätze geben, Ostseite einen breiten Fußweg, danach Feld (wird vermutlich in 10-15 Jahren Bauland werden)
Hang: nein
Grundflächenzahl: 0,4
Geschossflächenzahl: 0,8
Baufenster, Baulinie und -grenze: 3m umlaufend
Randbebauung: nein
Anzahl Stellplatz: 2
Geschossigkeit: 2 vollgeschosse + Dachboden
Dachform: Satteldach
Stilrichtung: Moderner Klinkerbau mit schlichtem Baukörper, keine Dachüberstände
Ausrichtung: Ost-West
Maximale Höhen/Begrenzungen: TH 6,5m, FH 10m
weitere Vorgaben: Hecke an linker Seite auf 1m Höhe begrenzt, Abstand erster Stellplatz bis Straße mind. 5m
Räume:
EG: Wohn/Essbereich mit Wohnküche, Arbeits"ecke", Technik-/Abstellraum, Gäste-WC
OG: 2 Kinderzimmer, Elternschlafzimmer (gerne mit abgeteiltem Schrankbereich, Ausrichtung des Raumes soll auf der Ostseite des Hauses sein!), Elternbadezimmer mit Dusche und Badewanne, Kinderbadezimmer mit Dusche, kleiner Hauswirtschaftsraum für Waschmaschine und Wäscheständer.
DG: Kinderzimmer Nr. 3, Abstellraum, Hobby-/Arbeitszimmer
Anforderungen der Bauherren
Stilrichtung, Dachform, Gebäudetyp: Einfamilienhaus mit Satteldach
Keller, Geschosse: kein Keller, zwei Vollgeschosse, Dachboden soll als Wohnraum genutzt werden
Anzahl der Personen, Alter: 2 Erwachsene, 2 Kinder (2&4 Jahre alt, ein weiteres Kind in Planung)
Raumbedarf im EG, OG
Büro: Familiennutzung oder Homeoffice? Homeoffice Platz im EG "in der Nähe vom geschehen", weiterer zurückgezogener Platz auf dem Dachboden
Schlafgäste pro Jahr: nicht vorgesehen
offene oder geschlossene Architektur: Offener Wohn-/Essbereich
konservativ oder moderne Bauweise: Moderne Bauweise
offene Küche, Kochinsel: Offene Küche, Kochinsel optional
Anzahl Essplätze: 6-8
Kamin: nein
Musik/Stereowand: Platz für großflächigen TV (wir rechnen mit ca. 1,9m Breite, weiteres Equipment wie Lautsprecher nicht vorgesehen)
Balkon, Dachterrasse: nein
Garage, Carport: Garage mit einem Stellplatz sowie Abstellmöglichkeiten von Gartengeräten/Werkzeugen in der Garage
Nutzgarten, Treibhaus: Ziergarten
weitere Wünsche/Besonderheiten/Tagesablauf, gern auch Begründungen, warum dieses oder das nicht sein soll: Wir haben derzeit sehr kleine Fenster (Fachwerkhaus) und wünschen uns insbesondere mehr Licht im Haus sowie schöne Sichtachsen in unseren Garten
Hausentwurf
Von wem stammt die Planung:
-Architekt
Was gefällt besonders? Warum?
Anordnung der südlichen Räume im EG sowie das kleine Arbeitszimmer, welches sich eher dem Wohnraum zugehörig fühlen kann bei geöffneter Tür.
Schön finden wir auch, dass die Treppe im EG in Richtung der Wohnräume zeigt und nicht zur Haustür.
Was gefällt nicht? Warum?
Wir möchten möglichst viel von unserem Garten und daher war unser grundlegender Wunsch, ein schmales, aber dafür langes Haus zu bauen. In diesem Konzept ist die aktuell gewählte Podesttreppe allerdings sehr mächtig und sicherlich erschlagend im Flurbereich.
Praktisch ist natürlich, dass diese Treppe direkt auch die Erschließung des Dachbodens mit dem gleichen Treppenlauf ermöglicht.
Preisschätzung lt Architekt/Planer: 500.000€
Persönliches Preislimit fürs Haus, inkl Ausstattung: 550.000€
favorisierte Heiztechnik: Erdwärmepumpe
Wenn Ihr verzichten müsst, auf welche Details/Ausbauten
-könnt Ihr verzichten:
-könnt Ihr nicht verzichten:
Warum ist der Entwurf so geworden, wie er jetzt ist? ZB
Entsprechende/Welche Wünsche wurden vom Architekten umgesetzt: Raumplan mit dem Architekten besprochen
Ein Gemisch aus vielen Beispielen aus div. Magazinen...
Was macht ihn in Euren Augen besonders gut oder schlecht?
Wir sind besorgt, eine gute Idee zu übersehen, uns fehlt teilweise einfach der kreative Input um Lösungen zu finden, die auch mal um die Ecke gedacht sind.
Was ist die wichtigste/grundlegende Frage zum Grundriss in 130 Zeichen zusammengefasst?
Anordnung der Treppe und Raumgefühl beim betreten des Hauses treiben uns derzeit um. Mit der Treppe steht und fällt auch jedes Konzept im OG.
Einen alternativen EG Grundriss habe ich noch angehängt, wo wir mit einer L-förmigen Treppe das Obergeschoss erreichen wollen. Dies führt jedoch dazu, dass ein zweiter Treppenlauf notwendig wird, um das Dachgeschoss zu erschließen, was natürlich auch wieder Platz kostet...
Wir freuen uns auf Eure Kritik und Vorschläge!
Viele Grüße
Stefan
Hmm.. zu Anfang: ich frag mich, wozu die Seitenansicht gehört. Die Fenster stimmen nicht überein.
jetzt zu Beginn: ich habe Probleme mit fehlenden Maßen. Grundsätzlich ist ja vieles stimmig, aber einiges auch nicht. Und da sind Maße sehr wichtig, da es auch auf einen Neuentwurf hinauflaufen könnte. Kannst Du da etwas nachreichen?
EG gefällt mir ganz gut, auch das Konzept selbst. Auch den Stil mag ich.
Aber mir fehlt
- für 5 Personen eine ordentliche Garderobe mit genug Flächen für Taschen, Schuhe und Jacken. Man rechnet mind. mit 60 laufende Cm pro Kopf. Euch wird es passieren, dass die Essstühle herhalten und der Esstisch sowieso. Es gibt ja sonst nichts. Der Technikraum ist zu weit weg.
- im Schlafzimmer: eine ordentliche Schrankfläche. Da ist ja gerade mal für 2,40? Länge Platz. Wo wird denn die Bettwäsche, Handtücher ezc gelagert? Die Fläche vorm Bett ist über und dafür erstmal nicht zu gebrauchen. Man könnte die Dusche drehen, damit die nicht im Schlafzimmer Stellfläche nimmt. Damit ist aber das Problem nicht gelöst, dass vorm Bett viel Fläche ist, die woanders fehlt.
- Spannung in der Fassade: es ist ja nicht nur die Symmetrie, auch immer und ewig die gleichen Fenster… da sollte man mal etwas mit einem Fenster auf jeder Seite spielen, zb das Hauswirtschaftsraum-Fenster liegend statt hoch oder eben mit Brüstung. Gleiches gilt auf der anderen Fassadenseite und der Traufseite. wenn Ihr das ähnlich seht, würde ich an Eurer Stelle den Architekt mal ansprechen, ob er da mal etwas dezenten Pep einbringen kann.
Von Deiner eigenen Idee halte ich nichts: das OG ist nichts.
jetzt zu Beginn: ich habe Probleme mit fehlenden Maßen. Grundsätzlich ist ja vieles stimmig, aber einiges auch nicht. Und da sind Maße sehr wichtig, da es auch auf einen Neuentwurf hinauflaufen könnte. Kannst Du da etwas nachreichen?
EG gefällt mir ganz gut, auch das Konzept selbst. Auch den Stil mag ich.
Aber mir fehlt
- für 5 Personen eine ordentliche Garderobe mit genug Flächen für Taschen, Schuhe und Jacken. Man rechnet mind. mit 60 laufende Cm pro Kopf. Euch wird es passieren, dass die Essstühle herhalten und der Esstisch sowieso. Es gibt ja sonst nichts. Der Technikraum ist zu weit weg.
- im Schlafzimmer: eine ordentliche Schrankfläche. Da ist ja gerade mal für 2,40? Länge Platz. Wo wird denn die Bettwäsche, Handtücher ezc gelagert? Die Fläche vorm Bett ist über und dafür erstmal nicht zu gebrauchen. Man könnte die Dusche drehen, damit die nicht im Schlafzimmer Stellfläche nimmt. Damit ist aber das Problem nicht gelöst, dass vorm Bett viel Fläche ist, die woanders fehlt.
- Spannung in der Fassade: es ist ja nicht nur die Symmetrie, auch immer und ewig die gleichen Fenster… da sollte man mal etwas mit einem Fenster auf jeder Seite spielen, zb das Hauswirtschaftsraum-Fenster liegend statt hoch oder eben mit Brüstung. Gleiches gilt auf der anderen Fassadenseite und der Traufseite. wenn Ihr das ähnlich seht, würde ich an Eurer Stelle den Architekt mal ansprechen, ob er da mal etwas dezenten Pep einbringen kann.
Von Deiner eigenen Idee halte ich nichts: das OG ist nichts.
Danke für deine Antwort.
Die Seitenansicht ist eine leicht veraltete Version (was ich vergessen habe zu erwähnen), hier geht es mir vor allem darum, den allgemeinen Baustil welchen wir uns vorstellen zu zeigen. Letztlich wäre in dieser Ansicht unten links das große Fenster, rechts das Sitzfenster in Richtung Garten.
Deinen Einwand bzgl. Fassade und die Wirkung der Fenster teilen wir, sehen das jedoch gerade eher als nachgeschaltete Baustelle.
Bzgl. Garderobe, wir denken daran, den Eingangsbereich nicht einzurücken, dadurch würde der Flur und somit auch der garderobenschrank deutlich breiter werden (siehe Anhang mit dem EG mit Maßen, da hatte ich das mal mit umgesetzt).
Seltener genutzte Jacken und Schuhe sehen wir in einem weiteren Schrank im Abstell-/Technikraum. Weiter vorne am Eingang ist ein Technikraum sicherlich besser nutzbar hierfür, allerdings fehlt mir da die Fantasie, wie das sinnvoll untergebracht werden könnte 🙂
Das Schlafzimmer ist in der Tat so eher mittelmäßig sinnvoll genutzt bzgl. Schrankaufstellung.
Viele Grüße


Die Seitenansicht ist eine leicht veraltete Version (was ich vergessen habe zu erwähnen), hier geht es mir vor allem darum, den allgemeinen Baustil welchen wir uns vorstellen zu zeigen. Letztlich wäre in dieser Ansicht unten links das große Fenster, rechts das Sitzfenster in Richtung Garten.
Deinen Einwand bzgl. Fassade und die Wirkung der Fenster teilen wir, sehen das jedoch gerade eher als nachgeschaltete Baustelle.
Bzgl. Garderobe, wir denken daran, den Eingangsbereich nicht einzurücken, dadurch würde der Flur und somit auch der garderobenschrank deutlich breiter werden (siehe Anhang mit dem EG mit Maßen, da hatte ich das mal mit umgesetzt).
Seltener genutzte Jacken und Schuhe sehen wir in einem weiteren Schrank im Abstell-/Technikraum. Weiter vorne am Eingang ist ein Technikraum sicherlich besser nutzbar hierfür, allerdings fehlt mir da die Fantasie, wie das sinnvoll untergebracht werden könnte 🙂
Das Schlafzimmer ist in der Tat so eher mittelmäßig sinnvoll genutzt bzgl. Schrankaufstellung.
Viele Grüße
Nachtrag, da ich leider meinen Beitrag nicht mehr bearbeiten kann:
Ich habe in meinem rudimentären Planungstool leider keine guten Möglichkeiten Maße zu setzen (ich kann scheinbar nur Maße an einer Stelle erzeugen, diese dann aber nicht verschieben...), ich denke die meisten relevanten Maße sollten jetzt da sein.
Teilst du denn nicht unsere Sorgen bzgl. der Treppe beim Entwurf vom Architekten im EG? Ich habe da echte Sorgen, dass man gefühlt immer über die untere Stufe stolpert wenn man von der Haustür in den Wohnbereich läuft. Im Anhang übrigens noch ein Bild, wie wir uns diese Treppe vorstellen würden. Wir würden ja quasi seitlich auf diese Treppe vom Eingang her zulaufen (ich habe die Situation mal im 3D einigermaßen dargestellt).
Danke für deine ernüchternde und ehrliche Einschätzung bzgl. des eigenen OG Entwurfes. Ist deine Einschätzung für das EG die selbe (für sich gesehen), oder siehst du dann einfach das Gesamtpaket als unzureichend.
Viele Grüße


Ich habe in meinem rudimentären Planungstool leider keine guten Möglichkeiten Maße zu setzen (ich kann scheinbar nur Maße an einer Stelle erzeugen, diese dann aber nicht verschieben...), ich denke die meisten relevanten Maße sollten jetzt da sein.
Teilst du denn nicht unsere Sorgen bzgl. der Treppe beim Entwurf vom Architekten im EG? Ich habe da echte Sorgen, dass man gefühlt immer über die untere Stufe stolpert wenn man von der Haustür in den Wohnbereich läuft. Im Anhang übrigens noch ein Bild, wie wir uns diese Treppe vorstellen würden. Wir würden ja quasi seitlich auf diese Treppe vom Eingang her zulaufen (ich habe die Situation mal im 3D einigermaßen dargestellt).
Danke für deine ernüchternde und ehrliche Einschätzung bzgl. des eigenen OG Entwurfes. Ist deine Einschätzung für das EG die selbe (für sich gesehen), oder siehst du dann einfach das Gesamtpaket als unzureichend.
Viele Grüße
M
Myrna_Loy03.01.22 21:49Ich würde in die Treppenwange Regalfächer einbauen lassen. Also nicht komplett, aber ein größeres oder zwei, drei einzelne, um die Fläche zu brechen. Und dann eine schöne Schale, Skulptur oder ein Fossil oder sowas hineinstellen. Dann hat man einen Grund, hinzuschauen.
Varrader schrieb:
Teilst du denn nicht unsere Sorgen bzgl. der Treppe beim Entwurf vom Architekten im EG?Ich persönlich nicht. Ich falle auch in keine Badewanne, nur weil sie im Bad steht. Und auch Kinder können lernen, Hürden zu meistern und nicht immer zu laufen. Wenn Du damit ein Problem siehst, dann ändere die Laufrichtung. Das wäre eine Option, auch für den Nutzen unter der Treppe. Wie @Myrna_Loy schon sagt: Schränke. Ich persönlich mag das klobige unter einer Treppe nicht so. weiß auch nicht, wie man das mit dem Stufendesign kombiniert.Varrader schrieb:
Ist deine Einschätzung für das EG die selbe (für sich gesehen), oder siehst du dann einfach das Gesamtpaket als unzureichend.In Gänze. Direkte Blickachse Toi zum Essbereich, Küche, die keine mehr ist…Nimm doch im Eingang nur die Hälfte überdacht, die obere Ecke im Plan über 1,50 oder so mit zum Haus als Garderobenschrank.
Ähnliche Themen