Liebes Forum
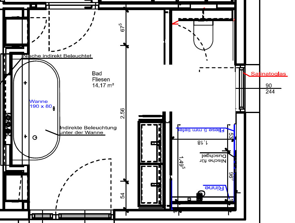
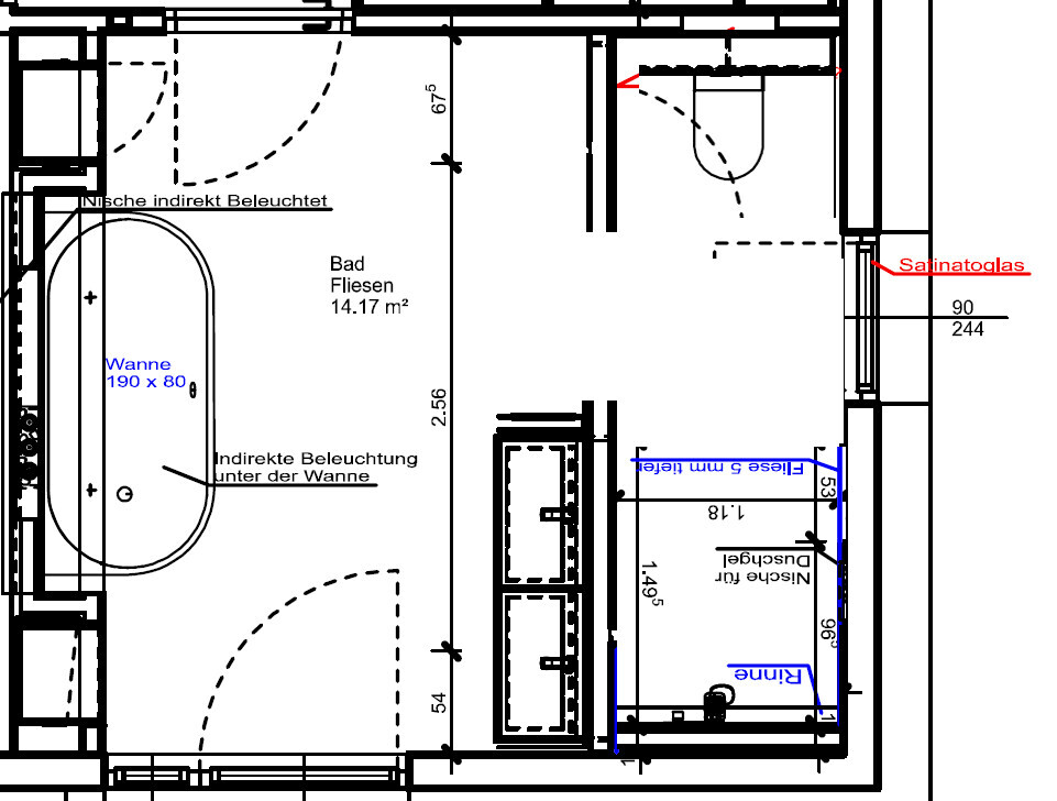
wir haben gerade eine neue Wohnung gekauft, die sich im Neubau befindet. Leider finden wir irgendwie nicht den perfekten Grundriss im Bad. Wir haben aktuell das Gefühl, dass wir eigentlich zentral zu viel Platz haben und dafür eine kleine Dusche.
Fällt euch etwas ein? Das Fenster auf der rechten Seite sowie die Balkontüre und die Eingangstüre sind fix (Fenster jedenfalls, bei den Türen minimaler Spielraum) - der Rest ist noch frei planbar.
Danke für eure Ideen!!
Schöne Grüße
Stefan
wir haben gerade eine neue Wohnung gekauft, die sich im Neubau befindet. Leider finden wir irgendwie nicht den perfekten Grundriss im Bad. Wir haben aktuell das Gefühl, dass wir eigentlich zentral zu viel Platz haben und dafür eine kleine Dusche.
Fällt euch etwas ein? Das Fenster auf der rechten Seite sowie die Balkontüre und die Eingangstüre sind fix (Fenster jedenfalls, bei den Türen minimaler Spielraum) - der Rest ist noch frei planbar.
Danke für eure Ideen!!
Schöne Grüße
Stefan
J
Justifier07.11.21 23:32Leider nicht so einfach. Das Fenster ist raumhoch (leider so vom Bauträger vorgegeben und kann auch nicht geändert werden). Es wird aber natürlich im unteren Teil, der nicht zu öffnen ist, blickdicht ausgeführt. Aber kann da natürlich nicht einfach einen Vorbau ins Fenster reinbauen.
M
motorradsilke08.11.21 05:17Justifier schrieb:
Leider nicht so einfach. Das Fenster ist raumhoch (leider so vom Bauträger vorgegeben und kann auch nicht geändert werden). Es wird aber natürlich im unteren Teil, der nicht zu öffnen ist, blickdicht ausgeführt. Aber kann da natürlich nicht einfach einen Vorbau ins Fenster reinbauen.Könntest du trotzdem, wenn das Fenster eh nicht zu öffnen ist. Das Vorwandelement ist ja nur ca. 70 cm breit, das braucht ja nicht die gesamte Breite.
Ansonsten würde ich vermutlich die beiden Waschbecken ganz an die obere Kante der Toiwand setzen, notfalls etwas kleiner machen und die Dusche unten quer.
Ich würde mich nicht wohlfühlen, wenn ich direkt neben dem Klo ein Fenster hätte. Wir haben satiniertes Glas und man sieht trotzdem die Person dahinter - wenn auch nur als Schemen. Wir haben 70 cm Durchgang im T-Bad, das ist für mich Minimum. 53 cm ist zu wenig. 2 Alternativen, bei denen du weder direkt vor dem Fenster Duschen noch p.../k.... musst, hier (bei Version 1 würde die WC Wand auch halbhoch reichen):


Terrassentür andersherum anschlagen!
Terrassentür andersherum anschlagen!
S
Strahleman08.11.21 13:11Wie schon öfter erwähnt, macht ihr euch mit den 53cm Durchgang eure schöne, große Dusche kaputt. Wir haben eine Dusche in sehr identischer Größe und sie ist super, lebt aber auch vom großzügigen Eingang. Bei euch könnte sie zu einem Kabuff verkommen. Die erste Idee von @Würfel* findet ich absolut super: großzügiger Zugang zur Dusche und Toilette ist optisch auch aus dem Bad abgetrennt. Einziger Nachteil wäre für mich, dass ich durch das gesamte Bad latschen muss, um mir mal die Hände zu waschen. Evtl. könnte man ja noch die Position der Toilette mit dem des Waschbeckens tauschen?
Strahleman schrieb:
Einziger Nachteil wäre für mich, dass ich durch das gesamte Bad latschen muss, um mir mal die Hände zu waschen.Ist ja kein Tanzsaal 😉Ich finde Variante 2 sehr schön und auch passend zur Wannenseite 🙂
Ähnliche Themen