Hausbau - Ratgeber
Bauherrenhilfe
- Bauherrenhilfe vor Vertragsabschluss
-- Warum einen unabhängigen Baubetreuer?
-- Vertragsgrundlagen
-- Bausumme
-- Zahlungsplan zur Kostenkontrolle
-- Pflichten des Bauherren vor Vertragsabschluss
-- Unterlagen beim Hausbau vor Vertragsabschluss
- Bauherrenhilfe nach Vertragsabschluss
-- Bauantrag bei Behörden
-- Bau-Genehmigungsverfahren bei Baubehörden
-- Bauspezifische Versicherungen
-- Bauzeitenplan
-- Baubeginn - die Letzten Pflichten der Bauherrschaft
- Bauherrenhilfe während der Bauzeit
- Gewährleistungsansprüche
- Bauabnahme
Baufinanzierung
- Baufinanzierung - Allgemeine Fragen
- Kreditarten
- Kredit-Konditionen
- Bausparen
- Staatliche Förderungen
- Verkehrswert
- Haushaltsrechnung und Bonität
Hausbau Planung
- Haustypen
- Hausbau Vorbereitungsarbeiten
- Das Baugrundstück
- Baugrund beim Hausbau
- Baurecht
- Gebäudeschutz
- Erdarbeiten und Wasserhaltung
- Stützmauern
- Einfriedung
- Untergeschoss
- Kanalisation
- Tragende Elemente
- Nichttragende Innenwände
- Fundation / Fundament
- Deckenkonstruktionen
- Dächer
- Kaminanlagen
- Treppen Rampen Leitern
- Dachbeläge und Spengler
- Fenster
- Sonnen und Wetterschutz
- Aussenputze
- Einbauten, Küchen, Türen
- Bodenbeläge und Unterlagsböden
- Parkett
- Gips, Wand, Decke
Haustechnik und Energie
- Heiztechnik
- Lüftung und Klimatechnik
- Sanitärtechnik
- Elektrotechnik
- Erneuerbare Energie
Whirlpools / Jacuzzi
Hausbau Magazin
- Baufinanzierung trotz Krise?
- Das Blockhaus
- Moderne Dämmstoffe im Vergleich
- Erker Vor- und Nachteile
- Glasflächen beim Hausbau
- Günstig ein Haus Bauen
- Mediterraner Hausbaustil
- Mehrgenerationenhaus
- Moderne Architektur
- Gartengestaltung leicht gemacht
- Traditioneller Ziegelbau
- Villa als höchster Traum
- Im Eigenheim Ruhestand geniessen
- Altbau sanieren
- Kauf einer Holzgarage
- Immobilienmakler
- Arbeitshandschuhe für den Winter
- Zuhause verschönern
- Outdoor-Plissees
- Schlafzimmer planen
- Terrassenüberdachung
- Wohngebäudeversicherung
- Zaunarten und Eigenschaften
- Hauseingang gestalten
- Der perfekte Grundriss
- Sparsamer heizen im Altbau
- Einfamilienhaus smart finanzieren
- Planung einer PV-Anlage
- Neues Haus
- Immobilienfinanzierung
- Installation einer Photovoltaikanlage
- Asbest erkennen und entfernen
- Gartenpflege im Frühling – worauf achten
- Sauna im Fokus - Wellness zuhause
- Erfolgreich vermieten
- Die perfekte Winterbekleidung
- Das Niedrigenergiehaus
- Der April und seine Stürme
- Architektonische Vielfalt
- Ökologisch und nachhaltig bauen
- Das perfekte Schlafzimmer
- Nachhaltige Energieversorgung
- Zukunftsorientiert bauen
- Nachhaltigkeit beim Hausbau
- Tiny Houses
- Wärmepumpen als nachhaltige Heizvariante
- Maßgeschneiderten Kleiderschrank
- Der richtige Baukredit
- Ratgeber für erfolgreichen Hausbau
- Haus als Altersvorsorge
Do-it-yourself Anleitungen
- Verlegeanleitung für Bodenbeläge und Parkett
- Bodenbeläge und Parkett reinigen und pflegen
- Malerarbeiten am Haus
- Garten Tipps
- Umzug und Reinigung

ᐅ Grundriss-Optimierung / Aufteilung Erdgeschoss in Doppelhaushälfte

Erstellt am: 03.10.19 16:53
D
duke1085
kaho67404.10.19 16:53
duke1085 schrieb:

Wenn man auf der linken Seite nur einen Stellplatz hätte und den Eingang an die linke Ecke legt sollte es noch passen oder?
Wenn der Eingang nicht mind. in der Mitte der Haustiefe ist, kann er genauso gut von vorn sein und alles bleibt, wie gehabt.
D
duke1085
05.10.19 10:10
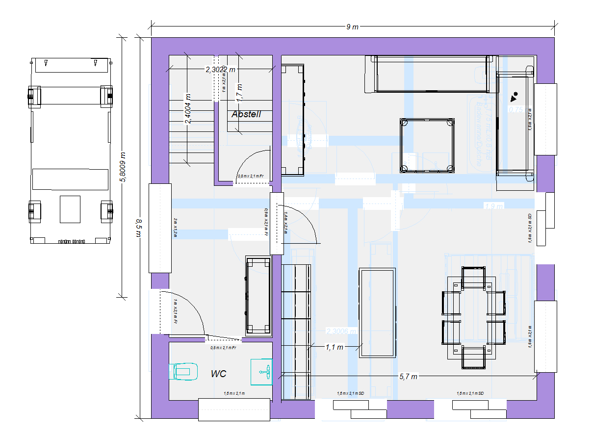
Okay, dann müssen wir bei der ersten Variante bleiben. Siehst du auch eine Möglichkeit das Ganze als Inselküche zu gestalten?
kaho67405.10.19 13:12
duke1085 schrieb:

Siehst du auch eine Möglichkeit das Ganze als Inselküche zu gestalten?
Nur mit Schleppdach:
(Treppe kein Podest)

Grundriss eines Wohn- und Esszimmers mit Diele, WC, Esstisch, Stühlen, Sofa und Treppe.


Grundriss eines Hauses mit mehreren Räumen, Türen, Treppen, farbige Außenwände in Lila.


Grundriss eines Hauses: Treppe links, Technikraum unten links, Flur A, SZ rechts, Bad oben rechts.



3D-Haus mit grauer Fassade, Satteldach, vielen Fenstern auf grünem Gelände



Zweistöckiges graues Haus mit Satteldach auf grüner Wiese; viele Fenster, Innenräume sichtbar.


Man muss hier natürlich einen guten Plan für die Wasserentsorgung machen. Vielleicht dreht man noch die Türen ins WZ anders herum.
D
duke1085
05.10.19 15:02
Erstmal vielen Dank für die Entwürfe und deine Hilfsbereitschaft.

Den Schnitt finde ich noch deutlich offener und lockerer.
Auch die oberen Etagen super.

Allerdings weiss ich nicht ob ein 3 Meter sofa in L-Form so noch optisch hinpassen würde. Haben wir so denn viel Platzugewinn zur Bauträgerlösung? Wenn ich mich nicht verrechnet habe circa +3 Quadratmeter. Dafür fehlt der Stauraum im Technikraum für z.B. Getränkekästen. Was meinst du?
kaho67405.10.19 15:43
duke1085 schrieb:

Was meinst du?
Die Prioritäten musst Du selber setzen. Tiefe hab ich Dir extra dran geschrieben + 40cm. Möbel sind realistisch mit Kochinsel 80cm / 2m.
Das 3m Sofa passt aber einen Getränkeraum gibt es hier nicht, da hast Du recht. Dafür einen 3m Schrank im Flur mit bis zu 70cm Tiefe. Da könnte man auch Getränkekästen und nen Staubsauger rein stapeln. Die Zimmer oben finde ich alle wesentlich geschmeidiger - gerade die Kidis mit je 2 Fenstern sind ein Gewinn.

Letztendlich ist es ein Abwägen, wo Ihr für Euch mehr Vorteile seht. Am besten mal den ein oder anderen Raum nachbilden und die Wunschmöbel rein stellen. Ich geh ja auch immer 3D durch, das macht viel aus. Dieses Raumgefühl ist sicher ein freieres als wenn da im Raum noch ne Wand wäre:


Helle Küche mit Holzmöbeln, Insel, Esstisch und Stühlen; Fenster zum Garten.


Insgesamt bleibt es ein Haus auf Minigrundfläche. Ob man da alle Wünsche umsetzen kann, ist fraglich.
Ich überleg die ganze Zeit, ob ich die Treppe noch gedreht bekomme. Dann hätte man den Platz darunter als kleinen Stauraum und die Schleppgaube wäre vermutlich hinfällig. Eventuell muss ich doch noch mal mit dem Eingang um die Ecke spielen. Aber momentan ist erst mal die Luft raus.
kaho67405.10.19 16:09
Jetzt musste ich doch noch mal rumprobieren:


Grundriss eines Wohngebäudes: Abstellraum, WC, Treppen, Esstisch, Sitzgruppe, Möbel.

Andere Geschosse nahezu gleich. Die Treppe ist allerdings gedreht - damit fällt auch das Schleppdach weg.
treppeeingangschleppdachsofastauraum