Hausbau - Ratgeber
Bauherrenhilfe
- Bauherrenhilfe vor Vertragsabschluss
-- Warum einen unabhängigen Baubetreuer?
-- Vertragsgrundlagen
-- Bausumme
-- Zahlungsplan zur Kostenkontrolle
-- Pflichten des Bauherren vor Vertragsabschluss
-- Unterlagen beim Hausbau vor Vertragsabschluss
- Bauherrenhilfe nach Vertragsabschluss
-- Bauantrag bei Behörden
-- Bau-Genehmigungsverfahren bei Baubehörden
-- Bauspezifische Versicherungen
-- Bauzeitenplan
-- Baubeginn - die Letzten Pflichten der Bauherrschaft
- Bauherrenhilfe während der Bauzeit
- Gewährleistungsansprüche
- Bauabnahme
Baufinanzierung
- Baufinanzierung - Allgemeine Fragen
- Kreditarten
- Kredit-Konditionen
- Bausparen
- Staatliche Förderungen
- Verkehrswert
- Haushaltsrechnung und Bonität
Hausbau Planung
- Haustypen
- Hausbau Vorbereitungsarbeiten
- Das Baugrundstück
- Baugrund beim Hausbau
- Baurecht
- Gebäudeschutz
- Erdarbeiten und Wasserhaltung
- Stützmauern
- Einfriedung
- Untergeschoss
- Kanalisation
- Tragende Elemente
- Nichttragende Innenwände
- Fundation / Fundament
- Deckenkonstruktionen
- Dächer
- Kaminanlagen
- Treppen Rampen Leitern
- Dachbeläge und Spengler
- Fenster
- Sonnen und Wetterschutz
- Aussenputze
- Einbauten, Küchen, Türen
- Bodenbeläge und Unterlagsböden
- Parkett
- Gips, Wand, Decke
Haustechnik und Energie
- Heiztechnik
- Lüftung und Klimatechnik
- Sanitärtechnik
- Elektrotechnik
- Erneuerbare Energie
Whirlpools / Jacuzzi
Hausbau Magazin
- Baufinanzierung trotz Krise?
- Das Blockhaus
- Moderne Dämmstoffe im Vergleich
- Erker Vor- und Nachteile
- Glasflächen beim Hausbau
- Günstig ein Haus Bauen
- Mediterraner Hausbaustil
- Mehrgenerationenhaus
- Moderne Architektur
- Gartengestaltung leicht gemacht
- Traditioneller Ziegelbau
- Villa als höchster Traum
- Im Eigenheim Ruhestand geniessen
- Altbau sanieren
- Kauf einer Holzgarage
- Immobilienmakler
- Arbeitshandschuhe für den Winter
- Zuhause verschönern
- Outdoor-Plissees
- Schlafzimmer planen
- Terrassenüberdachung
- Wohngebäudeversicherung
- Zaunarten und Eigenschaften
- Hauseingang gestalten
- Der perfekte Grundriss
- Sparsamer heizen im Altbau
- Einfamilienhaus smart finanzieren
- Planung einer PV-Anlage
- Neues Haus
- Immobilienfinanzierung
- Installation einer Photovoltaikanlage
- Asbest erkennen und entfernen
- Gartenpflege im Frühling – worauf achten
- Sauna im Fokus - Wellness zuhause
- Erfolgreich vermieten
- Die perfekte Winterbekleidung
- Das Niedrigenergiehaus
- Der April und seine Stürme
- Architektonische Vielfalt
- Ökologisch und nachhaltig bauen
- Das perfekte Schlafzimmer
- Nachhaltige Energieversorgung
- Zukunftsorientiert bauen
- Nachhaltigkeit beim Hausbau
- Tiny Houses
- Wärmepumpen als nachhaltige Heizvariante
- Maßgeschneiderten Kleiderschrank
- Der richtige Baukredit
- Ratgeber für erfolgreichen Hausbau
- Haus als Altersvorsorge
Do-it-yourself Anleitungen
- Verlegeanleitung für Bodenbeläge und Parkett
- Bodenbeläge und Parkett reinigen und pflegen
- Malerarbeiten am Haus
- Garten Tipps
- Umzug und Reinigung

ᐅ Grundriss-Optimierung / Aufteilung Erdgeschoss in Doppelhaushälfte

Erstellt am: 03.10.19 16:53
D
duke1085
D
duke1085
01.03.20 16:23
Nach langem Suchen und Überlegen sind wir mittlerweile doch wieder bei der Doppelhaushälfte angekommen.
Laut Bauunternehmer müssten 2 Stellplätze ProHaus nachgewiesen werden, soweit ich es verstanden habe aber nicht hintereinander.

@katja: wäre super lieb wenn du noch einmal nachsehen würdest ob die Dateien noch hast.
Meinst du die gerade Treppe wäre machbar im EG? Oder gerne auch andere Vorschläge.

Besten Gruß!
kaho67402.03.20 09:27
Sorry, ich fürchte, das hab ich alles schon gelöscht.
Hat sich denn irgendwas an den Voraussetzungen geändert - mal abgesehen von dem Stellplatzproblem?
Gerade Treppe? Halt ich für utopisch.
D
duke1085
02.03.20 10:57
Prinzipiell hat sich an den anderen Voraussetzungen nichts geändert. Bezüglich des Grundstückes können keine Verhältnisse geändert werden, da die restlichen Häuser alle verkauft sind.

Die von dir erstellten Lösungen fand ich beide klasse, Nur durch das Stellplatz-Problem funktioniert es leider nicht. Ich denke aber auch, dass wir durch den fehlenden Keller eh auf eine etwas längere Garage angewiesen wären da man ja sonst keine Stellmöglichkeit für Rasenmäher, Fahrräder etc. hätte.
kaho67402.03.20 12:58
duke1085 schrieb:

Die von dir erstellten Lösungen fand ich beide klasse, Nur durch das Stellplatz-Problem funktioniert es leider nicht. Ich denke aber auch, dass wir durch den fehlenden Keller eh auf eine etwas längere Garage angewiesen wären da man ja sonst keine Stellmöglichkeit für Rasenmäher, Fahrräder etc. hätte.
Zeichne doch mal selbst die 2 Autos und den Fahrradschuppen auf dem Grundstück ein, damit wir wissen, wie das gedacht ist.
11ant02.03.20 13:33
duke1085 schrieb:

@katja: wäre super lieb wenn du noch einmal nachsehen würdest ob die Dateien noch hast.
kaho674 schrieb:

Sorry, ich fürchte, das hab ich alles schon gelöscht.
Um was geht´s denn ?
https://www.instagram.com/11antgmxde/
https://www.linkedin.com/company/bauen-jetzt/
kaho67402.03.20 13:37
11ant schrieb:

Um was geht´s denn ?
Ich vermute um die hier:
planunten war Süd-West:


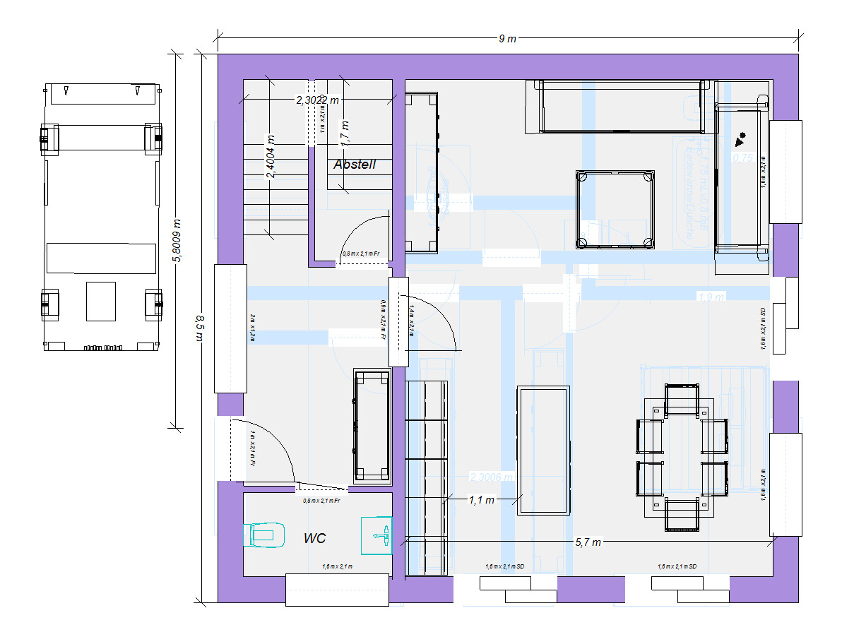
Grundriss eines Raums mit Möbeln, Treppen, Türen, WC; Maße angegeben, lila Streifen.


Grundriss eines Wohnungsplans mit Räumen Wama, Kiba und zwei Küchen (K); zentrale Rundbogen-Türen.


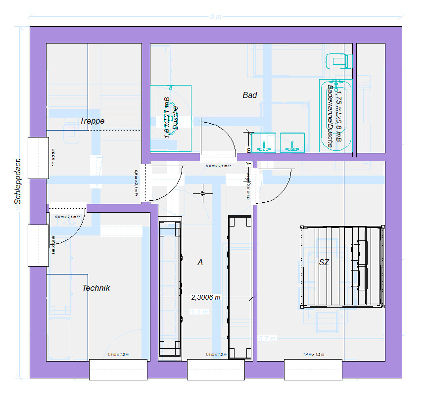
Grundriss eines Hauses mit Technik, Schlafzimmer, Bad, Treppe, Türen.

Ich würde hier vermutlich auf die Süd-West-Terrasse an der Straße komplett verzichten und dort 2 schräge Stellplätze hin machen. Dazu einen Schuppen an die Nordwestseite für Fahrräder und Gedöns (wo in der Skizze das Auto steht). Den Rest so lassen. Terrasse dann nur Süd-Ost.

Oder zurück zum Ausgangsentwurf.
stellplätzetreppeterrasse