Hallo zusammen,
wir sind gerade in der Planung des Grundrisses. Wir haben einen Entwurf vom Architekten und einen eigenen Versuch und hätten gern eure Einschätzung.
Besten Dank!
Bebauungsplan/Einschränkungen
Größe des Grundstücks: ca. 2000qm
Geschossflächenzahl: 0,18
Baufenster, Baulinie und –grenze: rückwärtige Flucht der Nachbarbebauung muss aufgenommen werden / Bebauungsgrenze
Anzahl Stellplatz: 2
Geschossigkeit: 1-geschossig, Bungalow, keine feste Treppe, Zugang zu Dachboden über Dachluke mit Klapptreppe
Dachform: Sattel- oder Walmdach
Ausrichtung: Rückseite / Terrasse Süden, ab Mittags immer Sonne, neben Haus an Ostseite einige Bäume
weitere Vorgaben: 2m Wegerecht entlang der westlichen Grundstücksseite, anliegend an rel. Ruhiger Nebenstrasse
Anforderungen der Bauherren
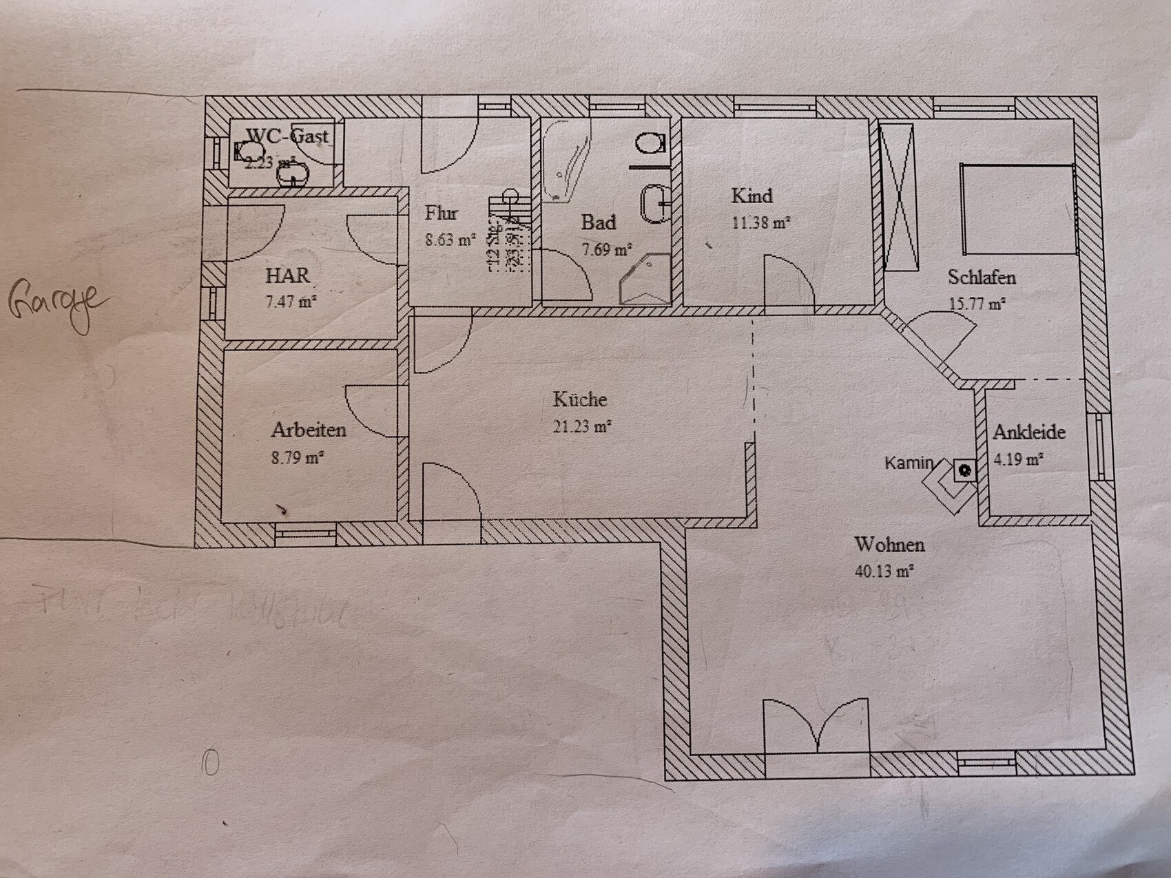
Gebäudetyp: Winkelbungalow
Keller, Geschosse: kein Keller, 1 Geschoss
Anzahl der Personen, Alter: Planung für 2 EW ca. 40J und 2 Kinder, Alters- und Rollstuhlgerecht
Raumbedarf im EG, OG: 130-140qm
Büro: Familiennutzung oder Homeoffice?: Homeoffice, Dachboden über Klapptreppe nutzen für Büro
Schlafgäste pro Jahr: separates kleines Nebengelass auf Grundstück für Besuch
offene oder geschlossene Architektur: geschlossen, Option Zugang zw. Küche & Wohnzimmer nach Bedarf zu öffnen (Schiebetür o.ä.), Küche und Wohnzugang zu Terrasse
konservativ oder moderne Bauweise: modern
offene Küche, Kochinsel: sehr gern Kochinsel (ohne Herd), zumindest aber Tresen mit Sitzmöglichkeit auf Arbeitsplattenhöhe, inkl. kleine „versteckte“ Speisekammer
Anzahl Essplätze: Tresen 3, Esstisch 8
Kamin: unentschlossen
Musik/Stereowand: nein
Balkon, Dachterrasse: nein
Garage, Carport: große Garage für 1 Multivan + 1 Pkw, 2 Motorräder, ggf. Fahrräder, Möglichkeit hinten aus der Garage mit 1 Auto raus auf das Grundstück fahren zu können.
Hauswirtschaftsraum: großer Hauswirtschaftsraum (für Technik +Waschmaschine/Trockner, Waschbecken, viel Platz für Wäscheständer / Bügeln, Sporttaschen etc, mit Tageslicht
weitere Wünsche/Besonderheiten/Tagesablauf, gern auch Begründungen, warum dieses oder das nicht sein soll:
-2. Hauszugang über durch die Garage direkt in den Hauswirtschaftsraum und von aus in den Flur zur Garderobe
-Wohnzimmer ca. 30qm
-Schlafzimmer (nach hinten) ca. 20 qm + kleine Ankleide, 1 Kleiderschrank im Schlafzimmer., ausreichend Platz rund um Bett
-Großes Bad mit begehbarer, ebenerdiger Dusche (ca. 2mx1,50m), Badewanne (keine Eckwanne), Doppelwaschbecken, WC
-Kleines Gästebad inkl. Dusche
-Gern großes Fenster mit Sitzbank
-Fenster/Türen zu Garten/Terrasse evtl. als Schiebetüren
Hausentwurf
Von wem stammt die Planung:
- Haus: Architekt
-Grundriss: 1x Architekt, 1x DIY
-Was gefällt? Warum?
Architekt: Kombi Küche-Wohnzimmer
DIY: Küche, Zugang aus Flur zu Essbereich, versteckte Speisekammer, Einbau-Garderobe im Flur, Ankleide im Schlafzimmer
-Was gefällt nicht? Warum?
Architekt: Räume gehen ohne Flur vom Wohnzimmer ab, Hauswirtschaftsraum und Bäder zu klein, Hauswirtschaftsraum ohne Tageslicht, Arbeitszimmer (= 2. Kinderzimmer) Zugang durch Küche, Schlafzimmer nach vorn raus, weite Wege vom Schlafzimmer zum Hauptbad.
DIY: Teilung des Winkels in Wohnzimmer/Schlafzimmer vermutlich nicht ideal?, langer Flur verschenkter Platz?
favorisierte Heiztechnik: noch keine Ahnung
Wenn Ihr verzichten müsst, auf welche Details/Ausbauten
-könnt Ihr verzichten: Kücheninsel, Ankleide
-könnt Ihr nicht verzichten: Zugang durch Hauswirtschaftsraum, Küche von Wohnzimmer abtrennbar
Was ist die wichtigste/grundlegende Frage zum Grundriss in 130 Zeichen zusammengefasst?
Wie kann man Küche, Wohnzimmer, Schlafzimmer optimal auf der Rückseite mit dem Winkel aufteilen?



wir sind gerade in der Planung des Grundrisses. Wir haben einen Entwurf vom Architekten und einen eigenen Versuch und hätten gern eure Einschätzung.
Besten Dank!
Bebauungsplan/Einschränkungen
Größe des Grundstücks: ca. 2000qm
Geschossflächenzahl: 0,18
Baufenster, Baulinie und –grenze: rückwärtige Flucht der Nachbarbebauung muss aufgenommen werden / Bebauungsgrenze
Anzahl Stellplatz: 2
Geschossigkeit: 1-geschossig, Bungalow, keine feste Treppe, Zugang zu Dachboden über Dachluke mit Klapptreppe
Dachform: Sattel- oder Walmdach
Ausrichtung: Rückseite / Terrasse Süden, ab Mittags immer Sonne, neben Haus an Ostseite einige Bäume
weitere Vorgaben: 2m Wegerecht entlang der westlichen Grundstücksseite, anliegend an rel. Ruhiger Nebenstrasse
Anforderungen der Bauherren
Gebäudetyp: Winkelbungalow
Keller, Geschosse: kein Keller, 1 Geschoss
Anzahl der Personen, Alter: Planung für 2 EW ca. 40J und 2 Kinder, Alters- und Rollstuhlgerecht
Raumbedarf im EG, OG: 130-140qm
Büro: Familiennutzung oder Homeoffice?: Homeoffice, Dachboden über Klapptreppe nutzen für Büro
Schlafgäste pro Jahr: separates kleines Nebengelass auf Grundstück für Besuch
offene oder geschlossene Architektur: geschlossen, Option Zugang zw. Küche & Wohnzimmer nach Bedarf zu öffnen (Schiebetür o.ä.), Küche und Wohnzugang zu Terrasse
konservativ oder moderne Bauweise: modern
offene Küche, Kochinsel: sehr gern Kochinsel (ohne Herd), zumindest aber Tresen mit Sitzmöglichkeit auf Arbeitsplattenhöhe, inkl. kleine „versteckte“ Speisekammer
Anzahl Essplätze: Tresen 3, Esstisch 8
Kamin: unentschlossen
Musik/Stereowand: nein
Balkon, Dachterrasse: nein
Garage, Carport: große Garage für 1 Multivan + 1 Pkw, 2 Motorräder, ggf. Fahrräder, Möglichkeit hinten aus der Garage mit 1 Auto raus auf das Grundstück fahren zu können.
Hauswirtschaftsraum: großer Hauswirtschaftsraum (für Technik +Waschmaschine/Trockner, Waschbecken, viel Platz für Wäscheständer / Bügeln, Sporttaschen etc, mit Tageslicht
weitere Wünsche/Besonderheiten/Tagesablauf, gern auch Begründungen, warum dieses oder das nicht sein soll:
-2. Hauszugang über durch die Garage direkt in den Hauswirtschaftsraum und von aus in den Flur zur Garderobe
-Wohnzimmer ca. 30qm
-Schlafzimmer (nach hinten) ca. 20 qm + kleine Ankleide, 1 Kleiderschrank im Schlafzimmer., ausreichend Platz rund um Bett
-Großes Bad mit begehbarer, ebenerdiger Dusche (ca. 2mx1,50m), Badewanne (keine Eckwanne), Doppelwaschbecken, WC
-Kleines Gästebad inkl. Dusche
-Gern großes Fenster mit Sitzbank
-Fenster/Türen zu Garten/Terrasse evtl. als Schiebetüren
Hausentwurf
Von wem stammt die Planung:
- Haus: Architekt
-Grundriss: 1x Architekt, 1x DIY
-Was gefällt? Warum?
Architekt: Kombi Küche-Wohnzimmer
DIY: Küche, Zugang aus Flur zu Essbereich, versteckte Speisekammer, Einbau-Garderobe im Flur, Ankleide im Schlafzimmer
-Was gefällt nicht? Warum?
Architekt: Räume gehen ohne Flur vom Wohnzimmer ab, Hauswirtschaftsraum und Bäder zu klein, Hauswirtschaftsraum ohne Tageslicht, Arbeitszimmer (= 2. Kinderzimmer) Zugang durch Küche, Schlafzimmer nach vorn raus, weite Wege vom Schlafzimmer zum Hauptbad.
DIY: Teilung des Winkels in Wohnzimmer/Schlafzimmer vermutlich nicht ideal?, langer Flur verschenkter Platz?
favorisierte Heiztechnik: noch keine Ahnung
Wenn Ihr verzichten müsst, auf welche Details/Ausbauten
-könnt Ihr verzichten: Kücheninsel, Ankleide
-könnt Ihr nicht verzichten: Zugang durch Hauswirtschaftsraum, Küche von Wohnzimmer abtrennbar
Was ist die wichtigste/grundlegende Frage zum Grundriss in 130 Zeichen zusammengefasst?
Wie kann man Küche, Wohnzimmer, Schlafzimmer optimal auf der Rückseite mit dem Winkel aufteilen?
Das DIY wären round about bei 180-200qm, sofern ich es so zwischendurch sehen kann an der gewünschten Einrichtung.
Beschreibung liest sich nicht rollstuhlgerecht, Zeichnungen sehen mir auch nicht danach aus.
Büro kann schon mal nicht mit dem Rollstuhl begangen werden. Bäder sind nicht Rollstuhlgerecht.
Wer von den Bewohnern braucht denn die Barrierefreiheit?
Architekt: unzoniert, DIY: zu groß.
Wie ist denn das Budget?
Beschreibung liest sich nicht rollstuhlgerecht, Zeichnungen sehen mir auch nicht danach aus.
Büro kann schon mal nicht mit dem Rollstuhl begangen werden. Bäder sind nicht Rollstuhlgerecht.
Wer von den Bewohnern braucht denn die Barrierefreiheit?
Architekt: unzoniert, DIY: zu groß.
Wie ist denn das Budget?
Es muss nicht komplett Rollstuhlgerecht sein. Es geht eher darum, dass die wichtigsten Bereiche gut Platz haben, und nicht zu knapp sind (Küche, Platz um Bett, Bewegungsfreiheit im Bad etc) falls man später mal mit Rollator lang muss. Wenn es soweit ist, muss man auch nicht mehr unbedingt oft ins Büro bzw auf den Dachboden 😉. Kann ich den Haupttext noch anpassen?
ypg schrieb:
Das DIY wären round about bei 180-200qm, sofern ich es so zwischendurch sehen kann an der gewünschten Einrichtung.
Beschreibung liest sich nicht rollstuhlgerecht, Zeichnungen sehen mir auch nicht danach aus.
Büro kann schon mal nicht mit dem Rollstuhl begangen werden. Bäder sind nicht Rollstuhlgerecht.
Wer von den Bewohnern braucht denn die Barrierefreiheit?
Architekt: unzoniert, DIY: zu groß.
Wie ist denn das Budget?Wo siehst du denn die großen Platzfresser?Fromy21 schrieb:
Kann ich den Haupttext noch anpassen?Nein, das geht nur innerhalb von 10 Minuten.Fromy21 schrieb:
Es geht eher darum, dass die wichtigsten Bereiche gut Platz haben, und nicht zu knapp sind (Küche, Platz um Bett, Bewegungsfreiheit im Bad etc)Also: ihr wollt einen Winkelbungalow, der funktionieren soll. Wie ein Haus eben sein soll.2 Kinderzimmer je 12 qm
Flur/Windfang 8qm/8qm
WC 2qm
Hauswirtschaftsraum 8qm (Mit Durchgang Garage 10qm)
Schlafzimmer 12qm
Ankleide 8qm
WZ (gewünscht) 30qm
Küche für 4 12qm, Tresen 5qm
Bad 10qm
Ich bin bei 132qm, sollte also alles passen.
Aber eben nicht so, wie Deine Skizze ist, sondern normal griffige Größe. Eher einen knappen Meter ums Bett herum.
Wenn Du also das Budget verrätst, kann man ja mal Wände schieben 😉
Ansonsten rate ich für die 2 Kinderzimmer den Dachbodenausbau und Verzicht auf die Räume unten. Dann wird es auch altersgerecht. Wenn die Kids dann man ausziehen, werden das schöne Enkel- oder Hobbyräume.
Ähnliche Themen