ᐅ Grundriss: Neubau auf Bungalow-Bestandskeller, 1,5-Geschossige
Erstellt am: 19.12.22 01:12
M
Mal BauenM
Mal Bauen09.12.23 00:17K a t j a schrieb:
Nunja, wenn Du im OG mit Leichtbau arbeitest, hätte ich noch diesenDas sieht toll aus und bringt praktischerweise noch ein größeres EG-Bad und einen separaten Hauswirtschaftsraum im OG mit. Trotz Holz-Innenwänden im OG hat unser Architekt aber immer darauf gepocht, dass die EG Wände auf den tragenden Kellerwänden stehen. Daher haben wir solche Vorschläge wie deinen nie diskutiert. Und nun weiß ich nicht ob wir unsere Pläne noch einmal komplett neu denken wollen. Wir möchten ja eigentlich nur noch die kritischen Stellen in unserem derzeitigen Grundriss lösen, ärgern uns aber ein bisschen nicht schon früher "out of the box" gedacht zu haben..
Zum Thema Kniestock:
Das war auch eine Hängepartie. Wir sind froh, dass wir überhaupt 1m haben, im ersten Entwurf waren es noch 65cm. Der Knackpunkt sind die Gaubenfenster auf der Südseite, dort "wächst" die Brüstungshöhe mit dem Kniestock mit. Ich habe das mal in einem separaten Thread diskutiert: https://www.hausbau-forum.de/threads/kniestockhoehe-bei-schleppdachgaube.45203/
Mal Bauen schrieb:
Trotz Holz-Innenwänden im OG hat unser Architekt aber immer darauf gepocht, dass die EG Wände auf den tragenden Kellerwänden stehen.Das ist hoffentlich eine verkürzte Wiedergabe, aber im Kern schon ratsam.https://www.instagram.com/11antgmxde/
https://www.linkedin.com/company/bauen-jetzt/
Mal Bauen schrieb:
Das sieht toll aus und bringt praktischerweise noch ein größeres EG-Bad und einen separaten Hauswirtschaftsraum im OG mit.
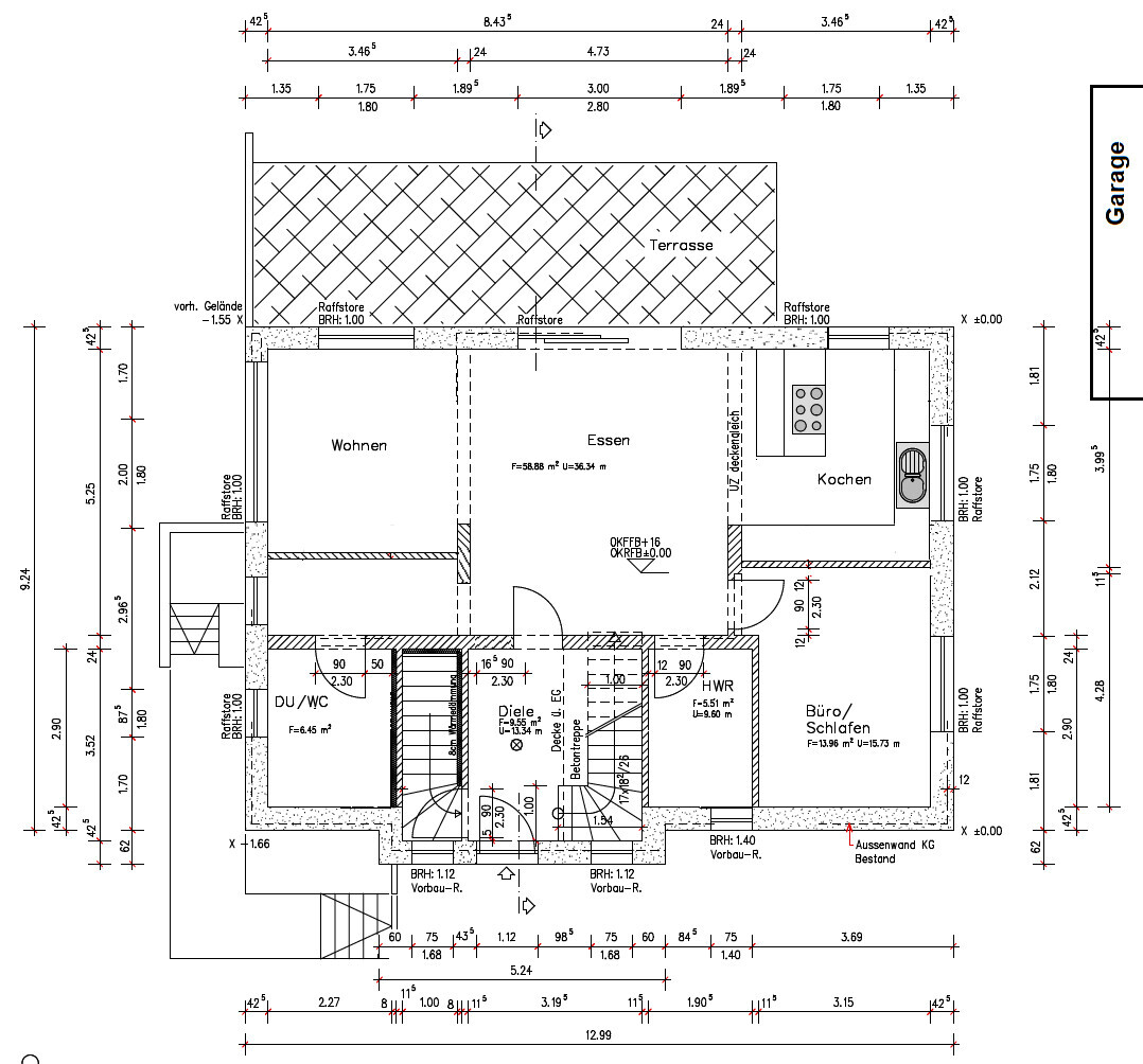
Trotz Holz-Innenwänden im OG hat unser Architekt aber immer darauf gepocht, dass die EG Wände auf den tragenden Kellerwänden stehen. Daher haben wir solche Vorschläge wie deinen nie diskutiert. Und nun weiß ich nicht ob wir unsere Pläne noch einmal komplett neu denken wollen. Wir möchten ja eigentlich nur noch die kritischen Stellen in unserem derzeitigen Grundriss lösen, ärgern uns aber ein bisschen nicht schon früher "out of the box" gedacht zu haben..Ich will mal so sagen: für mich wäre der Abgang zum Gäste-WC neben dem esstisch ein KO-Kriterium. Wenn ich diese Riesensumme ausgebe, dann wäre mir diese Kröte zu groß. Wenn der Keller nicht "unterstützt" werden kann, so dass er alle Wände trägt, dann wäre vielleicht eine Drehung der Kellertreppe eine machbare Alternative. Dann bleibt im Keller fast alles so, wie es ist, bis auf den neuen Durchgang am Treppenantritt und den bisherigen Treppenantritt zuzumauern. Die bisherige Waschkammer wird zum Treppenhaus - das ist verschmerzbar, denke ich. Notfalls kann man das Wasser in den Nachbarraum verlegen. Müsste die selbe Wand sein. Aber die Wäsche wandert eh nach oben - vielleicht etwa so:
Mal Bauen schrieb:
Zum Thema Kniestock:
Das war auch eine Hängepartie. Wir sind froh, dass wir überhaupt 1m haben, im ersten Entwurf waren es noch 65cm. Der Knackpunkt sind die Gaubenfenster auf der Südseite, dort "wächst" die Brüstungshöhe mit dem Kniestock mit. Ich habe das mal in einem separaten Thread diskutiert: https://www.hausbau-forum.de/threads/kniestockhoehe-bei-schleppdachgaube.45203/Also was immer Ihr Euch da eingeredet habt, dass ist totaler Blödsinn. Du baust ein neues Haus! Der Bebauungsplan hindert Dich nicht, einen Kniestock frei zu wählen. Also tu es! Die Schönheit der Gaube ist Prio 250 hinter Kniestockhöhe irgendwo bei 10. Zuerst mal müssen die Räume funktionieren. Dann kannst Du Dich um die Schönheit sorgen. Wenn ich das Bett nicht an die Wand stellen kann, funktioniert der Raum imho nicht.M
Mal Bauen09.12.23 15:53K a t j a schrieb:
Ich will mal so sagen: für mich wäre der Abgang zum Gäste-WC neben dem Esstisch ein KO-Kriterium. Wenn ich diese Riesensumme ausgebe, dann wäre mir diese Kröte zu groß. Die Kröte Gäste-WC-Zugang erschien uns zunächst klein und akzeptierbar. Je länger wir darüber nachdenken, desto größer wird sie nun.Danke für diesen weiteren kreativen Vorschlag. Eines der Dogmen der bisherigen Planung war auch den Keller nicht anzutasten, im Nachhinein hätten wir uns auch hier mehr Freiheiten erlauben sollen. Wir werden jetzt, in Anbetracht der kurzen Dauer bis Baubeginn im März, bei unserem Grundriss bleiben und deine Lösung aus Beitrag #57 für das Gäste-WC umsetzen.
K a t j a schrieb:
Also was immer Ihr Euch da eingeredet habt, dass ist totaler Blödsinn. Du baust ein neues Haus! Der Bebauungsplan hindert Dich nicht, einen Kniestock frei zu wählen. Also tu es! Die Schönheit der Gaube ist Prio 250 hinter Kniestockhöhe irgendwo bei 10. Bei der Gaube ging es uns weniger um Schönheit als um die Sorge, bei den Kinderzimmern auf der Südseite den Fensterrahmen direkt vor der Nase zu haben. Das hat sich im Nachhinein nun auch als unbegründet herausgestellt. Die Brüstungshöhe beträgt ~94cm v. FFBH bei einer Kniestockhöhe von 1m. Hier könnten wir eigentlich um 25cm anheben auf 119cm Brüstungshöhe bei 1,25m Kniestock. Ich weiß nicht wie kritisch dann die Abweichung bei Trauf- und Firsthöhen zu den Angaben im Bauantrag gehandhabt werden. An die dortigen Maße sollte ich mich ja eigentlich halten.Also vielleicht könnte man auch überlegen, im Bad selbst das WC zu separieren, indem man es unter die Treppe setzt (sofern dort genug Kopffreiheit wäre).

Dann mit einer Absaugung, die sich sehen lassen kann, den Mief nach draußen befördern. Mit passgenauen Möbeln und einer normalen Eckdusche, wird das sogar auch ganz ansehnlich. Schöner wäre natürlich noch, wenn man die WC-Tür nach innen aufschlagen könnte, aber das kann ich mit Photoshop nicht einschätzen.
Dann mit einer Absaugung, die sich sehen lassen kann, den Mief nach draußen befördern. Mit passgenauen Möbeln und einer normalen Eckdusche, wird das sogar auch ganz ansehnlich. Schöner wäre natürlich noch, wenn man die WC-Tür nach innen aufschlagen könnte, aber das kann ich mit Photoshop nicht einschätzen.
M
Mal Bauen03.01.24 10:22Danke für den weiteren Vorschlag @K a t j a
Die lichte Kopffreiheit wäre zwischen 2,58m planoben und ~1,90m, 1m weiter die Treppenschräge entlang. Das wäre dann schon knapp.
Wir haben uns über die Feiertage grundsätzlich noch einmal den Kopf zerbrochen über diesen Grundriss. Das OG gefällt uns so wie es ist, deshalb werden wir die Treppe nicht mehr anfassen. Aber mit dem EG hadern wir noch, was die Positionierung von WC (Privatsphäre) und Küche angeht, auch angeregt durch den Input von @K a t j a und @ypg (Beitrag #67). Unser Architekt hatte die Küche in den ruhigen Osten mit Aussicht geplant, das Wohnzimmer Richtung Garten, Straße und Grundstückszugang. Wenn wir das ganze drehen, könnte das so aussehen:
Das ist natürlich eine Last-Minute-Schnapsidee von uns. Der Bau soll im März losgehen und die Angebote für den Rohbau liegen vor. Der Statiker ist wahrscheinlich schon am rechnen (erreiche ihn gerade nicht). Entwässerung inkl. Be-/Entlüftung muss auch noch geprüft werden, scheint aber möglich. Ganz preisneutral ist es natürlich nicht: größeres WC/DU, mehr Küchenmöbel, mehr Wände.
Was haltet ihr davon? Ist das eine sinnvolle Verbesserung zur bisherigen Planung?

Die lichte Kopffreiheit wäre zwischen 2,58m planoben und ~1,90m, 1m weiter die Treppenschräge entlang. Das wäre dann schon knapp.
Wir haben uns über die Feiertage grundsätzlich noch einmal den Kopf zerbrochen über diesen Grundriss. Das OG gefällt uns so wie es ist, deshalb werden wir die Treppe nicht mehr anfassen. Aber mit dem EG hadern wir noch, was die Positionierung von WC (Privatsphäre) und Küche angeht, auch angeregt durch den Input von @K a t j a und @ypg (Beitrag #67). Unser Architekt hatte die Küche in den ruhigen Osten mit Aussicht geplant, das Wohnzimmer Richtung Garten, Straße und Grundstückszugang. Wenn wir das ganze drehen, könnte das so aussehen:
- Das Wohnzimmer ist im ruhigen Osten, mit schöner Aussicht (großes bodentiefes Fenster oder Sitzfenster, statt schmales Küchenfenster)
- Die Küche ist in der Nähe von Garten/Garage/Grundstückszugang und kann einen eigenen Hauszugang (direkt an der Garage für Einkäufe) erhalten
- Beim Tausch mit dem Hauswirtschaftsraum ist WC/DU abgelegener vom Essbereich und etwas größer. Der Hauswirtschaftsraum darf kleiner werden, weil der Gefrierschrank in die Küche rückt (dort ist mit L + Halb-Insel etwas mehr Platz als bisher)
Das ist natürlich eine Last-Minute-Schnapsidee von uns. Der Bau soll im März losgehen und die Angebote für den Rohbau liegen vor. Der Statiker ist wahrscheinlich schon am rechnen (erreiche ihn gerade nicht). Entwässerung inkl. Be-/Entlüftung muss auch noch geprüft werden, scheint aber möglich. Ganz preisneutral ist es natürlich nicht: größeres WC/DU, mehr Küchenmöbel, mehr Wände.
Was haltet ihr davon? Ist das eine sinnvolle Verbesserung zur bisherigen Planung?
Ähnliche Themen