ᐅ Grundriss: Neubau auf Bungalow-Bestandskeller, 1,5-Geschossige
Erstellt am: 19.12.22 01:12
M
Mal BauenMal Bauen schrieb:
Was noch nicht so passt:ich sach nur: Pfu scher ta schen !https://www.instagram.com/11antgmxde/
https://www.linkedin.com/company/bauen-jetzt/
Mal Bauen schrieb:
Gibt es noch weitere Hinweise/Kritik/Tipps?Ohne viel Arbeit und Screenshots fällt es mir zb sehr schwer, dem zu folgen, was war und was soll. Vielleicht kannst Du mal in gleicher Ausrichtung das Vorher und Nachher posten.Ich finde das ganz gut.
Was mir ins Auge sticht: Bad und Schlafzimmer würde ich ca. 15cm mehr Tiefe geben. Die Kinder merken das kaum, aber im Schlafzimmer kann dann bequem ein großes sideboard oder noch ein schrank an die Wand. Die Stellfläche wäre mir sonst viel zu knapp.
Das WC würde ich samt Gaube an die Badewanne rücken, um Platz für einen großen Wäschekorb zu schaffen. Die 40cm hinter der Tür reichen da vermutlich nicht und gehen schon für ein Regal mit Handtüchern und Waschmittel drauf. Bei 5 Menschen läuft die Maschine nahezu ständig und der Platz ist imho viel zu gering. Grundsätzlich ist es schade, dass Waschmaschine & Co. im Bad sind, ich sehe aber hier keine Alternative, ohne zu viel einzureißen.
Im EG wäre mein größtes Problem der direkte Abgang vom Esszimmer zum Gäste-WC. Die Anordnung der Sanitärobjekte find ich auch gruselig. Ich würde das Bad minimal vergrößern und die Objekte in Reihe setzen. Außerdem würde ich einen Extraflur schaffen, damit eine zusätzliche Trennung zum Gästebereich da ist und die Geräusche + Gerüche nicht direkt an den Esstisch dringen.

Ich weiß nicht, ob das hier schon diskutiert wurde und möchte jetzt nicht alles nachlesen, aber Ihr verliert im EG recht viel Platz, da die Treppen nicht übereinander sind. Ich vermute, da der Nachbar 2-geschossig baut, wäre es doch kaum ein Problem gewesen, ob eine Gaube für die Treppe durchzusetzen, oder?
Was mir ins Auge sticht: Bad und Schlafzimmer würde ich ca. 15cm mehr Tiefe geben. Die Kinder merken das kaum, aber im Schlafzimmer kann dann bequem ein großes sideboard oder noch ein schrank an die Wand. Die Stellfläche wäre mir sonst viel zu knapp.
Das WC würde ich samt Gaube an die Badewanne rücken, um Platz für einen großen Wäschekorb zu schaffen. Die 40cm hinter der Tür reichen da vermutlich nicht und gehen schon für ein Regal mit Handtüchern und Waschmittel drauf. Bei 5 Menschen läuft die Maschine nahezu ständig und der Platz ist imho viel zu gering. Grundsätzlich ist es schade, dass Waschmaschine & Co. im Bad sind, ich sehe aber hier keine Alternative, ohne zu viel einzureißen.
Im EG wäre mein größtes Problem der direkte Abgang vom Esszimmer zum Gäste-WC. Die Anordnung der Sanitärobjekte find ich auch gruselig. Ich würde das Bad minimal vergrößern und die Objekte in Reihe setzen. Außerdem würde ich einen Extraflur schaffen, damit eine zusätzliche Trennung zum Gästebereich da ist und die Geräusche + Gerüche nicht direkt an den Esstisch dringen.
Ich weiß nicht, ob das hier schon diskutiert wurde und möchte jetzt nicht alles nachlesen, aber Ihr verliert im EG recht viel Platz, da die Treppen nicht übereinander sind. Ich vermute, da der Nachbar 2-geschossig baut, wäre es doch kaum ein Problem gewesen, ob eine Gaube für die Treppe durchzusetzen, oder?
M
Mal Bauen02.12.23 22:13ypg schrieb:
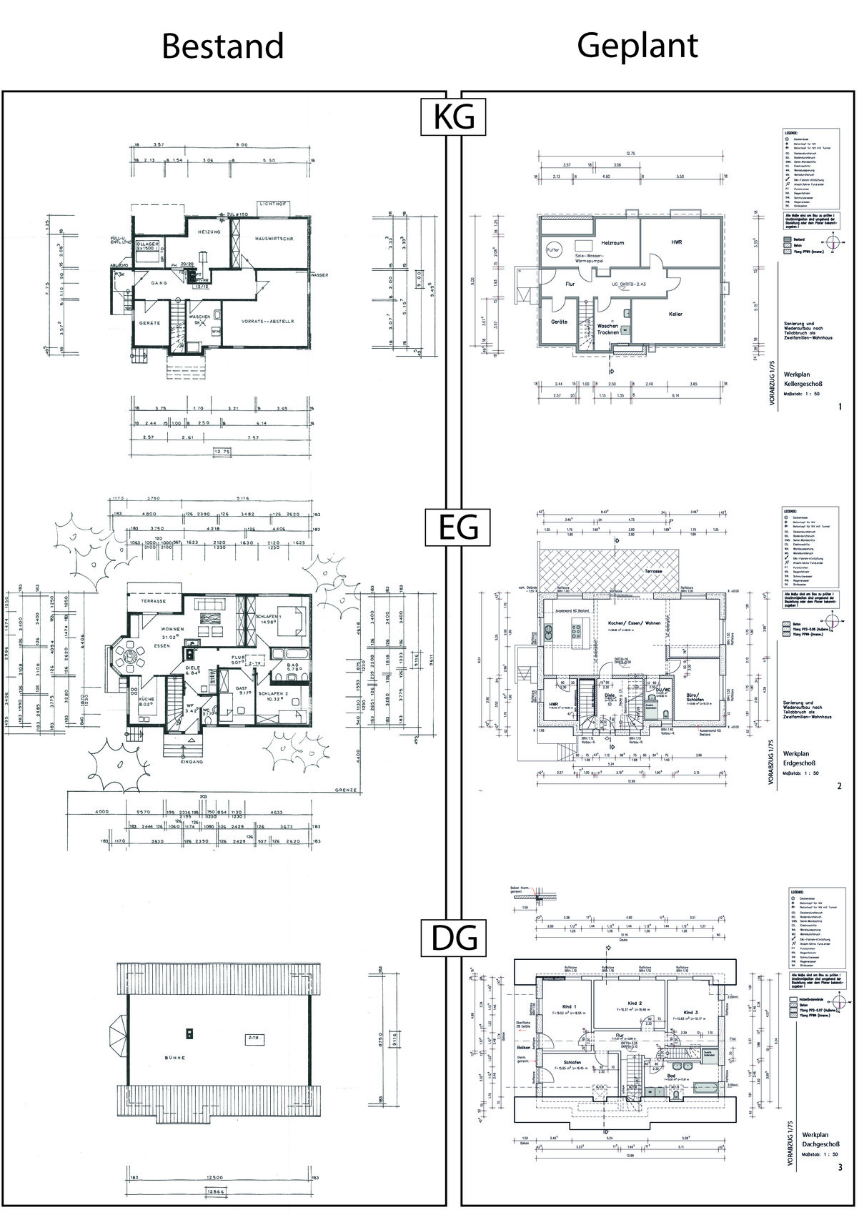
Ohne viel Arbeit und Screenshots fällt es mir zb sehr schwer, dem zu folgen, was war und was soll. Vielleicht kannst Du mal in gleicher Ausrichtung das Vorher und Nachher posten.Im Anhang die Gegenüberstellung von Bestand mit unserer Planung.Die Ansichten sind von der Genehmigungsplanung, da ich derzeit keine Aktuelleren habe. Details (z.B. bei den Fensterpositionen) können daher vom Grundriss abweichen.
M
Mal Bauen02.12.23 22:24K a t j a schrieb:
Ich finde das ganz gut.
Was mir ins Auge sticht: Genau die gleichen Optimierungspotentiale sehen wir auch. Wir schauen mal was sich hier noch machen lässt.K a t j a schrieb:
Ich weiß nicht, ob das hier schon diskutiert wurde und möchte jetzt nicht alles nachlesen, aber Ihr verliert im EG recht viel Platz, da die Treppen nicht übereinander sind. Ich vermute, da der Nachbar 2-geschossig baut, wäre es doch kaum ein Problem gewesen, ob eine Gaube für die Treppe durchzusetzen, oder?Das mit der Kellertreppe ist deshalb etwas diffizil, weil der ungedämmte Bestands-Keller außerhalb der thermischen Hülle liegen muss (KfW40). Ein offenes, übereinanderliegendes Treppenhaus war dann nicht möglich und wir haben die Lösung mit separater Treppe verfolgt.Ich frage mich aber, ob man nicht auch hätte zwischen den Treppen (also auf der Unterseite der OG-Treppe) dämmen können, also quasi ein "geschlossenes" Treppenhaus. Ein Nachteil der zusammengelegten Treppen wäre aber das sehr schmale Zimmer im Nordosten über dem Hauswirtschaftsraum gewesen. Zu solchen massiven Grundrissänderungen wären wir zum jetzigen Zeitpunkt aber wohl nicht mehr bereit.
M
Mal Bauen02.12.23 22:3311ant schrieb:
ich sach nur: Pfu scher ta schen !Unser Architekt war in einem früheren Leben einmal Maurer, von daher leider etwas verwunderlich. Wir werden das nochmal ansprechen und versuchen zu optimieren.Ähnliche Themen