ᐅ Grundriss: Neubau auf Bungalow-Bestandskeller, 1,5-Geschossige
Erstellt am: 19.12.22 01:12
M
Mal BauenM
Mal Bauen19.12.22 01:12Hallo an alle Forumsmitglieder,
wir stehen relativ am Anfang unseres Bauvorhabens und müssen noch viele Grundsatzfragen klären. Dennoch möchte ich das Projekt hier einmal vorstellen.
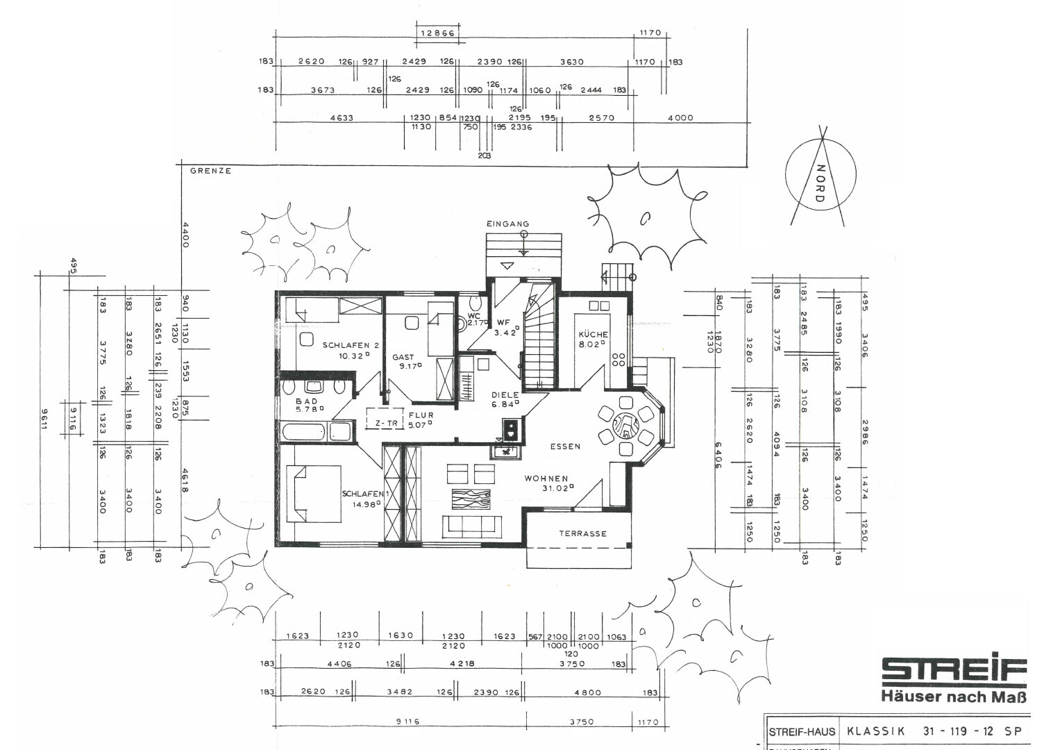
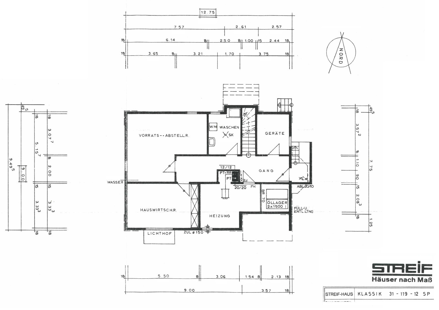
Wir sind seit kurzem Besitzer eines Fertighaus-Bungalows der Firma Streif Haus, Baujahr 1987. Es ist mit einem Betonkeller (Fa. Betonkemmler) vollunterkellert.
Unser Vorhaben ist nun, den Bungalow bis auf Oberkante Keller abzureisen und ein neues Haus für unsere Familie (zu viert, irgendwann zu fünft) darauf zu bauen. Der Bestandskeller (sehr gute Bausubstanz) soll dabei als Nutzkeller inkl. Technikraum integriert werden. Dabei soll auch die Heiztechnik von Ölheizung auf Wärmepumpe modernisiert werden.
Aktuell stehen wir in Kontakt sowohl mit Fertighausanbietern (Weberhaus, Danwood) als auch mit Massivbau-Firmen (Denkinger). Die Immobilie steht in Baden-Württemberg (Südbaden).
Auch wenn der Grundriss bisher nur ein erster Entwurf darstellt, möchte ich ihn hier schon der Kritik preisgeben (Steckbrief siehe unten).
Insbesondere erhoffe ich mir aber auch Denkanstöße bei folgenden grundsätzlichen Fragen zu erhalten:
Hier nun noch der Steckbrief (stichwortartig).
Vielen Dank schon einmal für's Reindenken, Kommentieren und Kritisieren. Über die weitere Entwicklung werde ich dann im Thread gerne berichten.
Bebauungsplan/Einschränkungen
Größe des Grundstücks: 615m²
Hang: Nord/Süd: <0,5m auf 18m, West-Ost: ca. 2m auf 33m (siehe Höhenverlauf)
Grundflächenzahl: Kein Bebauungsplan (§34 Baugesetzbuch). In der unmittelbaren Nachbarschaft gibt es tlw. sehr großzügig bebaute Grundstücke. Wir möchten die Grundfläche des Bestandsgebäudes nicht verändern, aber eine Doppelgarage (bisher nicht vorhanden) dazunehmen.
Geschossflächenzahl: Kein Bebauungsplan (§34 Baugesetzbuch)
Baufenster, Baulinie und -grenze: Kein Bebauungsplan (§34 Baugesetzbuch). Grundstücksgrenzen und Bestandsimmobilie siehe Luftaufnahme im Anhang
Randbebauung: Keine
Anzahl Stellplatz: keine
Geschossigkeit: 1,5-geschossig
Dachform: Satteldach
Stilrichtung: Modernes Einfamilienhaus
Ausrichtung: siehe Luftaufnahme. Eingang (aktuell): Norden
Maximale Höhen/Begrenzungen: Kein Bebauungsplan
Direkte Nachbarschaft: Nördlicher Nachbar: 2-geschossig mit Flachdach. Südlich: 1,5-geschossig mit Walmdach, Westlich: 1,5-geschossig mit Satteldach
Anforderungen der Bauherren
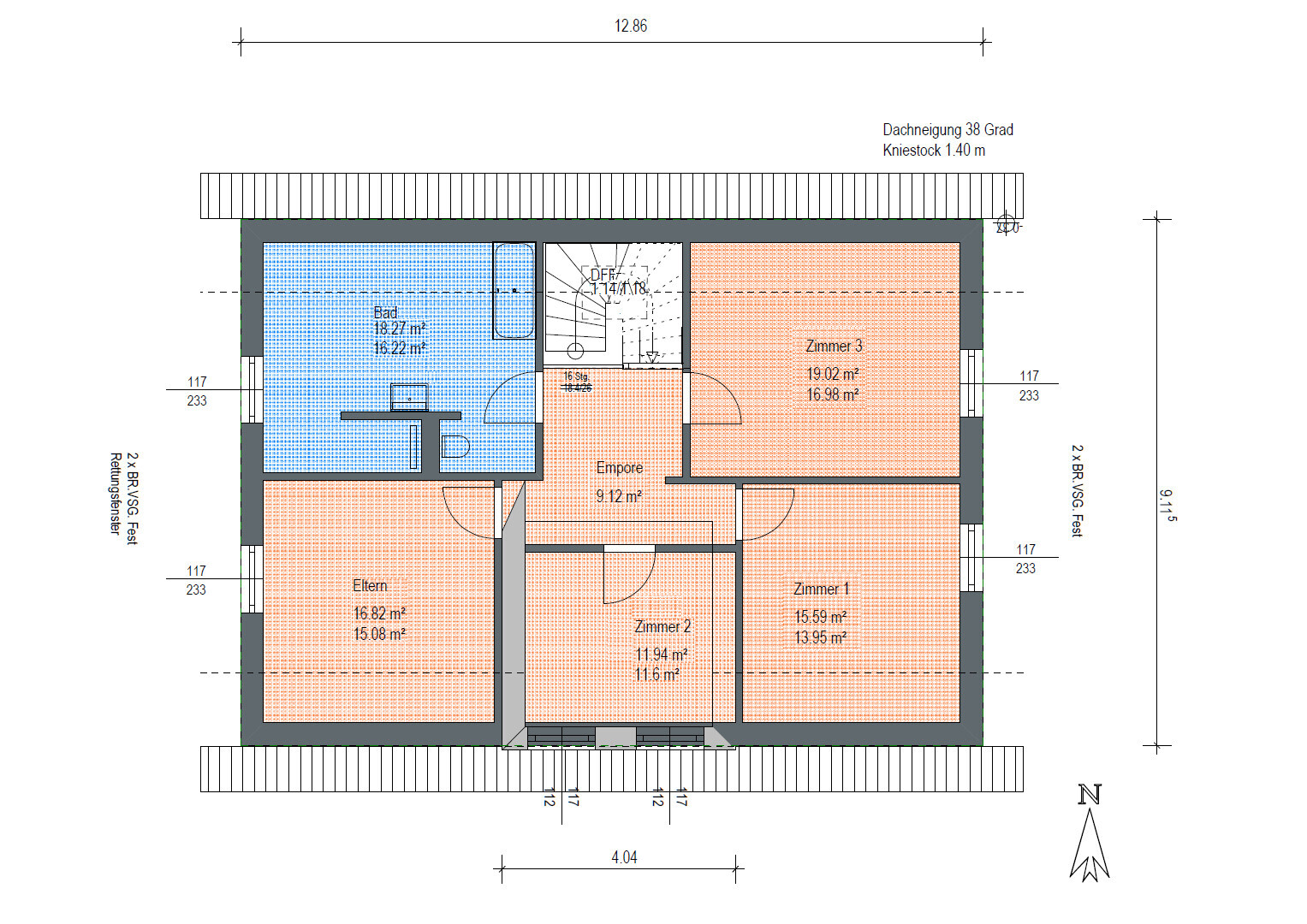
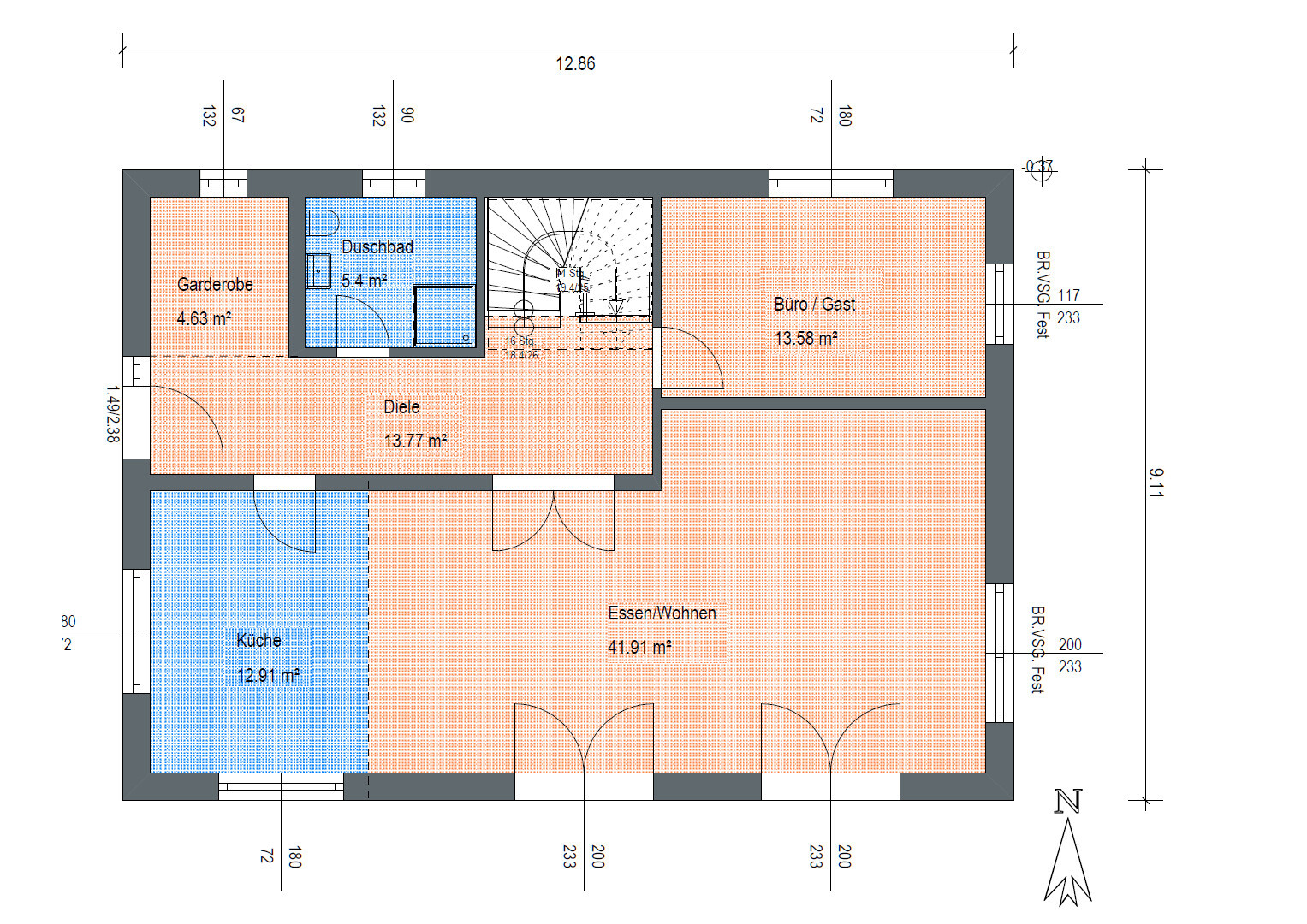
Stilrichtung, Dachform, Gebäudetyp: Wir möchten aus dem bestehenden Bungalow ein klassisches 1,5-geschossiges Einfamilienhaus mit Satteldach und ggfs. Schleppgauben machen (lassen).
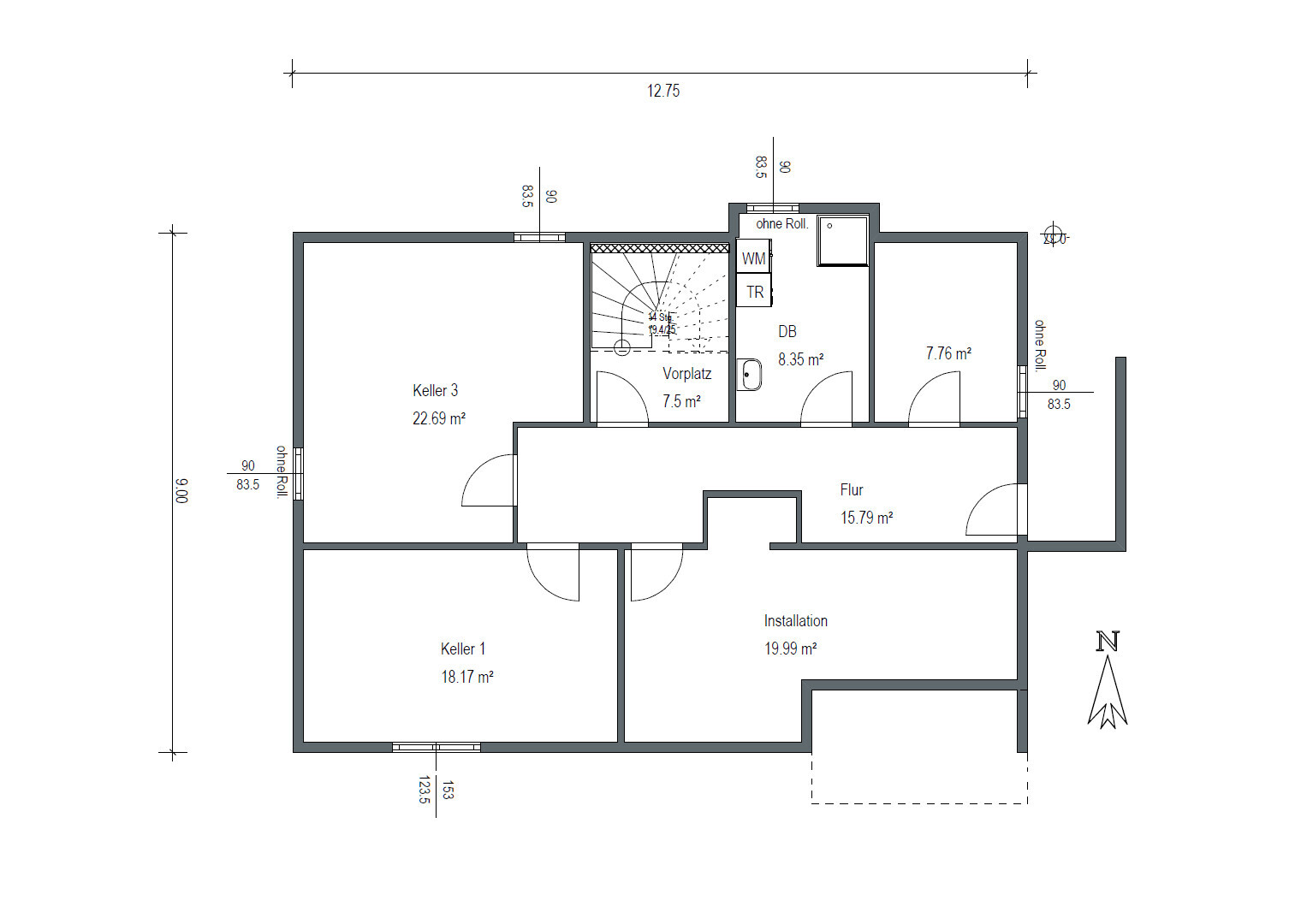
Keller, Geschosse: Nutzkeller (Bestand, Betonkeller), Erdgeschoss (Wohnen), Dachgeschoss (Schlafen)
Anzahl der Personen, Alter: Wir sind eine 4-köpfige Familie (Alter: 32, 30, 2, 0), ein weiteres Kind geplant
Raumbedarf im EG, OG:
Erdgeschoss: Wohnzimmer, Küche (ggfs. mit Speis), Raum für Homeoffice oder Gästezimmer, Gäste-WC mit Dusche, Garderobe
Dachgeschoss: Elternschlafzimmer, 3x Kinderschlafzimmer, Bad
Büro: Familiennutzung oder Homeoffice: Homeoffice (zu 100% für mich)
Schlafgäste pro Jahr: Wenige, <5 Personen/Nächte
offene oder geschlossene Architektur: Tendenziell eher geschlossen. Möglichkeit zur Trennung von Küche und Wohnzimmer wäre wünschenswert.
konservativ oder moderne Bauweise: Modern
offene Küche, Kochinsel: Kochinsel kein Muss. Teilweise offene Küche: Möglichkeit zur Trennung vom Wohnzimmer wäre gut.
Anzahl Essplätze: 5-8
Kamin: Nur falls Budget ausreichend, kein Muss
Musik/Stereowand: Nein
Balkon, Dachterrasse: Nein
Garage, Carport: Doppelgarage
Nutzgarten, Treibhaus: Nein
weitere Wünsche/Besonderheiten/Tagesablauf, gern auch Begründungen, warum dieses oder das nicht sein soll: Technikraum soll im Bestandskeller untergebracht werden (z.B. im bisherigen Raum für die Ölheizung). Wichtig ist uns ein sinnvolles Wegekonzept: Haustür/DG-Treppe/Keller-Treppe. Im Idealfall kurze Wege zwischen Garage und Wohnung, sowie gute Erreichbarkeit der Räume innerhalb der Wohnung.
Hausentwurf
Von wem stammt die Planung: Erster Entwurf der Fertighausfirma nach Vorstellungstermin
Was gefällt besonders? Warum?: (Fast) alle Raumwünsche erfüllt. Gute Zugänglichkeit der Räume im Obergeschoss durch zentral gelegene Empore. Durch neue Haustürposition (West statt Nord) kurze Wege von Garage ins Haus. Großzügiger Garderobenbereich. Wohnzimmer in Süd/Ost-Ausrichtung mit schöner Aussicht.
Was gefällt nicht? Warum?: Der Entwurf entstand nach einer ersten Durchsprache des Bauvorhabens. Ein paar Ideen/Vorstellungen sind sich erst im Nachgang Bauherrenseitig entstanden, bzw. haben sich verändert:
- Bestehende Betontreppe im Bestandskeller wird nicht genutzt, hierdurch entstehen Mehrkosten zur Ertüchtigung des Kellers (neue Treppe, neues Raumkonzept).
- (Kleine) Speisekammer für Lebensmittel/Vorräte im EG wäre toll
- Bessere Trennung von Küche und Wohnzimmer wünschenswert
Preisschätzung laut Architekt/Planer: 520T€, schlüsselfertig (inkl. 10kWp Photovoltaik mit 10kW Speicher, Frischluftheizung mit Luft/luftwärmepumpe), nicht inkludiert: Abriss Bestandsbungalow, Doppelgarage, Baunebenkosten
Persönliches Preislimit fürs Haus, inkl. Ausstattung: 700T€ (grob überschlagen: Abriss bis auf OK Keller: 30T€, Haus: 530T€, Baunebenkosten inkl. Statik Keller: 50T€, Doppelgarage: 30T€, Küche/Möbel: 40T€, Außenanlage: 20T€)
favorisierte Heiztechnik: Wärmepumpe mit Fußbodenheizung. Falls im Budget darstellbar: Sole/Wasser-Wärmepumpe mit Tiefenbohrung. Die Fertighausfirma favorisiert dagegen die Frischluftheizung.
Wenn Ihr verzichten müsst, auf welche Details/Ausbauten
-könnt Ihr verzichten: Kamin, neue Kellertreppe
-könnt Ihr nicht verzichten: Homeoffice-Büro
Warum ist der Entwurf so geworden, wie er jetzt ist?
Individualisierter Entwurf vom Fertighausanbieter passend zu unserer Grundfläche (vorgegeben durch Bestandskeller) nach Durchsprache unserer groben (Raum)-Wünsche









wir stehen relativ am Anfang unseres Bauvorhabens und müssen noch viele Grundsatzfragen klären. Dennoch möchte ich das Projekt hier einmal vorstellen.
Wir sind seit kurzem Besitzer eines Fertighaus-Bungalows der Firma Streif Haus, Baujahr 1987. Es ist mit einem Betonkeller (Fa. Betonkemmler) vollunterkellert.
Unser Vorhaben ist nun, den Bungalow bis auf Oberkante Keller abzureisen und ein neues Haus für unsere Familie (zu viert, irgendwann zu fünft) darauf zu bauen. Der Bestandskeller (sehr gute Bausubstanz) soll dabei als Nutzkeller inkl. Technikraum integriert werden. Dabei soll auch die Heiztechnik von Ölheizung auf Wärmepumpe modernisiert werden.
Aktuell stehen wir in Kontakt sowohl mit Fertighausanbietern (Weberhaus, Danwood) als auch mit Massivbau-Firmen (Denkinger). Die Immobilie steht in Baden-Württemberg (Südbaden).
Auch wenn der Grundriss bisher nur ein erster Entwurf darstellt, möchte ich ihn hier schon der Kritik preisgeben (Steckbrief siehe unten).
Insbesondere erhoffe ich mir aber auch Denkanstöße bei folgenden grundsätzlichen Fragen zu erhalten:
- Hat ein Mitglied der Forumsgemeinde bereits Erfahrung sammeln können mit dem Bauen auf Bestandskeller?
- Gibt es grundsätzlich eine zu favorisierende Bauweise für unser Vorhaben? Wir sind noch sehr unentschlossen ob Fertighaus (Holzständer) oder Stein-auf-Stein-Massiv.
- In den bisherigen Gesprächen mit den Baufirmen haben wir eine Doppelgarage noch nicht thematisiert, diese wird jedoch gebraucht. Wo ergibt diese mehr Sinn: Nord-westlich oder Süd-westlich (direkt an die Nachbargarage)?
- Inwieweit kann das Projekt als Sanierung mit Teilabriss baurechtlich behandelt werden? Hintergrund: Gibt es für (noch) Möglichkeiten zur Förderung?
- Was wir im Grundriss gerne berücksichtigt sehen möchten sind kurze Wege ins/im Haus. Daher wurde der Haupteingang von der Nordseite auf die Westseite gelegt. Da er dort allerdings an der kurzen Hausseite liegt, ergeben sich mehr Flurfläche und längere Wege im Haus (z.B. von Haustür zur Treppe ins OG). Aber einen "Tod" muss man bekanntlich sterben - was ist eure Meinung: Haustür im Norden oder im Westen?
Hier nun noch der Steckbrief (stichwortartig).
Vielen Dank schon einmal für's Reindenken, Kommentieren und Kritisieren. Über die weitere Entwicklung werde ich dann im Thread gerne berichten.
Bebauungsplan/Einschränkungen
Größe des Grundstücks: 615m²
Hang: Nord/Süd: <0,5m auf 18m, West-Ost: ca. 2m auf 33m (siehe Höhenverlauf)
Grundflächenzahl: Kein Bebauungsplan (§34 Baugesetzbuch). In der unmittelbaren Nachbarschaft gibt es tlw. sehr großzügig bebaute Grundstücke. Wir möchten die Grundfläche des Bestandsgebäudes nicht verändern, aber eine Doppelgarage (bisher nicht vorhanden) dazunehmen.
Geschossflächenzahl: Kein Bebauungsplan (§34 Baugesetzbuch)
Baufenster, Baulinie und -grenze: Kein Bebauungsplan (§34 Baugesetzbuch). Grundstücksgrenzen und Bestandsimmobilie siehe Luftaufnahme im Anhang
Randbebauung: Keine
Anzahl Stellplatz: keine
Geschossigkeit: 1,5-geschossig
Dachform: Satteldach
Stilrichtung: Modernes Einfamilienhaus
Ausrichtung: siehe Luftaufnahme. Eingang (aktuell): Norden
Maximale Höhen/Begrenzungen: Kein Bebauungsplan
Direkte Nachbarschaft: Nördlicher Nachbar: 2-geschossig mit Flachdach. Südlich: 1,5-geschossig mit Walmdach, Westlich: 1,5-geschossig mit Satteldach
Anforderungen der Bauherren
Stilrichtung, Dachform, Gebäudetyp: Wir möchten aus dem bestehenden Bungalow ein klassisches 1,5-geschossiges Einfamilienhaus mit Satteldach und ggfs. Schleppgauben machen (lassen).
Keller, Geschosse: Nutzkeller (Bestand, Betonkeller), Erdgeschoss (Wohnen), Dachgeschoss (Schlafen)
Anzahl der Personen, Alter: Wir sind eine 4-köpfige Familie (Alter: 32, 30, 2, 0), ein weiteres Kind geplant
Raumbedarf im EG, OG:
Erdgeschoss: Wohnzimmer, Küche (ggfs. mit Speis), Raum für Homeoffice oder Gästezimmer, Gäste-WC mit Dusche, Garderobe
Dachgeschoss: Elternschlafzimmer, 3x Kinderschlafzimmer, Bad
Büro: Familiennutzung oder Homeoffice: Homeoffice (zu 100% für mich)
Schlafgäste pro Jahr: Wenige, <5 Personen/Nächte
offene oder geschlossene Architektur: Tendenziell eher geschlossen. Möglichkeit zur Trennung von Küche und Wohnzimmer wäre wünschenswert.
konservativ oder moderne Bauweise: Modern
offene Küche, Kochinsel: Kochinsel kein Muss. Teilweise offene Küche: Möglichkeit zur Trennung vom Wohnzimmer wäre gut.
Anzahl Essplätze: 5-8
Kamin: Nur falls Budget ausreichend, kein Muss
Musik/Stereowand: Nein
Balkon, Dachterrasse: Nein
Garage, Carport: Doppelgarage
Nutzgarten, Treibhaus: Nein
weitere Wünsche/Besonderheiten/Tagesablauf, gern auch Begründungen, warum dieses oder das nicht sein soll: Technikraum soll im Bestandskeller untergebracht werden (z.B. im bisherigen Raum für die Ölheizung). Wichtig ist uns ein sinnvolles Wegekonzept: Haustür/DG-Treppe/Keller-Treppe. Im Idealfall kurze Wege zwischen Garage und Wohnung, sowie gute Erreichbarkeit der Räume innerhalb der Wohnung.
Hausentwurf
Von wem stammt die Planung: Erster Entwurf der Fertighausfirma nach Vorstellungstermin
Was gefällt besonders? Warum?: (Fast) alle Raumwünsche erfüllt. Gute Zugänglichkeit der Räume im Obergeschoss durch zentral gelegene Empore. Durch neue Haustürposition (West statt Nord) kurze Wege von Garage ins Haus. Großzügiger Garderobenbereich. Wohnzimmer in Süd/Ost-Ausrichtung mit schöner Aussicht.
Was gefällt nicht? Warum?: Der Entwurf entstand nach einer ersten Durchsprache des Bauvorhabens. Ein paar Ideen/Vorstellungen sind sich erst im Nachgang Bauherrenseitig entstanden, bzw. haben sich verändert:
- Bestehende Betontreppe im Bestandskeller wird nicht genutzt, hierdurch entstehen Mehrkosten zur Ertüchtigung des Kellers (neue Treppe, neues Raumkonzept).
- (Kleine) Speisekammer für Lebensmittel/Vorräte im EG wäre toll
- Bessere Trennung von Küche und Wohnzimmer wünschenswert
Preisschätzung laut Architekt/Planer: 520T€, schlüsselfertig (inkl. 10kWp Photovoltaik mit 10kW Speicher, Frischluftheizung mit Luft/luftwärmepumpe), nicht inkludiert: Abriss Bestandsbungalow, Doppelgarage, Baunebenkosten
Persönliches Preislimit fürs Haus, inkl. Ausstattung: 700T€ (grob überschlagen: Abriss bis auf OK Keller: 30T€, Haus: 530T€, Baunebenkosten inkl. Statik Keller: 50T€, Doppelgarage: 30T€, Küche/Möbel: 40T€, Außenanlage: 20T€)
favorisierte Heiztechnik: Wärmepumpe mit Fußbodenheizung. Falls im Budget darstellbar: Sole/Wasser-Wärmepumpe mit Tiefenbohrung. Die Fertighausfirma favorisiert dagegen die Frischluftheizung.
Wenn Ihr verzichten müsst, auf welche Details/Ausbauten
-könnt Ihr verzichten: Kamin, neue Kellertreppe
-könnt Ihr nicht verzichten: Homeoffice-Büro
Warum ist der Entwurf so geworden, wie er jetzt ist?
Individualisierter Entwurf vom Fertighausanbieter passend zu unserer Grundfläche (vorgegeben durch Bestandskeller) nach Durchsprache unserer groben (Raum)-Wünsche
H
hanghaus202319.12.22 11:48Welches Bundesland?
Gibt es eine Statik vom bestehenden Keller?
Ein kompletten Abriss bei dem Baujahr?
Dachabriss und Umbau mit Kniestock und mehr Dachneigung wuerde ich hier eher zu raten.
Gibt es eine Statik vom bestehenden Keller?
Ein kompletten Abriss bei dem Baujahr?
Dachabriss und Umbau mit Kniestock und mehr Dachneigung wuerde ich hier eher zu raten.
H
hanghaus202319.12.22 12:02Frag doch mal bei Streif Haus nach ob die das Dach umbauen können. MMn sollte das kein Problem sein. Darfst aber nicht davon reden, dass Du einen kompletten Neubau planst.
Bei der Gelegenheit unbedingt nach der Statik vom bestehenden Haus und Keller fragen. Die brauchst sowieso.
Bei der Gelegenheit unbedingt nach der Statik vom bestehenden Haus und Keller fragen. Die brauchst sowieso.
Ein Streif Haus aus 1987 gegen ein neues Danwood auszuwechseln, bliebe qualitativ "ohne Gewinn" - das wäre eine Grundrissumgestaltung für eine happige Portion von Geld, das dem zufolge bei Euch keine Rolex spielt ???
"Massiv" ist aber nicht mit "besser" gleichzusetzen. Das Unternehmen Streif Haus gibt es noch, ein Holzrahmenfertighaus kann sowohl der Hersteller als auch ein anderer Zimmereibetrieb umgestalten (auch bei Holz gibt es tragende, aussteifende und rein raumbildenende Wände) sowie aufstocken. Ich würde mir angesichts der Unmenge an Heidengeld sehr wohlwollend überlegen, ob man sich nicht doch besser mit dem Potential der vorhandenen Kernsubstanz arrangiert. Dein Erstentwurf geht m.E. entschieden zu wenig auf den "geschenkten Gaul" ein. Gerne berate ich dazu näher, hier im Forum ist meine umfangreichste Sammlung zu Deinem Thema im Beitrag https://www.hausbau-forum.de/threads/angebot-ueber-ytong-bausatzhaus-bau-auf-bestehenden-keller.39957/page-2#post-514506 zusammengefaßt, meine weiteren Lesetipps für Dich wären https://www.hausbau-forum.de/threads/statiker-fuer-grobe-einschaetzung-zur-tragfaehigkeit-gesucht.38054/ und https://www.hausbau-forum.de/threads/neubau-massivhaus-auf-bestandskeller.41443/ - somit hast Du hier schon´mal den Rundumschlag an Grundbibliothek zu mehreren in unterschiedlicher Weise ähnlichen Fällen bzw. Fragestellungen.
https://www.instagram.com/11antgmxde/
https://www.linkedin.com/company/bauen-jetzt/
"Massiv" ist aber nicht mit "besser" gleichzusetzen. Das Unternehmen Streif Haus gibt es noch, ein Holzrahmenfertighaus kann sowohl der Hersteller als auch ein anderer Zimmereibetrieb umgestalten (auch bei Holz gibt es tragende, aussteifende und rein raumbildenende Wände) sowie aufstocken. Ich würde mir angesichts der Unmenge an Heidengeld sehr wohlwollend überlegen, ob man sich nicht doch besser mit dem Potential der vorhandenen Kernsubstanz arrangiert. Dein Erstentwurf geht m.E. entschieden zu wenig auf den "geschenkten Gaul" ein. Gerne berate ich dazu näher, hier im Forum ist meine umfangreichste Sammlung zu Deinem Thema im Beitrag https://www.hausbau-forum.de/threads/angebot-ueber-ytong-bausatzhaus-bau-auf-bestehenden-keller.39957/page-2#post-514506 zusammengefaßt, meine weiteren Lesetipps für Dich wären https://www.hausbau-forum.de/threads/statiker-fuer-grobe-einschaetzung-zur-tragfaehigkeit-gesucht.38054/ und https://www.hausbau-forum.de/threads/neubau-massivhaus-auf-bestandskeller.41443/ - somit hast Du hier schon´mal den Rundumschlag an Grundbibliothek zu mehreren in unterschiedlicher Weise ähnlichen Fällen bzw. Fragestellungen.
https://www.instagram.com/11antgmxde/
https://www.linkedin.com/company/bauen-jetzt/
M
Mal Bauen19.12.22 16:06Danke für das Feedback.
Die Option Umbau statt Abriss hatten wir relativ schnell verworfen, auch wenn ich nach euren Rückmeldungen wieder in's Grübeln komme.
Uns erschien das Delta zwischen aktueller Substanz und unseren Wünschen zu groß. 35 Jahre ist zwar auch für ein Fertighaus "kein Alter", aber insbesondere bei der Dämmung ist es nicht mehr zeitgemäß (z.B. Außenwände 18cm dick). Da wir darüber hinaus die Heiztechnik (Fußbodenheizung) und den Grundriss entsprechend unseren Bedürfnis anpassen möchten, müssten wir das Haus komplett entkernen. Und da war die Frage, wieviel von dem "geschenkten Gaul" dann noch übrig bliebe im Geldbeutel? Uns schien es dann nicht sinnvoll bspw. "nur" 50T€ (Zahl aus der Luft gegriffen) zu sparen, um dann mit womöglich zu vielen Kompromissen zu planen, bauen und schlussendlich jahrzehntelang zu wohnen.
Aber soviel nur zu unseren Gedankengängen, vielleicht lässt sich hier durch Umbau statt Neubau mehr sparen als uns bisher bewusst war?
Statt des geschenkten Gauls nehmen wir mit dem Erhalt des (wirklich guten) Betonkellers zumindest das geschenkte Fohlen mit...
@11ant Vielen Dank für die wertvollen Lesetipps!
Die Option Umbau statt Abriss hatten wir relativ schnell verworfen, auch wenn ich nach euren Rückmeldungen wieder in's Grübeln komme.
Uns erschien das Delta zwischen aktueller Substanz und unseren Wünschen zu groß. 35 Jahre ist zwar auch für ein Fertighaus "kein Alter", aber insbesondere bei der Dämmung ist es nicht mehr zeitgemäß (z.B. Außenwände 18cm dick). Da wir darüber hinaus die Heiztechnik (Fußbodenheizung) und den Grundriss entsprechend unseren Bedürfnis anpassen möchten, müssten wir das Haus komplett entkernen. Und da war die Frage, wieviel von dem "geschenkten Gaul" dann noch übrig bliebe im Geldbeutel? Uns schien es dann nicht sinnvoll bspw. "nur" 50T€ (Zahl aus der Luft gegriffen) zu sparen, um dann mit womöglich zu vielen Kompromissen zu planen, bauen und schlussendlich jahrzehntelang zu wohnen.
Aber soviel nur zu unseren Gedankengängen, vielleicht lässt sich hier durch Umbau statt Neubau mehr sparen als uns bisher bewusst war?
Statt des geschenkten Gauls nehmen wir mit dem Erhalt des (wirklich guten) Betonkellers zumindest das geschenkte Fohlen mit...
hanghaus2023 schrieb:Baden-Württemberg
Welches Bundesland?
hanghaus2023 schrieb:Von der Kellerfirma liegt uns eine recht detaillierte 40-seitige Statikberechnungen vor. Zudem einen Standsicherheitsnachweis für den Bungalow ab Oberkante Kellerdecke. Zudem auch (weniger detaillierte) Statikberechnungen von Streif Haus Haus für das Fertighaus.
Gibt es eine Statik vom bestehenden Keller?
@11ant Vielen Dank für die wertvollen Lesetipps!
Ich kenne ein Streif Haus in der Verwandtschaft ungefähr in dem Alter von deinem. Das Haus ist in einem guten Zustand. Es gab noch nie Probleme oder größere Sanierungen - außer dass das Dach ausgebaut und mit einer großen Gaube versehen wurde. Natürlich ist es fast 40 Jahre alt und Stand Technik von vor 40 Jahren. Aber es ist noch weit weg von abbruchreif.
Ähnliche Themen