Grundriss - Hausbau 2015 - Eure Meinungen helfen ungemein

4,50 Stern(e) 4 Votes
Zuletzt aktualisiert 08.10.2025
Sie befinden sich auf der Seite 3 der Diskussion zum Thema: Grundriss - Hausbau 2015 - Eure Meinungen helfen ungemein
>> Zum 1. Beitrag <<

B

backbone23

Was denn für einen Schlauch?

Dieser Vorsprung hat null funktionalen Nutzen aber verursacht Aufwand und Kosten. Was da optisch aufgelockert wird wenn man durch die Tür auf so eine Kante zuläuft weiß ich auch nicht.

Aber das musst du wissen.
 
P

project2015

Hi.
Mit Schlauch meine ich Essen/Wohnen mit den Maßen 426*976. Der Erker (meist du als Vorsprung, oder) lockert lediglich das Wohnzimmer auf. Funktionaler Nutzen gebe ich dir recht, hat es nicht wirklich. Aber ich war in vielen solcher Häuser und mir kam das eben immer wie ein langer Schlauch vor. Eine Art Erker o.Ä. hat uns immer gefallen und wollten wir irgendwie verbauen.

Aber wie du schon sagst, es ist teuer erkaufter Raum. Deswegen bin ich ja hier auf der Suche nach Hilfe und Alternativen.
 
P

project2015

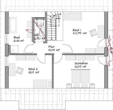
Anbei habe ich mal gefunden als Vorlage. Hier ist ebenfalls ein Erker so in der Art wie wir uns das gedacht haben. Ich kenne die Maße en Detail nicht, aber ich befürchte, dass man hier mit 10,50*9,11 nicht hinkommt. Die Treppe sitzt am Anfang, das würde bei mir bedeuten, dass mein WC mit Lüftung zur Garage sitzt... mh... ist das tragisch wenn man eh eine Lüftungsanlage verbauen will?

Nebenbei, ich dachte immer dass diese Arte der Treppe die "Grundrissfreundlichste" sei....

Zweidimensionaler Hausgrundriss mit Flur, Bad, Schlafen und zwei Kinderzimmern


Grundriss eines Hauses mit Diele, Wohnen/Essen, Küche, Gästezimmer, Bad, Technikraum
 
B

backbone23

Ach so, ich dachte der Schlauch bezog sich auf das Kinderzimmer.

Wenn du unbedingt so einen Erker willst kannst du den ja auch bei Variante 1 einplanen. Ich halte davon nichts, aber ist ja deine Sache.
 
B

Baufie

Der Erker im letzten Plan bringt null Funktionalität.

Ich würde Deine Variante 1 bevorzugen und das OG, dass soweit rausziehen so dass Du zumindest eine kleine Überdachte Terrasse hast.
 
Zuletzt aktualisiert 08.10.2025
Im Forum Grundrissplanung / Grundstücksplanung gibt es 2512 Themen mit insgesamt 87199 Beiträgen


Ähnliche Themen zu Grundriss - Hausbau 2015 - Eure Meinungen helfen ungemein
Nr.ErgebnisBeiträge
1Grundrissfrage: Tausch gerader Treppe durch L-Treppe 31
2Grundrissfrage, Treppe, Fenster, Ausrichtung 12
3Mit Erker in die Abstandsflächen - in diesem Fall zulässig? - Seite 330
4Grundriss Satteldach, Plan für den Erker 13
5Grundriss Einfamilienhaus mit Erker 22
6Gilt Traufhöhe auch für Erker? 11
7Erker in der Küche - Umsetzungsvorschläge 47
8Erker Möglich? Neubau im Neubaugebiet? 29
9Dachgaube und Erker unsymmetrisch 12
10Wohin mit der Treppe? Dachausbau Walmdachbungalow - Seite 219
11Treppe im Flur, Grundriss steht eigentlich schon :o( 20
12Was ist bei einer Treppe beachten/Unterschie Wendeluing 22
13 2 Vollgeschosse, Durchgang Garage, Hauswirtschaftsraum unter Treppe 25
14Frage zu Grundriss, insbesondere Treppe 13
15"notwendige Treppe" zum Dachgeschoss - Seite 423
16Treppe Grundriss Planung, Auftritt und Unterzug 21
17Grundrissfrage, Garage, Treppe 33
18Technikraum so klein wie möglich - Unter der Treppe? 10
19Treppe ohne Geländer geliefert und ich muss nun nachzahlen? - Seite 319
20Welche Treppe habt ihr genommen 77

Oben