Pamiko schrieb:
Ich befürchte, dass sich das Vorziehen der Garage (bzw. Haus nach hinten) sich bei den Baukosten deutlich bemerkbar macht. Das glaub ich allerdings auch.Lass mal bissl drehen die Sache.
Die kleinen Kinderzimmer waren mir die ganze Zeit ein Dorn im Auge. Deshalb noch dieser Vorschlag.
Große Kinderzimmer, große Diele, großer Garderobenschrank, große Dusche, großer Allraum, große Kochinsel - alles bissl entspannter bei gleicher Grundfläche. Ankleide war eher unwichtig - die wurde geopfert.
Danke für den erneuten Versuch, Katja.
Wir werden uns den mal in Ruhe ansehen.
Wir haben uns auch dazu entschlossen noch einen weiteren GU aufzusuchen. Wir sind zwar von dem Jetzigen überzeugt hinsichtlich Bauweise und Qualität aber bei der Planung wurde es sich dann doch zu einfach gemacht bzw. zu wenig auf unsere Wünsche eingegangen.
Mal sehen was beim nächsten GU rauskommt.
Der nächste Entwurf wird kommen...
Wir werden uns den mal in Ruhe ansehen.
Wir haben uns auch dazu entschlossen noch einen weiteren GU aufzusuchen. Wir sind zwar von dem Jetzigen überzeugt hinsichtlich Bauweise und Qualität aber bei der Planung wurde es sich dann doch zu einfach gemacht bzw. zu wenig auf unsere Wünsche eingegangen.
Mal sehen was beim nächsten GU rauskommt.
Der nächste Entwurf wird kommen...
Hallo.
Auch bei uns gibt es ein paar Neuigkeiten.
Wir waren zwischenzeitlich noch bei einem weiteren GU der uns auch sehr zusagt. Der erste Entwurf ging hier in die gleiche Richtung wie hier im Thread vom ersten GU.
Es wird jetzt noch ein zweiter Entwurf folgen.
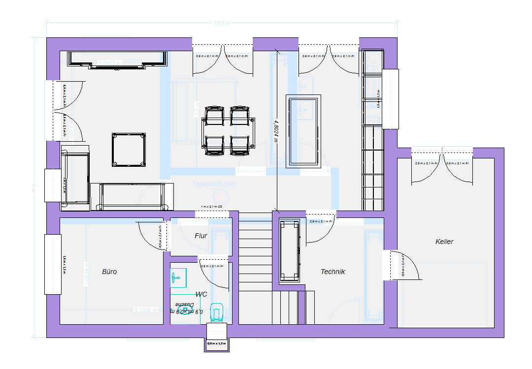
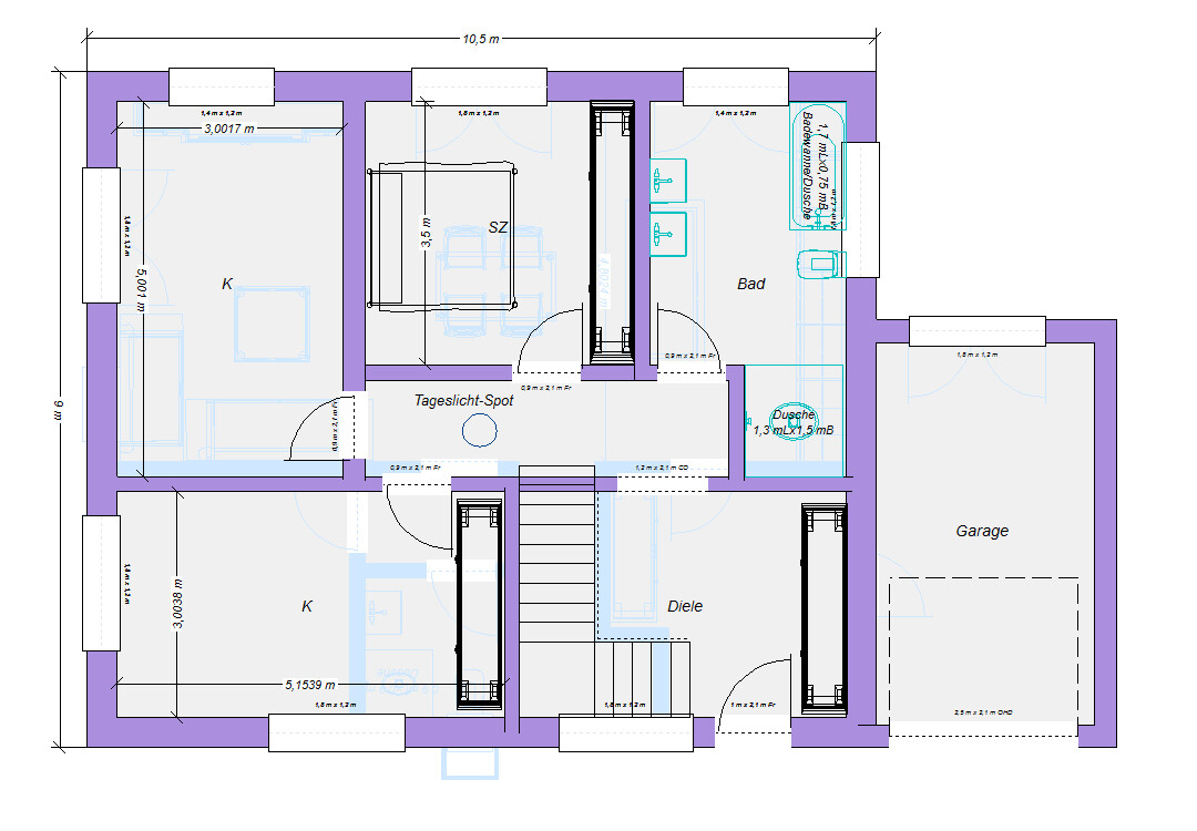
Auch vom ersten GU liegt jetzt ein neuer Entwurf vor, der die Abtrennung Eingang/Schlaf ganz gut hinbekommt.
Ich habe mir schon meine Gedanken dazu gemacht, bin aber gespannt was Ihr dazu sagt?
Erinnerung: Süden ist ungefähr plan-unten


Auch bei uns gibt es ein paar Neuigkeiten.
Wir waren zwischenzeitlich noch bei einem weiteren GU der uns auch sehr zusagt. Der erste Entwurf ging hier in die gleiche Richtung wie hier im Thread vom ersten GU.
Es wird jetzt noch ein zweiter Entwurf folgen.
Auch vom ersten GU liegt jetzt ein neuer Entwurf vor, der die Abtrennung Eingang/Schlaf ganz gut hinbekommt.
Ich habe mir schon meine Gedanken dazu gemacht, bin aber gespannt was Ihr dazu sagt?
Erinnerung: Süden ist ungefähr plan-unten
Ähnliche Themen