ᐅ Grundriss Feedback Einfamilienhaus - Weberhaus
Erstellt am: 31.03.24 10:21
L
lubawinskis31.03.24 10:21Hallo liebe Community,
seit Anfang diesen Jahres planen wir unser Fertighaus mit Weberhaus und stehen mittlerweile kurz vor der Unterschrift.
Da wir von Anfang an dieses Forum hier verfolgen um unsere Fragen zu beantworten / Ideen zu bekommen, wollten wir jetzt doch auch die Gelegenheit nutzen unseren Grundriss hochzuladen um Feedback von der Community einzuholen.
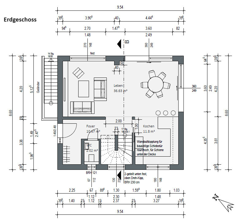
Insgesamt sind wir ganz happy mit der Planung - nur am Badezimmer feilen wir noch. Aus persönlichen / gesundheitlichen Gründen ist aber der zweite Zugang über's Schlafzimmer Pflicht auch wenn dieser ein paar m² kostet.
Die beiden Öffnungen zu Küche und Wohnzimmer werden Schiebetüren.
Viel Spaß beim Anschauen und Input geben.
Viel Glück
Stefan



seit Anfang diesen Jahres planen wir unser Fertighaus mit Weberhaus und stehen mittlerweile kurz vor der Unterschrift.
Da wir von Anfang an dieses Forum hier verfolgen um unsere Fragen zu beantworten / Ideen zu bekommen, wollten wir jetzt doch auch die Gelegenheit nutzen unseren Grundriss hochzuladen um Feedback von der Community einzuholen.
Insgesamt sind wir ganz happy mit der Planung - nur am Badezimmer feilen wir noch. Aus persönlichen / gesundheitlichen Gründen ist aber der zweite Zugang über's Schlafzimmer Pflicht auch wenn dieser ein paar m² kostet.
Die beiden Öffnungen zu Küche und Wohnzimmer werden Schiebetüren.
Viel Spaß beim Anschauen und Input geben.
Viel Glück
Stefan
L
lubawinskis31.03.24 10:31Anbei noch ein paar Fakten
Grundstück / Einschränkungen:
´762m² Grundstück in Wohnsiedlung, Altbestand, kein Hang,
20*38m, Gartenausrichtung NOO
Keine Baueinschränkungen (keine Geschossflächenzahl etc.)
1 Stellplatz
Satteldach mit 25 Grad
Anforderungen der Bauherren
Kleine Grundfläche, dafür räumliche Trennung in Leben (EG), Schlafen (OG) und Arbeiten (KG)
Zwei Personen + evtl Kind + Hund
Home Office im KG, Studio unter Umständen als Privatpraxis
Kein Kamin,
Carport wird nachträglich angebaut (keine Garage)
Offene Küche
Eher moderne Bauweise aber nicht spacy
Großes Bad mit Zugang vom Schlafzimmer
Große Dusche und breitere Gänge
Garderobe im Flur
Bett Richtung Osten
Waschmaschine im Bad
Aktueller Hausentwurf
Stammt von Weberhaus auf Basis unseres Inputs
Besonders gefällt: Man kann im EG alles öffnen und theoretisch von der Treppe in den Garten schauen
Noch unschlüssig: Das Badezimmer und die Schallbelastung im Schlafzimmer vom Waschbecken aus
Preisschätzung: 570T€ inkl. Keller (beheizt)
Grundstück / Einschränkungen:
´762m² Grundstück in Wohnsiedlung, Altbestand, kein Hang,
20*38m, Gartenausrichtung NOO
Keine Baueinschränkungen (keine Geschossflächenzahl etc.)
1 Stellplatz
Satteldach mit 25 Grad
Anforderungen der Bauherren
Kleine Grundfläche, dafür räumliche Trennung in Leben (EG), Schlafen (OG) und Arbeiten (KG)
Zwei Personen + evtl Kind + Hund
Home Office im KG, Studio unter Umständen als Privatpraxis
Kein Kamin,
Carport wird nachträglich angebaut (keine Garage)
Offene Küche
Eher moderne Bauweise aber nicht spacy
Großes Bad mit Zugang vom Schlafzimmer
Große Dusche und breitere Gänge
Garderobe im Flur
Bett Richtung Osten
Waschmaschine im Bad
Aktueller Hausentwurf
Stammt von Weberhaus auf Basis unseres Inputs
Besonders gefällt: Man kann im EG alles öffnen und theoretisch von der Treppe in den Garten schauen
Noch unschlüssig: Das Badezimmer und die Schallbelastung im Schlafzimmer vom Waschbecken aus
Preisschätzung: 570T€ inkl. Keller (beheizt)
M
masterflok31.03.24 17:03Das Bad ist gruselig, vor allem diese tote Ecke mit der Waschmaschine. Dann lieber die Dusche in die Ecke platzieren.
Wenn man im Schlafzimmer auf der rechten Bettkante sitzt kann man direkt auf die Klo Schüssel schauen, ein Traum.
Das Schlafzimmer ist mit dem Ankleidebereich 25qm groß. Werdet ihr von einem Architekten oder nur von einem Verkäufer beraten?
Warum muss es ausgerechnet ein Fertighaus sein? An eurem Grundriss sieht man sehr schön, das man mit der Brechstange versucht eure Wünsche in den Standardgrundgriss. Zumal die 570tEuro alles andere als günstig sind.
Wenn man im Schlafzimmer auf der rechten Bettkante sitzt kann man direkt auf die Klo Schüssel schauen, ein Traum.
Das Schlafzimmer ist mit dem Ankleidebereich 25qm groß. Werdet ihr von einem Architekten oder nur von einem Verkäufer beraten?
Warum muss es ausgerechnet ein Fertighaus sein? An eurem Grundriss sieht man sehr schön, das man mit der Brechstange versucht eure Wünsche in den Standardgrundgriss. Zumal die 570tEuro alles andere als günstig sind.
Hier lohnt keine Diskussion, da man weder Lageplan hat noch weiß wie das Haus im Grundstück eingeordnet ist.
lubawinskis schrieb:Als Privatpraxis von was? Gewerbe erlaubt lt. Bebauungsplan? Fluchtwege von der Praxis? Zugang Praxis durch die Privatetage?
Home Office im KG, Studio unter Umständen als Privatpraxis
Ich muss @masterflok zu seinem ersten Satz beipflichten.
Was ist, wenn doch noch ein Kind kommt - das darf dann neben der Waschmaschine und der Dusche schlafen…
Wenn es ein 109qm Reihenhaus wäre, dann lebt man damit… aber wenn man ein Weberhaus bezahlt, würde ich mehr in die Planung investieren.
.
Ich stolpere so ein bisschen über diesen Satz:
Die zweite Schiebetür im WZ wäre wo?
Ich glaube, hier werden Schiebetüren Zauber zugesprochen. Sie sehen stylisch aus, ja. Aber man kann es auch übertreiben. Praktisch halte ich sie nicht (ich habe auch eine) und ist eher ein Eyecatcher, von dem man nicht zu viel erwarten sollte. Sie tut meist halt nicht, was eine Tür soll.
Leider fehlt der Lageplan und auch die Angabe, wo später der Carport hin soll. Von wo wäre denn das Grundstück zu begehen, und ist es so, dass auch Patienten (Praxis) die Außentreppe zum Keller gehen sollen?
Viel konstruktive Kritik kann man also nicht geben, aber den Hinweis, Bäder Küche bei der Terrasse und ggf die Räume in der Ausrichtung verändern. Dann hinsichtlich eines Hundes die Treppe bedenken und den Schlafplatz des Hundes, ggf Dusche im EG oder eben da, wo man mit dem Hund reinkommt. Da sind mir Kellertreppe und Eingangsbereich zu zerklüftet wie auch das Bad im Keller zu weit entfernt.
Bedenke, dass jede Toilette nach oben aus dem Dach entlüftet werden muss.
Und ja, wenn es ein Kind geben sollte, dann sollte das Kinderzimmer auch im Verhältnis wertschätzend zu den anderen Räumen passen.
Zur Hauptfrage Bad, ist ja einiges gesagt. Dusche mit L-Variante, dahinter dann die Toi, Waschtisch mit seitlichem Fenster und die Waschmaschine sollte auch nicht gerade ein Störfaktor im Wohlfühlbad sein.
lubawinskis schrieb:Ich würde mir eher Gedanken um diese Schiebetür machen, die alles andere als schalldicht ist. Zudem ist unter dem Bad ein Aufenthaltsraum (Essbereich), der jetzt nicht unbedingt von der Entwässerung des Bades profitiert. Durch die zwei Fensterseiten gibt es dazu kaum Möglichkeiten, die Fäkalien abzuleiten. Das Raumgefühl eines gewünscht großen Bades wird durch die wuchtige gemauerte Dusche mittendrin genommen.
Das Badezimmer und die Schallbelastung im Schlafzimmer vom Waschbecken aus
Was ist, wenn doch noch ein Kind kommt - das darf dann neben der Waschmaschine und der Dusche schlafen…
Wenn es ein 109qm Reihenhaus wäre, dann lebt man damit… aber wenn man ein Weberhaus bezahlt, würde ich mehr in die Planung investieren.
.
Ich stolpere so ein bisschen über diesen Satz:
lubawinskis schrieb:Ob nun Inkontinenz, Gehbehinderung, oder was auch welche Einschränkungen es sein mögen: das ganze Haus ist nicht für Einschränkungen gebaut. Man schaut im Bad beim Reinkommen auf den Thron, mehrere Engstellen und Ecken sind künstlich eingebaut, im Flur bekommt man Platzangst. Im EG stört der Küchenzipfel, dann muss man ja fragen, warum überall undichte schwere Schiebetüren verplant werden.
Aus persönlichen / gesundheitlichen Gründen ist aber der zweite Zugang über's Schlafzimmer Pflicht auch wenn dieser ein paar m² kostet.
lubawinskis schrieb:Wäre es nicht schön, es auch praktisch zu haben? Was ist denn gewünscht? Abgeschlossenheit oder Offenheit? Optionen sind ja gut, aber meist nicht beides optimiert.
Man kann im EG alles öffnen und theoretisch von der Treppe in den Garten schauen
Die zweite Schiebetür im WZ wäre wo?
Ich glaube, hier werden Schiebetüren Zauber zugesprochen. Sie sehen stylisch aus, ja. Aber man kann es auch übertreiben. Praktisch halte ich sie nicht (ich habe auch eine) und ist eher ein Eyecatcher, von dem man nicht zu viel erwarten sollte. Sie tut meist halt nicht, was eine Tür soll.
lubawinskis schrieb:Bei diesen Angaben (der Rest ist ja leider etwas mau), fällt mir alles ein, aber kein kompaktes 3-geschossiges Haus.
´762m² Grundstück in Wohnsiedlung, Altbestand, kein Hang,
20*38m, Gartenausrichtung NOO
Keine Baueinschränkungen (keine Geschossflächenzahl etc.)
lubawinskis schrieb:Ich finde es schier unpraktisch. Ich bin zwar auch kein Freund von viel überbaute Fläche, aber mit der richtigen Zonierung sollte ein grössenoptimierter 2-Geschosser besser passen.
Kleine Grundfläche, dafür räumliche Trennung in Leben (EG), Schlafen (OG) und Arbeiten (KG)
Zwei Personen + evtl Kind + Hund
Leider fehlt der Lageplan und auch die Angabe, wo später der Carport hin soll. Von wo wäre denn das Grundstück zu begehen, und ist es so, dass auch Patienten (Praxis) die Außentreppe zum Keller gehen sollen?
Viel konstruktive Kritik kann man also nicht geben, aber den Hinweis, Bäder Küche bei der Terrasse und ggf die Räume in der Ausrichtung verändern. Dann hinsichtlich eines Hundes die Treppe bedenken und den Schlafplatz des Hundes, ggf Dusche im EG oder eben da, wo man mit dem Hund reinkommt. Da sind mir Kellertreppe und Eingangsbereich zu zerklüftet wie auch das Bad im Keller zu weit entfernt.
Bedenke, dass jede Toilette nach oben aus dem Dach entlüftet werden muss.
Und ja, wenn es ein Kind geben sollte, dann sollte das Kinderzimmer auch im Verhältnis wertschätzend zu den anderen Räumen passen.
Zur Hauptfrage Bad, ist ja einiges gesagt. Dusche mit L-Variante, dahinter dann die Toi, Waschtisch mit seitlichem Fenster und die Waschmaschine sollte auch nicht gerade ein Störfaktor im Wohlfühlbad sein.
Ähnliche Themen