ᐅ Grundriss und Hausplanung - bitte um eure Meinung!
Erstellt am: 29.05.15 07:23
Hallo zusammen,
meine Freundin und ich planen im kommenden Jahr mit dem Bau eines Hauses zu beginnen. Vor drei Wochen haben wir uns nun ein Grundstück reserviert und angezahlt. Sobald die Gemeinde das Gebiet erschlossen hat, haben wir 5 Jahre Zeit unseren Traum vom Haus zu verwirklichen. Das Gebiet wird sich im Kreis Simmern befinden.
Die letzten Wochenenden haben wir mit vielen Gesprächen bei Fertighausherstellern verbracht und es sind noch viele weitere in Planung. Da wir nicht unter Zeitdruck stehen, will ich mir auf Anraten meines Vaters auch mal ein paar Angebote für ein Massivhaus geben lassen. Nun aber erst mal zu unseren Vorstellungen...
Zum Grundstück:
650qm groß, ca. 20x30m. Die genauen Maße bekommen wir, sobald erschlossen wird.
Das Grundstück ist ebenerdig und hat kein Gefälle.
Die Straße liegt beim Grundstück im Norden, unser Garten hat Südlage.
Bebauungsplan:
Firsthöhe 10m
Traufhöhe 6m
Grundflächenzahl 0,4
Geschossflächenzahl 0,8
Zum Haus:
Größe: 160-180qm.
Kinderzimmer: 2 Stück mit je ca. 18 qm.
Büro: min 14qm um ihn zur Not als Kinderzimmer umrüsten zu können.
Schlafzimmer: ohne separaten Anziehbereich, lieber größere Grundfläche.
Badezimmer: nur eins oben und eins unten, beide mit Dusche, oben noch mit Eckwanne.
Keller: keinen.
Garage: Doppelgarage mit Stauraummöglichkeit.
Dach: Bevorzugt ist ein Walmdach aber könnten uns auch ein Satteldach vorstellen.
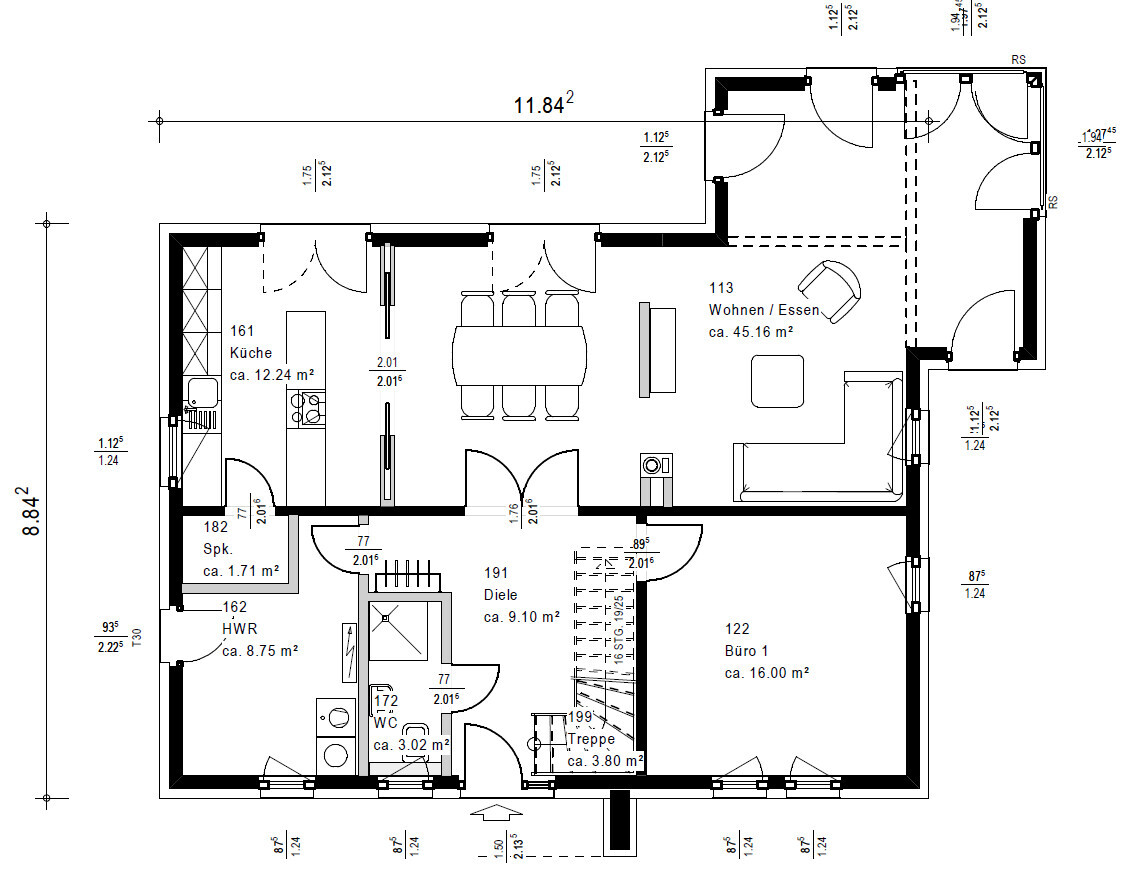
Kamin ist in der Zeichnung im Wohnzimmer vorhanden.
Heizung:
Gasbrennwert mit Wärmerückgewinnung
Zum Grundriss:
186qm
Kosten für den Grundriss wären um die 280.000€, fast Schlüsselfertig bis auf Bodenbeläge und Tapezieren.
Ohne den extra Erker kommt er uns ca. 30.000€ billiger. Die Frage ist hier, lohnt er sich? Macht das Haus nun mal größer und man hat einen Süd/West Balkon.
Eigenkapital:
Im Moment ca. 80.000€
Zu uns:
Beide gerade 30 geworden.
Kinder: Keine aber Zwei sollen es werden.
Da ich bisher nur dieses eine Angebot mit Grundriss von einem Hersteller erhalten habe, habe ich noch keine wirklichen Vergleichsmöglichkeiten. Ich hoffe das sich das bald ändern wird.
Was würdet ihr anders machen oder verbessern?
Soll ich so ein Haus lieber als Fertighaus oder Massiv bauen?
Kann jemand einen bestimmten Anbieter besonders empfehlen?
Ich habe schon mehrere Nächte damit verbracht im Internet genau nach den Antworten auf solche Fragen zu stoßen und stelle sie mir doch immer wieder.
Danke für eure konstruktive Meinung.
Lg
Invi


meine Freundin und ich planen im kommenden Jahr mit dem Bau eines Hauses zu beginnen. Vor drei Wochen haben wir uns nun ein Grundstück reserviert und angezahlt. Sobald die Gemeinde das Gebiet erschlossen hat, haben wir 5 Jahre Zeit unseren Traum vom Haus zu verwirklichen. Das Gebiet wird sich im Kreis Simmern befinden.
Die letzten Wochenenden haben wir mit vielen Gesprächen bei Fertighausherstellern verbracht und es sind noch viele weitere in Planung. Da wir nicht unter Zeitdruck stehen, will ich mir auf Anraten meines Vaters auch mal ein paar Angebote für ein Massivhaus geben lassen. Nun aber erst mal zu unseren Vorstellungen...
Zum Grundstück:
650qm groß, ca. 20x30m. Die genauen Maße bekommen wir, sobald erschlossen wird.
Das Grundstück ist ebenerdig und hat kein Gefälle.
Die Straße liegt beim Grundstück im Norden, unser Garten hat Südlage.
Bebauungsplan:
Firsthöhe 10m
Traufhöhe 6m
Grundflächenzahl 0,4
Geschossflächenzahl 0,8
Zum Haus:
Größe: 160-180qm.
Kinderzimmer: 2 Stück mit je ca. 18 qm.
Büro: min 14qm um ihn zur Not als Kinderzimmer umrüsten zu können.
Schlafzimmer: ohne separaten Anziehbereich, lieber größere Grundfläche.
Badezimmer: nur eins oben und eins unten, beide mit Dusche, oben noch mit Eckwanne.
Keller: keinen.
Garage: Doppelgarage mit Stauraummöglichkeit.
Dach: Bevorzugt ist ein Walmdach aber könnten uns auch ein Satteldach vorstellen.
Kamin ist in der Zeichnung im Wohnzimmer vorhanden.
Heizung:
Gasbrennwert mit Wärmerückgewinnung
Zum Grundriss:
186qm
Kosten für den Grundriss wären um die 280.000€, fast Schlüsselfertig bis auf Bodenbeläge und Tapezieren.
Ohne den extra Erker kommt er uns ca. 30.000€ billiger. Die Frage ist hier, lohnt er sich? Macht das Haus nun mal größer und man hat einen Süd/West Balkon.
Eigenkapital:
Im Moment ca. 80.000€
Zu uns:
Beide gerade 30 geworden.
Kinder: Keine aber Zwei sollen es werden.
Da ich bisher nur dieses eine Angebot mit Grundriss von einem Hersteller erhalten habe, habe ich noch keine wirklichen Vergleichsmöglichkeiten. Ich hoffe das sich das bald ändern wird.
Was würdet ihr anders machen oder verbessern?
Soll ich so ein Haus lieber als Fertighaus oder Massiv bauen?
Kann jemand einen bestimmten Anbieter besonders empfehlen?
Ich habe schon mehrere Nächte damit verbracht im Internet genau nach den Antworten auf solche Fragen zu stoßen und stelle sie mir doch immer wieder.
Danke für eure konstruktive Meinung.
Lg
Invi
Hallo,
erst einmal zu dem bestehenden Grundriss:
Da ihr keinen Keller plant, wäre mit die hier vorhandenen Stauflächen zu gering, überlegt euch einmal, das in euren Hauswirtschaftsraum im Erdgeschoss neben der Technik auch noch Sachen wie, Trockner, Waschmaschine, Bügelbrett, Saisonbekleidung, Deko, etc. rein müssen (evtl. ist es ja noch möglich Stauraum unter der Treppe zu schaffen). Die Speisekammer würde ich persönlich komplett weg lassen und den Platz lieber dem Hauswirtschaftsraum zu gute kommen lassen (durch das wegfallen der Speisekammer gewinnt ihr zusätzliche Wandfläche für Schränke in der Küche und damit auch mehr Stauraum).
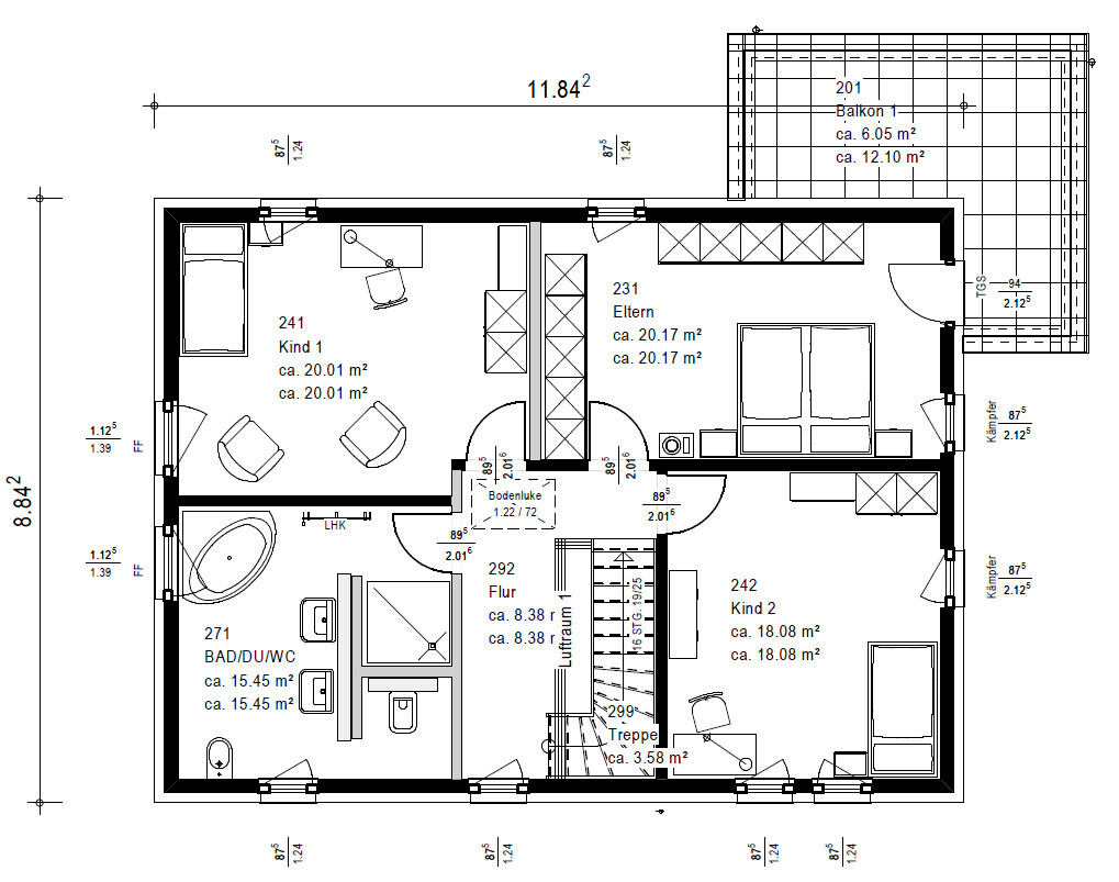
Macht euch einmal Gedanken ob ihr den Balkon wirklich nutzen werdet (und damit meine ich nicht um Wäsche aufzuhängen), ihr habt zukünftig einen Garten und meist wird dieser dann mehr genutzt, als ein Balkon der nur vom Schlafzimmer aus Zugang hat. Versucht den Erker einmal realistisch zu möblieren, den ich glaube nicht das ihr den dadurch gewonnen Mehrplatz wirklich effektiv nutzt, und nur für ein optisches aufpeppen der Außenansicht finde ich den Erker etwas teuer.
Der Garderobenbereich könnte für vier Personen später etwas eng ausfallen.
Eure Treppe wird so wie sie aktuell angeordnet ist immer als "Dreckschleuse" fungieren, da jeder Gast beim betreten mit seinen dreckigen Straßenschuhen direkt vor der Treppe eintritt und ihr immer durch diesen dreckigen Bereich müsst um ins OG zu gelangen.
Zum Thema Fertig- oder Massivbau:
Jede der Bauweisen hat seine Vor- und Nachteile die Entscheidung müsst ihr schlussendlich selbst treffen. Besichtigt doch einmal einige Häuser um ein Gefühl für das Wohnklima zu bekommen.
Zum Thema Hausanbieter:
Hilfreich ist es immer mal durch Hausbauparks zu gehen, sich auf Baublogs schlau zu machen oder auch einmal bei bekannten nachzufragen wie zufrieden diese mit ihrem Bauunternehmen waren.
LG
erst einmal zu dem bestehenden Grundriss:
Da ihr keinen Keller plant, wäre mit die hier vorhandenen Stauflächen zu gering, überlegt euch einmal, das in euren Hauswirtschaftsraum im Erdgeschoss neben der Technik auch noch Sachen wie, Trockner, Waschmaschine, Bügelbrett, Saisonbekleidung, Deko, etc. rein müssen (evtl. ist es ja noch möglich Stauraum unter der Treppe zu schaffen). Die Speisekammer würde ich persönlich komplett weg lassen und den Platz lieber dem Hauswirtschaftsraum zu gute kommen lassen (durch das wegfallen der Speisekammer gewinnt ihr zusätzliche Wandfläche für Schränke in der Küche und damit auch mehr Stauraum).
Macht euch einmal Gedanken ob ihr den Balkon wirklich nutzen werdet (und damit meine ich nicht um Wäsche aufzuhängen), ihr habt zukünftig einen Garten und meist wird dieser dann mehr genutzt, als ein Balkon der nur vom Schlafzimmer aus Zugang hat. Versucht den Erker einmal realistisch zu möblieren, den ich glaube nicht das ihr den dadurch gewonnen Mehrplatz wirklich effektiv nutzt, und nur für ein optisches aufpeppen der Außenansicht finde ich den Erker etwas teuer.
Der Garderobenbereich könnte für vier Personen später etwas eng ausfallen.
Eure Treppe wird so wie sie aktuell angeordnet ist immer als "Dreckschleuse" fungieren, da jeder Gast beim betreten mit seinen dreckigen Straßenschuhen direkt vor der Treppe eintritt und ihr immer durch diesen dreckigen Bereich müsst um ins OG zu gelangen.
Zum Thema Fertig- oder Massivbau:
Jede der Bauweisen hat seine Vor- und Nachteile die Entscheidung müsst ihr schlussendlich selbst treffen. Besichtigt doch einmal einige Häuser um ein Gefühl für das Wohnklima zu bekommen.
Zum Thema Hausanbieter:
Hilfreich ist es immer mal durch Hausbauparks zu gehen, sich auf Baublogs schlau zu machen oder auch einmal bei bekannten nachzufragen wie zufrieden diese mit ihrem Bauunternehmen waren.
LG
D
Doc.Schnaggls29.05.15 09:00Hallo,
zunächst mal zum Grundriss selbst:
Der Erker ist optisch bestimmt ein Highlight, aber wie @Dindin schon geschrieben hat schätze ich die Möblierung ebenfalls als schwierig ein. Die Nutzung des Balkons darüber ist für mich auch fraglich - insbesondere, da er nur vom Elternschlafzimmer aus begehbar ist.
Ich würde hier eher zu einem Wintergarten mit dieser Fläche tendieren.
Über die doppelflügelige Tür von der Diele in den Essbereich würde ich auch noch mal nachdenken - meine Eltern hatten auch so eine Tür, die hauptsächlich dadurch auffiel, dass die Flügel ständig irgendwo im Weg standen. In unserem Haus haben wir daher diese Türen weggelassen und "nur" einen offenen Durchgang.
Ich bezweifle auch, dass die Badaufteilung so funktioniert - im Plan sind leider keine 2 m Linien eingezeichnet - meiner Meinung nach dürfte es auf dem Weg zum WC im Hauptbad im DG sehr eng werden mit der Kopffreiheit.
Ob Ihr ein solches Haus als Fertighaus oder Massivhaus bauen lasst ist eine Entscheidung, die Euch niemand abnehmen kann.
Wir haben beispielsweise ein individuell geplantes Holzständerfertighaus von Weberhaus gebaut, allerdings auch einige andere Fertighaushersteller und Massivbauer verglichen. Mit unserem Haus und dem gesamten Bauablauf sind wir sehr zufrieden und würden auch noch mal mit Weberhaus bauen.
Bei Interesse kann ich Euch gerne den Link zu unserem Baublog zukommen lassen - dort haben wir unter anderem auch den Auswahlprozess detailliert beschrieben.
Viele Grüße,
Dirk
zunächst mal zum Grundriss selbst:
Der Erker ist optisch bestimmt ein Highlight, aber wie @Dindin schon geschrieben hat schätze ich die Möblierung ebenfalls als schwierig ein. Die Nutzung des Balkons darüber ist für mich auch fraglich - insbesondere, da er nur vom Elternschlafzimmer aus begehbar ist.
Ich würde hier eher zu einem Wintergarten mit dieser Fläche tendieren.
Über die doppelflügelige Tür von der Diele in den Essbereich würde ich auch noch mal nachdenken - meine Eltern hatten auch so eine Tür, die hauptsächlich dadurch auffiel, dass die Flügel ständig irgendwo im Weg standen. In unserem Haus haben wir daher diese Türen weggelassen und "nur" einen offenen Durchgang.
Ich bezweifle auch, dass die Badaufteilung so funktioniert - im Plan sind leider keine 2 m Linien eingezeichnet - meiner Meinung nach dürfte es auf dem Weg zum WC im Hauptbad im DG sehr eng werden mit der Kopffreiheit.
Ob Ihr ein solches Haus als Fertighaus oder Massivhaus bauen lasst ist eine Entscheidung, die Euch niemand abnehmen kann.
Wir haben beispielsweise ein individuell geplantes Holzständerfertighaus von Weberhaus gebaut, allerdings auch einige andere Fertighaushersteller und Massivbauer verglichen. Mit unserem Haus und dem gesamten Bauablauf sind wir sehr zufrieden und würden auch noch mal mit Weberhaus bauen.
Bei Interesse kann ich Euch gerne den Link zu unserem Baublog zukommen lassen - dort haben wir unter anderem auch den Auswahlprozess detailliert beschrieben.
Viele Grüße,
Dirk
Ich kann mich Dindin insbesondere in Bezug auf die Frage der Notwendigkeit des Erkers und des Balkons nur anschließen. Wenn man einen Garten hat, sitzt man in der Regel auf der Terrasse. Die Kosten für den Erker würde ich besser im Haus verwenden.
Die Möblierung im Bad oben wurde schon erwähnt, funktioniert so eher nicht.
Das Bad unten wird mit Dusche bei 3 qm eine sportliche Angelegenheit.
Wir haben damals auch eine Weile überlegt, ob massiv oder Fertighaus. Da ich in einem hellhörigen Fertighaus aus den frühen Achtzigern aufgewachsen bin, ist es am Ende ein Massivhaus geworden.
Die Möblierung im Bad oben wurde schon erwähnt, funktioniert so eher nicht.
Das Bad unten wird mit Dusche bei 3 qm eine sportliche Angelegenheit.
Wir haben damals auch eine Weile überlegt, ob massiv oder Fertighaus. Da ich in einem hellhörigen Fertighaus aus den frühen Achtzigern aufgewachsen bin, ist es am Ende ein Massivhaus geworden.
D
Doc.Schnaggls29.05.15 09:16marv45 schrieb:
Wir haben damals auch eine Weile überlegt, ob massiv oder Fertighaus. Da ich in einem hellhörigen Fertighaus aus den frühen Achtzigern aufgewachsen bin, ist es am Ende ein Massivhaus geworden. Das war für mich auch ein Thema, dass mich sehr beschäftigt hat. Bei modernen und vor allem hochwertigen Fertighäusern, ist mangelnder Schallschutz inzwischen kein Thema mehr.
Wir haben ebenfalls ein Haus in Holzständerbauweise gebaut (Einzug 2014) und sind sehr zufrieden vor allem das Wohnklima empfinden wir als sehr angenehm und Schallschutz Probleme haben wir auch keine. Aber wie gesagt ob Fertig- oder Massivbau muss jeder für sich entscheiden da es auch eine Geschmacks- und bei manchen auch Glaubensfrage ist.
Ähnliche Themen