Grundriss-Entwurf: Einfamilienhaus mit 4 Schlafzimmern und Büro, 160qm

4,60 Stern(e) 9 Votes
Zuletzt aktualisiert 19.11.2025
Sie befinden sich auf der Seite 8 der Diskussion zum Thema: Grundriss-Entwurf: Einfamilienhaus mit 4 Schlafzimmern und Büro, 160qm
>> Zum 1. Beitrag <<

S

Schorsch_baut

Oh doch, aber die gehen sich echt übel. Ich habe in Utrecht und Amsterdam gearbeitet und ich habe die Treppen in den Häusern dort gefürchtet. Zwei Grad steiler und ein cm kürzer und es wären Leitern gewesen.
 
Y

ypg

@ypg und mit Krücke, Wäschekorb, Backblech wird es eng. Meine Eltern verfluchen seit fast 40 Jahren die einzige 75 cm Tür
Ja, mit Wäschekorb oder Backblech gehe ich auch in keinen Abstellraum. Deshalb zb würde ich diese Küchendurchgänge durch Schränke in die Speis verfluchen.

Oh doch, aber die gehen sich echt übel. Ich habe in Utrecht und Amsterdam gearbeitet und ich habe die Treppen in den Häusern dort gefürchtet. Zwei Grad steiler und ein cm kürzer und es wären Leitern gewesen.
Ja, extrem platzsparende Bauweise bewährt sich heutzutage nicht. Deshalb versucht man ja, der Treppe in einem Neubau etwas mehr als Mindestmaß zu geben. Die alten Häuser in London, Amsterdam oder anderen engen Innenstädten muss man jetzt nicht zum Vorbild nehmen, wenn es auch anders geht.
 
S

Schorsch_baut

Von den alten Häusern kann man aber auch viel lernen, wenn es um Platzmanagement geht. Gerade sieht man ja viel, dass man versucht, Grundrisse aus der Niedrigzinsphase in deutlich kleinere Grundrisse zu pressen, ohne Abstriche machen zu wollen.
 
S

Schorsch_baut

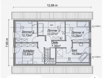
Hier wäre zum Beispiel ein Grundriss, der sehr ähnlich ist. Wpbei ich wohnen und Küche tauschen würde. Dann hätte man ein egemütliche Ecke für die Couch und Zugang zur Terrasse von Küche und Esszimmer.
Grundriss Obergeschoss mit Schlafen, Diele, Bad und Zimmer 2–4 (Flächenangaben)

Grundriss eines Hauses mit Küche, Essen, Wohnen, Zimmer 1, Diele, WC, HWR
 
J

JKL_2024

Kann ich mir gerade nicht vorstellen, wie das aussehen soll.

150qm mit 4 Schlafzimmern, Gast / Büro, Gäste-WC mit Dusche und großem Hauswirtschaftsraum, 2 Homeoffice-Plätze - ehrlich, mich wundert, dass Ihr nicht auch noch ne Speisekammer und ne Sauna auf dem Wunschzettel habt. Diese 8qm Küche - reicht Euch das auf Dauer? Den Schlafzimmerschrank - kann man da überhaupt davor stehen und den öffnen?

Also ich habe die Grundidee mal aufgenommen und etwas sortiert. Trotzdem ich auf 8,70m Tiefe gegangen bin, passt nur ein 50er Garderobenschrank. Hauswirtschaftsraum 7,7 dürfte Euch vermutlich zu klein sein, aber die 3m Küche finde ich noch schlechter.
Da stell ich mir wirklich die Frage: Ist das noch sinnvoll oder lässt man das lieber?

Anhang anzeigen 86146
Erstmal danke für die Mühe einen Entwurf zu zeichnen. Wäre auch nicht schlecht. Ich dachte immer es macht Sinn das Bad im OG über den Hauswirtschaftsraum zu planen?

Zu dem tauchen von WC und Treppe, hier eine schnelle nicht vollständige Skizze. Treppe ist an der selben Stelle, damit kein umplanen des OG.

2D Grundriss: offener Wohn- und Essbereich mit Küche links, Esstisch Mitte, Treppe unten


Zum den restlichen Einwänden. Klar versuchen wir einiges auf möglichst wenig QM unter zu bekommen. Aber dabei aber halt nur notwendige Räume. Eine Zimmer für jedes Kind und ein Büro halte ich jetzt nicht für übertrieben. Baupreise sind halt hoch, aber heißt das man sollte es dann komplett lassen? Was ist dir Alternative? Eine Wohnung in der Größe findet man heutzutage auch kaum und preislich gibt es auch kaum Unterschied.
 
Zuletzt aktualisiert 19.11.2025
Im Forum Grundrissplanung / Grundstücksplanung gibt es 2536 Themen mit insgesamt 87979 Beiträgen


Ähnliche Themen zu Grundriss-Entwurf: Einfamilienhaus mit 4 Schlafzimmern und Büro, 160qm
Nr.ErgebnisBeiträge
1Grobe Schnitzer im Grundriss? Küche zu klein? 39
2auf welchen dieser Grundrisse können wir weiter aufbauen? - Seite 30287
3Grundriss Fails Sammelthread - Grundrisse die keiner wollte 25
4Hilfe bei der Anordnung der Fenster benötigt! - Seite 432
5Passende Grundrisse zu all unseren Anforderungen - Seite 466
6Zum Notartermin verschiedene Grundrisse erhalten 10
7Welcher der Zwei Grundrisse ist besser? 20
8Beispiel-Grundrisse für lange, schmale Häuser? 18
9Geschlossene oder offene Küche ? 11
10Grundriss, Ideen zur räumlichen Trennung innerhalb der Küche 23
11Varianten für eine Ecklösung in der Küche 18
12Wohnen/Essen/Küche: Wie wohnt ihr oder werdet ihr wohnen? 52
13Planung Wohnraum & Küche eines Doppelhaushälfte in Nürnberg 13
14Probleme bei der aufteilung Küche, Essen , Wohnen 16
15Grundriss Halboffene Küche mit großem Essbereich - Detailfragen 12
16Beleuchtung in Diele und Küche: Deckeneinbau-Strahler benötigt? 19
17Feedback zur Ikea-Küche - Seite 4167
18Next 125 Küche Erfahrungen / Preiseinschätzung 39
19Heizkreise/Thermostate für Wohnen/Essen/Küche bei Fußbodenheizung/Wärmepumpe 35
20Küche über ein Jahr vor Fertigstellung kaufen? - Seite 254

Oben