Hallo zusammen,
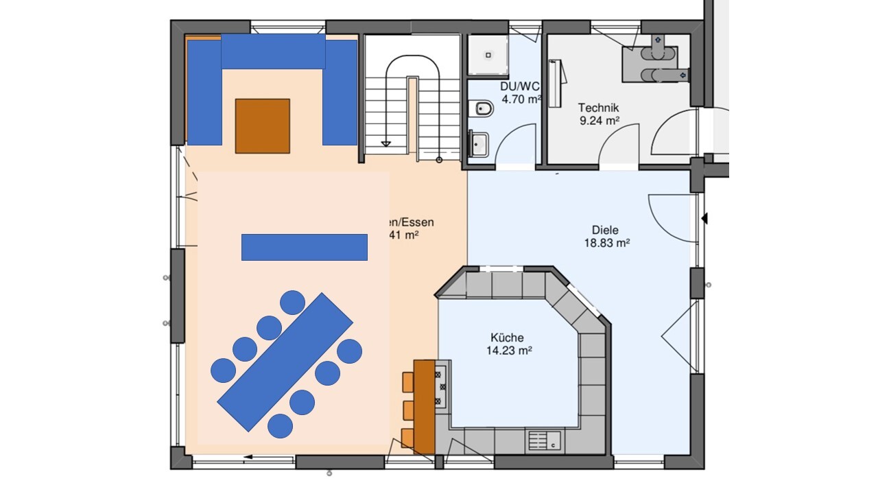
wir möchten gerne eure Einschätzung zu dem beigefügten Grundriss. Unser Wunsch ist es ein helles, offenes und großzügiges Raumgefühl zu schaffen.
Der reguläre Eingang soll über Osten erfolgen. Es gibt zudem einen Eingang von der Doppelgarage über den Technikraum.
Die Nordseite, ist die Seite, auf der sich die Treppe befindet. Das schwarze Quadrat im Wohnzimmer soll einen doppelseitigen Kamin in einer Wand (Raumtrenner) darstellen.
Wir freuen uns auf eure Gedanken, Ideen und Optimierungsvorschläge :-)

wir möchten gerne eure Einschätzung zu dem beigefügten Grundriss. Unser Wunsch ist es ein helles, offenes und großzügiges Raumgefühl zu schaffen.
Der reguläre Eingang soll über Osten erfolgen. Es gibt zudem einen Eingang von der Doppelgarage über den Technikraum.
Die Nordseite, ist die Seite, auf der sich die Treppe befindet. Das schwarze Quadrat im Wohnzimmer soll einen doppelseitigen Kamin in einer Wand (Raumtrenner) darstellen.
Wir freuen uns auf eure Gedanken, Ideen und Optimierungsvorschläge :-)
FoxyBrown schrieb:
wir möchten gerne eure Einschätzung zu dem beigefügten Grundriss.Und warum das ohne das Grundstück https://www.hausbau-forum.de/threads/trapezfoermiges-Grundstück-hausplatzierung.41719/ (und im übrigen auch ohne den Fragebogen) ?https://www.instagram.com/11antgmxde/
https://www.linkedin.com/company/bauen-jetzt/
F
FoxyBrown14.11.21 18:3811ant schrieb:
Und warum das ohne das Grundstück https://www.hausbau-forum.de/threads/trapezfoermiges-Grundstück-hausplatzierung.41719/ (und im übrigen auch ohne den Fragebogen) ?Weil das zwei verschiedene Themen sind.
Y
Ypsi aus NI14.11.21 19:15FoxyBrown schrieb:
Weil das zwei verschiedene Themen sind.Es sind leider keine zwei verschiedenen Themen. Grade das Grundstück / Lageplan gehören unweigerlich zum Grundriss. Beim Fragebogen gibt es auch die ein oder andere relevante Frage.
Wie stehst du denn zu deinem Grundriss?
Was gefällt dir? Was stört dich? Damit man weiß, wo man ansetzen kann.
Ich würde den Flurteil, der als Garderobe gedacht ist, vll separieren und einen Garderobenraum draus machen. Ich finde euren Hauswirtschaftsraum zu klein und sehe sonst auch nicht genug Abstellqualitäten.
Oben würde ich versuchen, die Privaträume über die Ankleide zu erschließen.
H
hampshire14.11.21 19:17Spontan habe ich gedacht, dass das ein amerikanisch inspirierter Grundriss aus den 80ern ist. Zu der Zeit hat man sehr gerne 45 Grad Elemente eingefügt.
Sind das Fenster von der Küche zum Flur? Kann eine echt nette Idee sein.
Gedanken dazu:
Großzügig sitzt man, wenn man ein sofa frei stellen kann. In einem großen Raum eine Sitzecke einzurichten führt zu einem ungemütlichen Betrachten von sehr viel Verkehrsfläche.
Anhand der Treppenstufen scheint mir die Deckenhöhe im Verhältnis zur Raumfläche viel zu niedrig. Das gibt schnell eine drückende große Fläche und die Großzügigkeit ist dahin.
Warum auch immer der Esstisch schräg stehen soll - wenn schon, dann passe den Winkel des Raumteilers an die Tischstellung an.
Die Treppenlösung passt zum Obergeschoss, wirkt unten aber etwas verloren.
Ein großzügiges Raumgefühl entsteht nicht automatisch durch viel Grundfläche.
Sind das Fenster von der Küche zum Flur? Kann eine echt nette Idee sein.
FoxyBrown schrieb:Diesen Wunsch kann ich voll und ganz nachvollziehen. Die Umsetzung entspricht auch diesem Wunsch und ginge in Ordnung, wenn nicht weitere Wünsche dazukämen.
Unser Wunsch ist es ein helles, offenes und großzügiges Raumgefühl zu schaffen.
Gedanken dazu:
Großzügig sitzt man, wenn man ein sofa frei stellen kann. In einem großen Raum eine Sitzecke einzurichten führt zu einem ungemütlichen Betrachten von sehr viel Verkehrsfläche.
Anhand der Treppenstufen scheint mir die Deckenhöhe im Verhältnis zur Raumfläche viel zu niedrig. Das gibt schnell eine drückende große Fläche und die Großzügigkeit ist dahin.
Warum auch immer der Esstisch schräg stehen soll - wenn schon, dann passe den Winkel des Raumteilers an die Tischstellung an.
Die Treppenlösung passt zum Obergeschoss, wirkt unten aber etwas verloren.
Ein großzügiges Raumgefühl entsteht nicht automatisch durch viel Grundfläche.
Und gerade die Schrägstellung vom Tisch lässt den Terrassenzugang zur absoluten Engstelle werden.
Die Küche ist ja eigentlich groß, aber die angedachte Küchenplanung erinnert an den Kampf in einem Boxring.
Und ja, Grundstücksplan und Fragebogen sind schon relevant. Denn in deinen Kopf können wir nicht gucken und mit den beiden Sachen werden eben viele grundlegende Informationen gegeben, die für die Grundrissbeurteilung wichtig sind.
Die Küche ist ja eigentlich groß, aber die angedachte Küchenplanung erinnert an den Kampf in einem Boxring.
Und ja, Grundstücksplan und Fragebogen sind schon relevant. Denn in deinen Kopf können wir nicht gucken und mit den beiden Sachen werden eben viele grundlegende Informationen gegeben, die für die Grundrissbeurteilung wichtig sind.
A
Alessandro15.11.21 08:22Ähnliche Themen