Grundriss Einfamilienhaus - Problemfall Küche

4,80 Stern(e) 4 Votes
Zuletzt aktualisiert 22.11.2025
Sie befinden sich auf der Seite 4 der Diskussion zum Thema: Grundriss Einfamilienhaus - Problemfall Küche
>> Zum 1. Beitrag <<

Neige

Neige

Das geht schon recht gut und Lautstärke na ja, kommt auf den Geldbeutel an, ich denke so ab 2000 Euro findet man da schon was vernünftiges.


Gesendet mit'm Handapparat
 
Uwe82

Uwe82

Oder alternativ eine Berbel Skyline, die kann man bei Bedarf runter fahren. Sieht an der Stelle wahrscheinlich komisch aus und ist auch etwas teurer. :D
 
H

herann

Hallo zusammen,

danke für die ganzen Meinungen.
Ich habe den Raum mal grob in einem 3D-Planer nachgebaut und bin zu der Überzeugung gelangt, dass das "linke" Fenster definitiv kleiner werden muss, sonst hat man keine Möglichkeiten. Aktuell tendieren wir dazu den Durchgang zum Wohnzimmer etwas zu verkleinern und eben das linke Fenster. Die Tür zum Flur, würden wie entweder als Schiebetür oder offener Durchgang gestalten - auf jeden Falls so, dass keine Tür in die Küche rein geht.

Ich habe euch nochmal die restlichen Pläne angehängt und würde mich dazu auch über Meinungen freuen. Vielleicht bedenkt ihr noch etwas, was wir vollkommen übersehen würden. Danke schonmal

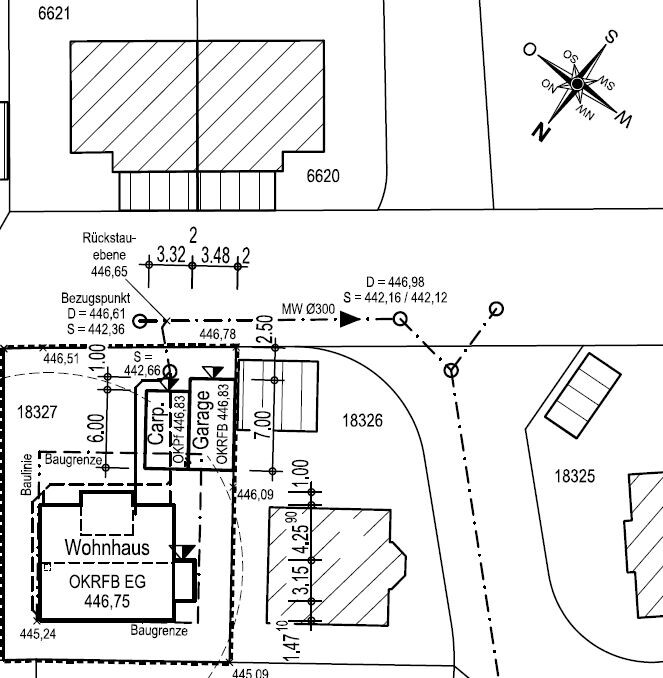
@tomtom79 Das Grundstück hat leichte Hanglage. Ich denke mit den restlichen Plänen erklären sich die Treppen dann :)

Lageplan eines Baugrundstücks mit Haus, Garage, Zufahrt und Grundstücksgrenzen


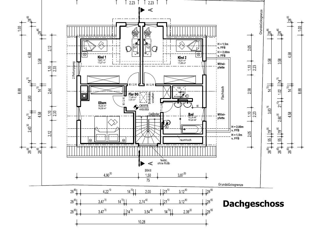
2D Grundrissplan des Dachgeschosses mit Zimmern, Flur, Treppen und Bad


Kellergeschoss Grundrissplan mit Kellerräumen, Flur und Treppenlayout


Nord-West-Ansicht eines Einfamilienhauses mit Dach, Fenstern und Treppen.


Südost-Ansicht eines Einfamilienhauses mit Dach, Fenstern, Eingang und Garage (Architekturzeichnung)
 
Zuletzt aktualisiert 22.11.2025
Im Forum Grundrissplanung / Grundstücksplanung gibt es 2535 Themen mit insgesamt 87982 Beiträgen


Ähnliche Themen zu Grundriss Einfamilienhaus - Problemfall Küche
Nr.ErgebnisBeiträge
1Schalter für Rollläden am Fenster oder an der Tür? 38
2 Küchenplanung mit tiefen Fenster - Seite 643
3Grundrissfrage, Treppe, Fenster, Ausrichtung 12
4Grundriss Einfamilienhaus geplant, Fenster gefallen uns - Seite 543
5Reedkontakt Alarmanlage Fenster. Wie habt ihr das gelöst? - Seite 212
6Umbau Kinderzimmer - Fenster in zwei Fenster aufteilen? 20
7Bodentiefe Fenster - wie Sofa stellen? - Seite 212
8Einbruchschutz - WK2 auf WK3 Fenster aufrüsten - Meldeanlage? 65
9Praxistaugliche Größe für Fenster und Rollladen 13
10Tür nach innen oder außen aufgehend? Was ist normal? - Seite 432
11Grundriss Neubau Einfamilienhaus: Fenster/Türen/Innenwände Größe/Anordnung ok? - Seite 220
12Neubau einer ca. 8x11 Doppelhaushälfte, Einschätzung Grundriss und Fenster - Seite 635
13Bungalow 135qm: Grundriss + Fenster - Seite 10104
14Fenster aus Polen oder Bosnien? - Seite 424
15Höhe Zaun zum Nachbarn und Fenster in der Grenzbebauung - Seite 259
16OG Stadtville optimieren. Fenster Bodentief - Seite 7104
17Fenster & Türen einbau nicht normgerecht - Seite 328
18Kleinstmögliches Fenster für Lüftung Hauswirtschaftsraum 22
19Badplanung 14m², Neubau, quadratisch, zwei Fenster - Seite 370
20 2 Vollgeschosse, Durchgang Garage, Hauswirtschaftsraum unter Treppe 25

Oben