M
montessalet15.01.19 10:49Bebauungsplan/Einschränkungen
Größe des Grundstücks: 597m2
Hang: 1 Meter im relevanten Baufenster (nach Westen abfallend)
Grundflächenzahl: 0.3
Geschossflächenzahl: 0.6
Baufenster, Baulinie und –grenze: Zwingender Abstand im Norden (zur Strasse): 3 Meter. Danach Baufenster 16 Meter (nach Süden). West-Ost ganzes Grundstück.
Randbebauung: Nein
Anzahl Stellplatz: 2
Geschossigkeit: 2
Dachform: Flaches Walmdach (8%)
Ausrichtung: Parallel zur Strasse im Norden – so weit wie möglich nach N und O.
Maximale Höhen/Begrenzungen: 10.5 Meter
weitere Vorgaben: Grenzbebauung für Garage möglich; ansonsten 3 Meter Abstand
Anforderungen der Bauherren
Stilrichtung, Dachform, Gebäudetyp: Modern, Walmdach (8%), Einfamilienhaus
Keller, Geschosse: Kein Keller; 2 Volletagen
Anzahl der Personen: 2 Erwachsene
EG: WZ, EZ, Offene Küche, Speis; Gästezimmer (im Plan: Büro), Dusche/WC, Technikraum
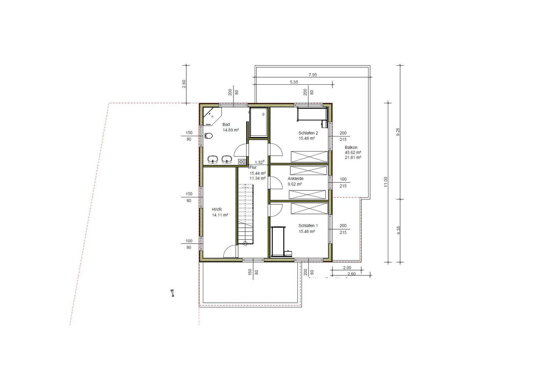
OG: 2 Schlafzimmer, Ankleide, Bad (Badewanne, Dusche, WC), Hauswirtschaftsraum
Büro: keines
Schlafgäste: wenige
offene Architektur (in Bezug auf WZ, EZ, Küche; offener Korridor; ansonsten Türen)
moderne Bauweise, offene Küche, Kochinsel
Anzahl Essplätze: 6
Kamin: Ja (moderner Kamin mit Sitzgelegenheit)
Musik/Stereowand: Nein
Balkon, Dachterrasse: Ja (s. Plan)
Garage, Carport: Ja (beides)
Nutzgarten, Treibhaus: Teil Nutzgarten wird später konzipiert
weitere Wünsche: Gedeckte Terrasse (südwestlich)
Hausentwurf
Von wem stammt die Planung: Do-it-yourself (von einem Anbieter im System erfasst)
Was gefällt besonders: Raumgrößen, Hausgröße insgesamt, Raumausrichtung; alle Wünsche abgedeckt.
Was gefällt nicht: -
favorisierte Heiztechnik: Luft-Wasser-Wärmepumpe
Verzichtoptionen
Allenfalls Reduktion Raumgrößen
Kein Verzicht: alles andere
Warum ist der Entwurf so geworden, wie er jetzt ist?
Selbst entwickelt aufgrund Raumbedürfnissen je Etage.
Was macht ihn in Euren Augen besonders gut oder schlecht: Besonders gut, dass alle unsere Anforderungen planerisch umgesetzt sind; Raumausrichtungen und –lagen erscheinen uns optimal; kurze Zufahrten.
Was ist die wichtigste/grundlegende Frage zum Grundriss: Optimierungspotenzial?
Hinweise:
- Plan Grundstück ist genordet (N ist oben)
- Grundrisse: Norden ist UNTEN (quasi die Sicht von der Strasse); Zufahrt ist von Norden
Der nun bestehende Grundriss ist Basis für die Einholung von Richtofferten (Holzrahmenbau).
Nach Selektion wird das Projekt nochmals verfeinert (insbesondere Themen Küche und Kamin - alle "Möbel" im Plan sind lediglich Platzhalter!).




Größe des Grundstücks: 597m2
Hang: 1 Meter im relevanten Baufenster (nach Westen abfallend)
Grundflächenzahl: 0.3
Geschossflächenzahl: 0.6
Baufenster, Baulinie und –grenze: Zwingender Abstand im Norden (zur Strasse): 3 Meter. Danach Baufenster 16 Meter (nach Süden). West-Ost ganzes Grundstück.
Randbebauung: Nein
Anzahl Stellplatz: 2
Geschossigkeit: 2
Dachform: Flaches Walmdach (8%)
Ausrichtung: Parallel zur Strasse im Norden – so weit wie möglich nach N und O.
Maximale Höhen/Begrenzungen: 10.5 Meter
weitere Vorgaben: Grenzbebauung für Garage möglich; ansonsten 3 Meter Abstand
Anforderungen der Bauherren
Stilrichtung, Dachform, Gebäudetyp: Modern, Walmdach (8%), Einfamilienhaus
Keller, Geschosse: Kein Keller; 2 Volletagen
Anzahl der Personen: 2 Erwachsene
EG: WZ, EZ, Offene Küche, Speis; Gästezimmer (im Plan: Büro), Dusche/WC, Technikraum
OG: 2 Schlafzimmer, Ankleide, Bad (Badewanne, Dusche, WC), Hauswirtschaftsraum
Büro: keines
Schlafgäste: wenige
offene Architektur (in Bezug auf WZ, EZ, Küche; offener Korridor; ansonsten Türen)
moderne Bauweise, offene Küche, Kochinsel
Anzahl Essplätze: 6
Kamin: Ja (moderner Kamin mit Sitzgelegenheit)
Musik/Stereowand: Nein
Balkon, Dachterrasse: Ja (s. Plan)
Garage, Carport: Ja (beides)
Nutzgarten, Treibhaus: Teil Nutzgarten wird später konzipiert
weitere Wünsche: Gedeckte Terrasse (südwestlich)
Hausentwurf
Von wem stammt die Planung: Do-it-yourself (von einem Anbieter im System erfasst)
Was gefällt besonders: Raumgrößen, Hausgröße insgesamt, Raumausrichtung; alle Wünsche abgedeckt.
Was gefällt nicht: -
favorisierte Heiztechnik: Luft-Wasser-Wärmepumpe
Verzichtoptionen
Allenfalls Reduktion Raumgrößen
Kein Verzicht: alles andere
Warum ist der Entwurf so geworden, wie er jetzt ist?
Selbst entwickelt aufgrund Raumbedürfnissen je Etage.
Was macht ihn in Euren Augen besonders gut oder schlecht: Besonders gut, dass alle unsere Anforderungen planerisch umgesetzt sind; Raumausrichtungen und –lagen erscheinen uns optimal; kurze Zufahrten.
Was ist die wichtigste/grundlegende Frage zum Grundriss: Optimierungspotenzial?
Hinweise:
- Plan Grundstück ist genordet (N ist oben)
- Grundrisse: Norden ist UNTEN (quasi die Sicht von der Strasse); Zufahrt ist von Norden
Der nun bestehende Grundriss ist Basis für die Einholung von Richtofferten (Holzrahmenbau).
Nach Selektion wird das Projekt nochmals verfeinert (insbesondere Themen Küche und Kamin - alle "Möbel" im Plan sind lediglich Platzhalter!).
M
montessalet15.01.19 12:04haydee schrieb:
Auf die schnelle
paßt in das Gästezimmer überhaupt ein Bett das breiter als 90cm ist rein?Ja, passt (1.4 Meter an die Wand): Ist völlig sekundär, das wir quasi keine Schlafgäste haben (oder anders formuliert: Das ist der unwichtigste Raum).
Du hattest halt geschrieben Gästezimmer und auf den 1. Blick wirkt es sehr schlauchig.
In der Diele fehlt Platz für einen Schuhschrank und Garderobe
Würde die Türen Speis auf Normalbreite erweitern. Mit Klappkorb oder Getränkekiste könnten die schmalen Türen unbequem werden. Auf jeden Fall würde ich die Türe vom Flur gegenüber die in die Küche setzten. Dann geht an die Wand noch ein Regal
Im OG stört mich nur der schmale Flur Schlafzimmer, Bad. Diese Engstelle.
Außenansichten währen interessant.
In der Diele fehlt Platz für einen Schuhschrank und Garderobe
Würde die Türen Speis auf Normalbreite erweitern. Mit Klappkorb oder Getränkekiste könnten die schmalen Türen unbequem werden. Auf jeden Fall würde ich die Türe vom Flur gegenüber die in die Küche setzten. Dann geht an die Wand noch ein Regal
Im OG stört mich nur der schmale Flur Schlafzimmer, Bad. Diese Engstelle.
Außenansichten währen interessant.
M
montessalet15.01.19 13:27haydee schrieb:
Du hattest halt geschrieben Gästezimmer und auf den 1. Blick wirkt es sehr schlauchig.
In der Diele fehlt Platz für einen Schuhschrank und Garderobe
Würde die Türen Speis auf Normalbreite erweitern. Mit Klappkorb oder Getränkekiste könnten die schmalen Türen unbequem werden. Auf jeden Fall würde ich die Türe vom Flur gegenüber die in die Küche setzten. Dann geht an die Wand noch ein Regal
Im OG stört mich nur der schmale Flur Schlafzimmer, Bad. Diese Engstelle.
Außenansichten währen interessant.Muss dir widersprechen: Gucke mal den Eingang (direkt nach der Eingangstür rechts) an: Da ist super Platz für Garderobe und Schuhe. Das reicht massig.
Die Türbreiten sind noch nicht ganz korrekt eingezeichnet - da hast du Recht. Selbstverständlich gibt es breitere Türen.
Zum Flur OG: Breite über 1.3 Meter stört uns gar nicht. Das ist dem Kamin geschuldet. Das ist zudem nur dieser kurze Teil. Für Möbeltransporte könnte man das bemängeln: Die werden eh über den Balkon nach oben kommen.
montessalet schrieb:
Muss dir widersprechen: Gucke mal den Eingang (direkt nach der Eingangstür rechts) an: Da ist super Platz für Garderobe und Schuhe. Das reicht massig.Dann muss da aber das Fenster weg, was schade wäre.OG: ok
EG: aus meiner Sicht leider nicht:
Ähnliche Themen