Sunshine387 schrieb:
Aber ohne diesen unnötigen langen Flur im Obergeschoss. Also viel effizientere Platzausnutzung.Aber wieder ohne Tageslicht oben.Ich habe mal in meinen "alten" Grundrissen gewühlt und den folgenden gefunden. Den hänge ich mal im Original an, im Lageplan habe ich das EG einmal an der Längsachse gespiegelt eingesetzt. Damit wäre der Hauseingang dann planlinks.
Dazu einen Carport mit Aufbewahrungsanbau.
Mich stört an den sonst gerade mal Außenbreite 6 m Garagen direkt am Haus und an der Grundstücksgrenze immer, dass Fahrradunterbringung etc. maximal erschwert wird, wenn die Garage von 2 Autos benutzt ist. Daher finde ich es immer gut, wenn man den Aufbewahrungsbereich von Straße UND Garten erreichen kann.
Zum Grundriss:
- Küchenstauraum unter der Treppe
- HAR gleich planoben links (in der gespiegelten Version)
- Hauswirtschaftsraum im Grunde im OG vorm Bad
- im OG auch Platz im Flur für allgemeinen Stauraum. Bei der Spiegelung könnte man sich entschließen, das Flurfenster lieber auf der Ostseite zu lassen.
- Mit Zaun von "Aufbewahrung draußen" bis zur Hauswand kann man auch eine Art gemütliche Innenhofecke im Südwesten gestalten.

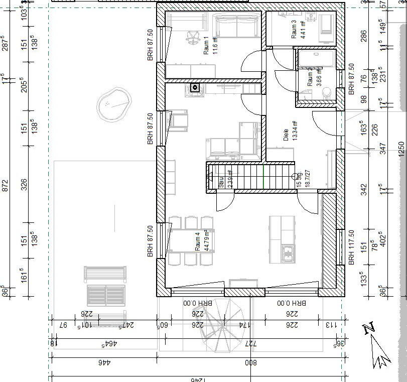
Alter Originalgrundriss (wie gesagt, im Lageplan bereits gespiegelt, Nordpfeil stimmt bis auf ein paar Grad)
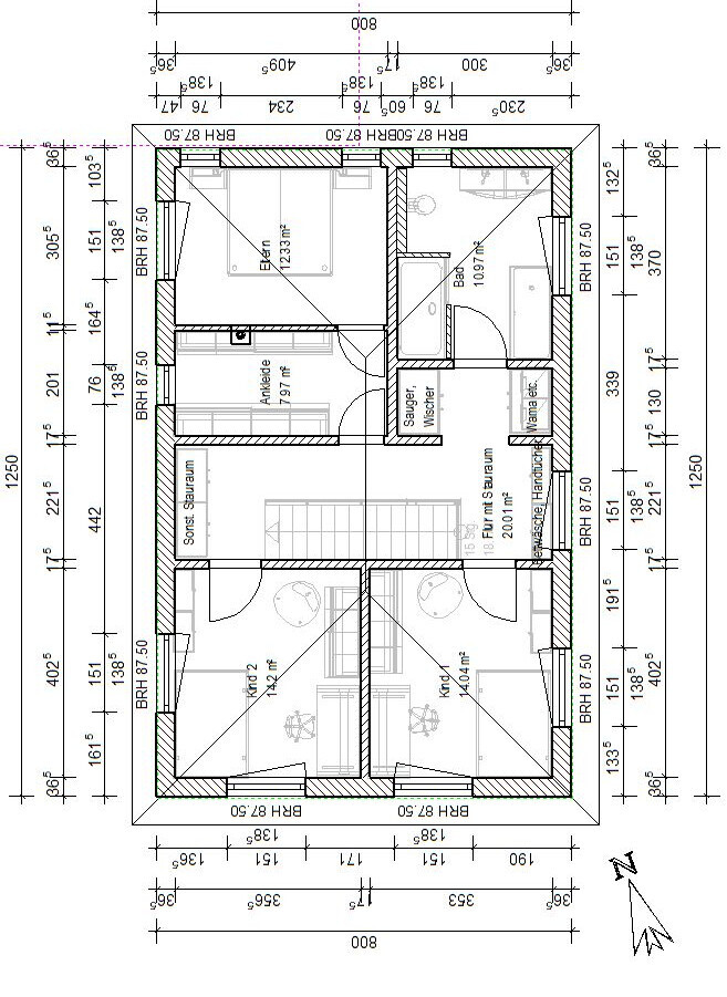
EG
und OG

Dazu einen Carport mit Aufbewahrungsanbau.
Mich stört an den sonst gerade mal Außenbreite 6 m Garagen direkt am Haus und an der Grundstücksgrenze immer, dass Fahrradunterbringung etc. maximal erschwert wird, wenn die Garage von 2 Autos benutzt ist. Daher finde ich es immer gut, wenn man den Aufbewahrungsbereich von Straße UND Garten erreichen kann.
Zum Grundriss:
- Küchenstauraum unter der Treppe
- HAR gleich planoben links (in der gespiegelten Version)
- Hauswirtschaftsraum im Grunde im OG vorm Bad
- im OG auch Platz im Flur für allgemeinen Stauraum. Bei der Spiegelung könnte man sich entschließen, das Flurfenster lieber auf der Ostseite zu lassen.
- Mit Zaun von "Aufbewahrung draußen" bis zur Hauswand kann man auch eine Art gemütliche Innenhofecke im Südwesten gestalten.
Alter Originalgrundriss (wie gesagt, im Lageplan bereits gespiegelt, Nordpfeil stimmt bis auf ein paar Grad)
EG
Der Beispielgrundriss hat übrigens insgesamt "nur" 150qm.
Was ich noch nicht sehe, sind die Bebauungsplan-Vorgaben. Das hat ja @11ant auch schon bemängelt. Auf Seite 4 in der Wunschliste steht Walmdach .. das wäre natürlich bei dem Beispiel eher unpraktisch, sondern ein nicht so steiles Satteldach wäre hier sinnvoll.
Was ich noch nicht sehe, sind die Bebauungsplan-Vorgaben. Das hat ja @11ant auch schon bemängelt. Auf Seite 4 in der Wunschliste steht Walmdach .. das wäre natürlich bei dem Beispiel eher unpraktisch, sondern ein nicht so steiles Satteldach wäre hier sinnvoll.
K a t j a schrieb:
Aber wieder ohne Tageslicht oben.Egal. Tageslichtspots kosten einen Spot-Preis *LOL* verglichen mit einem leeren Zimmer nur zum Zweck der Flurbelichtung.https://www.instagram.com/11antgmxde/
https://www.linkedin.com/company/bauen-jetzt/
Ähnliche Themen