ᐅ Grundriss (Einfamilienhaus / 1,5 Geschosse / ca. 170m²)
Erstellt am: 31.03.14 11:17
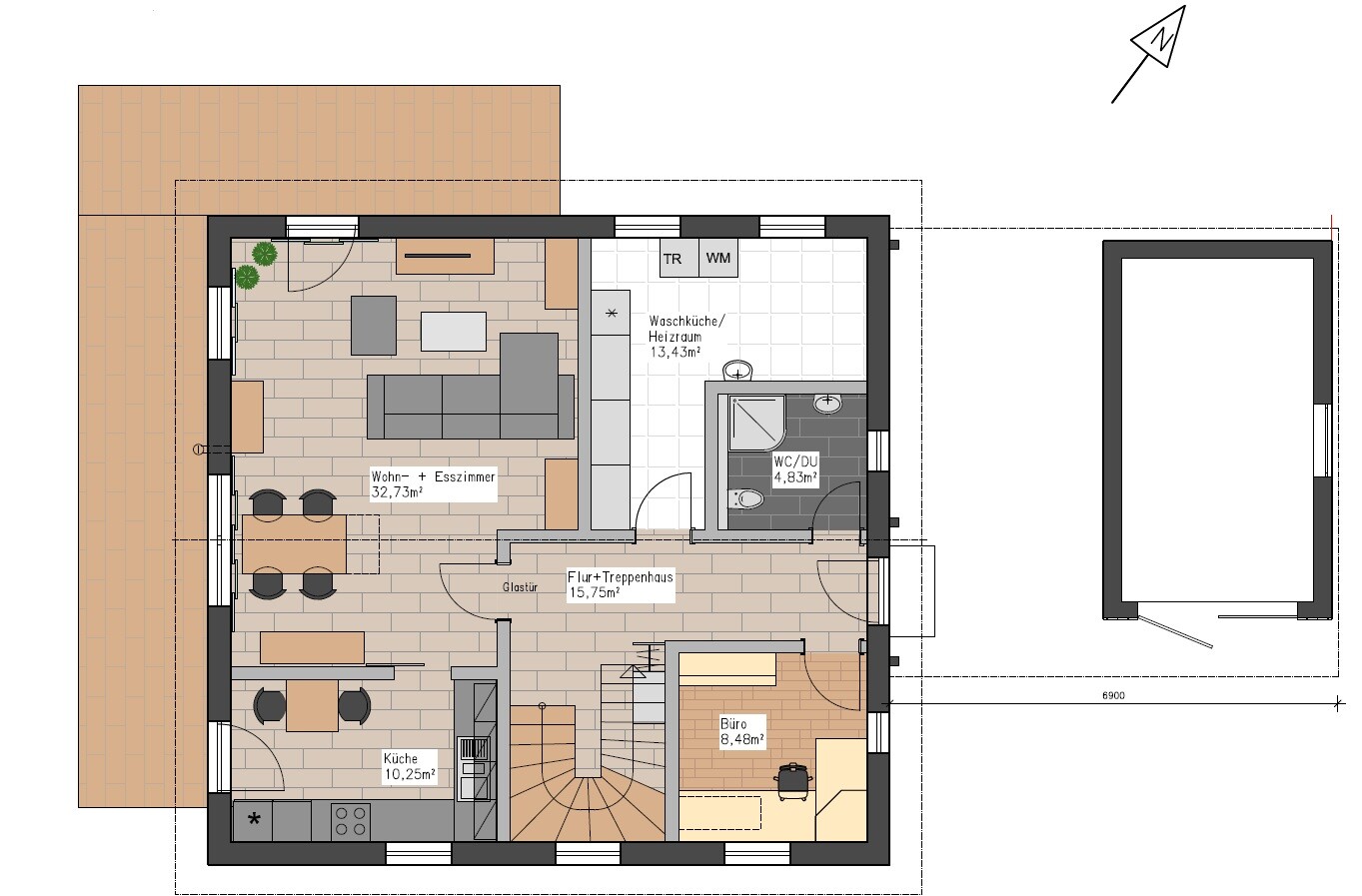
Hallo,
mich würde eure Meinung zu diesem Grundriss interessieren.
Die Grundfläche des Hauses beträgt 10 x 10,5m, es wird keinen Keller geben. Es gibt eine Garage aus einem Altbestand, welche eine neue Fassade erhält und mittels Dach mit dem Haus verbunden wird. Dadurch entsteht ein Carport, sowie eine Eingangsüberdachung.
Das Haus an sich ist 1,5-geschossig und hat eine Kniestockhöhe von ca. 1,40m. Es hat ein Satteldach und soll weder Erker, Balkone, Nischen noch sonstigen Schnickschnack haben. Hinterm Haus soll später mal eine Terrasse an der Ecke Richtung Westen angelegt werden. Ob diese im Südwesten so groß wie auf der Zeichnung ausfallen wird, wird sich zeigen, eher etwas kleiner.
Im EG ist wichtig, dass es einen relativ großen Hauswirtschaftsraum gibt und dass die Küche vom Wohnbereich abgetrennt wird. Im OG sollen große Kinderzimmer entstehen. Im Schlafzimmer wird der Bereich zwischen Bett und kleiderschränken optisch getrennt (z.B. durch einen großen Vorhang), sodass eine Art Ankleidebereich entsteht.
Was meint ihr zu dem Ganzen?

mich würde eure Meinung zu diesem Grundriss interessieren.
Die Grundfläche des Hauses beträgt 10 x 10,5m, es wird keinen Keller geben. Es gibt eine Garage aus einem Altbestand, welche eine neue Fassade erhält und mittels Dach mit dem Haus verbunden wird. Dadurch entsteht ein Carport, sowie eine Eingangsüberdachung.
Das Haus an sich ist 1,5-geschossig und hat eine Kniestockhöhe von ca. 1,40m. Es hat ein Satteldach und soll weder Erker, Balkone, Nischen noch sonstigen Schnickschnack haben. Hinterm Haus soll später mal eine Terrasse an der Ecke Richtung Westen angelegt werden. Ob diese im Südwesten so groß wie auf der Zeichnung ausfallen wird, wird sich zeigen, eher etwas kleiner.
Im EG ist wichtig, dass es einen relativ großen Hauswirtschaftsraum gibt und dass die Küche vom Wohnbereich abgetrennt wird. Im OG sollen große Kinderzimmer entstehen. Im Schlafzimmer wird der Bereich zwischen Bett und kleiderschränken optisch getrennt (z.B. durch einen großen Vorhang), sodass eine Art Ankleidebereich entsteht.
Was meint ihr zu dem Ganzen?
Was mir im DG auffällt, ist das die Dusche nach einem sehr dunklen Eck ohne Tageslicht aussieht.
Ist es gewollt das ihr in eurem Schlafzimmer beim betreten als erstes vor euren Schränken steht? Das würde mich zumindest stören.
Im EG ist die U-Form eurer Küche so geplant das, wenn man an der kürzen Küchenzeile steht, den Türdurchgang zum Ess-/Wohnzimmer versperrt.
Ist es gewollt das ihr in eurem Schlafzimmer beim betreten als erstes vor euren Schränken steht? Das würde mich zumindest stören.
Im EG ist die U-Form eurer Küche so geplant das, wenn man an der kürzen Küchenzeile steht, den Türdurchgang zum Ess-/Wohnzimmer versperrt.
Hallo,
als Basis ein schöner Entwurf, ich würde nur die Bürotür Richtung Treppe verschieben, an der Haustüre könnte es eng werden.
Und das Bad würde ich nochmal neu planen, das finde ich im Eingangsbereich sehr eng und ob das mit dem Licht so klappt, weiß ich nicht.
Sonst ein schöner Entwurf, vor allem das EG.
Gruß
als Basis ein schöner Entwurf, ich würde nur die Bürotür Richtung Treppe verschieben, an der Haustüre könnte es eng werden.
Und das Bad würde ich nochmal neu planen, das finde ich im Eingangsbereich sehr eng und ob das mit dem Licht so klappt, weiß ich nicht.
Sonst ein schöner Entwurf, vor allem das EG.
Gruß
Den Eingangsbereich würde ich auch verbreitern, vlt etwas vom WC opfern?
Herd mit Spüle tauschen -> Spüle vor dem Fenster ist netter 🙂
Eingang zum Bad OG ist gar nicht schön... vlt mal vorstellen, wie das so wirken kann (Dunkelheit, enger Gang)
Ansonsten ganz ok, aber bestimmt noch ausbaufähig 🙂
Herd mit Spüle tauschen -> Spüle vor dem Fenster ist netter 🙂
Eingang zum Bad OG ist gar nicht schön... vlt mal vorstellen, wie das so wirken kann (Dunkelheit, enger Gang)
Ansonsten ganz ok, aber bestimmt noch ausbaufähig 🙂
Im großen und ganzen gefallen mir die Ansätze im EG.
Ich würde die Dusche im Gäste-WC aber Streichen (wird die ernsthaft jemand nutzen?) und lieber zusehen mehr Platz in der Diele zu bekommen. Oder den Zugang zum Hauswirtschaftsraum weniger schlauchig zu machen.
Sind schon Kinder da? Denkt an Kinderwagen-Parkplatz, Auto-Babyschale und Schuhe, Jacken für 4? Personen!
Die Küche würde ich mit Halbinsel offen gestalten, dann wirkt der Wohnbereich größer.
Bei der Couch hinten wirkt alles etwas eng! Reicht das wirklich? Wie soll man da auf die Couch kommen bzw wieder raus ohne dass alle anderen mit aufstehen und raus gehen müssen? Klettern?
Kind 2 und Badezimmer Türen würde ich "begradigen". Wirkt ruhiger. Ankleide Wand auf gleiche Höhe wie Kinder Trennwand. Schlafzimmer sieht viel zu eng aus. Wie breit ist das?
Aber ehrlich gesagt: das OG wird so nicht funktionieren.
Es steht keine Wand auf der anderen. Die Statik dürfte interessant und/oder sehr teuer werden 🙁
Ich würde die Dusche im Gäste-WC aber Streichen (wird die ernsthaft jemand nutzen?) und lieber zusehen mehr Platz in der Diele zu bekommen. Oder den Zugang zum Hauswirtschaftsraum weniger schlauchig zu machen.
Sind schon Kinder da? Denkt an Kinderwagen-Parkplatz, Auto-Babyschale und Schuhe, Jacken für 4? Personen!
Die Küche würde ich mit Halbinsel offen gestalten, dann wirkt der Wohnbereich größer.
Bei der Couch hinten wirkt alles etwas eng! Reicht das wirklich? Wie soll man da auf die Couch kommen bzw wieder raus ohne dass alle anderen mit aufstehen und raus gehen müssen? Klettern?
Kind 2 und Badezimmer Türen würde ich "begradigen". Wirkt ruhiger. Ankleide Wand auf gleiche Höhe wie Kinder Trennwand. Schlafzimmer sieht viel zu eng aus. Wie breit ist das?
Aber ehrlich gesagt: das OG wird so nicht funktionieren.
Es steht keine Wand auf der anderen. Die Statik dürfte interessant und/oder sehr teuer werden 🙁
Büro oder Bad verkleinern und Eingangsbereich größer planen. So habt ihr überhaupt keinen Platz eine Kommode oder Hacken für Jacken oder Platz für Schuhe... Wird auch ohne Kids schon sehr unaufgeräumt der Bereich.
Die Platzierung der Möbel im Wohnbereich finde ich ebenfalls sehr beengt. Dann lieber das Sofa auf die Fensterseite (hier keine bodentiefen Fenster einplanen) und die "Wohnwand" gegenüber oder so...
Der Flur im OG ist unheimlich dunkel und winzig! Da können ja keine zwei Personen aneinander vorbei. Die Wand von Kinderzimmer und Bad, wo die Türen dran sind begradigen. Denn dadurch habt ihr kaum Mehrraum in den Räumen, aber keinen Raum im Flur! Auch die Wand zw. Abstellraum und Kinderzimmer würde ich zu Gunsten des Kinderzimmers begradigen. Dann wären die Größender Kinderzimmer wieder ähnlich und die Zimmer nicht so verwinkelt. Der Abstellraum ist dann ja auch noch groß genug, oder was soll da rein?
Das Bad würde ich auch nochmals überdenken von der Planung!
Die Platzierung der Möbel im Wohnbereich finde ich ebenfalls sehr beengt. Dann lieber das Sofa auf die Fensterseite (hier keine bodentiefen Fenster einplanen) und die "Wohnwand" gegenüber oder so...
Der Flur im OG ist unheimlich dunkel und winzig! Da können ja keine zwei Personen aneinander vorbei. Die Wand von Kinderzimmer und Bad, wo die Türen dran sind begradigen. Denn dadurch habt ihr kaum Mehrraum in den Räumen, aber keinen Raum im Flur! Auch die Wand zw. Abstellraum und Kinderzimmer würde ich zu Gunsten des Kinderzimmers begradigen. Dann wären die Größender Kinderzimmer wieder ähnlich und die Zimmer nicht so verwinkelt. Der Abstellraum ist dann ja auch noch groß genug, oder was soll da rein?
Das Bad würde ich auch nochmals überdenken von der Planung!
Ähnliche Themen