Hallo zusammen,
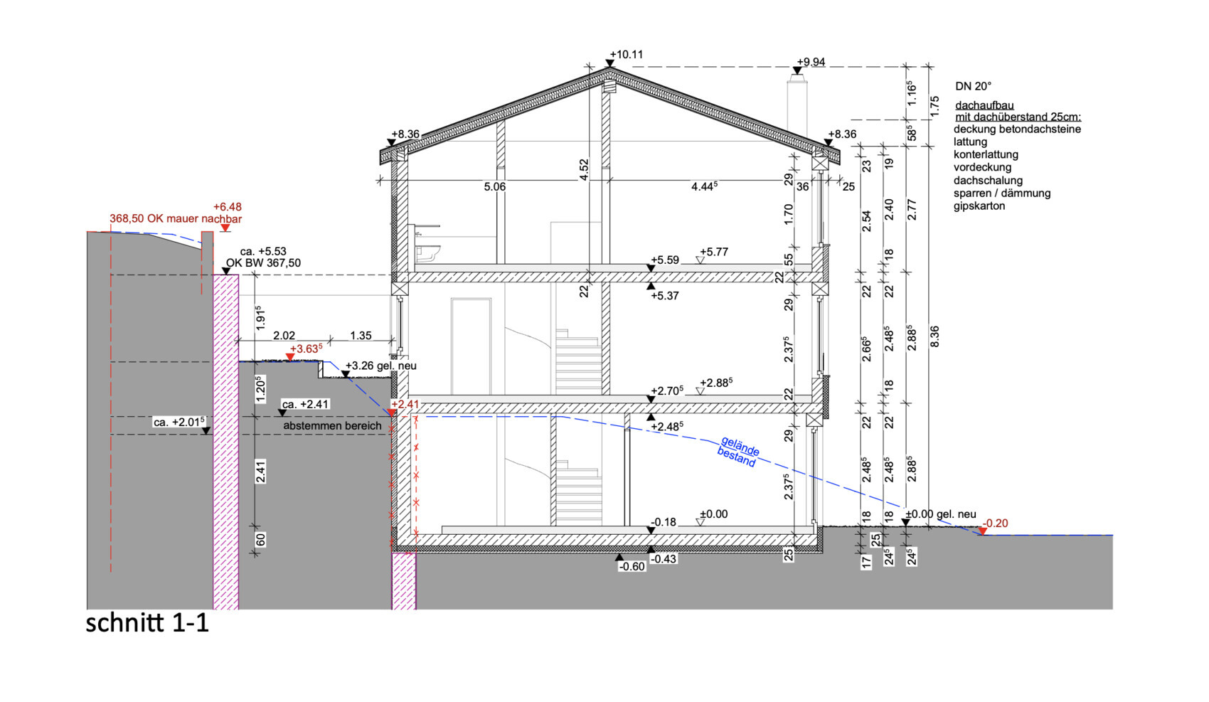
wir haben die Möglichkeit die rechte Haushälfte einer Doppelhaushälfte zu bauen. Das Grundstück (212 m2) befindet sich an einem Hang und wurde bereits abgestützt. Erdarbeiten sind auf jeden Fall nötig. Hat jemand von euch bereits Erfahrung mit so einem ähnlichen Grundstück? Ich rechne mit deutlichen Mehrkosten aufgrund der Erdarbeiten.
Das zweite Thema welches mich beschäftigt ist, dass die rechte Haushälfte eine Nord-Ost Ausrichtung hat. Die Wohn- und Schlafräume würden sich im Süd-Osten befinden. Da sehe ich kein Problem. Der Garten wäre jedoch hinter dem Haus bzw. auf der Garage. Also Nord-Ost Ausrichtung. D.h. Sonne zum Frühstück, aber ansonsten wahrscheinlich den ganzen Tag dunkel und kalt. Im Hochsommer natürlich nicht das schlechteste. Wie ist eure Meinung dazu?
Der Plan im Anhang kommt nicht von uns, sondern wurde für jemand anderes geplant.
Ich freu mich auf eure Meinungen und auf den Austausch.





wir haben die Möglichkeit die rechte Haushälfte einer Doppelhaushälfte zu bauen. Das Grundstück (212 m2) befindet sich an einem Hang und wurde bereits abgestützt. Erdarbeiten sind auf jeden Fall nötig. Hat jemand von euch bereits Erfahrung mit so einem ähnlichen Grundstück? Ich rechne mit deutlichen Mehrkosten aufgrund der Erdarbeiten.
Das zweite Thema welches mich beschäftigt ist, dass die rechte Haushälfte eine Nord-Ost Ausrichtung hat. Die Wohn- und Schlafräume würden sich im Süd-Osten befinden. Da sehe ich kein Problem. Der Garten wäre jedoch hinter dem Haus bzw. auf der Garage. Also Nord-Ost Ausrichtung. D.h. Sonne zum Frühstück, aber ansonsten wahrscheinlich den ganzen Tag dunkel und kalt. Im Hochsommer natürlich nicht das schlechteste. Wie ist eure Meinung dazu?
Der Plan im Anhang kommt nicht von uns, sondern wurde für jemand anderes geplant.
Ich freu mich auf eure Meinungen und auf den Austausch.
lisa1541 schrieb:
aber ansonsten wahrscheinlich den ganzen Tag dunkel und kalt.Davon musst Du Dich frei machen. Licht ist natürlich auch im Norden. Es ist dort auch nicht unbedingt sehr viel kälter. Im Winter sitzt Du eh nicht draußen. Die sonnigen Tage im Winter kann man ja gut mit Ausflügen erheitern, so macht man es zumindest bei uns im Bekanntenkreis.Zum Hang selbst kann ich wenig sagen. Es sieht schon sehr, sehr krass aus. Was ist da über der Garage? Ist da quasi ein Terrassenloch angedeutet?
K
K a t j a11.03.24 18:12Also ehrlich, das ist kein Hang, das ist eine Steilwand. 8m Unterschied auf 15m - das muss man schon wollen. Das ganze hat auch aufgrund der geringen Größe nix mehr von einem Haus mit Garten. Diese Terrasse auf der Garage und dazu dieser hangseitige Betonwall der noch über die 1. Etage hinaus ragt, sind schon sehr gewöhnungsbedürftig. Neben der Kostenfrage würde ich mich vor allem fragen, ob dieses Objekt das Traumhaus werden kann. Die Nord-Südausrichtung wäre jedenfalls nicht mein Problem. Aber gut, Geschmäcker sind zum Glück verschieden.
lisa1541 schrieb:
wir haben die Möglichkeit"Möglichkeit" ist ein gemeinhin positiv gedeutetes Wort und hat daher aus meiner Sicht bei einer Gelegenheit zum Unglücklichwerden nichts zu suchen. Hier soll ein Doppelhaus fast mehr unter als neben einem Nachbargrundstück platziert werden, das wie ein Damoklesschwert darüber thront. Euer Kaufinteressevorgänger, für den eine Hälfte dieses Doppelhauses geplant wurde, ist aus diesem Wahnsinn noch rechtzeitig aufgewacht, und dabei solltet Ihr ihm folgen.Vielleicht sucht Ihr schon so lange vergeblich, daß Euch solche Ausblicke von der Rückseite auf eine Talsperrenwand im Delirium schon als erstrebenswert vorkommen. Aber glaubt stattdessen lieber den Bremer Stadtmusikanten: "etwas besseres als den Tod finden wir überall" !
https://www.instagram.com/11antgmxde/
https://www.linkedin.com/company/bauen-jetzt/
H
hanghaus202312.03.24 14:17Sag mal was zum Budget.
Wo soll den das gebaut werden, damit sich die Mehrkosten rechnen? Hier sind ja schon einige 100 k für die Baugrubensicherung verbrannt. Zeig uns doch mal Bilder vom Bestand. Hat der SW Nachbar schon angefangen?
Gibt es die restlichen Grundrisse auch?
Wo soll den das gebaut werden, damit sich die Mehrkosten rechnen? Hier sind ja schon einige 100 k für die Baugrubensicherung verbrannt. Zeig uns doch mal Bilder vom Bestand. Hat der SW Nachbar schon angefangen?
Gibt es die restlichen Grundrisse auch?
hanghaus2023 schrieb:
Hat der SW Nachbar schon angefangen?Na, doch wohl hoffentlich noch nicht !https://www.instagram.com/11antgmxde/
https://www.linkedin.com/company/bauen-jetzt/
Ähnliche Themen