ᐅ Grundriss Doppelhaushälfte ggfs. mit Einliegerwohnung - leichte Hanglage, Kellergeschoss
Erstellt am: 02.03.12 18:08
C
choco-late72C
choco-late7202.03.12 18:08Hallo zusammen,
das ist meine erstes Thema. Auch mit Beiträgen war ich noch nicht aktiv.
Mein Anliegen:
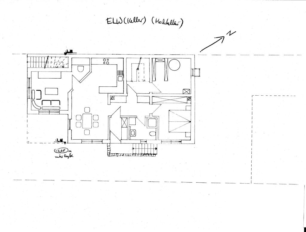
Wir wollen eine Doppelhaushälfte bauen. Das Grundstück hat relativ leichte Hanglage (fällt in 39 Metern um ca. 3,50 m)- Auf die Hauslänge (ca. 11,70 m) verliert es ca. 1-1,2 Meter).
Um etwas höher aus der Erde zu kommen, wollen wir ein Kellergeschoss bauen. Da wir es mehr als nur zum Abstellen und Feiern nutzen wollen, haben wir an eine Einliegerwohnung zum Vermieten gedacht - oder auch mal falls unser Kind es nehmen möchte - oder umgekehrt mal für uns.
Uns wurde geraten, nicht einfach die Bodenplatte nach oben zu verlegen, da der Kellerbau nicht so viel teurer sei wie die Erd- Verdichtungs und Aufmauerungsarbeiten.
Schaut doch bitte mal auf die Grundrisse. Vielleicht fallen Euch ein paar Fallen ein.
Mir fällt spontan ein:
1. Der Einlieger hat kaum Stauraum, da der Kellerraum als Anschlussraum und als Keller für die Hauptwohnung dienen soll - dafür soll der Einlieger aber eine Garage bekommen.
2. Evtl. ist das Dachgeschoss besser zu nutzen - wir haben keinen Zugang geplant (Kostengründe - lieber Keller) - wäre es evtl. besser, den Keller dem Einlieger zu lassen, und das Dach der Hauptwohnung? - es soll aber unbedingt eine Zugangsmöglcihkeit von EG zu KG im Haus bleiben (diese kann ja verschlossen werden mit schwerer Tür oder SChrank oä.)
3. MIr gefällt nicht, dass wir so schmal bauen - nur 8,1 Meter. Es sollte eigentlich. Hintergrund ist der, dass die Einliegerwohnung einen eigenen Zugang haben soll und das Grundstück (breite ca. 11,7 Meter) über die Garage noch befahrbar sein sollte (ich weiß nicht, ob es benötigt wird, aber ich habe das Gefühl, es wäre besser, mal mit einem Hänger oder zumindest PKW hinten in den GArten fahren zu können (für Transport oä).
4. Soll ich lieber zwei größere Garagen machen (je 6*4 m) oder lieber zwei kleinere (je6*3m) und noch einen Schuppen mit 6*2 Meter (für Fahrräder, Material, Reifen...)
5. Ist die Terrasse/Balkon vom EG zu groß - Immerhin soll man über die Gartentreppen auch in den Garten können
6. Wie kann ich mich vor Wind und Nachbarblicken auf dem Balkon/Terrasse schützen (Seitenwände? - die können halt auch wieder Licht nehmen - evtl. gibt es klappbare Wände?
Was sagt Ihr zu den Grundrisse? Und zu meinen Gedanken?
Wäre schön, wenn ich ein paar Anregungen bekomme oder jemand mich vor etwaigen Fehlplanungen warnt. Wir haben zwar einen Architekten an der Hand, doch manchmal können die Gedanken schon recht festgefahren sein, wenn man sich länger mit einer Sache befasst hat. Vielleicht habt ihr ja neue Gedanken.
Viele Grüße
Choco-late72




das ist meine erstes Thema. Auch mit Beiträgen war ich noch nicht aktiv.
Mein Anliegen:
Wir wollen eine Doppelhaushälfte bauen. Das Grundstück hat relativ leichte Hanglage (fällt in 39 Metern um ca. 3,50 m)- Auf die Hauslänge (ca. 11,70 m) verliert es ca. 1-1,2 Meter).
Um etwas höher aus der Erde zu kommen, wollen wir ein Kellergeschoss bauen. Da wir es mehr als nur zum Abstellen und Feiern nutzen wollen, haben wir an eine Einliegerwohnung zum Vermieten gedacht - oder auch mal falls unser Kind es nehmen möchte - oder umgekehrt mal für uns.
Uns wurde geraten, nicht einfach die Bodenplatte nach oben zu verlegen, da der Kellerbau nicht so viel teurer sei wie die Erd- Verdichtungs und Aufmauerungsarbeiten.
Schaut doch bitte mal auf die Grundrisse. Vielleicht fallen Euch ein paar Fallen ein.
Mir fällt spontan ein:
1. Der Einlieger hat kaum Stauraum, da der Kellerraum als Anschlussraum und als Keller für die Hauptwohnung dienen soll - dafür soll der Einlieger aber eine Garage bekommen.
2. Evtl. ist das Dachgeschoss besser zu nutzen - wir haben keinen Zugang geplant (Kostengründe - lieber Keller) - wäre es evtl. besser, den Keller dem Einlieger zu lassen, und das Dach der Hauptwohnung? - es soll aber unbedingt eine Zugangsmöglcihkeit von EG zu KG im Haus bleiben (diese kann ja verschlossen werden mit schwerer Tür oder SChrank oä.)
3. MIr gefällt nicht, dass wir so schmal bauen - nur 8,1 Meter. Es sollte eigentlich. Hintergrund ist der, dass die Einliegerwohnung einen eigenen Zugang haben soll und das Grundstück (breite ca. 11,7 Meter) über die Garage noch befahrbar sein sollte (ich weiß nicht, ob es benötigt wird, aber ich habe das Gefühl, es wäre besser, mal mit einem Hänger oder zumindest PKW hinten in den GArten fahren zu können (für Transport oä).
4. Soll ich lieber zwei größere Garagen machen (je 6*4 m) oder lieber zwei kleinere (je6*3m) und noch einen Schuppen mit 6*2 Meter (für Fahrräder, Material, Reifen...)
5. Ist die Terrasse/Balkon vom EG zu groß - Immerhin soll man über die Gartentreppen auch in den Garten können
6. Wie kann ich mich vor Wind und Nachbarblicken auf dem Balkon/Terrasse schützen (Seitenwände? - die können halt auch wieder Licht nehmen - evtl. gibt es klappbare Wände?
Was sagt Ihr zu den Grundrisse? Und zu meinen Gedanken?
Wäre schön, wenn ich ein paar Anregungen bekomme oder jemand mich vor etwaigen Fehlplanungen warnt. Wir haben zwar einen Architekten an der Hand, doch manchmal können die Gedanken schon recht festgefahren sein, wenn man sich länger mit einer Sache befasst hat. Vielleicht habt ihr ja neue Gedanken.
Viele Grüße
Choco-late72
C
choco-late7202.03.12 20:17J
jolly13jumper05.03.12 13:40Zwecks Größe der Einliegerwohnung. Ich selbst wohne in einer 80m² Wohnung mit 2 ZKB. Kein Abstellraum. Da deine Wohnung 3 Zimmer haben soll, reicht das definitiv aus. Wem das nicht reicht muss ja nicht einziehen.
Ähnliche Themen